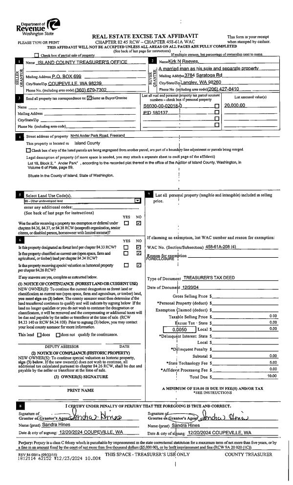
Property
Account |
| Property ID: | 344096 | Abbreviated Legal Description: | PATTONS HILLCREST #2 N40' LOT 47 & S40' LOT 48 BLK 14 |
| Geographic ID: | S7685-02-14047-1 | Agent Code: | |
| Type: | Real | | |
| Tax Area: | 110 - APPRAISER-OH Schl Dist, outside OH, improved & 1 acre or less | Land Use Code | 11 |
| Open Space: | N | DFL | N |
| Historic Property: | N | Remodel Property: | N |
| Multi-Family Redevelopment: | N | | |
| Township: | | Section: | |
| Range: | |
Location |
| Address: | 2560 AIRLINE WAY OAK HARBOR, WA 98277 | Mapsco: | |
| Neighborhood: | Cycle 1 | Map ID: | 249 |
| Neighborhood CD: | 1 |
Owner |
| Name: | RICHARDS, CHRISTINE | Owner ID: | 78901 |
| Mailing Address: | 2560 AIRLINE WAY OAK HARBOR, WA 98277-8939 | % Ownership: | 100.0000000000% |
| | | Exemptions: | |
Taxes and Assessment Details
Values
| (+) Improvement Homesite Value: | + | $0 | |
| (+) Improvement Non-Homesite Value: | + | $159,876 | |
| (+) Land Homesite Value: | + | $0 | |
| (+) Land Non-Homesite Value: | + | $215,000 | |
| (+) Curr Use (HS): | + | $0 | $0 |
| (+) Curr Use (NHS): | + | $0 | $0 |
| | | -------------------------- | |
| (=) Market Value: | = | $374,876 | |
| (–) Productivity Loss: | – | $0 | |
| | | -------------------------- | |
| (=) Subtotal: | = | $374,876 | |
| (+) Senior Appraised Value: | + | $0 | |
| (+) Non-Senior Appraised Value: | + | $374,876 | |
| | | -------------------------- | |
| (=) Total Appraised Value: | = | $374,876 | |
| (–) Senior Exemption Loss: | – | $0 | |
| (–) Exemption Loss: | – | $0 | |
| | | -------------------------- | |
| (=) Taxable Value: | = | $374,876 | |
Taxing Jurisdiction
| Owner: | RICHARDS, CHRISTINE | | |
| % Ownership: | 100.0000000000% | | |
| Total Value: | $374,876 | | |
| Tax Area: | 110 - APPRAISER-OH Schl Dist, outside OH, improved & 1 acre or less |
| CF | Conservation Futures | 0.0316035091 | $374,876 | $374,876 | $11.85 | | |
| CEM1 | Cemetery #1 | 0.0040320932 | $374,876 | $374,876 | $1.51 | | |
| FIRE2 | Fire & Rescue Dist #2 N Whidbey GEN | 0.5475949600 | $374,876 | $374,876 | $205.28 | | |
| HOBOND | Hospital BOND | 0.1910887512 | $374,876 | $374,876 | $71.63 | | |
| HOGEN | Hospital GEN | 0.3902502903 | $374,876 | $374,876 | $146.30 | | |
| CE | County Current Expense | 0.3708482477 | $374,876 | $374,876 | $139.02 | | |
| CR | County Roads | 0.4584763726 | $374,876 | $374,876 | $171.87 | | |
| ISLANDEMS | Hospital GEN (EMS) | 0.5000000000 | $374,876 | $374,876 | $187.44 | | |
| LIB | Library Sno-Isle GEN | 0.3153421757 | $374,876 | $374,876 | $118.21 | | |
| NWHIDPRMT | P & R N Whidbey GEN | 0.2004466701 | $374,876 | $374,876 | $75.14 | | |
| SCH201MO | School 201 Enrichment | 1.8559231640 | $374,876 | $374,876 | $695.74 | | |
| ST | State School | 1.3035497053 | $374,876 | $374,876 | $488.67 | | |
| ST2 | State School Part 2 | 0.8169543533 | $374,876 | $374,876 | $306.26 | | |
| | Total Tax Rate: | 6.9861102925 | | | | | |
| | | | | Taxes w/Current Exemptions: | $2,618.92 | | |
| | | | | Taxes w/o Exemptions: | $2,618.92 | | |
Improvement / Building
| Improvement #1: | RESIDENTIAL | State Code: | Y | 1105.0 sqft | Value: | $159,876 |
| Bathrooms: | 1 | Bedrooms: | 3 | | Ceiling: | DRYWALL PAINTED | Exterior Wall/Cover: | WOOD SIDING | | Floor Covering: | HARDWOOD/CARP 60-40 | Floor Structure: | WOOD W/SUBFLOOR | | Foundation: | CONCRETE | Heating: | FHA OIL | | Interior Finish: | DRYWALL PAINT | Plumbing Fixture Cnt: | 6 | | Roof Slope: | 4" IN 12" | Roof Structure/Cover: | CJ ASPHALT |
|
| | Type | Description | Class CD | Sub Class CD | Year Built | Area |
| | BAS | BASE/MAIN FLOOR | 3 | 0 | 1959 | 1105.0 |
| | AGR | ATTACHED GARAGE | 3 | 0 | 1959 | 262.0 |
Sketch
Property Image
Land
| 1 | 14 | SQ (08001-12000) | 0.0000 | 0.00 | 0.00 | 0.00 | 1.00 | $215,000 | $0 |
Roll Value History
| 2026 | N/A | N/A | N/A | N/A | N/A |
| 2025 | $159,876 | $215,000 | $0 | $374,876 | $374,876 |
| 2024 | $162,289 | $195,000 | $0 | $357,289 | $357,289 |
| 2023 | $148,429 | $195,000 | $0 | $343,429 | $343,429 |
| 2022 | $136,471 | $185,000 | $0 | $321,471 | $321,471 |
| 2021 | $120,462 | $145,000 | $0 | $265,462 | $265,462 |
| 2020 | $117,776 | $125,000 | $0 | $242,776 | $242,776 |
| 2019 | $84,311 | $165,000 | $0 | $249,311 | $249,311 |
| 2018 | $84,615 | $135,000 | $0 | $219,615 | $219,615 |
| 2017 | $70,782 | $110,000 | $0 | $180,782 | $180,782 |
| 2016 | $72,023 | $90,000 | $0 | $162,023 | $162,023 |
| 2015 | $73,265 | $70,000 | $0 | $143,265 | $143,265 |
| 2014 | $74,507 | $55,000 | $0 | $129,507 | $129,507 |
| 2013 | $75,748 | $55,000 | $0 | $130,748 | $130,748 |
| 2012 | $76,991 | $60,000 | $0 | $136,991 | $136,991 |
| 2011 | $65,815 | $50,000 | $0 | $115,815 | $115,815 |
| 2010 | $72,877 | $50,000 | $0 | $122,877 | $122,877 |
| 2009 | $75,128 | $92,000 | $0 | $167,128 | $167,128 |
| 2008 | $76,380 | $98,000 | $0 | $174,380 | $174,380 |
| 2007 | $77,632 | $98,000 | $0 | $175,632 | $175,632 |
Deed and Sales History
| 1 | 02/10/2005 | WD | Warranty Deed | WATSON, JEREMY B | RICHARDS, CHRISTINE | | | $154,900.00 | 50575 | 4125821 |
| 2 | 08/27/2002 | ESTSEPPROP | Establish Separate Property | WATSON, JEREMY B | WATSON, JEREMY B | | | $0.00 | 23440 | 4029834 |
| 3 | 08/14/2002 | WD | Warranty Deed | Unknown | WATSON, JEREMY B | | | $133,000.00 | 23349 | 4029397 |
Payout Agreement
| No payout information available.. |