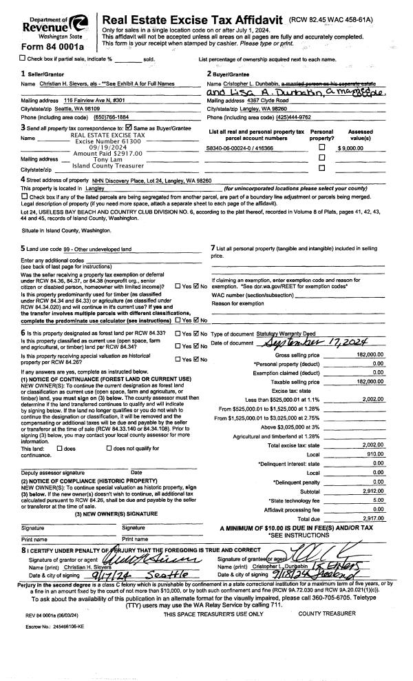
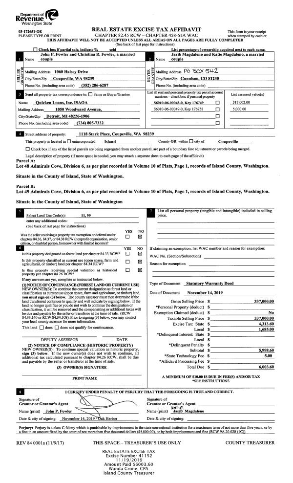
Property
Account |
| Property ID: | 344103 | Abbreviated Legal Description: | PATTONS HILLCREST #2 N20' LOT 46 & S60' LOT 47 BLK 14 |
| Geographic ID: | S7685-02-14047-2 | Agent Code: | |
| Type: | Real | | |
| Tax Area: | 110 - APPRAISER-OH Schl Dist, outside OH, improved & 1 acre or less | Land Use Code | 11 |
| Open Space: | N | DFL | N |
| Historic Property: | N | Remodel Property: | N |
| Multi-Family Redevelopment: | N | | |
| Township: | | Section: | |
| Range: | |
Location |
| Address: | 2558 AIRLINE WAY OAK HARBOR, WA 98277 | Mapsco: | |
| Neighborhood: | Cycle 1 | Map ID: | 249 |
| Neighborhood CD: | 1 |
Owner |
| Name: | BASSETT, GENEVIEVE A | Owner ID: | 291584 |
| Mailing Address: | 912 CIMARRON CT RIDGECREST, CA 93555-3060 | % Ownership: | 100.0000000000% |
| | | Exemptions: | |
Taxes and Assessment Details
Values
| (+) Improvement Homesite Value: | + | $0 | |
| (+) Improvement Non-Homesite Value: | + | $146,598 | |
| (+) Land Homesite Value: | + | $0 | |
| (+) Land Non-Homesite Value: | + | $210,000 | |
| (+) Curr Use (HS): | + | $0 | $0 |
| (+) Curr Use (NHS): | + | $0 | $0 |
| | | -------------------------- | |
| (=) Market Value: | = | $356,598 | |
| (–) Productivity Loss: | – | $0 | |
| | | -------------------------- | |
| (=) Subtotal: | = | $356,598 | |
| (+) Senior Appraised Value: | + | $0 | |
| (+) Non-Senior Appraised Value: | + | $356,598 | |
| | | -------------------------- | |
| (=) Total Appraised Value: | = | $356,598 | |
| (–) Senior Exemption Loss: | – | $0 | |
| (–) Exemption Loss: | – | $0 | |
| | | -------------------------- | |
| (=) Taxable Value: | = | $356,598 | |
Taxing Jurisdiction
| Owner: | BASSETT, GENEVIEVE A | | |
| % Ownership: | 100.0000000000% | | |
| Total Value: | $356,598 | | |
| Tax Area: | 110 - APPRAISER-OH Schl Dist, outside OH, improved & 1 acre or less |
| CF | Conservation Futures | 0.0316035091 | $356,598 | $356,598 | $11.27 | | |
| CEM1 | Cemetery #1 | 0.0040320932 | $356,598 | $356,598 | $1.44 | | |
| FIRE2 | Fire & Rescue Dist #2 N Whidbey GEN | 0.5475949600 | $356,598 | $356,598 | $195.27 | | |
| HOBOND | Hospital BOND | 0.1910887512 | $356,598 | $356,598 | $68.14 | | |
| HOGEN | Hospital GEN | 0.3902502903 | $356,598 | $356,598 | $139.16 | | |
| CE | County Current Expense | 0.3708482477 | $356,598 | $356,598 | $132.24 | | |
| CR | County Roads | 0.4584763726 | $356,598 | $356,598 | $163.49 | | |
| ISLANDEMS | Hospital GEN (EMS) | 0.5000000000 | $356,598 | $356,598 | $178.30 | | |
| LIB | Library Sno-Isle GEN | 0.3153421757 | $356,598 | $356,598 | $112.45 | | |
| NWHIDPRMT | P & R N Whidbey GEN | 0.2004466701 | $356,598 | $356,598 | $71.48 | | |
| SCH201MO | School 201 Enrichment | 1.8559231640 | $356,598 | $356,598 | $661.82 | | |
| ST | State School | 1.3035497053 | $356,598 | $356,598 | $464.84 | | |
| ST2 | State School Part 2 | 0.8169543533 | $356,598 | $356,598 | $291.32 | | |
| | Total Tax Rate: | 6.9861102925 | | | | | |
| | | | | Taxes w/Current Exemptions: | $2,491.22 | | |
| | | | | Taxes w/o Exemptions: | $2,491.22 | | |
Improvement / Building
| Improvement #1: | RESIDENTIAL | State Code: | Y | 988.0 sqft | Value: | $146,598 |
| Bathrooms: | 1 | Bedrooms: | 3 | | Ceiling: | DRYWALL PAINTED | Exterior Wall/Cover: | PLY/HARDBOARD T-111 | | Floor Covering: | VINYL/HARDWOOD 20-80 | Floor Structure: | WOOD W/SUBFLOOR | | Foundation: | CONCRETE | Heating: | FHA GAS | | Interior Finish: | DRYWALL PAINT | Plumbing Fixture Cnt: | 6 | | Roof Slope: | 4" IN 12" | Roof Structure/Cover: | CJ ASPHALT |
|
| | Type | Description | Class CD | Sub Class CD | Year Built | Area |
| | BAS | BASE/MAIN FLOOR | 3 | 0 | 1959 | 988.0 |
| | AGR | ATTACHED GARAGE | 3 | 0 | 1959 | 260.0 |
Sketch
Property Image
Land
| 1 | 14 | SQ (08001-12000) | 0.0000 | 0.00 | 0.00 | 0.00 | 1.00 | $210,000 | $0 |
Roll Value History
| 2026 | N/A | N/A | N/A | N/A | N/A |
| 2025 | $146,598 | $210,000 | $0 | $356,598 | $356,598 |
| 2024 | $148,778 | $190,000 | $0 | $338,778 | $338,778 |
| 2023 | $133,518 | $190,000 | $0 | $323,518 | $323,518 |
| 2022 | $122,873 | $180,000 | $0 | $302,873 | $302,873 |
| 2021 | $108,562 | $135,000 | $0 | $243,562 | $243,562 |
| 2020 | $106,186 | $100,000 | $0 | $206,186 | $206,186 |
| 2019 | $75,834 | $150,000 | $0 | $225,834 | $225,834 |
| 2018 | $76,124 | $130,000 | $0 | $206,124 | $206,124 |
| 2017 | $67,308 | $110,000 | $0 | $177,308 | $177,308 |
| 2016 | $68,490 | $90,000 | $0 | $158,490 | $158,490 |
| 2015 | $69,670 | $70,000 | $0 | $139,670 | $139,670 |
| 2014 | $70,851 | $55,000 | $0 | $125,851 | $125,851 |
| 2013 | $72,767 | $55,000 | $0 | $127,767 | $127,767 |
| 2012 | $73,960 | $60,000 | $0 | $133,960 | $133,960 |
| 2011 | $65,609 | $50,000 | $0 | $115,609 | $115,609 |
| 2010 | $71,813 | $50,000 | $0 | $121,813 | $121,813 |
| 2009 | $75,245 | $92,000 | $0 | $167,245 | $167,245 |
| 2008 | $76,459 | $98,000 | $0 | $174,459 | $174,459 |
| 2007 | $77,672 | $98,000 | $0 | $175,672 | $175,672 |
Deed and Sales History
| 1 | 08/28/2019 | QCD | Quit Claim Deed | GOUGE, MICHAEL T | BASSETT, GENEVIEVE A | | | $0.00 | 40064 | 4470485 |
| 2 | 09/30/2003 | WD | Warranty Deed | TURNER, RICHARD D | GOUGE, MICHAEL T | | | $112,900.00 | 34601 | 4078707 |
| 3 | 01/01/1900 | OTHER | Other - Misc. Documents | Unknown | TURNER, RICHARD D | | | $0.00 | 0 | 0 |
Payout Agreement
| No payout information available.. |