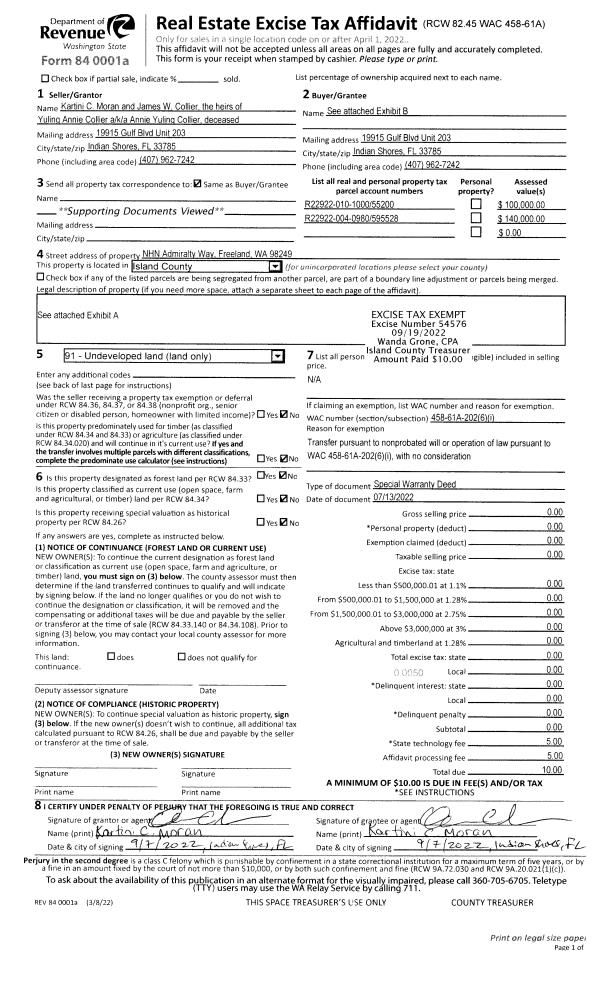
Property
Account |
| Property ID: | 344274 | Abbreviated Legal Description: | PATTONS HILLCREST #2 LOT 63 BLK 14 |
| Geographic ID: | S7685-02-14063-0 | Agent Code: | |
| Type: | Real | | |
| Tax Area: | 110 - APPRAISER-OH Schl Dist, outside OH, improved & 1 acre or less | Land Use Code | 11 |
| Open Space: | N | DFL | N |
| Historic Property: | N | Remodel Property: | N |
| Multi-Family Redevelopment: | N | | |
| Township: | | Section: | |
| Range: | |
Location |
| Address: | 1260 HIGHLAND DR OAK HARBOR, WA 98277 | Mapsco: | |
| Neighborhood: | Cycle 1 | Map ID: | 249 |
| Neighborhood CD: | 1 |
Owner |
| Name: | BAATZ, CHRISTIAN | Owner ID: | 291655 |
| Mailing Address: | 1260 HIGHLAND DR OAK HARBOR, WA 98277 | % Ownership: | 100.0000000000% |
| | | Exemptions: | |
Taxes and Assessment Details
Values
| (+) Improvement Homesite Value: | + | $0 | |
| (+) Improvement Non-Homesite Value: | + | $260,913 | |
| (+) Land Homesite Value: | + | $0 | |
| (+) Land Non-Homesite Value: | + | $210,000 | |
| (+) Curr Use (HS): | + | $0 | $0 |
| (+) Curr Use (NHS): | + | $0 | $0 |
| | | -------------------------- | |
| (=) Market Value: | = | $470,913 | |
| (–) Productivity Loss: | – | $0 | |
| | | -------------------------- | |
| (=) Subtotal: | = | $470,913 | |
| (+) Senior Appraised Value: | + | $0 | |
| (+) Non-Senior Appraised Value: | + | $470,913 | |
| | | -------------------------- | |
| (=) Total Appraised Value: | = | $470,913 | |
| (–) Senior Exemption Loss: | – | $0 | |
| (–) Exemption Loss: | – | $0 | |
| | | -------------------------- | |
| (=) Taxable Value: | = | $470,913 | |
Taxing Jurisdiction
| Owner: | BAATZ, CHRISTIAN | | |
| % Ownership: | 100.0000000000% | | |
| Total Value: | $470,913 | | |
| Tax Area: | 110 - APPRAISER-OH Schl Dist, outside OH, improved & 1 acre or less |
| CF | Conservation Futures | 0.0316035091 | $470,913 | $470,913 | $14.88 | | |
| CEM1 | Cemetery #1 | 0.0040320932 | $470,913 | $470,913 | $1.90 | | |
| FIRE2 | Fire & Rescue Dist #2 N Whidbey GEN | 0.5475949600 | $470,913 | $470,913 | $257.87 | | |
| HOBOND | Hospital BOND | 0.1910887512 | $470,913 | $470,913 | $89.99 | | |
| HOGEN | Hospital GEN | 0.3902502903 | $470,913 | $470,913 | $183.77 | | |
| CE | County Current Expense | 0.3708482477 | $470,913 | $470,913 | $174.64 | | |
| CR | County Roads | 0.4584763726 | $470,913 | $470,913 | $215.90 | | |
| ISLANDEMS | Hospital GEN (EMS) | 0.5000000000 | $470,913 | $470,913 | $235.46 | | |
| LIB | Library Sno-Isle GEN | 0.3153421757 | $470,913 | $470,913 | $148.50 | | |
| NWHIDPRMT | P & R N Whidbey GEN | 0.2004466701 | $470,913 | $470,913 | $94.39 | | |
| SCH201MO | School 201 Enrichment | 1.8559231640 | $470,913 | $470,913 | $873.98 | | |
| ST | State School | 1.3035497053 | $470,913 | $470,913 | $613.86 | | |
| ST2 | State School Part 2 | 0.8169543533 | $470,913 | $470,913 | $384.71 | | |
| | Total Tax Rate: | 6.9861102925 | | | | | |
| | | | | Taxes w/Current Exemptions: | $3,289.85 | | |
| | | | | Taxes w/o Exemptions: | $3,289.85 | | |
Improvement / Building
| Improvement #1: | RESIDENTIAL | State Code: | Y | 1938.0 sqft | Value: | $260,913 |
| Bathrooms: | 2 | Bedrooms: | 3 | | Ceiling: | DRYWALL PAINTED | Cooling: | HEAT PUMP/CONV/V | | Exterior Wall/Cover: | WOOD SIDING | Floor Covering: | VINYL TILE | | Floor Structure: | WOOD W/SUBFLOOR | Foundation: | CONCRETE BLOCKS | | Interior Finish: | DRYWALL PAINT | Plumbing Fixture Cnt: | 9 | | Roof Slope: | 4" IN 12" | Roof Structure/Cover: | CJ ASPHALT |
|
| | Type | Description | Class CD | Sub Class CD | Year Built | Area |
| | BAS | BASE/MAIN FLOOR | 3 | 0 | 1959 | 1242.0 |
| | OWP | OPEN WOOD PORCH W/STEPS | 3 | 0 | 1959 | 348.5 |
| | BGR | BASEMENT GARAGE | 3 | 0 | 1959 | 546.0 |
| | DWN | DOWNSTAIRS LIVING AREA | 3 | 0 | 1959 | 696.0 |
| | DGR | DETACHED GARAGE | 3 | 0 | 1959 | 720.0 |
| | OP3 | OPEN PORCH W/ROOF | 3 | 0 | 1959 | 80.0 |
Sketch
Property Image
Land
| 1 | 15 | SQ (12001-21780) | 0.0000 | 0.00 | 0.00 | 0.00 | 1.00 | $210,000 | $0 |
Roll Value History
| 2026 | N/A | N/A | N/A | N/A | N/A |
| 2025 | $260,913 | $210,000 | $0 | $470,913 | $470,913 |
| 2024 | $264,850 | $190,000 | $0 | $454,850 | $454,850 |
| 2023 | $248,068 | $190,000 | $0 | $438,068 | $438,068 |
| 2022 | $228,075 | $180,000 | $0 | $408,075 | $408,075 |
| 2021 | $201,319 | $135,000 | $0 | $336,319 | $336,319 |
| 2020 | $196,998 | $100,000 | $0 | $296,998 | $296,998 |
| 2019 | $137,177 | $150,000 | $0 | $287,177 | $287,177 |
| 2018 | $137,718 | $130,000 | $0 | $267,718 | $267,718 |
| 2017 | $120,120 | $110,000 | $0 | $230,120 | $230,120 |
| 2016 | $122,228 | $90,000 | $0 | $212,228 | $212,228 |
| 2015 | $124,335 | $70,000 | $0 | $194,335 | $194,335 |
| 2014 | $126,442 | $55,000 | $0 | $181,442 | $181,442 |
| 2013 | $128,550 | $55,000 | $0 | $183,550 | $183,550 |
| 2012 | $130,657 | $60,000 | $0 | $190,657 | $190,657 |
| 2011 | $131,315 | $50,000 | $0 | $181,315 | $181,315 |
| 2010 | $142,325 | $50,000 | $0 | $192,325 | $192,325 |
| 2009 | $148,464 | $92,000 | $0 | $240,464 | $240,464 |
| 2008 | $151,161 | $98,000 | $0 | $249,161 | $249,161 |
| 2007 | $153,873 | $98,000 | $0 | $251,873 | $251,873 |
Deed and Sales History
| 1 | 02/26/2022 | QCD | Quit Claim Deed | BAATZ, VIRGINIA D | BAATZ, CHRISTIAN W | | | $0.00 | 52104 | 4540567 |
| 2 | 08/29/2019 | QCD | Quit Claim Deed | BAATZ, VIRGINIA D | BAATZ, CHRISTIAN | | | $0.00 | 40149 | 4470879 |
| 3 | 08/29/2019 | WD | Warranty Deed | PETTY, JASON | BAATZ, CHRISTIAN | | | $295,000.00 | 40148 | 4470878 |
| 4 | 02/16/2010 | WD | Warranty Deed | KLUKSDAHL TTEE, PATRICIA A | PETTY, JASON | | | $223,000.00 | 434 | 4269380 |
| 5 | 06/06/2008 | QCD | Quit Claim Deed | KLUKSDAHL, PATRICIA A | KLUKSDAHL TTEE, PATRICIA A | | | $0.00 | 82865 | 4239412 |
| 6 | 05/02/2008 | PRD | Personal Representatives Deed | Unknown | KLUKSDAHL, PATRICIA A | | | $0.00 | 81746 | 4232153 |
Payout Agreement
| No payout information available.. |