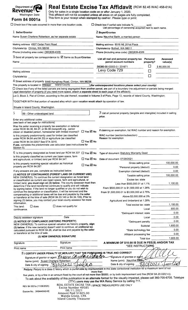
Property
Account |
| Property ID: | 344309 | Abbreviated Legal Description: | P HILL 3 LOT 1 & NWLY 20' LOT 2 EX: BG NWCR LOT 1 S33' S89*E TO RD NWLY ALG RD TPB SEE AF# 354547 & AF#355254 |
| Geographic ID: | S7685-03-00001-0 | Agent Code: | |
| Type: | Real | | |
| Tax Area: | 110 - APPRAISER-OH Schl Dist, outside OH, improved & 1 acre or less | Land Use Code | 11 |
| Open Space: | N | DFL | N |
| Historic Property: | N | Remodel Property: | N |
| Multi-Family Redevelopment: | N | | |
| Township: | | Section: | |
| Range: | |
Location |
| Address: | 1395 SWANTOWN RD OAK HARBOR, WA 98277 | Mapsco: | |
| Neighborhood: | Cycle 1 | Map ID: | 97 |
| Neighborhood CD: | 1 |
Owner |
| Name: | FRASIER, LAURA | Owner ID: | 312541 |
| Mailing Address: | 1395 SWANTOWN RD OAK HARBOR, WA 98277 | % Ownership: | 100.0000000000% |
| | | Exemptions: | |
Taxes and Assessment Details
Values
| (+) Improvement Homesite Value: | + | $0 | |
| (+) Improvement Non-Homesite Value: | + | $233,855 | |
| (+) Land Homesite Value: | + | $0 | |
| (+) Land Non-Homesite Value: | + | $210,000 | |
| (+) Curr Use (HS): | + | $0 | $0 |
| (+) Curr Use (NHS): | + | $0 | $0 |
| | | -------------------------- | |
| (=) Market Value: | = | $443,855 | |
| (–) Productivity Loss: | – | $0 | |
| | | -------------------------- | |
| (=) Subtotal: | = | $443,855 | |
| (+) Senior Appraised Value: | + | $0 | |
| (+) Non-Senior Appraised Value: | + | $443,855 | |
| | | -------------------------- | |
| (=) Total Appraised Value: | = | $443,855 | |
| (–) Senior Exemption Loss: | – | $0 | |
| (–) Exemption Loss: | – | $0 | |
| | | -------------------------- | |
| (=) Taxable Value: | = | $443,855 | |
Taxing Jurisdiction
| Owner: | FRASIER, LAURA | | |
| % Ownership: | 100.0000000000% | | |
| Total Value: | $443,855 | | |
| Tax Area: | 110 - APPRAISER-OH Schl Dist, outside OH, improved & 1 acre or less |
| CF | Conservation Futures | 0.0316035091 | $443,855 | $443,855 | $14.03 | | |
| CEM1 | Cemetery #1 | 0.0040320932 | $443,855 | $443,855 | $1.79 | | |
| FIRE2 | Fire & Rescue Dist #2 N Whidbey GEN | 0.5475949600 | $443,855 | $443,855 | $243.05 | | |
| HOBOND | Hospital BOND | 0.1910887512 | $443,855 | $443,855 | $84.82 | | |
| HOGEN | Hospital GEN | 0.3902502903 | $443,855 | $443,855 | $173.21 | | |
| CE | County Current Expense | 0.3708482477 | $443,855 | $443,855 | $164.60 | | |
| CR | County Roads | 0.4584763726 | $443,855 | $443,855 | $203.50 | | |
| ISLANDEMS | Hospital GEN (EMS) | 0.5000000000 | $443,855 | $443,855 | $221.93 | | |
| LIB | Library Sno-Isle GEN | 0.3153421757 | $443,855 | $443,855 | $139.97 | | |
| NWHIDPRMT | P & R N Whidbey GEN | 0.2004466701 | $443,855 | $443,855 | $88.97 | | |
| SCH201MO | School 201 Enrichment | 1.8559231640 | $443,855 | $443,855 | $823.76 | | |
| ST | State School | 1.3035497053 | $443,855 | $443,855 | $578.59 | | |
| ST2 | State School Part 2 | 0.8169543533 | $443,855 | $443,855 | $362.61 | | |
| | Total Tax Rate: | 6.9861102925 | | | | | |
| | | | | Taxes w/Current Exemptions: | $3,100.83 | | |
| | | | | Taxes w/o Exemptions: | $3,100.83 | | |
Improvement / Building
| Improvement #1: | RESIDENTIAL | State Code: | Y | 1812.0 sqft | Value: | $233,855 |
| Bathrooms: | 2 | Bedrooms: | 3 | | Ceiling: | DRYWALL PAINTED | Exterior Wall/Cover: | WOOD SIDING | | Floor Covering: | HARDWOOD/CARP 60-40 | Floor Structure: | WOOD W/SUBFLOOR | | Foundation: | CONCRETE BLOCKS | Heating: | FHA GAS | | Interior Finish: | DRYWALL PAINT | Plumbing Fixture Cnt: | 9 | | Roof Slope: | 5" IN 12" | Roof Structure/Cover: | CJ ASPHALT |
|
| | Type | Description | Class CD | Sub Class CD | Year Built | Area |
| | BAS | BASE/MAIN FLOOR | 3 | 0 | 1958 | 1812.0 |
| | OP1 | OPEN PORCH SLAB | 3 | 0 | 1958 | 510.0 |
| | OP3 | OPEN PORCH W/ROOF | 3 | 0 | 1958 | 25.0 |
| | AGR | ATTACHED GARAGE | 3 | 0 | 1958 | 276.0 |
Sketch
Property Image
Land
| 1 | 15 | SQ (12001-21780) | 0.0000 | 0.00 | 0.00 | 0.00 | 1.00 | $210,000 | $0 |
Roll Value History
| 2026 | N/A | N/A | N/A | N/A | N/A |
| 2025 | $233,855 | $210,000 | $0 | $443,855 | $443,855 |
| 2024 | $237,232 | $190,000 | $0 | $427,232 | $427,232 |
| 2023 | $227,102 | $190,000 | $0 | $417,102 | $417,102 |
| 2022 | $208,711 | $180,000 | $0 | $388,711 | $388,711 |
| 2021 | $184,147 | $135,000 | $0 | $319,147 | $319,147 |
| 2020 | $180,098 | $100,000 | $0 | $280,098 | $280,098 |
| 2019 | $133,633 | $150,000 | $0 | $283,633 | $283,633 |
| 2018 | $134,101 | $130,000 | $0 | $264,101 | $264,101 |
| 2017 | $115,716 | $110,000 | $0 | $225,716 | $225,716 |
| 2016 | $117,746 | $90,000 | $0 | $207,746 | $207,746 |
| 2015 | $119,775 | $70,000 | $0 | $189,775 | $189,775 |
| 2014 | $121,805 | $55,000 | $0 | $176,805 | $176,805 |
| 2013 | $123,835 | $55,000 | $0 | $178,835 | $178,835 |
| 2012 | $125,866 | $60,000 | $0 | $185,866 | $185,866 |
| 2011 | $116,014 | $50,000 | $0 | $166,014 | $166,014 |
| 2010 | $127,201 | $50,000 | $0 | $177,201 | $177,201 |
| 2009 | $133,112 | $92,000 | $0 | $225,112 | $225,112 |
| 2008 | $135,362 | $98,000 | $0 | $233,362 | $233,362 |
| 2007 | $137,693 | $98,000 | $0 | $235,693 | $235,693 |
Deed and Sales History
| 1 | 05/29/2024 | PRD | Personal Representatives Deed | FRASIER, ROBERT LEE | FRASIER, LAURA | | | $0.00 | 60123 | 4572864 |
| 2 | 02/25/2021 | WD | Warranty Deed | MARKETTI JR, JOSEPH A | FRASIER, ROBERT LEE | | | $350,000.00 | 47182 | 4512488 |
| 3 | 03/01/1989 | WD | Warranty Deed | WILEY, JIMMIE L | MARKETTI, JOSEPH A | | | $62,500.00 | 91172 | 89004091 |
| 4 | 11/01/1972 | PACD | Purchaser's Assignment | Unknown | WILEY, JIMMIE L | | | $0.00 | 58621 | 295129 |
Payout Agreement
| No payout information available.. |