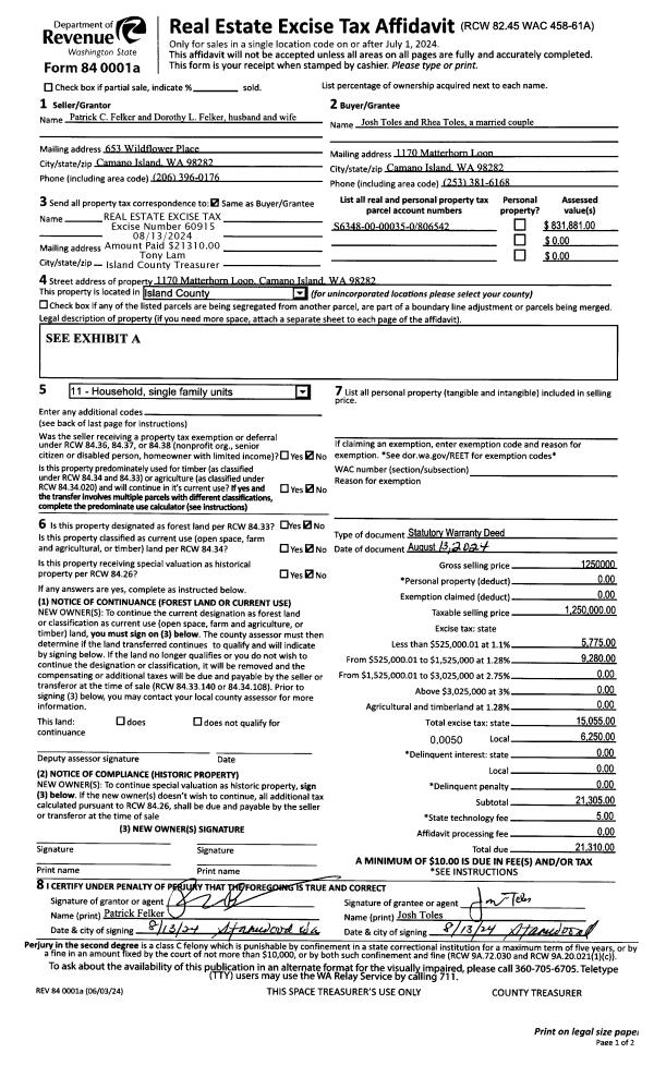
Property
Account |
| Property ID: | 344345 | Abbreviated Legal Description: | P HILL 3 NWLY 110' OF SELY 160' OF LOT 4 MEAS PAR/W SELY LN LOT 4 |
| Geographic ID: | S7685-03-00004-2 | Agent Code: | |
| Type: | Real | | |
| Tax Area: | 110 - APPRAISER-OH Schl Dist, outside OH, improved & 1 acre or less | Land Use Code | 11 |
| Open Space: | N | DFL | N |
| Historic Property: | N | Remodel Property: | N |
| Multi-Family Redevelopment: | N | | |
| Township: | | Section: | |
| Range: | |
Location |
| Address: | 1373 SWANTOWN RD OAK HARBOR, WA 98277 | Mapsco: | |
| Neighborhood: | Cycle 1 | Map ID: | 97 |
| Neighborhood CD: | 1 |
Owner |
| Name: | COBLE, ANH T | Owner ID: | 316506 |
| Mailing Address: | 1373 SWANTOWN RD OAK HARBOR, WA 98277 | % Ownership: | 100.0000000000% |
| | | Exemptions: | |
Taxes and Assessment Details
Values
| (+) Improvement Homesite Value: | + | $0 | |
| (+) Improvement Non-Homesite Value: | + | $206,427 | |
| (+) Land Homesite Value: | + | $0 | |
| (+) Land Non-Homesite Value: | + | $215,000 | |
| (+) Curr Use (HS): | + | $0 | $0 |
| (+) Curr Use (NHS): | + | $0 | $0 |
| | | -------------------------- | |
| (=) Market Value: | = | $421,427 | |
| (–) Productivity Loss: | – | $0 | |
| | | -------------------------- | |
| (=) Subtotal: | = | $421,427 | |
| (+) Senior Appraised Value: | + | $0 | |
| (+) Non-Senior Appraised Value: | + | $421,427 | |
| | | -------------------------- | |
| (=) Total Appraised Value: | = | $421,427 | |
| (–) Senior Exemption Loss: | – | $0 | |
| (–) Exemption Loss: | – | $0 | |
| | | -------------------------- | |
| (=) Taxable Value: | = | $421,427 | |
Taxing Jurisdiction
| Owner: | COBLE, ANH T | | |
| % Ownership: | 100.0000000000% | | |
| Total Value: | $421,427 | | |
| Tax Area: | 110 - APPRAISER-OH Schl Dist, outside OH, improved & 1 acre or less |
| CF | Conservation Futures | 0.0316035091 | $421,427 | $421,427 | $13.32 | | |
| CEM1 | Cemetery #1 | 0.0040320932 | $421,427 | $421,427 | $1.70 | | |
| FIRE2 | Fire & Rescue Dist #2 N Whidbey GEN | 0.5475949600 | $421,427 | $421,427 | $230.77 | | |
| HOBOND | Hospital BOND | 0.1910887512 | $421,427 | $421,427 | $80.53 | | |
| HOGEN | Hospital GEN | 0.3902502903 | $421,427 | $421,427 | $164.46 | | |
| CE | County Current Expense | 0.3708482477 | $421,427 | $421,427 | $156.29 | | |
| CR | County Roads | 0.4584763726 | $421,427 | $421,427 | $193.21 | | |
| ISLANDEMS | Hospital GEN (EMS) | 0.5000000000 | $421,427 | $421,427 | $210.71 | | |
| LIB | Library Sno-Isle GEN | 0.3153421757 | $421,427 | $421,427 | $132.89 | | |
| NWHIDPRMT | P & R N Whidbey GEN | 0.2004466701 | $421,427 | $421,427 | $84.47 | | |
| SCH201MO | School 201 Enrichment | 1.8559231640 | $421,427 | $421,427 | $782.14 | | |
| ST | State School | 1.3035497053 | $421,427 | $421,427 | $549.35 | | |
| ST2 | State School Part 2 | 0.8169543533 | $421,427 | $421,427 | $344.29 | | |
| | Total Tax Rate: | 6.9861102925 | | | | | |
| | | | | Taxes w/Current Exemptions: | $2,944.13 | | |
| | | | | Taxes w/o Exemptions: | $2,944.13 | | |
Improvement / Building
| Improvement #1: | RESIDENTIAL | State Code: | Y | 1636.0 sqft | Value: | $206,427 |
| Bathrooms: | 1.5 | Bedrooms: | 2 | | Ceiling: | DRYWALL PAINTED | Exterior Wall/Cover: | PLY/HARDBOARD T-111 | | Floor Covering: | CARPET/VINYL 80-20 | Floor Structure: | SLAB ON GRADE | | Foundation: | SLAB | Heating: | BASEBOARD ELECTRIC | | Interior Finish: | DRYWALL PAINT | Plumbing Fixture Cnt: | 8 | | Roof Slope: | 3" IN 12" | Roof Structure/Cover: | BEAM ALUMINUM HEAVY |
|
| | Type | Description | Class CD | Sub Class CD | Year Built | Area |
| | BAS | BASE/MAIN FLOOR | 3 | 0 | 1961 | 1636.0 |
| | OP4 | OPEN PORCH W/CEILING-ROOF | 3 | 0 | 1961 | 20.0 |
| | AGR | ATTACHED GARAGE | 3 | 0 | 1961 | 440.0 |
| | OCP | OPEN CARPORT | 3 | 0 | 1961 | 320.0 |
Sketch
Property Image
Land
| 1 | 15 | SQ (12001-21780) | 0.0000 | 0.00 | 0.00 | 0.00 | 1.00 | $215,000 | $0 |
Roll Value History
| 2026 | N/A | N/A | N/A | N/A | N/A |
| 2025 | $206,427 | $215,000 | $0 | $421,427 | $421,427 |
| 2024 | $214,247 | $195,000 | $0 | $409,247 | $409,247 |
| 2023 | $211,280 | $195,000 | $0 | $406,280 | $406,280 |
| 2022 | $194,013 | $185,000 | $0 | $379,013 | $379,013 |
| 2021 | $171,038 | $145,000 | $0 | $316,038 | $316,038 |
| 2020 | $167,061 | $125,000 | $0 | $292,061 | $292,061 |
| 2019 | $121,567 | $165,000 | $0 | $286,567 | $286,567 |
| 2018 | $109,046 | $135,000 | $0 | $244,046 | $244,046 |
| 2017 | $94,922 | $120,000 | $0 | $214,922 | $214,922 |
| 2016 | $96,588 | $100,000 | $0 | $196,588 | $196,588 |
| 2015 | $98,253 | $80,000 | $0 | $178,253 | $178,253 |
| 2014 | $99,918 | $75,000 | $0 | $174,918 | $174,918 |
| 2013 | $102,193 | $75,000 | $0 | $177,193 | $177,193 |
| 2012 | $103,859 | $60,000 | $0 | $163,859 | $163,859 |
| 2011 | $93,870 | $50,000 | $0 | $143,870 | $143,870 |
| 2010 | $103,683 | $50,000 | $0 | $153,683 | $153,683 |
| 2009 | $108,449 | $92,000 | $0 | $200,449 | $200,449 |
| 2008 | $110,117 | $98,000 | $0 | $208,117 | $208,117 |
| 2007 | $111,816 | $98,000 | $0 | $209,816 | $209,816 |
Deed and Sales History
| 1 | 05/19/2025 | QCD | Quit Claim Deed | COBLE, MARK | COBLE, ANH T | | | $0.00 | 63483 | 4585967 |
| 2 | 04/11/2019 | WD | Warranty Deed | JENSON, LYDIA R S | COBLE, MARK | | | $320,000.00 | 37945 | 4460856 |
| 3 | 02/08/2018 | PRD | Personal Representatives Deed | JENSON, BEVERLY JEAN | JENSON, LYDIA R S | | | $0.00 | 33092 | 4439894 |
| 4 | 04/03/2000 | DECREE | Divorce Decree/Legal Separation | JENSON, RICHARD N | JENSON, BEVERLY JEAN | | | $0.00 | 1290 | 20006368 |
| 5 | 09/01/1995 | WD | Warranty Deed | DAVIS, LESTER D | JENSON, RICHARD N | | | $125,000.00 | 53311 | 95015251 |
| 6 | 09/01/1994 | QCD | Quit Claim Deed | DAVIS, LESTER D | DAVIS, LESTER D | | | $0.00 | 43757 | 94019649 |
| 7 | 03/01/1987 | WD | Warranty Deed | TAYLOR, CATHERINE | DAVIS, LESTER D | | | $67,000.00 | 70639 | 87003518 |
| 8 | 11/01/1983 | OTHER | Other - Misc. Documents | , | TAYLOR, CATHERINE | | | $0.00 | 60308 | 0 |
| 9 | 01/01/1900 | OTHER | Other - Misc. Documents | TAYLOR, W A | , | | | $0.00 | 10670 | 0 |
| 10 | 01/01/1900 | OTHER | Other - Misc. Documents | Unknown | TAYLOR, W A | | | $0.00 | 15184 | 0 |
Payout Agreement
| No payout information available.. |