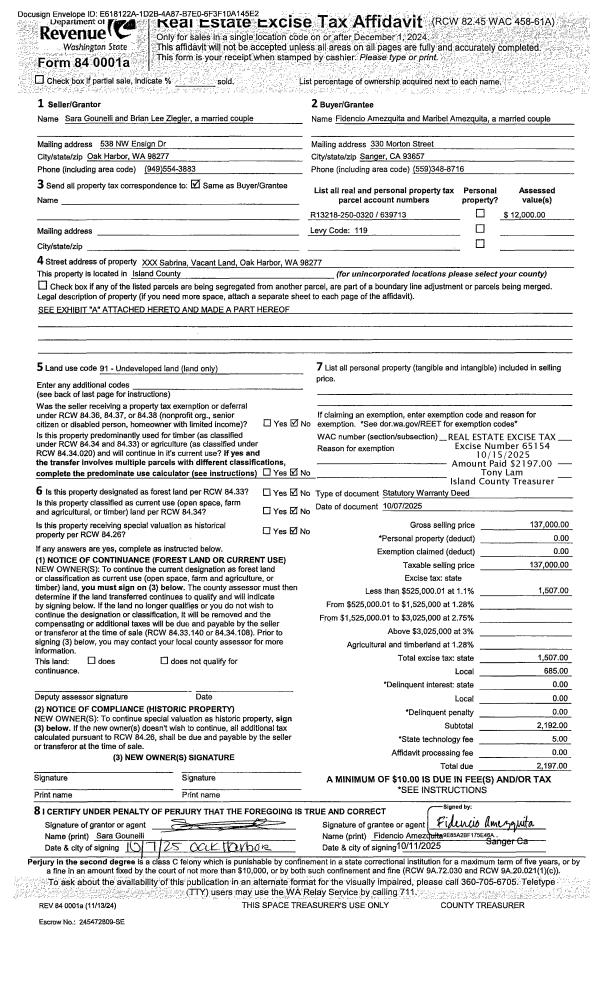
Property
Account |
| Property ID: | 344434 | Abbreviated Legal Description: | P HILL 3 LOT 11 |
| Geographic ID: | S7685-03-00011-0 | Agent Code: | |
| Type: | Real | | |
| Tax Area: | 110 - APPRAISER-OH Schl Dist, outside OH, improved & 1 acre or less | Land Use Code | 11 |
| Open Space: | N | DFL | N |
| Historic Property: | N | Remodel Property: | N |
| Multi-Family Redevelopment: | N | | |
| Township: | | Section: | |
| Range: | |
Location |
| Address: | 1329 SWANTOWN RD OAK HARBOR, WA 98277 | Mapsco: | |
| Neighborhood: | Cycle 1 | Map ID: | 97 |
| Neighborhood CD: | 1 |
Owner |
| Name: | GARCIA JAIMES, MARIA ANGELICA | Owner ID: | 317560 |
| Mailing Address: | 3933 LAKE WASHINGTON BLVD NE KIRKLAND, WA 98033 | % Ownership: | 100.0000000000% |
| | | Exemptions: | |
Taxes and Assessment Details
Values
| (+) Improvement Homesite Value: | + | $0 | |
| (+) Improvement Non-Homesite Value: | + | $231,427 | |
| (+) Land Homesite Value: | + | $0 | |
| (+) Land Non-Homesite Value: | + | $215,000 | |
| (+) Curr Use (HS): | + | $0 | $0 |
| (+) Curr Use (NHS): | + | $0 | $0 |
| | | -------------------------- | |
| (=) Market Value: | = | $446,427 | |
| (–) Productivity Loss: | – | $0 | |
| | | -------------------------- | |
| (=) Subtotal: | = | $446,427 | |
| (+) Senior Appraised Value: | + | $0 | |
| (+) Non-Senior Appraised Value: | + | $446,427 | |
| | | -------------------------- | |
| (=) Total Appraised Value: | = | $446,427 | |
| (–) Senior Exemption Loss: | – | $0 | |
| (–) Exemption Loss: | – | $0 | |
| | | -------------------------- | |
| (=) Taxable Value: | = | $446,427 | |
Taxing Jurisdiction
| Owner: | GARCIA JAIMES, MARIA ANGELICA | | |
| % Ownership: | 100.0000000000% | | |
| Total Value: | $446,427 | | |
| Tax Area: | 110 - APPRAISER-OH Schl Dist, outside OH, improved & 1 acre or less |
| CF | Conservation Futures | 0.0316035091 | $446,427 | $446,427 | $14.11 | | |
| CEM1 | Cemetery #1 | 0.0040320932 | $446,427 | $446,427 | $1.80 | | |
| FIRE2 | Fire & Rescue Dist #2 N Whidbey GEN | 0.5475949600 | $446,427 | $446,427 | $244.46 | | |
| HOBOND | Hospital BOND | 0.1910887512 | $446,427 | $446,427 | $85.31 | | |
| HOGEN | Hospital GEN | 0.3902502903 | $446,427 | $446,427 | $174.22 | | |
| CE | County Current Expense | 0.3708482477 | $446,427 | $446,427 | $165.56 | | |
| CR | County Roads | 0.4584763726 | $446,427 | $446,427 | $204.68 | | |
| ISLANDEMS | Hospital GEN (EMS) | 0.5000000000 | $446,427 | $446,427 | $223.21 | | |
| LIB | Library Sno-Isle GEN | 0.3153421757 | $446,427 | $446,427 | $140.78 | | |
| NWHIDPRMT | P & R N Whidbey GEN | 0.2004466701 | $446,427 | $446,427 | $89.48 | | |
| SCH201MO | School 201 Enrichment | 1.8559231640 | $446,427 | $446,427 | $828.53 | | |
| ST | State School | 1.3035497053 | $446,427 | $446,427 | $581.94 | | |
| ST2 | State School Part 2 | 0.8169543533 | $446,427 | $446,427 | $364.71 | | |
| | Total Tax Rate: | 6.9861102925 | | | | | |
| | | | | Taxes w/Current Exemptions: | $3,118.79 | | |
| | | | | Taxes w/o Exemptions: | $3,118.79 | | |
Improvement / Building
| Improvement #1: | RESIDENTIAL | State Code: | Y | 1338.0 sqft | Value: | $231,427 |
| Bathrooms: | 1 | Bedrooms: | 3 | | Ceiling: | DRYWALL PAINTED | Exterior Wall/Cover: | WOOD SIDING | | Floor Covering: | HARDWOOD/CARP 80-20 | Floor Structure: | WOOD W/SUBFLOOR | | Foundation: | CONCRETE BLOCKS | Heating: | B/B HOT WATER-OIL | | Interior Finish: | DRYWALL PAINT | Plumbing Fixture Cnt: | 6 | | Roof Slope: | 4" IN 12" | Roof Structure/Cover: | CJ ALUMINIUM HEAVY |
|
| | Type | Description | Class CD | Sub Class CD | Year Built | Area |
| | BAS | BASE/MAIN FLOOR | 3 | 0 | 1958 | 1338.0 |
| | OP3 | OPEN PORCH W/ROOF | 3 | 0 | 1958 | 16.0 |
| | AGR | ATTACHED GARAGE | 3 | 0 | 1958 | 494.1 |
| | OWP | OPEN WOOD PORCH W/STEPS | 3 | 0 | 1958 | 430.0 |
Sketch
Property Image
Land
| 1 | 15 | SQ (12001-21780) | 0.0000 | 0.00 | 0.00 | 0.00 | 1.00 | $215,000 | $0 |
Roll Value History
| 2026 | N/A | N/A | N/A | N/A | N/A |
| 2025 | $231,427 | $215,000 | $0 | $446,427 | $446,427 |
| 2024 | $234,769 | $195,000 | $0 | $429,769 | $429,769 |
| 2023 | $231,427 | $195,000 | $0 | $426,427 | $426,427 |
| 2022 | $212,588 | $185,000 | $0 | $397,588 | $397,588 |
| 2021 | $187,495 | $145,000 | $0 | $332,495 | $332,495 |
| 2020 | $183,521 | $125,000 | $0 | $308,521 | $308,521 |
| 2019 | $135,145 | $165,000 | $0 | $300,145 | $300,145 |
| 2018 | $135,606 | $135,000 | $0 | $270,606 | $270,606 |
| 2017 | $89,816 | $110,000 | $0 | $199,816 | $199,816 |
| 2016 | $91,391 | $90,000 | $0 | $181,391 | $181,391 |
| 2015 | $92,966 | $70,000 | $0 | $162,966 | $162,966 |
| 2014 | $94,542 | $55,000 | $0 | $149,542 | $149,542 |
| 2013 | $96,117 | $55,000 | $0 | $151,117 | $151,117 |
| 2012 | $97,692 | $60,000 | $0 | $157,692 | $157,692 |
| 2011 | $96,489 | $50,000 | $0 | $146,489 | $146,489 |
| 2010 | $107,292 | $50,000 | $0 | $157,292 | $157,292 |
| 2009 | $112,579 | $92,000 | $0 | $204,579 | $204,579 |
| 2008 | $114,833 | $98,000 | $0 | $212,833 | $212,833 |
| 2007 | $117,055 | $98,000 | $0 | $215,055 | $215,055 |
Deed and Sales History
| 1 | 07/21/2025 | TRUSTEED | Trustee's Deed | PRICE, SOPHIA | GARCIA JAIMES, MARIA ANGELICA | | | $0.00 | 64311 | 4588930 |
| 2 | 04/13/2023 | WD | Warranty Deed | PETRO, TIMOTHY D | PRICE, SOPHIA | | | $448,500.00 | 56450 | 4558992 |
| 3 | 11/04/2019 | WD | Warranty Deed | HERNANDEZ, CODY A | PETRO, TIMOTHY D | | | $315,000.00 | 41028 | 4475132 |
| 4 | 05/05/2017 | WD | Warranty Deed | CANFIELD, MICHAEL C | HERNANDEZ, CODY A | | | $268,500.00 | 29199 | 4422126 |
| 5 | 04/05/2010 | TRUSTEED | Trustee's Deed | US BANK NATIONAL ASSOCIATION N | CANFIELD, MICHAEL C | | | $145,500.00 | 927 | 4272529 |
| 6 | 07/14/2009 | TRUSTEED | Trustee's Deed | SWAYZER, FRED L | US BANK NATIONAL ASSOCIATION N | | | $157,500.00 | 91604 | 4256328 |
| 7 | 07/01/1994 | WD | Warranty Deed | HASKETT, RICHARD L | SWAYZER, FRED L | | | $110,000.00 | 42908 | 94015915 |
| 8 | 06/01/1990 | WD | Warranty Deed | MORGAN, WM P | HASKETT, RICHARD L | | | $75,000.00 | 3321 | 90010759 |
| 9 | 10/01/1987 | WD | Warranty Deed | CURTIS, MITCHELL D | MORGAN, WM P | | | $0.00 | 73470 | 87015123 |
| 10 | 11/01/1985 | WD | Warranty Deed | CURTIS, MITCHELL D | CURTIS, MITCHELL D | | | $63,350.00 | 53100 | 85012273 |
| 11 | 11/01/1985 | WD | Warranty Deed | COBURN, FRANK | CURTIS, MITCHELL D | | | $0.00 | 53390 | 85013386 |
| 12 | 10/01/1982 | WD | Warranty Deed | FLESHMAN, JAMES J | COBURN, FRANK | | | $58,500.00 | 22502 | 401812 |
| 13 | 02/01/1979 | WD | Warranty Deed | Unknown | FLESHMAN, JAMES J | | | $48,000.00 | 90817 | 348030 |
Payout Agreement
| No payout information available.. |