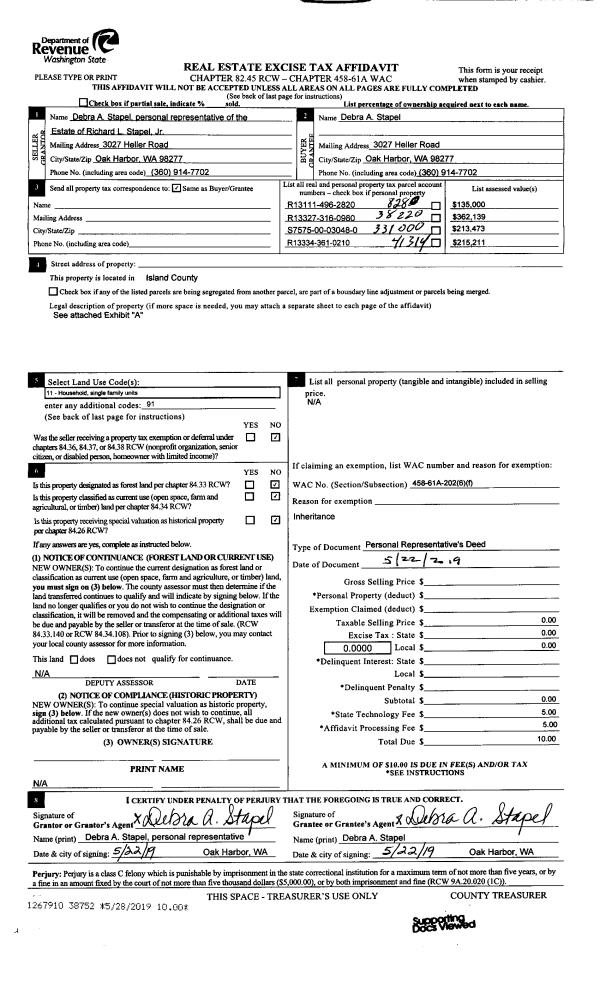
Property
Account |
| Property ID: | 344611 | Abbreviated Legal Description: | PATTONS HILLCREST #4 LOT 82 |
| Geographic ID: | S7685-04-00082-0 | Agent Code: | |
| Type: | Real | | |
| Tax Area: | 110 - APPRAISER-OH Schl Dist, outside OH, improved & 1 acre or less | Land Use Code | 11 |
| Open Space: | N | DFL | N |
| Historic Property: | N | Remodel Property: | N |
| Multi-Family Redevelopment: | N | | |
| Township: | | Section: | |
| Range: | |
Location |
| Address: | 2579 OLYMPIC DR OAK HARBOR, WA 98277 | Mapsco: | |
| Neighborhood: | Cycle 1 | Map ID: | 249 |
| Neighborhood CD: | 1 |
Owner |
| Name: | PERRIGO, CODY QUINTON | Owner ID: | 289306 |
| Mailing Address: | 2579 OLYMPIC DR OAK HARBOR, WA 98277 | % Ownership: | 100.0000000000% |
| | | Exemptions: | |
Taxes and Assessment Details
Values
| (+) Improvement Homesite Value: | + | $0 | |
| (+) Improvement Non-Homesite Value: | + | $287,553 | |
| (+) Land Homesite Value: | + | $0 | |
| (+) Land Non-Homesite Value: | + | $210,000 | |
| (+) Curr Use (HS): | + | $0 | $0 |
| (+) Curr Use (NHS): | + | $0 | $0 |
| | | -------------------------- | |
| (=) Market Value: | = | $497,553 | |
| (–) Productivity Loss: | – | $0 | |
| | | -------------------------- | |
| (=) Subtotal: | = | $497,553 | |
| (+) Senior Appraised Value: | + | $0 | |
| (+) Non-Senior Appraised Value: | + | $497,553 | |
| | | -------------------------- | |
| (=) Total Appraised Value: | = | $497,553 | |
| (–) Senior Exemption Loss: | – | $0 | |
| (–) Exemption Loss: | – | $0 | |
| | | -------------------------- | |
| (=) Taxable Value: | = | $497,553 | |
Taxing Jurisdiction
| Owner: | PERRIGO, CODY QUINTON | | |
| % Ownership: | 100.0000000000% | | |
| Total Value: | $497,553 | | |
| Tax Area: | 110 - APPRAISER-OH Schl Dist, outside OH, improved & 1 acre or less |
| CF | Conservation Futures | 0.0316035091 | $497,553 | $497,553 | $15.72 | | |
| CEM1 | Cemetery #1 | 0.0040320932 | $497,553 | $497,553 | $2.01 | | |
| FIRE2 | Fire & Rescue Dist #2 N Whidbey GEN | 0.5475949600 | $497,553 | $497,553 | $272.46 | | |
| HOBOND | Hospital BOND | 0.1910887512 | $497,553 | $497,553 | $95.08 | | |
| HOGEN | Hospital GEN | 0.3902502903 | $497,553 | $497,553 | $194.17 | | |
| CE | County Current Expense | 0.3708482477 | $497,553 | $497,553 | $184.52 | | |
| CR | County Roads | 0.4584763726 | $497,553 | $497,553 | $228.12 | | |
| ISLANDEMS | Hospital GEN (EMS) | 0.5000000000 | $497,553 | $497,553 | $248.78 | | |
| LIB | Library Sno-Isle GEN | 0.3153421757 | $497,553 | $497,553 | $156.90 | | |
| NWHIDPRMT | P & R N Whidbey GEN | 0.2004466701 | $497,553 | $497,553 | $99.73 | | |
| SCH201MO | School 201 Enrichment | 1.8559231640 | $497,553 | $497,553 | $923.42 | | |
| ST | State School | 1.3035497053 | $497,553 | $497,553 | $648.59 | | |
| ST2 | State School Part 2 | 0.8169543533 | $497,553 | $497,553 | $406.48 | | |
| | Total Tax Rate: | 6.9861102925 | | | | | |
| | | | | Taxes w/Current Exemptions: | $3,475.98 | | |
| | | | | Taxes w/o Exemptions: | $3,475.98 | | |
Improvement / Building
| Improvement #1: | RESIDENTIAL | State Code: | Y | 1497.5 sqft | Value: | $287,553 |
| Bathrooms: | 2 | Bedrooms: | 2 | | Ceiling: | DRYWALL PAINTED | Exterior Wall/Cover: | CEMENT FIBER | | Floor Covering: | HARDWOOD 100% | Floor Structure: | WOOD W/SUBFLOOR | | Foundation: | CONCRETE | Heating: | FHA GAS | | Interior Finish: | DRYWALL PAINT | Plumbing Fixture Cnt: | 9 | | Roof Slope: | 6" IN 12" | Roof Structure/Cover: | CJ ASPHALT |
|
| | Type | Description | Class CD | Sub Class CD | Year Built | Area |
| | BAS | BASE/MAIN FLOOR | 3 | 0 | 2003 | 1497.5 |
| | OP4 | OPEN PORCH W/CEILING-ROOF | 3 | 0 | 2003 | 55.0 |
| | AGR | ATTACHED GARAGE | 3 | 0 | 2003 | 450.0 |
Sketch
Property Image
Land
| 1 | 15 | SQ (12001-21780) | 0.0000 | 0.00 | 0.00 | 0.00 | 1.00 | $210,000 | $0 |
Roll Value History
| 2026 | N/A | N/A | N/A | N/A | N/A |
| 2025 | $287,553 | $210,000 | $0 | $497,553 | $497,553 |
| 2024 | $290,966 | $190,000 | $0 | $480,966 | $480,966 |
| 2023 | $284,140 | $190,000 | $0 | $474,140 | $474,140 |
| 2022 | $260,387 | $180,000 | $0 | $440,387 | $440,387 |
| 2021 | $229,108 | $135,000 | $0 | $364,108 | $364,108 |
| 2020 | $223,282 | $100,000 | $0 | $323,282 | $323,282 |
| 2019 | $162,819 | $150,000 | $0 | $312,819 | $312,819 |
| 2018 | $163,285 | $130,000 | $0 | $293,285 | $293,285 |
| 2017 | $162,569 | $110,000 | $0 | $272,569 | $272,569 |
| 2016 | $164,481 | $90,000 | $0 | $254,481 | $254,481 |
| 2015 | $166,393 | $70,000 | $0 | $236,393 | $236,393 |
| 2014 | $168,306 | $55,000 | $0 | $223,306 | $223,306 |
| 2013 | $170,218 | $55,000 | $0 | $225,218 | $225,218 |
| 2012 | $172,131 | $60,000 | $0 | $232,131 | $232,131 |
| 2011 | $163,728 | $50,000 | $0 | $213,728 | $213,728 |
| 2010 | $167,505 | $50,000 | $0 | $217,505 | $217,505 |
| 2009 | $174,608 | $92,000 | $0 | $266,608 | $266,608 |
| 2008 | $178,444 | $98,000 | $0 | $276,444 | $276,444 |
| 2007 | $178,650 | $98,000 | $0 | $276,650 | $276,650 |
Deed and Sales History
| 1 | 04/18/2019 | WD | Warranty Deed | HEBERT, GREGORY A | PERRIGO, CODY QUINTON | | | $327,000.00 | 38025 | 4461213 |
| 2 | 03/23/2007 | WD | Warranty Deed | SPANGLE, MICHAEL J | HEBERT, GREGORY A | | | $259,700.00 | 71039 | 4198075 |
| 3 | 05/12/2005 | WD | Warranty Deed | HOLDEN, BRANDT E | SPANGLE, MICHAEL J | | | $225,000.00 | 52097 | 4134029 |
| 4 | 02/10/2003 | WD | Warranty Deed | THOMPSON HOME BUILDERS INC, | HOLDEN, BRANDT E | | | $163,500.00 | 30596 | 4047747 |
| 5 | 06/25/2002 | WD | Warranty Deed | HOPKINS, DOROTHY P | THOMPSON HOME BUILDERS INC, | | | $20,750.00 | 22535 | 4024344 |
| 6 | 03/01/1983 | OTHER | Other - Misc. Documents | HOPKINS, GRADY | HOPKINS, DOROTHY P | | | $0.00 | 59889 | 0 |
| 7 | 01/01/1900 | OTHER | Other - Misc. Documents | Unknown | HOPKINS, GRADY | | | $0.00 | 0 | 0 |
Payout Agreement
| No payout information available.. |