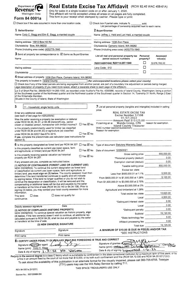
Property
Account |
| Property ID: | 344657 | Abbreviated Legal Description: | PATTON'S HILLCREST 4 LOT 86 |
| Geographic ID: | S7685-04-00086-0 | Agent Code: | |
| Type: | Real | | |
| Tax Area: | 110 - APPRAISER-OH Schl Dist, outside OH, improved & 1 acre or less | Land Use Code | 11 |
| Open Space: | N | DFL | N |
| Historic Property: | N | Remodel Property: | N |
| Multi-Family Redevelopment: | N | | |
| Township: | | Section: | |
| Range: | |
Location |
| Address: | 2578 OLYMPIC DR OAK HARBOR, WA 98277 | Mapsco: | |
| Neighborhood: | Cycle 1 | Map ID: | 249 |
| Neighborhood CD: | 1 |
Owner |
| Name: | HENDRICKS, ZACHARY | Owner ID: | 300494 |
| Mailing Address: | JASMINE HENDRICKS 98 CASE RD OAK HARBOR, WA 98277 | % Ownership: | 100.0000000000% |
| | | Exemptions: | |
Taxes and Assessment Details
Values
| (+) Improvement Homesite Value: | + | $0 | |
| (+) Improvement Non-Homesite Value: | + | $216,927 | |
| (+) Land Homesite Value: | + | $0 | |
| (+) Land Non-Homesite Value: | + | $210,000 | |
| (+) Curr Use (HS): | + | $0 | $0 |
| (+) Curr Use (NHS): | + | $0 | $0 |
| | | -------------------------- | |
| (=) Market Value: | = | $426,927 | |
| (–) Productivity Loss: | – | $0 | |
| | | -------------------------- | |
| (=) Subtotal: | = | $426,927 | |
| (+) Senior Appraised Value: | + | $0 | |
| (+) Non-Senior Appraised Value: | + | $426,927 | |
| | | -------------------------- | |
| (=) Total Appraised Value: | = | $426,927 | |
| (–) Senior Exemption Loss: | – | $0 | |
| (–) Exemption Loss: | – | $0 | |
| | | -------------------------- | |
| (=) Taxable Value: | = | $426,927 | |
Taxing Jurisdiction
| Owner: | HENDRICKS, ZACHARY | | |
| % Ownership: | 100.0000000000% | | |
| Total Value: | $426,927 | | |
| Tax Area: | 110 - APPRAISER-OH Schl Dist, outside OH, improved & 1 acre or less |
| CF | Conservation Futures | 0.0316035091 | $426,927 | $426,927 | $13.49 | | |
| CEM1 | Cemetery #1 | 0.0040320932 | $426,927 | $426,927 | $1.72 | | |
| FIRE2 | Fire & Rescue Dist #2 N Whidbey GEN | 0.5475949600 | $426,927 | $426,927 | $233.78 | | |
| HOBOND | Hospital BOND | 0.1910887512 | $426,927 | $426,927 | $81.58 | | |
| HOGEN | Hospital GEN | 0.3902502903 | $426,927 | $426,927 | $166.61 | | |
| CE | County Current Expense | 0.3708482477 | $426,927 | $426,927 | $158.33 | | |
| CR | County Roads | 0.4584763726 | $426,927 | $426,927 | $195.74 | | |
| ISLANDEMS | Hospital GEN (EMS) | 0.5000000000 | $426,927 | $426,927 | $213.46 | | |
| LIB | Library Sno-Isle GEN | 0.3153421757 | $426,927 | $426,927 | $134.63 | | |
| NWHIDPRMT | P & R N Whidbey GEN | 0.2004466701 | $426,927 | $426,927 | $85.58 | | |
| SCH201MO | School 201 Enrichment | 1.8559231640 | $426,927 | $426,927 | $792.34 | | |
| ST | State School | 1.3035497053 | $426,927 | $426,927 | $556.52 | | |
| ST2 | State School Part 2 | 0.8169543533 | $426,927 | $426,927 | $348.78 | | |
| | Total Tax Rate: | 6.9861102925 | | | | | |
| | | | | Taxes w/Current Exemptions: | $2,982.56 | | |
| | | | | Taxes w/o Exemptions: | $2,982.56 | | |
Improvement / Building
| Improvement #1: | RESIDENTIAL | State Code: | Y | 1232.0 sqft | Value: | $216,927 |
| Bathrooms: | 2 | Bedrooms: | 3 | | Ceiling: | DRYWALL PAINTED | Exterior Wall/Cover: | WOOD SIDING | | Floor Covering: | HARDWOOD/CARP 20-80 | Floor Structure: | WOOD W/SUBFLOOR | | Foundation: | CONCRETE | Heating: | HEAT PUMP | | Interior Finish: | DRYWALL PAINT | Plumbing Fixture Cnt: | 9 | | Roof Slope: | 4" IN 12" | Roof Structure/Cover: | CJ ASPHALT |
|
| | Type | Description | Class CD | Sub Class CD | Year Built | Area |
| | BAS | BASE/MAIN FLOOR | 3 | 0 | 1980 | 1232.0 |
| | OP1 | OPEN PORCH SLAB | 3 | 0 | 1980 | 200.0 |
| | OP3 | OPEN PORCH W/ROOF | 3 | 0 | 1980 | 48.0 |
| | AGR | ATTACHED GARAGE | 3 | 0 | 1980 | 528.0 |
Sketch
Property Image
Land
| 1 | 15 | SQ (12001-21780) | 0.0000 | 0.00 | 0.00 | 0.00 | 1.00 | $210,000 | $0 |
Roll Value History
| 2026 | N/A | N/A | N/A | N/A | N/A |
| 2025 | $216,927 | $210,000 | $0 | $426,927 | $426,927 |
| 2024 | $216,329 | $190,000 | $0 | $406,329 | $406,329 |
| 2023 | $203,368 | $190,000 | $0 | $393,368 | $393,368 |
| 2022 | $186,735 | $180,000 | $0 | $366,735 | $366,735 |
| 2021 | $164,625 | $135,000 | $0 | $299,625 | $299,625 |
| 2020 | $160,427 | $100,000 | $0 | $260,427 | $260,427 |
| 2019 | $113,232 | $150,000 | $0 | $263,232 | $263,232 |
| 2018 | $113,607 | $130,000 | $0 | $243,607 | $243,607 |
| 2017 | $111,350 | $110,000 | $0 | $221,350 | $221,350 |
| 2016 | $103,845 | $90,000 | $0 | $193,845 | $193,845 |
| 2015 | $105,395 | $70,000 | $0 | $175,395 | $175,395 |
| 2014 | $106,946 | $55,000 | $0 | $161,946 | $161,946 |
| 2013 | $108,495 | $55,000 | $0 | $163,495 | $163,495 |
| 2012 | $110,046 | $60,000 | $0 | $170,046 | $170,046 |
| 2011 | $111,595 | $50,000 | $0 | $161,595 | $161,595 |
| 2010 | $119,664 | $50,000 | $0 | $169,664 | $169,664 |
| 2009 | $83,152 | $92,000 | $0 | $175,152 | $175,152 |
| 2008 | $84,237 | $98,000 | $0 | $182,237 | $182,237 |
| 2007 | $85,321 | $98,000 | $0 | $183,321 | $183,321 |
Deed and Sales History
| 1 | 07/27/2021 | WD | Warranty Deed | WYSINGER, WILLIAM | HENDRICKS, ZACHARY | | | $400,000.00 | 49442 | 4525894 |
| 2 | 06/10/2016 | WD | Warranty Deed | MCFADDEN, MICAHEL P | WYSINGER, WILLIAM | | | $225,000.00 | 24901 | 4401759 |
| 3 | 08/21/2015 | QCD | Quit Claim Deed | MCFADDEN, MICHAEL P | MCFADDEN, MICAHEL P | | | $9,055.00 | 24900 | 4401758 |
| 4 | 07/20/2006 | WD | Warranty Deed | MESA CAPITAL LLC, | MCFADDEN, MICHAEL P | | | $157,500.00 | 63342 | 4177808 |
| 5 | 06/26/2006 | WD | Warranty Deed | KIRKPATRICK, JOHN T | MESA CAPITAL LLC, | | | $75,000.00 | 62949 | 4175243 |
| 6 | 09/01/1981 | WD | Warranty Deed | KOETJE, GORDON | KIRKPATRICK, JOHN T | | | $64,500.00 | 12852 | 387849 |
| 7 | 08/01/1980 | WD | Warranty Deed | PATTON, LLOYD B | KOETJE, GORDON | | | $11,000.00 | 2712 | 372401 |
| 8 | 01/01/1900 | OTHER | Other - Misc. Documents | Unknown | PATTON, LLOYD B | | | $0.00 | 0 | 0 |
Payout Agreement
| No payout information available.. |