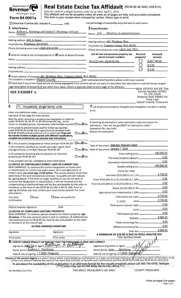
Property
Account |
| Property ID: | 345399 | Abbreviated Legal Description: | PATTONS PASTURE S62' OF LOTS 10 & 11 BLK A COMBINED WITH 0A010-2 |
| Geographic ID: | S7690-00-0A011-0 | Agent Code: | |
| Type: | Real | | |
| Tax Area: | 100 - APPRAISER-OH Schl Dist, in OH | Land Use Code | 11 |
| Open Space: | N | DFL | N |
| Historic Property: | N | Remodel Property: | N |
| Multi-Family Redevelopment: | N | | |
| Township: | | Section: | |
| Range: | |
Location |
| Address: | 286 SE GLENCOE ST OAK HARBOR, WA 98277 | Mapsco: | |
| Neighborhood: | Cycle 1 | Map ID: | 88 |
| Neighborhood CD: | 1 |
Owner |
| Name: | ROMERO, MIGUEL A | Owner ID: | 314454 |
| Mailing Address: | 286 SOUTHEAST GLENCOE ST OAK HARBOR, WA 98277 | % Ownership: | 100.0000000000% |
| | | Exemptions: | |
Taxes and Assessment Details
Values
| (+) Improvement Homesite Value: | + | $0 | |
| (+) Improvement Non-Homesite Value: | + | $180,590 | |
| (+) Land Homesite Value: | + | $0 | |
| (+) Land Non-Homesite Value: | + | $180,000 | |
| (+) Curr Use (HS): | + | $0 | $0 |
| (+) Curr Use (NHS): | + | $0 | $0 |
| | | -------------------------- | |
| (=) Market Value: | = | $360,590 | |
| (–) Productivity Loss: | – | $0 | |
| | | -------------------------- | |
| (=) Subtotal: | = | $360,590 | |
| (+) Senior Appraised Value: | + | $0 | |
| (+) Non-Senior Appraised Value: | + | $360,590 | |
| | | -------------------------- | |
| (=) Total Appraised Value: | = | $360,590 | |
| (–) Senior Exemption Loss: | – | $0 | |
| (–) Exemption Loss: | – | $0 | |
| | | -------------------------- | |
| (=) Taxable Value: | = | $360,590 | |
Taxing Jurisdiction
| Owner: | ROMERO, MIGUEL A | | |
| % Ownership: | 100.0000000000% | | |
| Total Value: | $360,590 | | |
| Tax Area: | 100 - APPRAISER-OH Schl Dist, in OH |
| CF | Conservation Futures | 0.0316035091 | $360,590 | $360,590 | $11.40 | | |
| CEM1 | Cemetery #1 | 0.0040320932 | $360,590 | $360,590 | $1.45 | | |
| COH | City of Oak Harbor | 2.3001546061 | $360,590 | $360,590 | $829.41 | | |
| OAKBOND | City of Oak Harbor BOND | 0.1926904192 | $360,590 | $360,590 | $69.48 | | |
| HOBOND | Hospital BOND | 0.1910887512 | $360,590 | $360,590 | $68.90 | | |
| HOGEN | Hospital GEN | 0.3902502903 | $360,590 | $360,590 | $140.72 | | |
| CE | County Current Expense | 0.3708482477 | $360,590 | $360,590 | $133.72 | | |
| ISLANDEMS | Hospital GEN (EMS) | 0.5000000000 | $360,590 | $360,590 | $180.30 | | |
| LIB | Library Sno-Isle GEN | 0.3153421757 | $360,590 | $360,590 | $113.71 | | |
| NWHIDPRMT | P & R N Whidbey GEN | 0.2004466701 | $360,590 | $360,590 | $72.28 | | |
| SCH201MO | School 201 Enrichment | 1.8559231640 | $360,590 | $360,590 | $669.23 | | |
| ST | State School | 1.3035497053 | $360,590 | $360,590 | $470.05 | | |
| ST2 | State School Part 2 | 0.8169543533 | $360,590 | $360,590 | $294.59 | | |
| | Total Tax Rate: | 8.4728839852 | | | | | |
| | | | | Taxes w/Current Exemptions: | $3,055.24 | | |
| | | | | Taxes w/o Exemptions: | $3,055.24 | | |
Improvement / Building
| Improvement #1: | RESIDENTIAL | State Code: | Y | 1120.0 sqft | Value: | $180,590 |
| Bathrooms: | 1 | Bedrooms: | 2 | | Ceiling: | DRYWALL PAINTED | Exterior Wall/Cover: | VINYL | | Floor Covering: | VINYL/HARDWOOD 20-80 | Floor Structure: | SLAB ON GRADE | | Foundation: | SLAB | Heating: | FHA GAS | | Interior Finish: | DRYWALL PAINT | Plumbing Fixture Cnt: | 6 | | Roof Slope: | 6" IN 12" | Roof Structure/Cover: | CJ ASPHALT |
|
| | Type | Description | Class CD | Sub Class CD | Year Built | Area |
| | BAS | BASE/MAIN FLOOR | 3 | 0 | 1949 | 1120.0 |
| | OP4 | OPEN PORCH W/CEILING-ROOF | 3 | 0 | 1949 | 25.0 |
Sketch
| No sketches available for this property. |
Property Image
Land
| 1 | 13 | SQ (06001-08000) | 0.0000 | 0.00 | 0.00 | 0.00 | 1.00 | $180,000 | $0 |
Roll Value History
| 2026 | N/A | N/A | N/A | N/A | N/A |
| 2025 | $180,590 | $180,000 | $0 | $360,590 | $360,590 |
| 2024 | $182,869 | $170,000 | $0 | $352,869 | $352,869 |
| 2023 | $173,351 | $170,000 | $0 | $343,351 | $343,351 |
| 2022 | $158,321 | $160,000 | $0 | $318,321 | $318,321 |
| 2021 | $139,413 | $120,000 | $0 | $259,413 | $259,413 |
| 2020 | $125,500 | $100,000 | $0 | $225,500 | $225,500 |
| 2019 | $89,516 | $140,000 | $0 | $229,516 | $229,516 |
| 2018 | $89,792 | $125,000 | $0 | $214,792 | $214,792 |
| 2017 | $79,108 | $110,000 | $0 | $189,108 | $189,108 |
| 2016 | $80,271 | $90,000 | $0 | $170,271 | $170,271 |
| 2015 | $81,435 | $70,000 | $0 | $151,435 | $151,435 |
| 2014 | $82,598 | $55,000 | $0 | $137,598 | $137,598 |
| 2013 | $83,762 | $55,000 | $0 | $138,762 | $138,762 |
| 2012 | $84,925 | $60,000 | $0 | $144,925 | $144,925 |
| 2011 | $94,135 | $50,000 | $0 | $144,135 | $144,135 |
| 2010 | $99,292 | $50,000 | $0 | $149,292 | $149,292 |
| 2009 | $103,541 | $60,000 | $0 | $163,541 | $163,541 |
| 2008 | $104,839 | $72,000 | $0 | $176,839 | $176,839 |
| 2007 | $106,130 | $72,000 | $0 | $178,130 | $178,130 |
Deed and Sales History
| 1 | 08/16/2024 | BARGSLD | Bargain And Sale Deed | SINCERE, CORBIN JACK | ROMERO, MIGUEL A | | | $390,000.00 | 61745 | 4578045 |
| 2 | 05/03/2021 | WD | Warranty Deed | HAYES, BRIAN C | SINCERE, CORBIN JACK | | | $335,000.00 | 48126 | 4518391 |
| 3 | 05/03/2018 | WD | Warranty Deed | MITCHELL, DONNA J | HAYES, BRIAN C | | | $235,000.00 | 33963 | 4443751 |
| 4 | 03/25/2008 | QCD | Quit Claim Deed | MITCHELL, DONNA J | MITCHELL, DONNA J | | | $0.00 | 81702 | 4232586 |
| 5 | 12/30/2005 | QCD | Quit Claim Deed | MITCHELL, DONNA J | MITCHELL, DONNA J | | | $0.00 | 56481 | 4158520 |
| 6 | 12/30/2005 | QCD | Quit Claim Deed | MITCHELL, DONNA J | MITCHELL, DONNA J | | | $0.00 | 56480 | 4158519 |
| 7 | 07/19/2005 | TRUSTEED | Trustee's Deed | CENTEX HOME EQUITY CO, | MITCHELL, DONNA J | | | $139,050.00 | 53638 | 4142395 |
| 8 | 12/29/2004 | TRUSTEED | Trustee's Deed | SPADARO, MARK S | CENTEX HOME EQUITY CO, | | | $121,893.00 | 50005 | 4122828 |
| 9 | 05/01/1995 | WD | Warranty Deed | SPADARO, MARK S | SPADARO, MARK S | | | $86,000.00 | 51959 | 95009094 |
| 10 | 05/01/1995 | WD | Warranty Deed | WAITE, ALMA C | SPADARO, MARK S | | | $0.00 | 52273 | 95010424 |
| 11 | 04/01/1992 | WD | Warranty Deed | MIDWAY, EAST L | WAITE, ALMA C | | | $69,000.00 | 21547 | 92007459 |
| 12 | 01/01/1992 | WD | Warranty Deed | PETERS, MALCOLM B | MIDWAY, EAST L | | | $70,000.00 | 20168 | 92000677 |
| 13 | 12/01/1981 | WD | Warranty Deed | EARNHART, HOWARD M | PETERS, MALCOLM B | | | $47,900.00 | 13730 | 390968 |
| 14 | 01/01/1980 | WD | Warranty Deed | SMITH, DOUGLAS | EARNHART, HOWARD M | | | $37,931.00 | 68 | 363716 |
| 15 | 07/01/1979 | WD | Warranty Deed | CHASON, ELVYN C | SMITH, DOUGLAS | | | $38,000.00 | 93850 | 356806 |
| 16 | 01/01/1900 | OTHER | Other - Misc. Documents | Unknown | CHASON, ELVYN C | | | $0.00 | 0 | 0 |
Payout Agreement
| No payout information available.. |