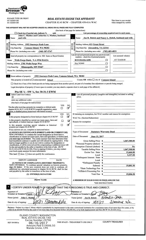
Property
Account |
| Property ID: | 345718 | Abbreviated Legal Description: | PATTONS PASTURE S58 1/2' OF LOT 8 BLK D |
| Geographic ID: | S7690-00-0D008-0 | Agent Code: | |
| Type: | Real | | |
| Tax Area: | 100 - APPRAISER-OH Schl Dist, in OH | Land Use Code | 99 |
| Open Space: | N | DFL | N |
| Historic Property: | N | Remodel Property: | N |
| Multi-Family Redevelopment: | N | | |
| Township: | | Section: | |
| Range: | |
Location |
| Address: | | Mapsco: | |
| Neighborhood: | Cycle 1 | Map ID: | 88 |
| Neighborhood CD: | 1 |
Owner |
| Name: | CHRISTOPHERSON, DAR | Owner ID: | 281313 |
| Mailing Address: | KATHERINE CHRISTOPHERSON 347 SE GLENCOE ST OAK HARBOR, WA 98277 | % Ownership: | 100.0000000000% |
| | | Exemptions: | |
Taxes and Assessment Details
Values
| (+) Improvement Homesite Value: | + | $0 | |
| (+) Improvement Non-Homesite Value: | + | $0 | |
| (+) Land Homesite Value: | + | $0 | |
| (+) Land Non-Homesite Value: | + | $12,000 | |
| (+) Curr Use (HS): | + | $0 | $0 |
| (+) Curr Use (NHS): | + | $0 | $0 |
| | | -------------------------- | |
| (=) Market Value: | = | $12,000 | |
| (–) Productivity Loss: | – | $0 | |
| | | -------------------------- | |
| (=) Subtotal: | = | $12,000 | |
| (+) Senior Appraised Value: | + | $0 | |
| (+) Non-Senior Appraised Value: | + | $12,000 | |
| | | -------------------------- | |
| (=) Total Appraised Value: | = | $12,000 | |
| (–) Senior Exemption Loss: | – | $0 | |
| (–) Exemption Loss: | – | $0 | |
| | | -------------------------- | |
| (=) Taxable Value: | = | $12,000 | |
Taxing Jurisdiction
| Owner: | CHRISTOPHERSON, DAR | | |
| % Ownership: | 100.0000000000% | | |
| Total Value: | $12,000 | | |
| Tax Area: | 100 - APPRAISER-OH Schl Dist, in OH |
| CF | Conservation Futures | 0.0316035091 | $12,000 | $12,000 | $0.38 | | |
| CEM1 | Cemetery #1 | 0.0040320932 | $12,000 | $12,000 | $0.05 | | |
| COH | City of Oak Harbor | 2.3001546061 | $12,000 | $12,000 | $27.60 | | |
| OAKBOND | City of Oak Harbor BOND | 0.1926904192 | $12,000 | $12,000 | $2.31 | | |
| HOBOND | Hospital BOND | 0.1910887512 | $12,000 | $12,000 | $2.29 | | |
| HOGEN | Hospital GEN | 0.3902502903 | $12,000 | $12,000 | $4.68 | | |
| CE | County Current Expense | 0.3708482477 | $12,000 | $12,000 | $4.45 | | |
| ISLANDEMS | Hospital GEN (EMS) | 0.5000000000 | $12,000 | $12,000 | $6.00 | | |
| LIB | Library Sno-Isle GEN | 0.3153421757 | $12,000 | $12,000 | $3.78 | | |
| NWHIDPRMT | P & R N Whidbey GEN | 0.2004466701 | $12,000 | $12,000 | $2.41 | | |
| SCH201MO | School 201 Enrichment | 1.8559231640 | $12,000 | $12,000 | $22.27 | | |
| ST | State School | 1.3035497053 | $12,000 | $12,000 | $15.64 | | |
| ST2 | State School Part 2 | 0.8169543533 | $12,000 | $12,000 | $9.80 | | |
| | Total Tax Rate: | 8.4728839852 | | | | | |
| | | | | Taxes w/Current Exemptions: | $101.66 | | |
| | | | | Taxes w/o Exemptions: | $101.66 | | |
Improvement / Building
Sketch
| No sketches available for this property. |
Property Image
Land
| 1 | 12 | SQ (00000-06000) | 0.0000 | 0.00 | 0.00 | 0.00 | 1.00 | $12,000 | $0 |
Roll Value History
| 2026 | N/A | N/A | N/A | N/A | N/A |
| 2025 | $0 | $12,000 | $0 | $12,000 | $12,000 |
| 2024 | $0 | $12,000 | $0 | $12,000 | $12,000 |
| 2023 | $0 | $9,000 | $0 | $9,000 | $9,000 |
| 2022 | $0 | $9,000 | $0 | $9,000 | $9,000 |
| 2021 | $0 | $7,000 | $0 | $7,000 | $7,000 |
| 2020 | $0 | $7,000 | $0 | $7,000 | $7,000 |
| 2019 | $0 | $5,000 | $0 | $5,000 | $5,000 |
| 2018 | $0 | $5,000 | $0 | $5,000 | $5,000 |
| 2017 | $0 | $7,500 | $0 | $7,500 | $7,500 |
| 2016 | $0 | $7,500 | $0 | $7,500 | $7,500 |
| 2015 | $0 | $7,500 | $0 | $7,500 | $7,500 |
| 2014 | $0 | $7,500 | $0 | $7,500 | $7,500 |
| 2013 | $0 | $7,500 | $0 | $7,500 | $7,500 |
| 2012 | $0 | $7,500 | $0 | $7,500 | $7,500 |
| 2011 | $0 | $7,500 | $0 | $7,500 | $7,500 |
| 2010 | $0 | $7,500 | $0 | $7,500 | $7,500 |
| 2009 | $0 | $9,000 | $0 | $9,000 | $9,000 |
| 2008 | $0 | $10,800 | $0 | $10,800 | $10,800 |
| 2007 | $0 | $12,000 | $0 | $12,000 | $12,000 |
Deed and Sales History
| 1 | 08/07/2017 | WD | Warranty Deed | CHRISTOPHERSON, KIT | CHRISTOPHERSON, DAR | | | $295,000.00 | 30520 | 4427711 |
|   | |
| 2 | 09/28/2011 | WD | Warranty Deed | WALLEY, WAYNE R | CHRISTOPHERSON, KIT | | | $8,500.00 | 5674 | 4302037 |
| 3 | 12/03/2002 | WD | Warranty Deed | VAN, WAZER, M | WALLEY, WAYNE R | | | $12,341.00 | 24876 | 4039625 |
| 4 | 01/01/1993 | WD | Warranty Deed | MADIGAN, RICHARD W | VAN, WAZER, M | | | $15,500.00 | 40265 | 94001569 |
| 5 | 02/01/1989 | WD | Warranty Deed | GOHEEN, JAMES M | MADIGAN, RICHARD W | | | $6,000.00 | 90508 | 89001748 |
| 6 | 06/01/1980 | TRUSTEED | Trustee's Deed | MERKL, DAVID J | GOHEEN, JAMES M | | | $45,500.00 | 2320 | 371007 |
| 7 | 01/01/1900 | OTHER | Other - Misc. Documents | Unknown | MERKL, DAVID J | | | $0.00 | 0 | 0 |
Payout Agreement
| No payout information available.. |