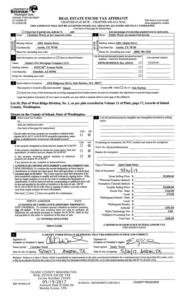
Property
Account |
| Property ID: | 345745 | Abbreviated Legal Description: | PATTONS 1ST ADD LOT 1 |
| Geographic ID: | S7690-01-00001-0 | Agent Code: | |
| Type: | Real | | |
| Tax Area: | 100 - APPRAISER-OH Schl Dist, in OH | Land Use Code | 11 |
| Open Space: | N | DFL | N |
| Historic Property: | N | Remodel Property: | N |
| Multi-Family Redevelopment: | N | | |
| Township: | | Section: | |
| Range: | |
Location |
| Address: | 480 SE ELY ST OAK HARBOR, WA 98277 | Mapsco: | |
| Neighborhood: | Cycle 1 | Map ID: | 88 |
| Neighborhood CD: | 1 |
Owner |
| Name: | BARROW, CODY | Owner ID: | 300220 |
| Mailing Address: | HAYLEY BARROW 480 SE ELY ST OAK HARBOR, WA 98277 | % Ownership: | 100.0000000000% |
| | | Exemptions: | |
Taxes and Assessment Details
Values
| (+) Improvement Homesite Value: | + | $0 | |
| (+) Improvement Non-Homesite Value: | + | $286,271 | |
| (+) Land Homesite Value: | + | $0 | |
| (+) Land Non-Homesite Value: | + | $180,000 | |
| (+) Curr Use (HS): | + | $0 | $0 |
| (+) Curr Use (NHS): | + | $0 | $0 |
| | | -------------------------- | |
| (=) Market Value: | = | $466,271 | |
| (–) Productivity Loss: | – | $0 | |
| | | -------------------------- | |
| (=) Subtotal: | = | $466,271 | |
| (+) Senior Appraised Value: | + | $0 | |
| (+) Non-Senior Appraised Value: | + | $466,271 | |
| | | -------------------------- | |
| (=) Total Appraised Value: | = | $466,271 | |
| (–) Senior Exemption Loss: | – | $0 | |
| (–) Exemption Loss: | – | $0 | |
| | | -------------------------- | |
| (=) Taxable Value: | = | $466,271 | |
Taxing Jurisdiction
| Owner: | BARROW, CODY | | |
| % Ownership: | 100.0000000000% | | |
| Total Value: | $466,271 | | |
| Tax Area: | 100 - APPRAISER-OH Schl Dist, in OH |
| CF | Conservation Futures | 0.0316035091 | $466,271 | $466,271 | $14.74 | | |
| CEM1 | Cemetery #1 | 0.0040320932 | $466,271 | $466,271 | $1.88 | | |
| COH | City of Oak Harbor | 2.3001546061 | $466,271 | $466,271 | $1,072.50 | | |
| OAKBOND | City of Oak Harbor BOND | 0.1926904192 | $466,271 | $466,271 | $89.85 | | |
| HOBOND | Hospital BOND | 0.1910887512 | $466,271 | $466,271 | $89.10 | | |
| HOGEN | Hospital GEN | 0.3902502903 | $466,271 | $466,271 | $181.96 | | |
| CE | County Current Expense | 0.3708482477 | $466,271 | $466,271 | $172.92 | | |
| ISLANDEMS | Hospital GEN (EMS) | 0.5000000000 | $466,271 | $466,271 | $233.14 | | |
| LIB | Library Sno-Isle GEN | 0.3153421757 | $466,271 | $466,271 | $147.03 | | |
| NWHIDPRMT | P & R N Whidbey GEN | 0.2004466701 | $466,271 | $466,271 | $93.46 | | |
| SCH201MO | School 201 Enrichment | 1.8559231640 | $466,271 | $466,271 | $865.36 | | |
| ST | State School | 1.3035497053 | $466,271 | $466,271 | $607.81 | | |
| ST2 | State School Part 2 | 0.8169543533 | $466,271 | $466,271 | $380.92 | | |
| | Total Tax Rate: | 8.4728839852 | | | | | |
| | | | | Taxes w/Current Exemptions: | $3,950.67 | | |
| | | | | Taxes w/o Exemptions: | $3,950.67 | | |
Improvement / Building
| Improvement #1: | RESIDENTIAL | State Code: | Y | 1653.5 sqft | Value: | $286,271 |
| Bathrooms: | 2 | Bedrooms: | 4 | | Ceiling: | DRYWALL PAINTED | Exterior Wall/Cover: | WOOD SIDING | | Floor Covering: | HARDWOOD/CARP 60-40 | Floor Structure: | SLAB ON GRADE | | Foundation: | SLAB/CONCRETE | Heating: | FHA GAS | | Interior Finish: | DRYWALL PAINT | Plumbing Fixture Cnt: | 10 | | Roof Slope: | 4" IN 12" | Roof Structure/Cover: | CJ ASPHALT |
|
| | Type | Description | Class CD | Sub Class CD | Year Built | Area |
| | BAS | BASE/MAIN FLOOR | 3 | 0 | 1954 | 1653.5 |
| | OP3 | OPEN PORCH W/ROOF | 3 | 0 | 1954 | 76.0 |
| | AGR | ATTACHED GARAGE | 3 | 0 | 1954 | 312.0 |
| | UTY | STORAGE/UTILITY | 3 | 0 | 1954 | 100.0 |
| | UTY | STORAGE/UTILITY | 3 | 0 | 1954 | 100.0 |
Sketch
Property Image
Land
| 1 | 14 | SQ (08001-12000) | 0.0000 | 0.00 | 0.00 | 0.00 | 1.00 | $180,000 | $0 |
Roll Value History
| 2026 | N/A | N/A | N/A | N/A | N/A |
| 2025 | $286,271 | $180,000 | $0 | $466,271 | $466,271 |
| 2024 | $289,883 | $170,000 | $0 | $459,883 | $459,883 |
| 2023 | $297,252 | $170,000 | $0 | $467,252 | $467,252 |
| 2022 | $272,479 | $160,000 | $0 | $432,479 | $432,479 |
| 2021 | $228,017 | $125,000 | $0 | $353,017 | $353,017 |
| 2020 | $222,117 | $100,000 | $0 | $322,117 | $322,117 |
| 2019 | $161,931 | $140,000 | $0 | $301,931 | $301,931 |
| 2018 | $162,417 | $125,000 | $0 | $287,417 | $287,417 |
| 2017 | $158,158 | $110,000 | $0 | $268,158 | $268,158 |
| 2016 | $160,087 | $90,000 | $0 | $250,087 | $250,087 |
| 2015 | $162,015 | $70,000 | $0 | $232,015 | $232,015 |
| 2014 | $163,945 | $55,000 | $0 | $218,945 | $218,945 |
| 2013 | $165,872 | $55,000 | $0 | $220,872 | $88,349 |
| 2012 | $167,802 | $60,000 | $0 | $227,802 | $91,121 |
| 2011 | $196,864 | $50,000 | $0 | $246,864 | $98,746 |
| 2010 | $204,572 | $50,000 | $0 | $254,572 | $101,829 |
| 2009 | $213,189 | $60,000 | $0 | $273,189 | $109,276 |
| 2008 | $215,853 | $71,951 | $0 | $287,804 | $111,351 |
| 2007 | $184,131 | $71,607 | $0 | $255,738 | $97,614 |
Deed and Sales History
| 1 | 07/13/2021 | WD | Warranty Deed | CHEA, MALEN | BARROW, CODY | | | $450,000.00 | 49172 | 4524517 |
| 2 | 07/09/2018 | WD | Warranty Deed | SCHNEIDER, CHRISTEN L. | CHEA, MALEN | | | $315,500.00 | 35002 | 4447977 |
| 3 | 11/18/2014 | WD | Warranty Deed | WILCOX, MARGARET LYNNE | SCHNEIDER, CHRISTEN L. | | | $240,000.00 | 17574 | 4368641 |
| 4 | 10/11/2005 | WD | Warranty Deed | WASICKANIN, DONNA M | WILCOX, MARGARET LYNNE | | | $155,000.00 | 55165 | 4150518 |
| 5 | 05/01/1995 | WD | Warranty Deed | GERMAN, FAIRY J | WASICKANIN, DONNA M | | | $120,000.00 | 51724 | 95008149 |
| 6 | 08/01/1991 | QCD | Quit Claim Deed | ALLEN, ROBERT N | GERMAN, FAIRY J | | | $0.00 | 13017 | 91012868 |
| 7 | 08/01/1991 | WD | Warranty Deed | GERMAN, FAIRY J | ALLEN, ROBERT N | | | $89,000.00 | 13018 | 91012869 |
| 8 | 04/01/1984 | WD | Warranty Deed | MASON, STUART J | GERMAN, FAIRY J | | | $65,000.00 | 41065 | 423508 |
| 9 | 01/01/1900 | OTHER | Other - Misc. Documents | Unknown | MASON, STUART J | | | $0.00 | 0 | 0 |
Payout Agreement
| No payout information available.. |