| 1 | 05/13/2024 | WD | Warranty Deed | EVANS, ZACHARY | ANGEL, MIGUEL | | | $410,000.00 | 59958 | 4572368 |
| 2 | 01/19/2022 | QCD | Quit Claim Deed | EVANS, ZACHARY | EVANS, ZACHARY | | | $0.00 | 51706 | 4538217 |
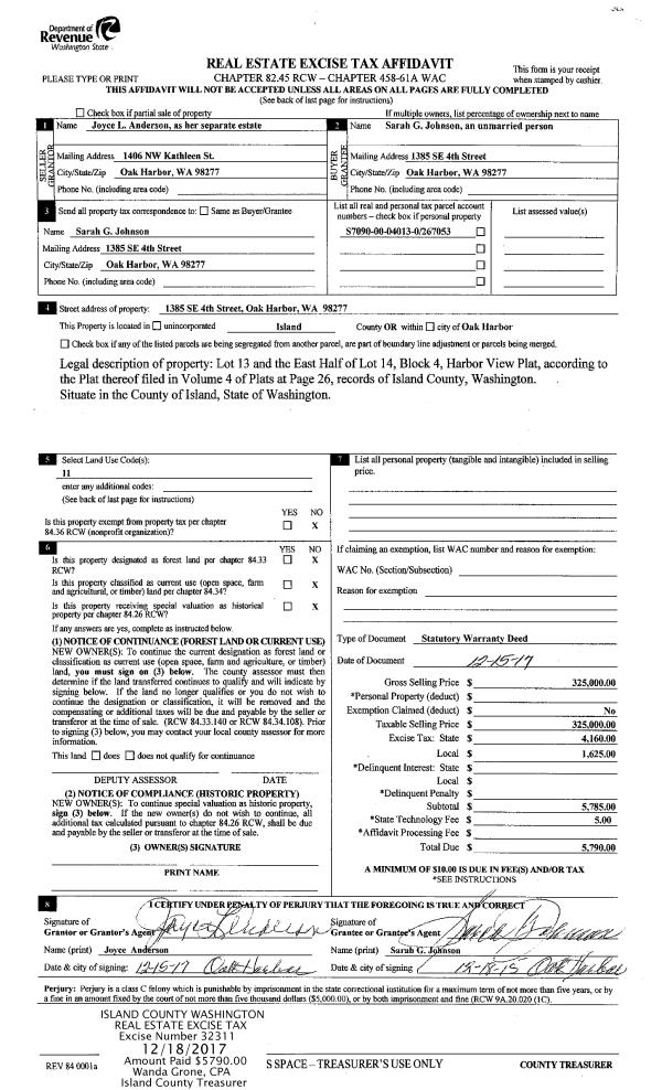
| 3 | 12/11/2017 | WD | Warranty Deed | KOLDEWYN, JONATHAN | EVANS, ZACHARY | | | $255,000.00 | 32274 | 4435726 |
| 4 | 07/20/2011 | WD | Warranty Deed | HOFFMAN TRUSTEE, JANE ANN | KOLDEWYN, JONATHAN | | | $190,000.00 | 5057 | 4298655 |
| 5 | 04/28/2011 | QCD | Quit Claim Deed | HOFFMAN TRUSTEE, JANE ANN | HOFFMAN TRUSTEE, JANE ANN | | | $0.00 | 4962 | 4298081 |
| 6 | 04/28/2011 | QCD | Quit Claim Deed | HOFFMAN, JANE ANN | HOFFMAN TRUSTEE, JANE ANN | | | $0.00 | 4423 | 4295166 |
| 7 | 04/28/2011 | QCD | Quit Claim Deed | HOFFMAN TRUSTEE, JANE ANN | HOFFMAN, JANE ANN | | | $0.00 | 4438 | 4295314 |
| 8 | 05/06/2005 | 5 | DNU - Marriage License/Name Change | KING, ROBERT E | KING, ROBERT E | | | $0.00 | 54637 | 4147766 |
| 9 | 02/01/1992 | OTHER | Other - Misc. Documents | KING, ROBERT E | KING, ROBERT E | | | $0.00 | 64696 | 212800 |
| 10 | 01/01/1900 | OTHER | Other - Misc. Documents | Unknown | KING, ROBERT E | | | $0.00 | 0 | 0 |