Property
Account |
| Property ID: | 345843 | Abbreviated Legal Description: | PATTONS 1ST ADD LOT 11 & PT L 10 LY W OF ELN LOT 8 PROD N TO S LINE LOT 11 |
| Geographic ID: | S7690-01-00011-0 | Agent Code: | |
| Type: | Real | | |
| Tax Area: | 100 - APPRAISER-OH Schl Dist, in OH | Land Use Code | 11 |
| Open Space: | N | DFL | N |
| Historic Property: | N | Remodel Property: | N |
| Multi-Family Redevelopment: | N | | |
| Township: | | Section: | |
| Range: | |
Location |
| Address: | 667 SE 4TH AVE OAK HARBOR, WA 98277 | Mapsco: | |
| Neighborhood: | Cycle 1 | Map ID: | 88 |
| Neighborhood CD: | 1 |
Owner |
| Name: | ALLEN, KEVIN C | Owner ID: | 203235 |
| Mailing Address: | CYNTHIA M ALLEN 2839 SW BERWICK DR OAK HARBOR, WA 98277 | % Ownership: | 100.0000000000% |
| | | Exemptions: | |
Taxes and Assessment Details
Values
| (+) Improvement Homesite Value: | + | $0 | |
| (+) Improvement Non-Homesite Value: | + | $171,823 | |
| (+) Land Homesite Value: | + | $0 | |
| (+) Land Non-Homesite Value: | + | $180,000 | |
| (+) Curr Use (HS): | + | $0 | $0 |
| (+) Curr Use (NHS): | + | $0 | $0 |
| | | -------------------------- | |
| (=) Market Value: | = | $351,823 | |
| (–) Productivity Loss: | – | $0 | |
| | | -------------------------- | |
| (=) Subtotal: | = | $351,823 | |
| (+) Senior Appraised Value: | + | $0 | |
| (+) Non-Senior Appraised Value: | + | $351,823 | |
| | | -------------------------- | |
| (=) Total Appraised Value: | = | $351,823 | |
| (–) Senior Exemption Loss: | – | $0 | |
| (–) Exemption Loss: | – | $0 | |
| | | -------------------------- | |
| (=) Taxable Value: | = | $351,823 | |
Taxing Jurisdiction
| Owner: | ALLEN, KEVIN C | | |
| % Ownership: | 100.0000000000% | | |
| Total Value: | $351,823 | | |
| Tax Area: | 100 - APPRAISER-OH Schl Dist, in OH |
| CF | Conservation Futures | 0.0316035091 | $351,823 | $351,823 | $11.12 | | |
| CEM1 | Cemetery #1 | 0.0040320932 | $351,823 | $351,823 | $1.42 | | |
| COH | City of Oak Harbor | 2.3001546061 | $351,823 | $351,823 | $809.25 | | |
| OAKBOND | City of Oak Harbor BOND | 0.1926904192 | $351,823 | $351,823 | $67.79 | | |
| HOBOND | Hospital BOND | 0.1910887512 | $351,823 | $351,823 | $67.23 | | |
| HOGEN | Hospital GEN | 0.3902502903 | $351,823 | $351,823 | $137.30 | | |
| CE | County Current Expense | 0.3708482477 | $351,823 | $351,823 | $130.47 | | |
| ISLANDEMS | Hospital GEN (EMS) | 0.5000000000 | $351,823 | $351,823 | $175.91 | | |
| LIB | Library Sno-Isle GEN | 0.3153421757 | $351,823 | $351,823 | $110.94 | | |
| NWHIDPRMT | P & R N Whidbey GEN | 0.2004466701 | $351,823 | $351,823 | $70.52 | | |
| SCH201MO | School 201 Enrichment | 1.8559231640 | $351,823 | $351,823 | $652.96 | | |
| ST | State School | 1.3035497053 | $351,823 | $351,823 | $458.62 | | |
| ST2 | State School Part 2 | 0.8169543533 | $351,823 | $351,823 | $287.42 | | |
| | Total Tax Rate: | 8.4728839852 | | | | | |
| | | | | Taxes w/Current Exemptions: | $2,980.95 | | |
| | | | | Taxes w/o Exemptions: | $2,980.95 | | |
Improvement / Building
| Improvement #1: | RESIDENTIAL | State Code: | Y | 977.0 sqft | Value: | $171,823 |
| Bathrooms: | 1 | Bedrooms: | 3 | | Ceiling: | DRYWALL PAINTED | Exterior Wall/Cover: | ASBESTOES/ASPHALT | | Floor Covering: | CARPET/VINYL 80-20 | Floor Structure: | WOOD W/SUBFLOOR | | Foundation: | CONCRETE | Heating: | FHA GAS | | Interior Finish: | DRYWALL PAINT | Plumbing Fixture Cnt: | 6 | | Roof Slope: | 5" IN 12" | Roof Structure/Cover: | CJ ASPHALT |
|
| | Type | Description | Class CD | Sub Class CD | Year Built | Area |
| | BAS | BASE/MAIN FLOOR | 3 | 0 | 1953 | 977.0 |
| | OP1 | OPEN PORCH SLAB | 3 | 0 | 1953 | 540.0 |
| | OCP | OPEN CARPORT | 3 | 0 | 1953 | 272.0 |
| | UTY | STORAGE/UTILITY | 3 | 0 | 1953 | 176.0 |
Sketch
Property Image
Land
| 1 | 14 | SQ (08001-12000) | 0.0000 | 0.00 | 0.00 | 0.00 | 1.00 | $180,000 | $0 |
Roll Value History
| 2026 | N/A | N/A | N/A | N/A | N/A |
| 2025 | $171,823 | $180,000 | $0 | $351,823 | $351,823 |
| 2024 | $174,076 | $170,000 | $0 | $344,076 | $344,076 |
| 2023 | $169,569 | $170,000 | $0 | $339,569 | $339,569 |
| 2022 | $155,581 | $160,000 | $0 | $315,581 | $315,581 |
| 2021 | $137,070 | $125,000 | $0 | $262,070 | $262,070 |
| 2020 | $133,611 | $100,000 | $0 | $233,611 | $233,611 |
| 2019 | $95,726 | $140,000 | $0 | $235,726 | $235,726 |
| 2018 | $96,027 | $125,000 | $0 | $221,027 | $221,027 |
| 2017 | $75,346 | $110,000 | $0 | $185,346 | $185,346 |
| 2016 | $76,525 | $90,000 | $0 | $166,525 | $166,525 |
| 2015 | $77,702 | $70,000 | $0 | $147,702 | $147,702 |
| 2014 | $78,879 | $55,000 | $0 | $133,879 | $133,879 |
| 2013 | $80,056 | $55,000 | $0 | $135,056 | $135,056 |
| 2012 | $81,234 | $60,000 | $0 | $141,234 | $141,234 |
| 2011 | $79,961 | $50,000 | $0 | $129,961 | $129,961 |
| 2010 | $85,324 | $50,000 | $0 | $135,324 | $135,324 |
| 2009 | $89,175 | $60,000 | $0 | $149,175 | $149,175 |
| 2008 | $90,406 | $72,000 | $0 | $162,406 | $162,406 |
| 2007 | $91,638 | $72,000 | $0 | $163,638 | $163,638 |
Deed and Sales History
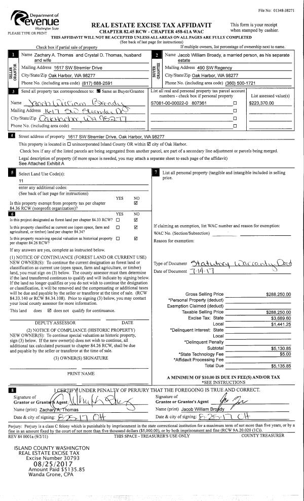
| 1 | 06/08/2017 | WD | Warranty Deed | ALLEN, KEVIN C | ALLEN, KEVIN C | | | $0.00 | 29688 | 4424027 |
| 2 | 01/08/2002 | WD | Warranty Deed | COOTER, ROBERT A | ALLEN, KEVIN C | | | $102,500.00 | 20207 | 4008582 |
| 3 | 09/01/1985 | WD | Warranty Deed | CHERRY, MELVIN D | COOTER, ROBERT A | | | $41,000.00 | 52478 | 85009768 |
| 4 | 01/01/1900 | OTHER | Other - Misc. Documents | Unknown | CHERRY, MELVIN D | | | $0.00 | 0 | 0 |
Payout Agreement
| No payout information available.. |