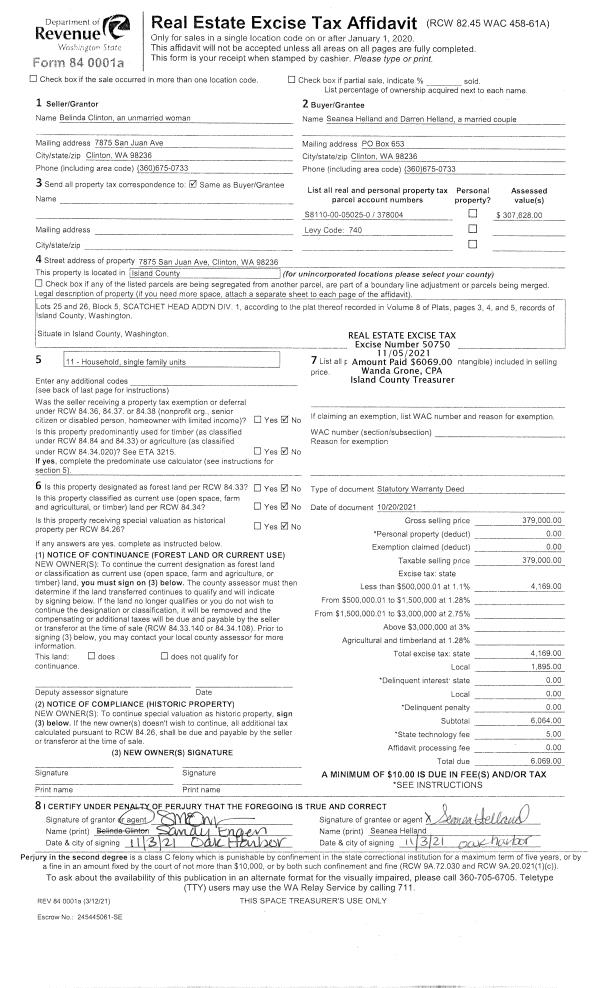
Property
Account |
| Property ID: | 346646 | Abbreviated Legal Description: | PATTONS RETREAT PT L22 B2: BG SE CR L22 W212'TPB N265.34' S79*W122 .43' S241.05' E120'TPB TR 22-C SP73-062 TGW E40' OF LOT 21 BLK 2 |
| Geographic ID: | S7695-00-02022-1 | Agent Code: | |
| Type: | Real | | |
| Tax Area: | 110 - APPRAISER-OH Schl Dist, outside OH, improved & 1 acre or less | Land Use Code | 11 |
| Open Space: | N | DFL | N |
| Historic Property: | N | Remodel Property: | N |
| Multi-Family Redevelopment: | N | | |
| Township: | | Section: | |
| Range: | |
Location |
| Address: | 752 WOODY PLACE OAK HARBOR, WA 98277 | Mapsco: | |
| Neighborhood: | Cycle 6 | Map ID: | 636 |
| Neighborhood CD: | 6 |
Owner |
| Name: | RIGGLES, GEORGINA M | Owner ID: | 298860 |
| Mailing Address: | 752 WOODY PL OAK HARBOR, WA 98277 | % Ownership: | 100.0000000000% |
| | | Exemptions: | |
Taxes and Assessment Details
Values
| (+) Improvement Homesite Value: | + | $0 | |
| (+) Improvement Non-Homesite Value: | + | $278,854 | |
| (+) Land Homesite Value: | + | $0 | |
| (+) Land Non-Homesite Value: | + | $200,000 | |
| (+) Curr Use (HS): | + | $0 | $0 |
| (+) Curr Use (NHS): | + | $0 | $0 |
| | | -------------------------- | |
| (=) Market Value: | = | $478,854 | |
| (–) Productivity Loss: | – | $0 | |
| | | -------------------------- | |
| (=) Subtotal: | = | $478,854 | |
| (+) Senior Appraised Value: | + | $0 | |
| (+) Non-Senior Appraised Value: | + | $478,854 | |
| | | -------------------------- | |
| (=) Total Appraised Value: | = | $478,854 | |
| (–) Senior Exemption Loss: | – | $0 | |
| (–) Exemption Loss: | – | $0 | |
| | | -------------------------- | |
| (=) Taxable Value: | = | $478,854 | |
Taxing Jurisdiction
| Owner: | RIGGLES, GEORGINA M | | |
| % Ownership: | 100.0000000000% | | |
| Total Value: | $478,854 | | |
| Tax Area: | 110 - APPRAISER-OH Schl Dist, outside OH, improved & 1 acre or less |
| CF | Conservation Futures | 0.0316035091 | $478,854 | $478,854 | $15.13 | | |
| CEM1 | Cemetery #1 | 0.0040320932 | $478,854 | $478,854 | $1.93 | | |
| FIRE2 | Fire & Rescue Dist #2 N Whidbey GEN | 0.5475949600 | $478,854 | $478,854 | $262.22 | | |
| HOBOND | Hospital BOND | 0.1910887512 | $478,854 | $478,854 | $91.50 | | |
| HOGEN | Hospital GEN | 0.3902502903 | $478,854 | $478,854 | $186.87 | | |
| CE | County Current Expense | 0.3708482477 | $478,854 | $478,854 | $177.58 | | |
| CR | County Roads | 0.4584763726 | $478,854 | $478,854 | $219.54 | | |
| ISLANDEMS | Hospital GEN (EMS) | 0.5000000000 | $478,854 | $478,854 | $239.43 | | |
| LIB | Library Sno-Isle GEN | 0.3153421757 | $478,854 | $478,854 | $151.00 | | |
| NWHIDPRMT | P & R N Whidbey GEN | 0.2004466701 | $478,854 | $478,854 | $95.98 | | |
| SCH201MO | School 201 Enrichment | 1.8559231640 | $478,854 | $478,854 | $888.72 | | |
| ST | State School | 1.3035497053 | $478,854 | $478,854 | $624.21 | | |
| ST2 | State School Part 2 | 0.8169543533 | $478,854 | $478,854 | $391.20 | | |
| | Total Tax Rate: | 6.9861102925 | | | | | |
| | | | | Taxes w/Current Exemptions: | $3,345.31 | | |
| | | | | Taxes w/o Exemptions: | $3,345.31 | | |
Improvement / Building
| Improvement #1: | RESIDENTIAL | State Code: | Y | 1483.0 sqft | Value: | $278,854 |
| Bathrooms: | 2 | Bedrooms: | 4 | | Ceiling: | DRY WALL SPRAYED | Exterior Wall/Cover: | PLY/HARDBOARD T-111 | | Floor Covering: | CARPET/VINYL 80-20 | Floor Structure: | WOOD W/SUBFLOOR | | Foundation: | CONCRETE | Heating: | BASEBOARD ELECTRIC | | Interior Finish: | DRYWALL PAINT | Plumbing Fixture Cnt: | 9 | | Roof Slope: | 5" IN 12" | Roof Structure/Cover: | ALUM LIGHT |
|
| | Type | Description | Class CD | Sub Class CD | Year Built | Area |
| | BAS | BASE/MAIN FLOOR | 3 | 0 | 1974 | 1483.0 |
| | AGR | ATTACHED GARAGE | 3 | 0 | 1974 | 396.0 |
| | OP4 | OPEN PORCH W/CEILING-ROOF | 3 | 0 | 1974 | 16.0 |
| | UTY | STORAGE/UTILITY | 3 | 0 | 1974 | 1840.0 |
Sketch
Property Image
Land
| 1 | 16 | AC (00.51-01.00) | 0.0000 | 0.00 | 0.00 | 0.00 | 1.00 | $200,000 | $0 |
Roll Value History
| 2026 | N/A | N/A | N/A | N/A | N/A |
| 2025 | $278,854 | $200,000 | $0 | $478,854 | $478,854 |
| 2024 | $268,468 | $190,000 | $0 | $458,468 | $458,468 |
| 2023 | $271,588 | $190,000 | $0 | $461,588 | $461,588 |
| 2022 | $211,476 | $160,000 | $0 | $371,476 | $371,476 |
| 2021 | $187,001 | $130,000 | $0 | $317,001 | $317,001 |
| 2020 | $182,524 | $130,000 | $0 | $312,524 | $312,524 |
| 2019 | $133,917 | $185,000 | $0 | $318,917 | $318,917 |
| 2018 | $134,339 | $165,000 | $0 | $299,339 | $299,339 |
| 2017 | $135,185 | $150,000 | $0 | $285,185 | $285,185 |
| 2016 | $106,214 | $90,000 | $0 | $196,214 | $196,214 |
| 2015 | $107,858 | $85,000 | $0 | $192,858 | $192,858 |
| 2014 | $109,500 | $80,000 | $0 | $189,500 | $189,500 |
| 2013 | $111,143 | $80,000 | $0 | $191,143 | $191,143 |
| 2012 | $112,786 | $85,500 | $0 | $198,286 | $198,286 |
| 2011 | $114,429 | $95,000 | $0 | $209,429 | $209,429 |
| 2010 | $129,207 | $95,000 | $0 | $224,207 | $224,207 |
| 2009 | $134,853 | $105,000 | $0 | $239,853 | $239,853 |
| 2008 | $137,216 | $103,600 | $0 | $240,816 | $240,816 |
| 2007 | $139,484 | $103,600 | $0 | $243,084 | $243,084 |
Deed and Sales History
| 1 | 04/12/2021 | PRD | Personal Representatives Deed | RIGGLES, JAMES T | RIGGLES, GEORGINA M | | | $0.00 | 47745 | 4516379 |
| 2 | 10/01/1996 | BLA | DNU - Boundary Line Adjustment | RIGGLES, JAMES T | RIGGLES, JAMES T | | | $0.00 | 67138 | 96017261 |
| 3 | 01/01/1900 | OTHER | Other - Misc. Documents | Unknown | RIGGLES, JAMES T | | | $0.00 | 0 | 0 |
Payout Agreement
| No payout information available.. |