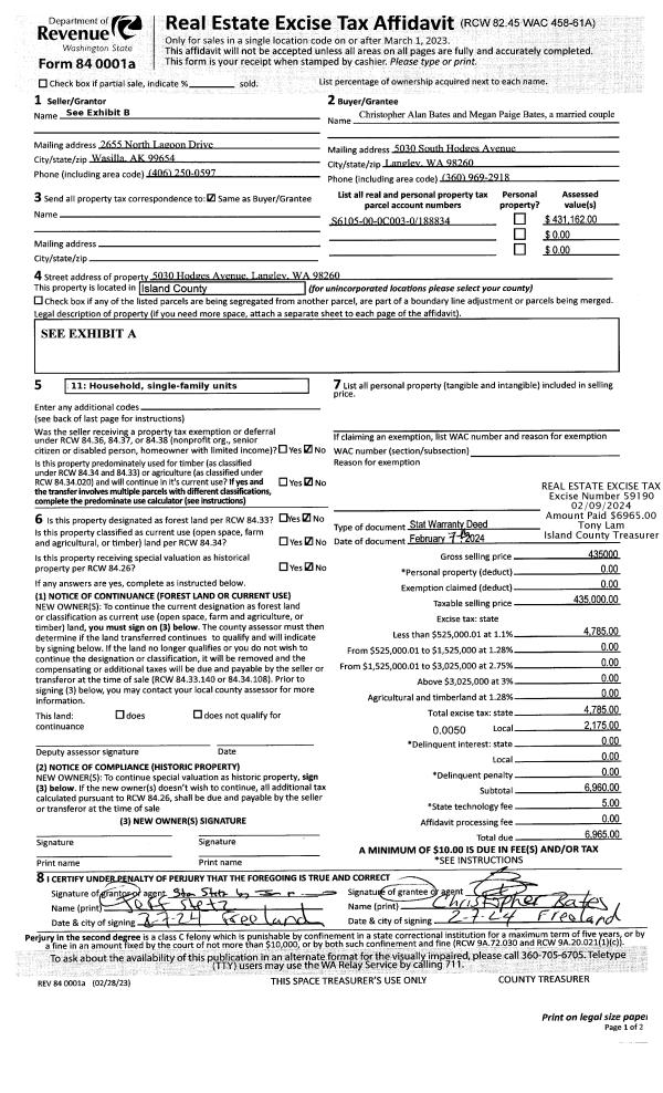
Property
Account |
| Property ID: | 346691 | Abbreviated Legal Description: | PATTONS SUNSET BCH LOT 1 INCL ADJ TIDES |
| Geographic ID: | S7700-00-00001-0 | Agent Code: | |
| Type: | Real | | |
| Tax Area: | 110 - APPRAISER-OH Schl Dist, outside OH, improved & 1 acre or less | Land Use Code | 11 |
| Open Space: | N | DFL | N |
| Historic Property: | N | Remodel Property: | N |
| Multi-Family Redevelopment: | N | | |
| Township: | | Section: | |
| Range: | |
Location |
| Address: | 2603 WEST BEACH RD OAK HARBOR, WA 98277 | Mapsco: | |
| Neighborhood: | Cycle 1 | Map ID: | 246 |
| Neighborhood CD: | 1 |
Owner |
| Name: | MCNAMARA TTEE, LINDA L | Owner ID: | 298221 |
| Mailing Address: | 1237 RAINIER LN OAK HARBOR, WA 98277 | % Ownership: | 100.0000000000% |
| | | Exemptions: | |
Taxes and Assessment Details
Values
| (+) Improvement Homesite Value: | + | $0 | |
| (+) Improvement Non-Homesite Value: | + | $148,433 | |
| (+) Land Homesite Value: | + | $0 | |
| (+) Land Non-Homesite Value: | + | $500,500 | |
| (+) Curr Use (HS): | + | $0 | $0 |
| (+) Curr Use (NHS): | + | $0 | $0 |
| | | -------------------------- | |
| (=) Market Value: | = | $648,933 | |
| (–) Productivity Loss: | – | $0 | |
| | | -------------------------- | |
| (=) Subtotal: | = | $648,933 | |
| (+) Senior Appraised Value: | + | $0 | |
| (+) Non-Senior Appraised Value: | + | $648,933 | |
| | | -------------------------- | |
| (=) Total Appraised Value: | = | $648,933 | |
| (–) Senior Exemption Loss: | – | $0 | |
| (–) Exemption Loss: | – | $0 | |
| | | -------------------------- | |
| (=) Taxable Value: | = | $648,933 | |
Taxing Jurisdiction
| Owner: | MCNAMARA TTEE, LINDA L | | |
| % Ownership: | 100.0000000000% | | |
| Total Value: | $648,933 | | |
| Tax Area: | 110 - APPRAISER-OH Schl Dist, outside OH, improved & 1 acre or less |
| CF | Conservation Futures | 0.0316035091 | $648,933 | $648,933 | $20.51 | | |
| CEM1 | Cemetery #1 | 0.0040320932 | $648,933 | $648,933 | $2.62 | | |
| FIRE2 | Fire & Rescue Dist #2 N Whidbey GEN | 0.5475949600 | $648,933 | $648,933 | $355.35 | | |
| HOBOND | Hospital BOND | 0.1910887512 | $648,933 | $648,933 | $124.00 | | |
| HOGEN | Hospital GEN | 0.3902502903 | $648,933 | $648,933 | $253.25 | | |
| CE | County Current Expense | 0.3708482477 | $648,933 | $648,933 | $240.66 | | |
| CR | County Roads | 0.4584763726 | $648,933 | $648,933 | $297.52 | | |
| ISLANDEMS | Hospital GEN (EMS) | 0.5000000000 | $648,933 | $648,933 | $324.47 | | |
| LIB | Library Sno-Isle GEN | 0.3153421757 | $648,933 | $648,933 | $204.64 | | |
| NWHIDPRMT | P & R N Whidbey GEN | 0.2004466701 | $648,933 | $648,933 | $130.08 | | |
| SCH201MO | School 201 Enrichment | 1.8559231640 | $648,933 | $648,933 | $1,204.37 | | |
| ST | State School | 1.3035497053 | $648,933 | $648,933 | $845.92 | | |
| ST2 | State School Part 2 | 0.8169543533 | $648,933 | $648,933 | $530.15 | | |
| | Total Tax Rate: | 6.9861102925 | | | | | |
| | | | | Taxes w/Current Exemptions: | $4,533.54 | | |
| | | | | Taxes w/o Exemptions: | $4,533.54 | | |
Improvement / Building
| Improvement #1: | RESIDENTIAL | State Code: | Y | 850.0 sqft | Value: | $148,433 |
| Bathrooms: | 1 | Bedrooms: | 2 | | Ceiling: | DRYWALL PAINTED | Exterior Wall/Cover: | SHINGLE | | Floor Covering: | CARPET/VINYL 80-20 | Floor Structure: | WOOD W/SUBFLOOR | | Foundation: | CONCRETE | Heating: | BASEBOARD ELECTRIC | | Interior Finish: | DRYWALL PAINT | Plumbing Fixture Cnt: | 6 | | Roof Slope: | 4" IN 12" | Roof Structure/Cover: | CJ ALUMINIUM HEAVY |
|
| | Type | Description | Class CD | Sub Class CD | Year Built | Area |
| | BAS | BASE/MAIN FLOOR | 3 | 0 | 1979 | 850.0 |
| | OWP | OPEN WOOD PORCH W/STEPS | 3 | 0 | 1979 | 248.0 |
| | OWP | OPEN WOOD PORCH W/STEPS | 3 | 0 | 1979 | 134.0 |
Sketch
Property Image
Land
| 1 | LB | LOW BANK | 0.1256 | 5469.12 | 50.00 | 0.00 | 1.00 | $500,000 | $0 |
| 2 | 55 | TIDES | 0.0000 | 0.00 | 50.00 | 0.00 | 1.00 | $500 | $0 |
Roll Value History
| 2026 | N/A | N/A | N/A | N/A | N/A |
| 2025 | $148,433 | $500,500 | $0 | $648,933 | $648,933 |
| 2024 | $153,351 | $450,500 | $0 | $603,851 | $603,851 |
| 2023 | $143,295 | $490,500 | $0 | $633,795 | $633,795 |
| 2022 | $131,577 | $450,500 | $0 | $582,077 | $582,077 |
| 2021 | $115,997 | $450,500 | $0 | $566,497 | $566,497 |
| 2020 | $113,119 | $240,500 | $0 | $353,619 | $353,619 |
| 2019 | $79,689 | $290,500 | $0 | $370,189 | $370,189 |
| 2018 | $79,954 | $250,500 | $0 | $330,454 | $330,454 |
| 2017 | $64,161 | $250,500 | $0 | $314,661 | $314,661 |
| 2016 | $65,104 | $250,500 | $0 | $315,604 | $315,604 |
| 2015 | $66,047 | $250,500 | $0 | $316,547 | $316,547 |
| 2014 | $66,992 | $250,500 | $0 | $317,492 | $317,492 |
| 2013 | $67,935 | $272,621 | $0 | $340,556 | $340,556 |
| 2012 | $68,879 | $272,621 | $0 | $341,500 | $341,500 |
| 2011 | $69,822 | $272,621 | $0 | $342,443 | $342,443 |
| 2010 | $72,718 | $272,621 | $0 | $345,339 | $345,339 |
| 2009 | $75,920 | $390,380 | $0 | $466,300 | $466,300 |
| 2008 | $76,878 | $385,606 | $0 | $462,484 | $462,484 |
| 2007 | $77,837 | $326,376 | $0 | $404,213 | $404,213 |
Deed and Sales History
| 1 | 02/12/2021 | PRD | Personal Representatives Deed | MCNAMARA, JOHN F | MCNAMARA TTEE, LINDA L | | | $0.00 | 47044 | 4511678 |
| 2 | 09/01/1988 | WD | Warranty Deed | MATHESON, DANIEL G | MCNAMARA, JOHN F | | | $75,000.00 | 82986 | 88011135 |
| 3 | 05/01/1978 | OTHER | Other - Misc. Documents | Unknown | MATHESON, DANIEL G | | | $50,000.00 | 82141 | 332640 |
Payout Agreement
| No payout information available.. |