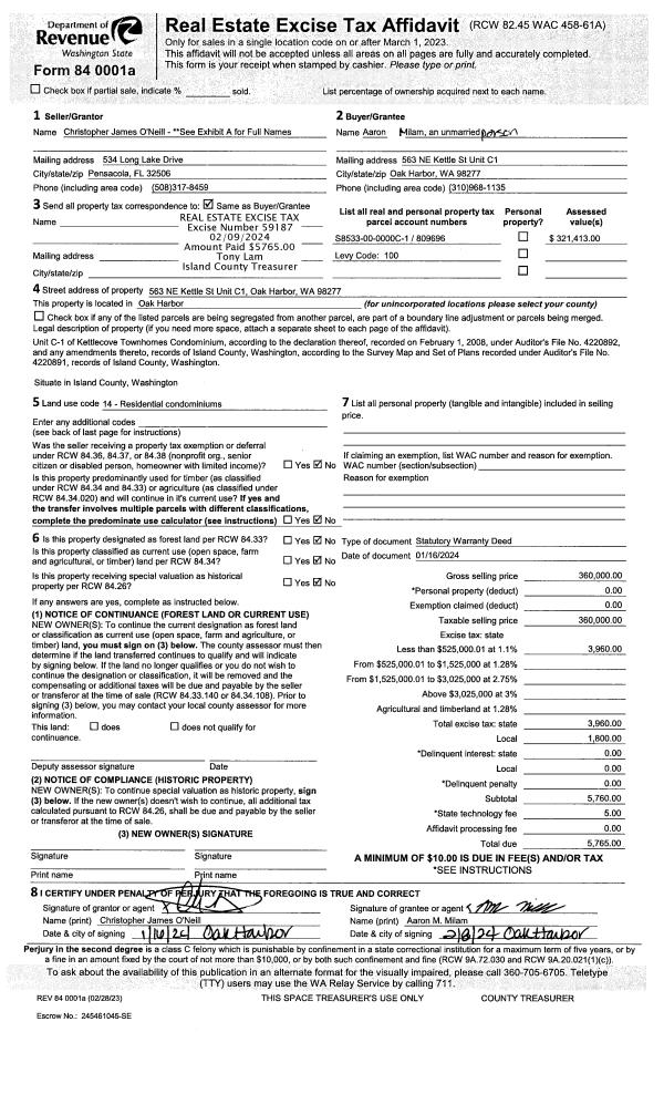
Property
Account |
| Property ID: | 346726 | Abbreviated Legal Description: | COMB TIDE W PATTONS SUNSET BCH NELY 40' OF LOT 4 & SWLY 20' OF LOT 5 INCL ADJ TIDES |
| Geographic ID: | S7700-00-00004-0 | Agent Code: | |
| Type: | Real | | |
| Tax Area: | 110 - APPRAISER-OH Schl Dist, outside OH, improved & 1 acre or less | Land Use Code | 11 |
| Open Space: | N | DFL | N |
| Historic Property: | N | Remodel Property: | N |
| Multi-Family Redevelopment: | N | | |
| Township: | | Section: | |
| Range: | |
Location |
| Address: | 2617 WEST BEACH RD OAK HARBOR, WA 98277 | Mapsco: | |
| Neighborhood: | Cycle 1 | Map ID: | 246 |
| Neighborhood CD: | 1 |
Owner |
| Name: | ROBINSON, PATRICIA A | Owner ID: | 79158 |
| Mailing Address: | 9744 COLLINS RD SEDRO WOOLLEY, WA 98284-8518 | % Ownership: | 100.0000000000% |
| | | Exemptions: | |
Taxes and Assessment Details
Values
| (+) Improvement Homesite Value: | + | $0 | |
| (+) Improvement Non-Homesite Value: | + | $155,987 | |
| (+) Land Homesite Value: | + | $0 | |
| (+) Land Non-Homesite Value: | + | $500,600 | |
| (+) Curr Use (HS): | + | $0 | $0 |
| (+) Curr Use (NHS): | + | $0 | $0 |
| | | -------------------------- | |
| (=) Market Value: | = | $656,587 | |
| (–) Productivity Loss: | – | $0 | |
| | | -------------------------- | |
| (=) Subtotal: | = | $656,587 | |
| (+) Senior Appraised Value: | + | $0 | |
| (+) Non-Senior Appraised Value: | + | $656,587 | |
| | | -------------------------- | |
| (=) Total Appraised Value: | = | $656,587 | |
| (–) Senior Exemption Loss: | – | $0 | |
| (–) Exemption Loss: | – | $0 | |
| | | -------------------------- | |
| (=) Taxable Value: | = | $656,587 | |
Taxing Jurisdiction
| Owner: | ROBINSON, PATRICIA A | | |
| % Ownership: | 100.0000000000% | | |
| Total Value: | $656,587 | | |
| Tax Area: | 110 - APPRAISER-OH Schl Dist, outside OH, improved & 1 acre or less |
| CF | Conservation Futures | 0.0316035091 | $656,587 | $656,587 | $20.75 | | |
| CEM1 | Cemetery #1 | 0.0040320932 | $656,587 | $656,587 | $2.65 | | |
| FIRE2 | Fire & Rescue Dist #2 N Whidbey GEN | 0.5475949600 | $656,587 | $656,587 | $359.54 | | |
| HOBOND | Hospital BOND | 0.1910887512 | $656,587 | $656,587 | $125.47 | | |
| HOGEN | Hospital GEN | 0.3902502903 | $656,587 | $656,587 | $256.23 | | |
| CE | County Current Expense | 0.3708482477 | $656,587 | $656,587 | $243.49 | | |
| CR | County Roads | 0.4584763726 | $656,587 | $656,587 | $301.03 | | |
| ISLANDEMS | Hospital GEN (EMS) | 0.5000000000 | $656,587 | $656,587 | $328.29 | | |
| LIB | Library Sno-Isle GEN | 0.3153421757 | $656,587 | $656,587 | $207.05 | | |
| NWHIDPRMT | P & R N Whidbey GEN | 0.2004466701 | $656,587 | $656,587 | $131.61 | | |
| SCH201MO | School 201 Enrichment | 1.8559231640 | $656,587 | $656,587 | $1,218.58 | | |
| ST | State School | 1.3035497053 | $656,587 | $656,587 | $855.89 | | |
| ST2 | State School Part 2 | 0.8169543533 | $656,587 | $656,587 | $536.40 | | |
| | Total Tax Rate: | 6.9861102925 | | | | | |
| | | | | Taxes w/Current Exemptions: | $4,586.98 | | |
| | | | | Taxes w/o Exemptions: | $4,586.98 | | |
Improvement / Building
| Improvement #1: | RESIDENTIAL | State Code: | Y | 936.0 sqft | Value: | $155,987 |
| Bathrooms: | 1 | Bedrooms: | 2 | | Ceiling: | DRY WALL SPRAYED | Exterior Wall/Cover: | VINYL | | Floor Covering: | CARPET/VINYL 80-20 | Floor Structure: | WOOD W/SUBFLOOR | | Foundation: | CONCRETE BLOCKS | Heating: | BASEBOARD ELECTRIC | | Interior Finish: | DRYWALL PAINT | Plumbing Fixture Cnt: | 6 | | Roof Slope: | 6" IN 12" | Roof Structure/Cover: | CJ ASPHALT |
|
| | Type | Description | Class CD | Sub Class CD | Year Built | Area |
| | BAS | BASE/MAIN FLOOR | 3 | 0 | 1974 | 936.0 |
| | OCP | OPEN CARPORT | 3 | 0 | 1974 | 252.0 |
| | UTY | STORAGE/UTILITY | 3 | 0 | 1974 | 120.0 |
| | OWC | OPEN WOOD PORCH W/STEPS/ROOF/C | 3 | 0 | 1974 | 192.5 |
| | OWP | OPEN WOOD PORCH W/STEPS | 3 | 0 | 1974 | 156.0 |
Sketch
Property Image
Land
| 1 | LB | LOW BANK | 0.0000 | 0.00 | 60.00 | 0.00 | 1.00 | $500,000 | $0 |
| 2 | 55 | TIDES | 0.0000 | 0.00 | 60.00 | 0.00 | 1.00 | $600 | $0 |
Roll Value History
| 2026 | N/A | N/A | N/A | N/A | N/A |
| 2025 | $155,987 | $500,600 | $0 | $656,587 | $656,587 |
| 2024 | $161,541 | $490,600 | $0 | $652,141 | $652,141 |
| 2023 | $165,195 | $490,600 | $0 | $655,795 | $655,795 |
| 2022 | $151,681 | $450,600 | $0 | $602,281 | $602,281 |
| 2021 | $133,722 | $450,600 | $0 | $584,322 | $584,322 |
| 2020 | $130,456 | $240,600 | $0 | $371,056 | $371,056 |
| 2019 | $93,425 | $290,600 | $0 | $384,025 | $384,025 |
| 2018 | $93,734 | $250,600 | $0 | $344,334 | $344,334 |
| 2017 | $73,238 | $250,600 | $0 | $323,838 | $323,838 |
| 2016 | $74,384 | $250,600 | $0 | $324,984 | $324,984 |
| 2015 | $75,533 | $301,800 | $0 | $377,333 | $377,333 |
| 2014 | $76,679 | $301,800 | $0 | $378,479 | $378,479 |
| 2013 | $77,826 | $318,834 | $0 | $396,660 | $396,660 |
| 2012 | $78,973 | $318,834 | $0 | $397,807 | $397,807 |
| 2011 | $80,685 | $318,834 | $0 | $399,519 | $399,519 |
| 2010 | $87,926 | $318,834 | $0 | $406,760 | $406,760 |
| 2009 | $91,735 | $456,030 | $0 | $547,765 | $547,765 |
| 2008 | $92,988 | $450,468 | $0 | $543,456 | $543,456 |
| 2007 | $94,219 | $380,610 | $0 | $474,829 | $474,829 |
Deed and Sales History
| 1 | 07/15/2009 | QCD | Quit Claim Deed | ROBINSON, PATRICIA A | ROBINSON, PATRICIA A | | | $0.00 | 91712 | 4257305 |
| 2 | 08/25/2004 | PRD | Personal Representatives Deed | ROBINSON, LARRY R | ROBINSON, PATRICIA A | | | $0.00 | 43930 | 4110937 |
| 3 | 12/31/1998 | PRD | Personal Representatives Deed | ROBINSON, LARRY R | ROBINSON, LARRY R | | | $0.00 | 90904 | 99006322 |
| 4 | 12/31/1998 | PRD | Personal Representatives Deed | ROBINSON, LARRY R | ROBINSON, LARRY R | | | $0.00 | 90903 | 99006321 |
| 5 | 12/31/1998 | PRD | Personal Representatives Deed | ROBINSON, LARRY R | ROBINSON, LARRY R | | | $0.00 | 90902 | 99006320 |
| 6 | 12/31/1998 | PRD | Personal Representatives Deed | ROBINSON, ROBERT E | ROBINSON, LARRY R | | | $0.00 | 90901 | 99006319 |
| 7 | 07/01/1992 | QCD | Quit Claim Deed | ROBINSON, ROBERT E | ROBINSON, ROBERT E | | | $0.00 | 23046 | 92014764 |
| 8 | 03/01/1988 | OTHER | Other - Misc. Documents | ROBINSON, ROBERT E | ROBINSON, ROBERT E | | | $0.00 | 62570 | 0 |
| 9 | 01/01/1900 | OTHER | Other - Misc. Documents | Unknown | ROBINSON, ROBERT E | | | $0.00 | 0 | 0 |
Payout Agreement
| No payout information available.. |