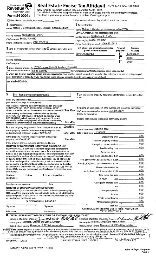
Property
Account |
| Property ID: | 346744 | Abbreviated Legal Description: | PATTONS SUNSET BCH SWLY 10' OF LOT 6 & NELY 40' OF LOT 5 INCL ADJ TIDES |
| Geographic ID: | S7700-00-00005-0 | Agent Code: | |
| Type: | Real | | |
| Tax Area: | 110 - APPRAISER-OH Schl Dist, outside OH, improved & 1 acre or less | Land Use Code | 11 |
| Open Space: | N | DFL | N |
| Historic Property: | N | Remodel Property: | N |
| Multi-Family Redevelopment: | N | | |
| Township: | | Section: | |
| Range: | |
Location |
| Address: | 2621 WEST BEACH RD OAK HARBOR, WA 98277 | Mapsco: | |
| Neighborhood: | Cycle 1 | Map ID: | 246 |
| Neighborhood CD: | 1 |
Owner |
| Name: | LUNA SHORES LLC | Owner ID: | 314849 |
| Mailing Address: | 9520 AVON ALLEN BOX, WA 98232 | % Ownership: | 100.0000000000% |
| | | Exemptions: | |
Taxes and Assessment Details
Values
| (+) Improvement Homesite Value: | + | $0 | |
| (+) Improvement Non-Homesite Value: | + | $369,260 | |
| (+) Land Homesite Value: | + | $0 | |
| (+) Land Non-Homesite Value: | + | $500,500 | |
| (+) Curr Use (HS): | + | $0 | $0 |
| (+) Curr Use (NHS): | + | $0 | $0 |
| | | -------------------------- | |
| (=) Market Value: | = | $869,760 | |
| (–) Productivity Loss: | – | $0 | |
| | | -------------------------- | |
| (=) Subtotal: | = | $869,760 | |
| (+) Senior Appraised Value: | + | $0 | |
| (+) Non-Senior Appraised Value: | + | $869,760 | |
| | | -------------------------- | |
| (=) Total Appraised Value: | = | $869,760 | |
| (–) Senior Exemption Loss: | – | $0 | |
| (–) Exemption Loss: | – | $0 | |
| | | -------------------------- | |
| (=) Taxable Value: | = | $869,760 | |
Taxing Jurisdiction
| Owner: | LUNA SHORES LLC | | |
| % Ownership: | 100.0000000000% | | |
| Total Value: | $869,760 | | |
| Tax Area: | 110 - APPRAISER-OH Schl Dist, outside OH, improved & 1 acre or less |
| CF | Conservation Futures | 0.0316035091 | $869,760 | $869,760 | $27.49 | | |
| CEM1 | Cemetery #1 | 0.0040320932 | $869,760 | $869,760 | $3.51 | | |
| FIRE2 | Fire & Rescue Dist #2 N Whidbey GEN | 0.5475949600 | $869,760 | $869,760 | $476.28 | | |
| HOBOND | Hospital BOND | 0.1910887512 | $869,760 | $869,760 | $166.20 | | |
| HOGEN | Hospital GEN | 0.3902502903 | $869,760 | $869,760 | $339.42 | | |
| CE | County Current Expense | 0.3708482477 | $869,760 | $869,760 | $322.55 | | |
| CR | County Roads | 0.4584763726 | $869,760 | $869,760 | $398.76 | | |
| ISLANDEMS | Hospital GEN (EMS) | 0.5000000000 | $869,760 | $869,760 | $434.88 | | |
| LIB | Library Sno-Isle GEN | 0.3153421757 | $869,760 | $869,760 | $274.27 | | |
| NWHIDPRMT | P & R N Whidbey GEN | 0.2004466701 | $869,760 | $869,760 | $174.34 | | |
| SCH201MO | School 201 Enrichment | 1.8559231640 | $869,760 | $869,760 | $1,614.21 | | |
| ST | State School | 1.3035497053 | $869,760 | $869,760 | $1,133.78 | | |
| ST2 | State School Part 2 | 0.8169543533 | $869,760 | $869,760 | $710.55 | | |
| | Total Tax Rate: | 6.9861102925 | | | | | |
| | | | | Taxes w/Current Exemptions: | $6,076.24 | | |
| | | | | Taxes w/o Exemptions: | $6,076.24 | | |
Improvement / Building
| Improvement #1: | RESIDENTIAL | State Code: | Y | 1744.0 sqft | Value: | $369,260 |
| Bathrooms: | 1.5 | Bedrooms: | 3 | | Ceiling: | TONGUE & GROOVE | Exterior Wall/Cover: | SHINGLE | | Floor Covering: | HARDWOOD/CARP 60-40 | Floor Structure: | WOOD W/SUBFLOOR | | Foundation: | CONCRETE | Heating: | FHA ELECTRIC | | Interior Finish: | DRYWALL PAINT | Plumbing Fixture Cnt: | 10 | | Roof Slope: | 3" IN 12" | Roof Structure/Cover: | CJ ASPHALT |
|
| | Type | Description | Class CD | Sub Class CD | Year Built | Area |
| | BAS | BASE/MAIN FLOOR | 4 | 0 | 1971 | 832.0 |
| | AGR | ATTACHED GARAGE | 4 | 0 | 1971 | 352.0 |
| | UPS | UPPER STORY | 4 | 0 | 1971 | 912.0 |
| | OWP | OPEN WOOD PORCH W/STEPS | 4 | 0 | 1971 | 1101.0 |
| | OWR | OPEN WOOD PORCH W/STEPS/ROOF | 4 | 0 | 1971 | 102.0 |
Sketch
Property Image
Land
| 1 | LB | LOW BANK | 0.0000 | 0.00 | 50.00 | 0.00 | 1.00 | $500,000 | $0 |
| 2 | 55 | TIDES | 0.0000 | 0.00 | 50.00 | 0.00 | 1.00 | $500 | $0 |
Roll Value History
| 2026 | N/A | N/A | N/A | N/A | N/A |
| 2025 | $369,260 | $500,500 | $0 | $869,760 | $869,760 |
| 2024 | $373,695 | $510,500 | $0 | $884,195 | $884,195 |
| 2023 | $355,954 | $490,500 | $0 | $846,454 | $846,454 |
| 2022 | $326,337 | $450,500 | $0 | $776,837 | $776,837 |
| 2021 | $287,268 | $450,500 | $0 | $737,768 | $737,768 |
| 2020 | $279,994 | $240,500 | $0 | $520,494 | $520,494 |
| 2019 | $205,907 | $290,500 | $0 | $496,407 | $496,407 |
| 2018 | $206,517 | $250,500 | $0 | $457,017 | $457,017 |
| 2017 | $144,944 | $250,500 | $0 | $395,444 | $395,444 |
| 2016 | $146,851 | $250,500 | $0 | $397,351 | $397,351 |
| 2015 | $148,758 | $250,500 | $0 | $399,258 | $399,258 |
| 2014 | $142,724 | $250,500 | $0 | $393,224 | $393,224 |
| 2013 | $145,065 | $272,621 | $0 | $417,686 | $417,686 |
| 2012 | $147,403 | $272,621 | $0 | $420,024 | $420,024 |
| 2011 | $151,318 | $272,621 | $0 | $423,939 | $423,939 |
| 2010 | $160,452 | $272,621 | $0 | $433,073 | $433,073 |
| 2009 | $167,766 | $390,380 | $0 | $558,146 | $558,146 |
| 2008 | $170,227 | $385,606 | $0 | $555,833 | $555,833 |
| 2007 | $172,688 | $326,376 | $0 | $499,064 | $499,064 |
Deed and Sales History
| 1 | 12/13/2024 | QCD | Quit Claim Deed | HAYES, DEAN | LUNA SHORES LLC | | | $0.00 | 62071 | 4580377 |
| 2 | 12/15/2014 | WD | Warranty Deed | MEREDITH JTWROS, EDWARD L | HAYES, DEAN | | | $338,000.00 | 18098 | 4371155 |
| 3 | 03/18/2014 | CPADC | Comm Prop Agmnt & Death Cert | MEREDITH ET AL, EDWARD L | MEREDITH JTWROS, EDWARD L | | | | 84904 | |
| 4 | 03/01/1990 | QCD | Quit Claim Deed | MEREDITH, EDWARD L | MEREDITH, EDWARD L | | | $0.00 | 1623 | 90005252 |
| 5 | 09/01/1983 | WD | Warranty Deed | BROWN, JOHN K | MEREDITH, EDWARD L | | | $130,000.00 | 32614 | 414820 |
| 6 | 05/01/1978 | OTHER | Other - Misc. Documents | Unknown | BROWN, JOHN K | | | $75,000.00 | 82245 | 332935 |
Payout Agreement
| No payout information available.. |