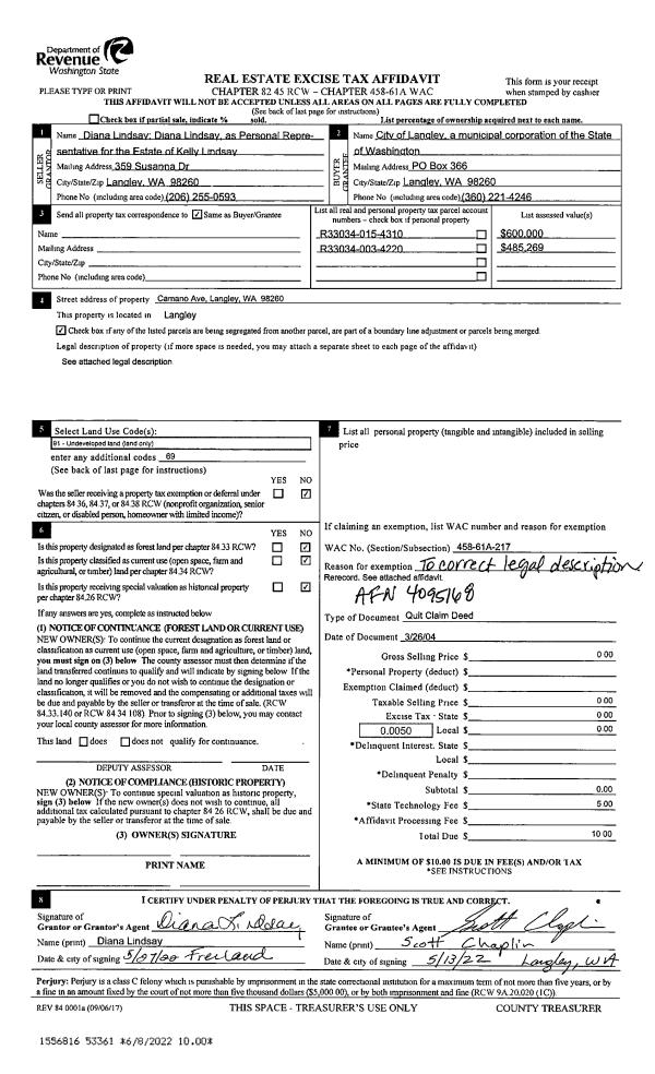
Property
Account |
| Property ID: | 347645 | Abbreviated Legal Description: | PEBBLE BCH LOT 20 & N25' LOT 21 INCL ADJ TIDES |
| Geographic ID: | S7715-00-00020-0 | Agent Code: | |
| Type: | Real | | |
| Tax Area: | 549 - APPRAISER-Stan/Cam Schl Dist, Special Dist, vacant & 50 acres or less | Land Use Code | 99 |
| Open Space: | N | DFL | N |
| Historic Property: | N | Remodel Property: | N |
| Multi-Family Redevelopment: | N | | |
| Township: | | Section: | |
| Range: | |
Location |
| Address: | | Mapsco: | |
| Neighborhood: | 58RscamNB-South Cam | Map ID: | 882 |
| Neighborhood CD: | 58RscamNB |
Owner |
| Name: | TURCOTT, MARGARET | Owner ID: | 299504 |
| Mailing Address: | ET AL 10007 NE 153RD ST BOTHELL, WA 98011 | % Ownership: | 100.0000000000% |
| | | Exemptions: | |
Taxes and Assessment Details
Values
| (+) Improvement Homesite Value: | + | $0 | |
| (+) Improvement Non-Homesite Value: | + | $0 | |
| (+) Land Homesite Value: | + | $0 | |
| (+) Land Non-Homesite Value: | + | $40,750 | |
| (+) Curr Use (HS): | + | $0 | $0 |
| (+) Curr Use (NHS): | + | $0 | $0 |
| | | -------------------------- | |
| (=) Market Value: | = | $40,750 | |
| (–) Productivity Loss: | – | $0 | |
| | | -------------------------- | |
| (=) Subtotal: | = | $40,750 | |
| (+) Senior Appraised Value: | + | $0 | |
| (+) Non-Senior Appraised Value: | + | $40,750 | |
| | | -------------------------- | |
| (=) Total Appraised Value: | = | $40,750 | |
| (–) Senior Exemption Loss: | – | $0 | |
| (–) Exemption Loss: | – | $0 | |
| | | -------------------------- | |
| (=) Taxable Value: | = | $40,750 | |
Taxing Jurisdiction
| Owner: | TURCOTT, MARGARET | | |
| % Ownership: | 100.0000000000% | | |
| Total Value: | $40,750 | | |
| Tax Area: | 549 - APPRAISER-Stan/Cam Schl Dist, Special Dist, vacant & 50 acres or less |
| CF | Conservation Futures | 0.0316035091 | $40,750 | $40,750 | $1.29 | | |
| EMS1 | Fire & Rescue Dist #1 Camano GEN (EMS) | 0.3677864386 | $40,750 | $40,750 | $14.99 | | |
| CE | County Current Expense | 0.3708482477 | $40,750 | $40,750 | $15.11 | | |
| CR | County Roads | 0.4584763726 | $40,750 | $40,750 | $18.68 | | |
| LCIB | Library Sno-Isle BOND (Camano Island) | 0.0396325772 | $40,750 | $40,750 | $1.62 | | |
| LIB | Library Sno-Isle GEN | 0.3153421757 | $40,750 | $40,750 | $12.85 | | |
| SCH205_401 | School 205-401 Enrichment | 1.2698420524 | $40,750 | $40,750 | $51.75 | | |
| SCH205BOND | School 205-401 BOND | 0.9396497583 | $40,750 | $40,750 | $38.29 | | |
| ST | State School | 1.3035497053 | $40,750 | $40,750 | $53.12 | | |
| ST2 | State School Part 2 | 0.8169543533 | $40,750 | $40,750 | $33.29 | | |
| | Total Tax Rate: | 5.9136851902 | | | | | |
| | | | | Taxes w/Current Exemptions: | $240.99 | | |
| | | | | Taxes w/o Exemptions: | $240.99 | | |
Improvement / Building
Sketch
| No sketches available for this property. |
Property Image
Land
| 1 | 55 | TIDES | 0.0000 | 0.00 | 75.00 | 0.00 | 1.00 | $750 | $0 |
| 2 | HB | HIGH BLUFF | 0.3500 | 15246.00 | 75.00 | 0.00 | 1.00 | $40,000 | $0 |
Roll Value History
| 2026 | N/A | N/A | N/A | N/A | N/A |
| 2025 | $0 | $40,750 | $0 | $40,750 | $40,750 |
| 2024 | $0 | $40,750 | $0 | $40,750 | $40,750 |
| 2023 | $0 | $40,750 | $0 | $40,750 | $40,750 |
| 2022 | $0 | $40,750 | $0 | $40,750 | $40,750 |
| 2021 | $0 | $40,750 | $0 | $40,750 | $40,750 |
| 2020 | $0 | $40,750 | $0 | $40,750 | $40,750 |
| 2019 | $0 | $40,750 | $0 | $40,750 | $40,750 |
| 2018 | $0 | $30,750 | $0 | $30,750 | $30,750 |
| 2017 | $0 | $30,750 | $0 | $30,750 | $30,750 |
| 2016 | $0 | $30,750 | $0 | $30,750 | $30,750 |
| 2015 | $0 | $30,750 | $0 | $30,750 | $30,750 |
| 2014 | $0 | $30,750 | $0 | $30,750 | $30,750 |
| 2013 | $0 | $28,124 | $0 | $28,124 | $28,124 |
| 2012 | $0 | $28,124 | $0 | $28,124 | $28,124 |
| 2011 | $0 | $34,968 | $0 | $34,968 | $34,968 |
| 2010 | $0 | $34,968 | $0 | $34,968 | $34,968 |
| 2009 | $0 | $54,142 | $0 | $54,142 | $54,142 |
| 2008 | $0 | $53,779 | $0 | $53,779 | $53,779 |
| 2007 | $0 | $53,254 | $0 | $53,254 | $53,254 |
Deed and Sales History
| 1 | 05/21/2021 | SPWARDEED | Special Warranty Deed | HOLMES, ESTHER M | TURCOTT, MARGARET | | | $0.00 | 48375 | 4520720 |
| 2 | 06/19/2020 | SPWARDEED | Special Warranty Deed | HOLMES, RUSS A | HOLMES, ESTHER M | | | $0.00 | 45084 | 4498530 |
| 3 | 12/04/2010 | QCD | Quit Claim Deed | HOLMES, STEPHEN A | HOLMES, RUSS A | | | $0.00 | 3392 | 4288935 |
| 4 | 08/12/2004 | QCD | Quit Claim Deed | HOLMES, RUSS A | HOLMES, STEPHEN A | | | $0.00 | 43689 | 4109582 |
| 5 | 10/30/2003 | WD | Warranty Deed | NEUBAUER, GABRIELE | HOLMES, RUSS A | | | $33,320.00 | 34954 | 4081351 |
| 6 | 12/01/1997 | DECREE | Divorce Decree/Legal Separation | NEUBAUER, WILLIBALD | NEUBAUER, GABRIELE | | | $0.00 | 74266 | 97020514 |
| 7 | 12/01/1980 | EXECUTORD | Executor Deed | Unknown | NEUBAUER, WILLIBALD | | | $15,000.00 | 4124 | 377399 |
Payout Agreement
| No payout information available.. |