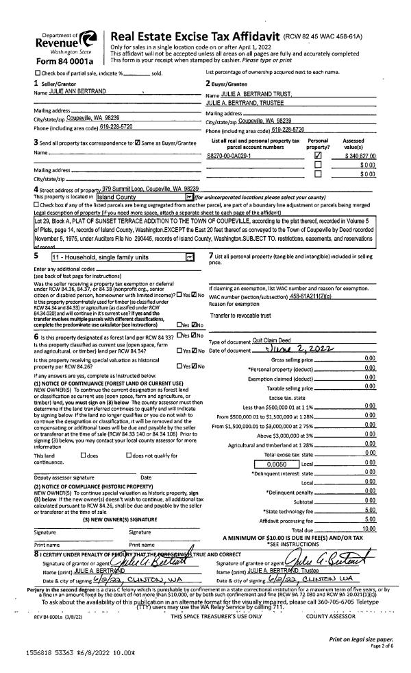
Property
Account |
| Property ID: | 347663 | Abbreviated Legal Description: | PEBBLE BCH LOT 23 INCL ADJ TIDES |
| Geographic ID: | S7715-00-00023-0 | Agent Code: | |
| Type: | Real | | |
| Tax Area: | 540 - APPRAISER-Stan/Cam Schl Dist, Special Dist, improved & less than 1 acre | Land Use Code | 11 |
| Open Space: | N | DFL | N |
| Historic Property: | N | Remodel Property: | N |
| Multi-Family Redevelopment: | N | | |
| Township: | | Section: | |
| Range: | |
Location |
| Address: | 3980 PEBBLE BEACH DR CAMANO ISLAND, WA 98282 | Mapsco: | |
| Neighborhood: | 58RscamWF-South Cam | Map ID: | 882 |
| Neighborhood CD: | 58RscamWF |
Owner |
| Name: | RETTINGHOUSE, DALE C | Owner ID: | 67020 |
| Mailing Address: | HEATHER D RETTINGHOUSE 14226 31ST AVE NE MARYSVILLE, WA 98271-8257 | % Ownership: | 100.0000000000% |
| | | Exemptions: | |
Taxes and Assessment Details
Values
| (+) Improvement Homesite Value: | + | $0 | |
| (+) Improvement Non-Homesite Value: | + | $25,491 | |
| (+) Land Homesite Value: | + | $0 | |
| (+) Land Non-Homesite Value: | + | $350,500 | |
| (+) Curr Use (HS): | + | $0 | $0 |
| (+) Curr Use (NHS): | + | $0 | $0 |
| | | -------------------------- | |
| (=) Market Value: | = | $375,991 | |
| (–) Productivity Loss: | – | $0 | |
| | | -------------------------- | |
| (=) Subtotal: | = | $375,991 | |
| (+) Senior Appraised Value: | + | $0 | |
| (+) Non-Senior Appraised Value: | + | $375,991 | |
| | | -------------------------- | |
| (=) Total Appraised Value: | = | $375,991 | |
| (–) Senior Exemption Loss: | – | $0 | |
| (–) Exemption Loss: | – | $0 | |
| | | -------------------------- | |
| (=) Taxable Value: | = | $375,991 | |
Taxing Jurisdiction
| Owner: | RETTINGHOUSE, DALE C | | |
| % Ownership: | 100.0000000000% | | |
| Total Value: | $375,991 | | |
| Tax Area: | 540 - APPRAISER-Stan/Cam Schl Dist, Special Dist, improved & less than 1 acre |
| CF | Conservation Futures | 0.0316035091 | $375,991 | $375,991 | $11.88 | | |
| EMS1 | Fire & Rescue Dist #1 Camano GEN (EMS) | 0.3677864386 | $375,991 | $375,991 | $138.28 | | |
| FIRE1 | Fire & Rescue Dist #1 Camano GEN | 1.2502910536 | $375,991 | $375,991 | $470.10 | | |
| FIRE1BOND | Fire & Rescue Dist #1 Camano BOND | 0.1570001679 | $375,991 | $375,991 | $59.03 | | |
| CE | County Current Expense | 0.3708482477 | $375,991 | $375,991 | $139.44 | | |
| CR | County Roads | 0.4584763726 | $375,991 | $375,991 | $172.38 | | |
| LCIB | Library Sno-Isle BOND (Camano Island) | 0.0396325772 | $375,991 | $375,991 | $14.90 | | |
| LIB | Library Sno-Isle GEN | 0.3153421757 | $375,991 | $375,991 | $118.57 | | |
| SCH205_401 | School 205-401 Enrichment | 1.2698420524 | $375,991 | $375,991 | $477.45 | | |
| SCH205BOND | School 205-401 BOND | 0.9396497583 | $375,991 | $375,991 | $353.30 | | |
| ST | State School | 1.3035497053 | $375,991 | $375,991 | $490.12 | | |
| ST2 | State School Part 2 | 0.8169543533 | $375,991 | $375,991 | $307.17 | | |
| | Total Tax Rate: | 7.3209764117 | | | | | |
| | | | | Taxes w/Current Exemptions: | $2,752.62 | | |
| | | | | Taxes w/o Exemptions: | $2,752.62 | | |
Improvement / Building
| Improvement #1: | MANUFACTURED HOME | State Code: | Y | 504.0 sqft | Value: | $25,491 |
| Bathrooms: | 0 | Bedrooms: | 0 | | Ceiling: | PLASTER PAINTED | Cooling: | EVAP NO DUCT | | Exterior Wall/Cover: | VINYL | Floor Covering: | CARPET 100% | | Floor Structure: | SLAB ON GRADE | Foundation: | SLAB | | Heating: | FHA ELECTRIC | Interior Finish: | PLASTER | | Plumbing Fixture Cnt: | 1 | Roof Slope: | FLAT | | Roof Structure/Cover: | CJ ALUMINIUM HEAVY |   |   |
|
| | Type | Description | Class CD | Sub Class CD | Year Built | Area |
| | BAS | BASE/MAIN FLOOR | 1 | 0 | 1979 | 504.0 |
| | OWP | OPEN WOOD PORCH W/STEPS | 1 | 0 | 1979 | 288.0 |
| | UTY | STORAGE/UTILITY | 1 | 0 | 1979 | 100.0 |
Sketch
Property Image
Land
| 1 | LB | LOW BANK | 0.0000 | 0.00 | 50.00 | 0.00 | 1.00 | $350,000 | $0 |
| 2 | 55 | TIDES | 0.0000 | 0.00 | 50.00 | 0.00 | 1.00 | $500 | $0 |
Roll Value History
| 2026 | N/A | N/A | N/A | N/A | N/A |
| 2025 | $25,491 | $350,500 | $0 | $375,991 | $375,991 |
| 2024 | $25,889 | $350,500 | $0 | $376,389 | $376,389 |
| 2023 | $22,853 | $350,500 | $0 | $373,353 | $373,353 |
| 2022 | $21,009 | $350,500 | $0 | $371,509 | $371,509 |
| 2021 | $18,537 | $300,500 | $0 | $319,037 | $319,037 |
| 2020 | $18,262 | $250,500 | $0 | $268,762 | $268,762 |
| 2019 | $14,591 | $300,500 | $0 | $315,091 | $315,091 |
| 2018 | $14,643 | $200,500 | $0 | $215,143 | $215,143 |
| 2017 | $14,748 | $200,500 | $0 | $215,248 | $215,248 |
| 2016 | $14,956 | $200,500 | $0 | $215,456 | $215,456 |
| 2015 | $15,218 | $200,500 | $0 | $215,718 | $215,718 |
| 2014 | $15,325 | $200,500 | $0 | $215,825 | $215,825 |
| 2013 | $15,431 | $229,654 | $0 | $245,085 | $245,085 |
| 2012 | $15,537 | $229,654 | $0 | $245,191 | $245,191 |
| 2011 | $15,644 | $286,943 | $0 | $302,587 | $302,587 |
| 2010 | $12,305 | $286,943 | $0 | $299,248 | $299,248 |
| 2009 | $16,236 | $350,597 | $0 | $366,833 | $366,833 |
| 2008 | $16,711 | $286,943 | $0 | $303,654 | $303,654 |
| 2007 | $17,459 | $234,078 | $0 | $251,537 | $251,537 |
Deed and Sales History
| 1 | 10/13/2003 | WD | Warranty Deed | Unknown | RETTINGHOUSE, DALE C | | | $156,840.00 | 34647 | 4079308 |
| 2 | 11/01/1979 | EXECUTORD | Executor Deed | HOLMES, RUSSELL | HOLMES, RUSSELL | | | $10,000.00 | 95495 | 361831 |
| 3 | 01/01/1900 | OTHER | Other - Misc. Documents | DALLMAN, OWEN R | HOLMES, RUSSELL | | | $0.00 | 0 | 0 |
| 4 | 01/01/1900 | OTHER | Other - Misc. Documents | Unknown | DALLMAN, OWEN R | | | $0.00 | 0 | 0 |
Payout Agreement
| No payout information available.. |