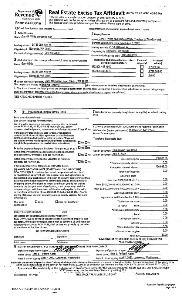
Property
Account |
| Property ID: | 347716 | Abbreviated Legal Description: | PEBBLE BCH LOTS 29, 30 & 31 |
| Geographic ID: | S7715-00-00029-0 | Agent Code: | |
| Type: | Real | | |
| Tax Area: | 540 - APPRAISER-Stan/Cam Schl Dist, Special Dist, improved & less than 1 acre | Land Use Code | 11 |
| Open Space: | N | DFL | N |
| Historic Property: | N | Remodel Property: | N |
| Multi-Family Redevelopment: | N | | |
| Township: | | Section: | |
| Range: | |
Location |
| Address: | 4004 PEBBLE BEACH DR CAMANO ISLAND, WA 98282 | Mapsco: | |
| Neighborhood: | 58RscamWF-South Cam | Map ID: | 892 |
| Neighborhood CD: | 58RscamWF |
Owner |
| Name: | COUNSELL, YINGYU LUAN | Owner ID: | 306441 |
| Mailing Address: | 4017 WILLIAMS AVE N RENTON, WA 98056 | % Ownership: | 100.0000000000% |
| | | Exemptions: | |
Taxes and Assessment Details
Values
| (+) Improvement Homesite Value: | + | $0 | |
| (+) Improvement Non-Homesite Value: | + | $499,606 | |
| (+) Land Homesite Value: | + | $0 | |
| (+) Land Non-Homesite Value: | + | $650,000 | |
| (+) Curr Use (HS): | + | $0 | $0 |
| (+) Curr Use (NHS): | + | $0 | $0 |
| | | -------------------------- | |
| (=) Market Value: | = | $1,149,606 | |
| (–) Productivity Loss: | – | $0 | |
| | | -------------------------- | |
| (=) Subtotal: | = | $1,149,606 | |
| (+) Senior Appraised Value: | + | $0 | |
| (+) Non-Senior Appraised Value: | + | $1,149,606 | |
| | | -------------------------- | |
| (=) Total Appraised Value: | = | $1,149,606 | |
| (–) Senior Exemption Loss: | – | $0 | |
| (–) Exemption Loss: | – | $0 | |
| | | -------------------------- | |
| (=) Taxable Value: | = | $1,149,606 | |
Taxing Jurisdiction
| Owner: | COUNSELL, YINGYU LUAN | | |
| % Ownership: | 100.0000000000% | | |
| Total Value: | $1,149,606 | | |
| Tax Area: | 540 - APPRAISER-Stan/Cam Schl Dist, Special Dist, improved & less than 1 acre |
| CF | Conservation Futures | 0.0316035091 | $1,149,606 | $1,149,606 | $36.33 | | |
| EMS1 | Fire & Rescue Dist #1 Camano GEN (EMS) | 0.3677864386 | $1,149,606 | $1,149,606 | $422.81 | | |
| FIRE1 | Fire & Rescue Dist #1 Camano GEN | 1.2502910536 | $1,149,606 | $1,149,606 | $1,437.34 | | |
| FIRE1BOND | Fire & Rescue Dist #1 Camano BOND | 0.1570001679 | $1,149,606 | $1,149,606 | $180.49 | | |
| CE | County Current Expense | 0.3708482477 | $1,149,606 | $1,149,606 | $426.33 | | |
| CR | County Roads | 0.4584763726 | $1,149,606 | $1,149,606 | $527.07 | | |
| LCIB | Library Sno-Isle BOND (Camano Island) | 0.0396325772 | $1,149,606 | $1,149,606 | $45.56 | | |
| LIB | Library Sno-Isle GEN | 0.3153421757 | $1,149,606 | $1,149,606 | $362.52 | | |
| SCH205_401 | School 205-401 Enrichment | 1.2698420524 | $1,149,606 | $1,149,606 | $1,459.82 | | |
| SCH205BOND | School 205-401 BOND | 0.9396497583 | $1,149,606 | $1,149,606 | $1,080.23 | | |
| ST | State School | 1.3035497053 | $1,149,606 | $1,149,606 | $1,498.57 | | |
| ST2 | State School Part 2 | 0.8169543533 | $1,149,606 | $1,149,606 | $939.18 | | |
| | Total Tax Rate: | 7.3209764117 | | | | | |
| | | | | Taxes w/Current Exemptions: | $8,416.25 | | |
| | | | | Taxes w/o Exemptions: | $8,416.25 | | |
Improvement / Building
| Improvement #1: | RESIDENTIAL | State Code: | Y | 3224.8 sqft | Value: | $499,606 |
| Bathrooms: | 2.5 | Bedrooms: | 3 | | Ceiling: | TONGUE & GROOVE | Exterior Wall/Cover: | WOOD SIDING | | Floor Covering: | CERAMIC TILE/CPT 40-60 | Floor Structure: | SLAB ABOVE GRADE | | Foundation: | SLAB/CONCRETE | Heating: | WALL HEAT ELECTRIC | | Interior Finish: | DRYWALL PAINT | Plumbing Fixture Cnt: | 13 | | Roof Slope: | 6" IN 12" | Roof Structure/Cover: | BEAM ALUMINUM HEAVY |
|
| | Type | Description | Class CD | Sub Class CD | Year Built | Area |
| | BAS | BASE/MAIN FLOOR | 4 | 0 | 1976 | 1504.4 |
| | OP1 | OPEN PORCH SLAB | 4 | 0 | 1976 | 450.8 |
| | OCP | OPEN CARPORT | 4 | 0 | 1976 | 504.0 |
| | DWN | DOWNSTAIRS LIVING AREA | 4 | 0 | 1976 | 1504.4 |
| | OWP | OPEN WOOD PORCH W/STEPS | 4 | 0 | 1976 | 492.4 |
| | CPD | OPEN CARPORT DIRT FLOOR | 4 | 0 | 1976 | 352.0 |
| | LOF | LOFT | 4 | 0 | 1976 | 216.0 |
Sketch
Property Image
Land
| 1 | LB | LOW BANK | 0.2066 | 9000.00 | 180.00 | 0.00 | 1.00 | $650,000 | $0 |
Roll Value History
| 2026 | N/A | N/A | N/A | N/A | N/A |
| 2025 | $499,606 | $650,000 | $0 | $1,149,606 | $1,149,606 |
| 2024 | $505,911 | $625,000 | $0 | $1,130,911 | $1,130,911 |
| 2023 | $512,215 | $625,000 | $0 | $1,137,215 | $1,137,215 |
| 2022 | $456,383 | $500,000 | $0 | $956,383 | $956,383 |
| 2021 | $371,492 | $300,000 | $0 | $671,492 | $671,492 |
| 2020 | $362,812 | $250,000 | $0 | $612,812 | $612,812 |
| 2019 | $288,015 | $300,000 | $0 | $588,015 | $588,015 |
| 2018 | $268,123 | $300,000 | $0 | $568,123 | $568,123 |
| 2017 | $235,008 | $300,000 | $0 | $535,008 | $535,008 |
| 2016 | $238,318 | $300,000 | $0 | $538,318 | $538,318 |
| 2015 | $236,446 | $350,000 | $0 | $586,446 | $586,446 |
| 2014 | $240,139 | $350,000 | $0 | $590,139 | $590,139 |
| 2013 | $243,834 | $340,127 | $0 | $583,961 | $583,961 |
| 2012 | $247,529 | $340,127 | $0 | $587,656 | $587,656 |
| 2011 | $251,222 | $425,159 | $0 | $676,381 | $676,381 |
| 2010 | $251,541 | $425,159 | $0 | $676,700 | $676,700 |
| 2009 | $262,534 | $476,336 | $0 | $738,870 | $738,870 |
| 2008 | $266,310 | $389,730 | $0 | $656,040 | $656,040 |
| 2007 | $270,085 | $379,684 | $0 | $649,769 | $649,769 |
Deed and Sales History
| 1 | 10/22/2022 | QCD | Quit Claim Deed | COUNSELL, JAMES A. | COUNSELL, YINGYU LUAN | | | $0.00 | 54946 | 4552950 |
| 2 | 10/07/2022 | WD | Warranty Deed | DRAGICH, MAXAMILLION V | COUNSELL, YINGYU LUAN | | | $1,390,000.00 | 54945 | 4552949 |
| 3 | 09/29/2017 | WD | Warranty Deed | ADAIR TRUSTEE, IRENE | DRAGICH, MAXAMILLION V | | | $430,000.00 | 31425 | 4431611 |
| 4 | 05/26/2009 | OTHER | Other - Misc. Documents | ADAIR TRUSTEE, ROBERT | ADAIR TRUSTEE, IRENE | | | $0.00 | 81190 | 0 |
| 5 | 12/12/2003 | 5 | DNU - Marriage License/Name Change | ADAIR, ROBERT | ADAIR TRUSTEE, ROBERT | | | $0.00 | 41568 | 4097674 |
| 6 | 10/12/2003 | 5 | DNU - Marriage License/Name Change | ADAIR, ROBERT & | ADAIR, ROBERT | | | $0.00 | 35715 | 4086886 |
| 7 | 05/01/1994 | QCD | Quit Claim Deed | ADAIR, ROBERT L | ADAIR, ROBERT & | | | $0.00 | 41823 | 94010762 |
| 8 | 01/01/1900 | OTHER | Other - Misc. Documents | Unknown | ADAIR, ROBERT L | | | $0.00 | 0 | 0 |
Payout Agreement
| No payout information available.. |