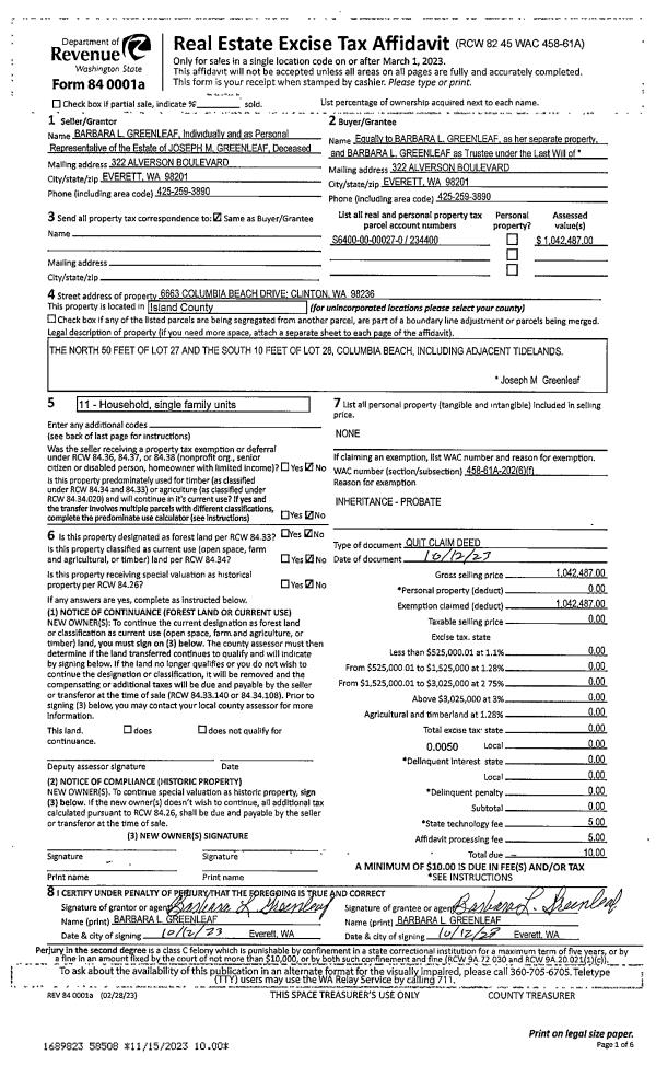
Property
Account |
| Property ID: | 347814 | Abbreviated Legal Description: | PEBBLE BCH NWLY 30.4'OF LOT 57 & SELY 20' LOT 56 INCL ADJ TIDES |
| Geographic ID: | S7715-00-00057-0 | Agent Code: | |
| Type: | Real | | |
| Tax Area: | 540 - APPRAISER-Stan/Cam Schl Dist, Special Dist, improved & less than 1 acre | Land Use Code | 11 |
| Open Space: | N | DFL | N |
| Historic Property: | N | Remodel Property: | N |
| Multi-Family Redevelopment: | N | | |
| Township: | | Section: | |
| Range: | |
Location |
| Address: | 4075 SARATOGA VIEW WALK CAMANO ISLAND, WA 98282 | Mapsco: | |
| Neighborhood: | 58RscamWF-South Cam | Map ID: | 892 |
| Neighborhood CD: | 58RscamWF |
Owner |
| Name: | DAOUD, OMAR | Owner ID: | 303384 |
| Mailing Address: | MUNA BASEM SALEH HADDADIN 14103 262ND AVE SE MONROE, WA 98272 | % Ownership: | 100.0000000000% |
| | | Exemptions: | |
Taxes and Assessment Details
Values
| (+) Improvement Homesite Value: | + | $0 | |
| (+) Improvement Non-Homesite Value: | + | $221,851 | |
| (+) Land Homesite Value: | + | $0 | |
| (+) Land Non-Homesite Value: | + | $350,500 | |
| (+) Curr Use (HS): | + | $0 | $0 |
| (+) Curr Use (NHS): | + | $0 | $0 |
| | | -------------------------- | |
| (=) Market Value: | = | $572,351 | |
| (–) Productivity Loss: | – | $0 | |
| | | -------------------------- | |
| (=) Subtotal: | = | $572,351 | |
| (+) Senior Appraised Value: | + | $0 | |
| (+) Non-Senior Appraised Value: | + | $572,351 | |
| | | -------------------------- | |
| (=) Total Appraised Value: | = | $572,351 | |
| (–) Senior Exemption Loss: | – | $0 | |
| (–) Exemption Loss: | – | $0 | |
| | | -------------------------- | |
| (=) Taxable Value: | = | $572,351 | |
Taxing Jurisdiction
| Owner: | DAOUD, OMAR | | |
| % Ownership: | 100.0000000000% | | |
| Total Value: | $572,351 | | |
| Tax Area: | 540 - APPRAISER-Stan/Cam Schl Dist, Special Dist, improved & less than 1 acre |
| CF | Conservation Futures | 0.0316035091 | $572,351 | $572,351 | $18.09 | | |
| EMS1 | Fire & Rescue Dist #1 Camano GEN (EMS) | 0.3677864386 | $572,351 | $572,351 | $210.50 | | |
| FIRE1 | Fire & Rescue Dist #1 Camano GEN | 1.2502910536 | $572,351 | $572,351 | $715.61 | | |
| FIRE1BOND | Fire & Rescue Dist #1 Camano BOND | 0.1570001679 | $572,351 | $572,351 | $89.86 | | |
| CE | County Current Expense | 0.3708482477 | $572,351 | $572,351 | $212.26 | | |
| CR | County Roads | 0.4584763726 | $572,351 | $572,351 | $262.41 | | |
| LCIB | Library Sno-Isle BOND (Camano Island) | 0.0396325772 | $572,351 | $572,351 | $22.68 | | |
| LIB | Library Sno-Isle GEN | 0.3153421757 | $572,351 | $572,351 | $180.49 | | |
| SCH205_401 | School 205-401 Enrichment | 1.2698420524 | $572,351 | $572,351 | $726.80 | | |
| SCH205BOND | School 205-401 BOND | 0.9396497583 | $572,351 | $572,351 | $537.81 | | |
| ST | State School | 1.3035497053 | $572,351 | $572,351 | $746.09 | | |
| ST2 | State School Part 2 | 0.8169543533 | $572,351 | $572,351 | $467.58 | | |
| | Total Tax Rate: | 7.3209764117 | | | | | |
| | | | | Taxes w/Current Exemptions: | $4,190.18 | | |
| | | | | Taxes w/o Exemptions: | $4,190.18 | | |
Improvement / Building
| Improvement #1: | RESIDENTIAL | State Code: | Y | 1907.0 sqft | Value: | $221,851 |
| Bathrooms: | 2 | Bedrooms: | 3 | | Ceiling: | ACOUSTIC FURRED | Exterior Wall/Cover: | WOOD SIDING | | Floor Covering: | CARPET/VINYL 80-20 | Floor Structure: | WOOD W/SUBFLOOR | | Foundation: | SLAB/CONCRETE | Heating: | BASEBOARD ELECTRIC | | Interior Finish: | DRYWALL PAINT | Plumbing Fixture Cnt: | 9 | | Roof Slope: | 4" IN 12" | Roof Structure/Cover: | CJ ASPHALT |
|
| | Type | Description | Class CD | Sub Class CD | Year Built | Area |
| | BAS | BASE/MAIN FLOOR | 3 | 0 | 1956 | 1164.5 |
| | OP1 | OPEN PORCH SLAB | 3 | 0 | 1956 | 116.0 |
| | BAW | BALCONY WOOD RAIL | 3 | 0 | 1956 | 118.0 |
| | DWN | DOWNSTAIRS LIVING AREA | 3 | 0 | 1956 | 742.5 |
| | UTY | STORAGE/UTILITY | 3 | 0 | 1956 | 348.0 |
| | OP1 | OPEN PORCH SLAB | 3 | 0 | 1956 | 198.0 |
| | OWP | OPEN WOOD PORCH W/STEPS | 3 | 0 | 1956 | 36.0 |
Sketch
Property Image
Land
| 1 | LB | LOW BANK | 0.3088 | 13451.33 | 50.00 | 0.00 | 1.00 | $350,000 | $0 |
| 2 | 55 | TIDES | 0.0000 | 0.00 | 50.00 | 0.00 | 1.00 | $500 | $0 |
Roll Value History
| 2026 | N/A | N/A | N/A | N/A | N/A |
| 2025 | $221,851 | $350,500 | $0 | $572,351 | $572,351 |
| 2024 | $230,202 | $350,500 | $0 | $580,702 | $580,702 |
| 2023 | $233,574 | $350,500 | $0 | $584,074 | $584,074 |
| 2022 | $191,652 | $350,500 | $0 | $542,152 | $542,152 |
| 2021 | $162,195 | $300,500 | $0 | $462,695 | $462,695 |
| 2020 | $158,917 | $250,500 | $0 | $409,417 | $409,417 |
| 2019 | $123,075 | $300,500 | $0 | $423,575 | $423,575 |
| 2018 | $123,539 | $300,500 | $0 | $424,039 | $424,039 |
| 2017 | $124,468 | $200,500 | $0 | $324,968 | $324,968 |
| 2016 | $126,327 | $200,500 | $0 | $326,827 | $326,827 |
| 2015 | $99,067 | $150,500 | $0 | $249,567 | $249,567 |
| 2014 | $100,769 | $150,500 | $0 | $251,269 | $251,269 |
| 2013 | $102,470 | $125,298 | $0 | $227,768 | $227,768 |
| 2012 | $104,169 | $125,298 | $0 | $229,467 | $229,467 |
| 2011 | $105,869 | $156,497 | $0 | $262,366 | $262,366 |
| 2010 | $118,478 | $156,497 | $0 | $274,975 | $274,975 |
| 2009 | $82,075 | $233,598 | $0 | $315,673 | $315,673 |
| 2008 | $87,388 | $194,510 | $0 | $281,898 | $281,898 |
| 2007 | $87,934 | $163,305 | $0 | $251,239 | $251,239 |
Deed and Sales History
| 1 | 03/04/2022 | WD | Warranty Deed | FURNAS, DELWIN G | DAOUD, OMAR | | | $550,000.00 | 52213 | 4541085 |
| 2 | 08/11/2005 | QCD | Quit Claim Deed | FURNAS, DELWIN G | FURNAS, DELWIN G | | | $0.00 | 53895 | 4144513 |
| 3 | 08/11/2005 | PRD | Personal Representatives Deed | FURNAS, GLENN | FURNAS, DELWIN G | | | $0.00 | 53894 | 4144512 |
| 4 | 06/20/2005 | PRD | Personal Representatives Deed | FURNAS, GLENN | FURNAS, GLENN | | | $0.00 | 52920 | 4138476 |
| 5 | 01/01/1900 | OTHER | Other - Misc. Documents | Unknown | FURNAS, GLENN | | | $0.00 | 0 | 0 |
Payout Agreement
| No payout information available.. |