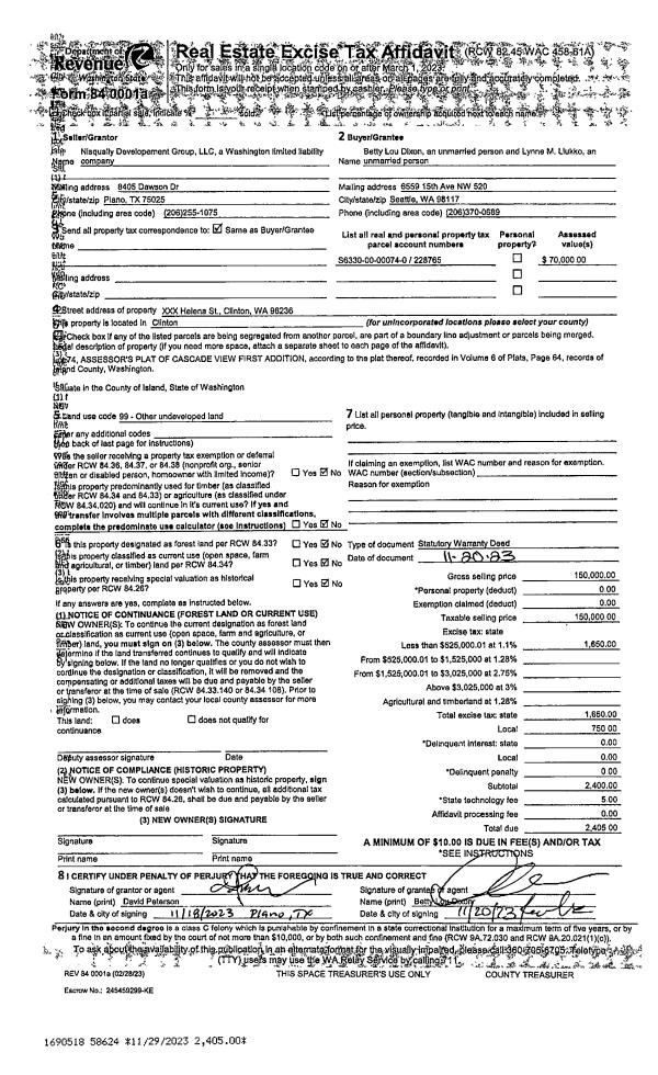
Property
Account |
| Property ID: | 348298 | Abbreviated Legal Description: | PENNS CV MN LOT 8 LY SLY OF CO RD INCL ADJ TIDES |
| Geographic ID: | S7725-00-00008-0 | Agent Code: | |
| Type: | Real | | |
| Tax Area: | 330 - APPRAISER-Cpvl Schl Dist, Special Dist, improved & less than 1 acre | Land Use Code | 11 |
| Open Space: | N | DFL | N |
| Historic Property: | N | Remodel Property: | N |
| Multi-Family Redevelopment: | N | | |
| Township: | | Section: | |
| Range: | |
Location |
| Address: | 1381 PENN COVE RD OAK HARBOR, WA 98277 | Mapsco: | |
| Neighborhood: | Area 2 Waterfront Eastside Res | Map ID: | 159 |
| Neighborhood CD: | 2WFTE01R |
Owner |
| Name: | RYDER III TTEE, CHARLES D | Owner ID: | 309991 |
| Mailing Address: | HELEN BROWN RYDER TTEE 1381 PENN COVE RD OAK HARBOR, WA 98277 | % Ownership: | 100.0000000000% |
| | | Exemptions: | |
Taxes and Assessment Details
Values
| (+) Improvement Homesite Value: | + | $0 | |
| (+) Improvement Non-Homesite Value: | + | $300,693 | |
| (+) Land Homesite Value: | + | $0 | |
| (+) Land Non-Homesite Value: | + | $526,010 | |
| (+) Curr Use (HS): | + | $0 | $0 |
| (+) Curr Use (NHS): | + | $0 | $0 |
| | | -------------------------- | |
| (=) Market Value: | = | $826,703 | |
| (–) Productivity Loss: | – | $0 | |
| | | -------------------------- | |
| (=) Subtotal: | = | $826,703 | |
| (+) Senior Appraised Value: | + | $0 | |
| (+) Non-Senior Appraised Value: | + | $826,703 | |
| | | -------------------------- | |
| (=) Total Appraised Value: | = | $826,703 | |
| (–) Senior Exemption Loss: | – | $0 | |
| (–) Exemption Loss: | – | $0 | |
| | | -------------------------- | |
| (=) Taxable Value: | = | $826,703 | |
Taxing Jurisdiction
| Owner: | RYDER III TTEE, CHARLES D | | |
| % Ownership: | 100.0000000000% | | |
| Total Value: | $826,703 | | |
| Tax Area: | 330 - APPRAISER-Cpvl Schl Dist, Special Dist, improved & less than 1 acre |
| CF | Conservation Futures | 0.0316035091 | $826,703 | $826,703 | $26.13 | | |
| CEM2 | Cemetery #2 | 0.0095056933 | $826,703 | $826,703 | $7.86 | | |
| FIRE2 | Fire & Rescue Dist #2 N Whidbey GEN | 0.5475949600 | $826,703 | $826,703 | $452.70 | | |
| HOBOND | Hospital BOND | 0.1910887512 | $826,703 | $826,703 | $157.97 | | |
| HOGEN | Hospital GEN | 0.3902502903 | $826,703 | $826,703 | $322.62 | | |
| CE | County Current Expense | 0.3708482477 | $826,703 | $826,703 | $306.58 | | |
| CR | County Roads | 0.4584763726 | $826,703 | $826,703 | $379.02 | | |
| ISLANDEMS | Hospital GEN (EMS) | 0.5000000000 | $826,703 | $826,703 | $413.35 | | |
| LIB | Library Sno-Isle GEN | 0.3153421757 | $826,703 | $826,703 | $260.69 | | |
| LIBCAP | Library Sno-Isle BOND (Cap Fac Imp Area) | 0.0543427938 | $826,703 | $826,703 | $44.93 | | |
| POCOUP | Port of Coupeville GEN | 0.1093371703 | $826,703 | $826,703 | $90.39 | | |
| POCOUPIDD | Port of Coupeville IDD | 0.3409740022 | $826,703 | $826,703 | $281.88 | | |
| COUPSDTECH | School 204 CP (TECH) | 0.7545480007 | $826,703 | $826,703 | $623.79 | | |
| SCH204MO | School 204 Enrichment | 0.6716186034 | $826,703 | $826,703 | $555.23 | | |
| ST | State School | 1.3035497053 | $826,703 | $826,703 | $1,077.65 | | |
| ST2 | State School Part 2 | 0.8169543533 | $826,703 | $826,703 | $675.38 | | |
| | Total Tax Rate: | 6.8660346289 | | | | | |
| | | | | Taxes w/Current Exemptions: | $5,676.17 | | |
| | | | | Taxes w/o Exemptions: | $5,676.17 | | |
Improvement / Building
| Improvement #1: | RESIDENTIAL | State Code: | Y | 2443.0 sqft | Value: | $300,693 |
| Bathrooms: | 2 | Bedrooms: | 1 | | Ceiling: | TONGUE & GROOVE | Exterior Wall/Cover: | PLY/HARDBOARD T-111 | | Floor Covering: | CARPET/VINYL 60-40 | Floor Structure: | WOOD W/SUBFLOOR | | Foundation: | CONCRETE | Heating: | FHA GAS | | Interior Finish: | DRYWALL PAINT | Plumbing Fixture Cnt: | 12 | | Roof Slope: | 10" IN 12" | Roof Structure/Cover: | BEAM ASPHALT |
|
| | Type | Description | Class CD | Sub Class CD | Year Built | Area |
| | BAS | BASE/MAIN FLOOR | 3 | 0 | 1969 | 1255.0 |
| | BIG | BUILT IN GARAGE | 3 | 0 | 1969 | 484.0 |
| | OWP | OPEN WOOD PORCH W/STEPS | 3 | 0 | 1969 | 303.4 |
| | OWP | OPEN WOOD PORCH W/STEPS | 3 | 0 | 1969 | 396.0 |
| | ENP | ENCLOSED PORCH | 3 | 0 | 1969 | 252.0 |
| | LOF | LOFT | 3 | 0 | 1969 | 160.0 |
| | DWN | DOWNSTAIRS LIVING AREA | 3 | 0 | 1969 | 1028.0 |
Sketch
| No sketches available for this property. |
Property Image
Land
| 1 | HB | HIGH BLUFF | 0.9600 | 41817.60 | 101.00 | 0.00 | 1.00 | $525,000 | $0 |
| 2 | 55 | TIDES | 0.0000 | 0.00 | 101.00 | 0.00 | 1.00 | $1,010 | $0 |
Roll Value History
| 2026 | N/A | N/A | N/A | N/A | N/A |
| 2025 | $300,693 | $526,010 | $0 | $826,703 | $826,703 |
| 2024 | $282,260 | $501,010 | $0 | $783,270 | $783,270 |
| 2023 | $286,868 | $501,010 | $0 | $787,878 | $787,878 |
| 2022 | $263,926 | $451,010 | $0 | $714,936 | $714,936 |
| 2021 | $233,128 | $301,010 | $0 | $534,138 | $534,138 |
| 2020 | $228,332 | $301,010 | $0 | $529,342 | $529,342 |
| 2019 | $177,549 | $301,010 | $0 | $478,559 | $478,559 |
| 2018 | $159,517 | $301,010 | $0 | $460,527 | $460,527 |
| 2017 | $160,811 | $251,010 | $0 | $411,821 | $411,821 |
| 2016 | $163,406 | $251,010 | $0 | $414,416 | $414,416 |
| 2015 | $165,998 | $251,010 | $0 | $417,008 | $417,008 |
| 2014 | $168,592 | $251,010 | $0 | $419,602 | $419,602 |
| 2013 | $171,187 | $220,831 | $0 | $392,018 | $392,018 |
| 2012 | $177,745 | $220,831 | $0 | $398,576 | $398,576 |
| 2011 | $180,367 | $220,831 | $0 | $401,198 | $401,198 |
| 2010 | $190,083 | $220,831 | $0 | $410,914 | $410,914 |
| 2009 | $198,582 | $275,787 | $0 | $474,369 | $474,369 |
| 2008 | $201,353 | $219,582 | $0 | $420,935 | $420,935 |
| 2007 | $204,122 | $241,309 | $0 | $445,431 | $445,431 |
Deed and Sales History
| 1 | 08/30/2023 | QCD | Quit Claim Deed | RYDER III, CHARLES D | RYDER III TTEE, CHARLES D | | | $0.00 | 57911 | 4564434 |
| 2 | 07/09/2018 | OTHER | Other - Misc. Documents | RYDER, CHARLES D III / HELEN | RYDER III, CHARLES D | | | | 87823 | |
| 3 | 01/01/1993 | WD | Warranty Deed | DAVIS, ROBERT H | RYDER, CHARLES D | | | $222,500.00 | 30390 | 93001990 |
| 4 | 04/01/1992 | QCD | Quit Claim Deed | DAVIS, ROBERT H | DAVIS, ROBERT H | | | $0.00 | 21463 | 92007000 |
| 5 | 08/01/1987 | PRD | Personal Representatives Deed | DAVIS, ROBERT H | DAVIS, ROBERT H | | | $0.00 | 72434 | 87011126 |
| 6 | 01/01/1900 | OTHER | Other - Misc. Documents | Unknown | DAVIS, ROBERT H | | | $0.00 | 0 | 0 |
Payout Agreement
| No payout information available.. |