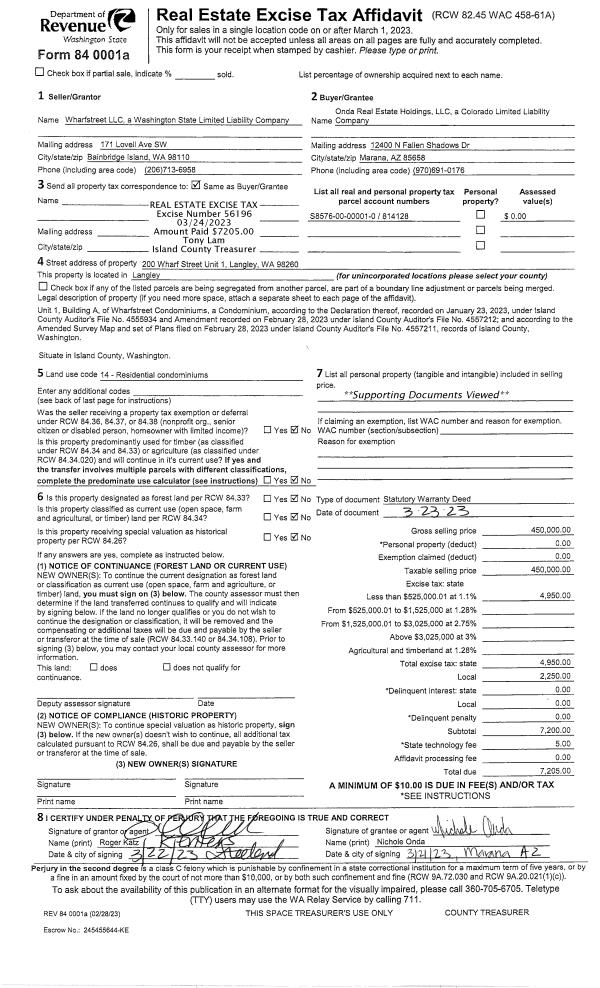
Property
Account |
| Property ID: | 34830 | Abbreviated Legal Description: | 10 - IN SE SW: BG SWCR SE SW N1*E563.72' S87*E1100.04 TPB S87*E211.20' S1*W381.46 TO ST HWY SWLY 194.73' W102 .03' M/L N1*E544.24' TPB TGW EZ (LOT D SP 71-012 AF#240287) EX PT TO ST HWY AF#20045287 |
| Geographic ID: | R13313-030-2530 | Agent Code: | |
| Type: | Real | | |
| Tax Area: | 112 - APPRAISER-OH Schl Dist, outside OH, improved, greater than 1 acre | Land Use Code | 59 |
| Open Space: | N | DFL | N |
| Historic Property: | N | Remodel Property: | N |
| Multi-Family Redevelopment: | N | | |
| Township: | 33 | Section: | 13 |
| Range: | R1 |
Location |
| Address: | 211 MOONSTONE PLACE OAK HARBOR, WA 98277 | Mapsco: | |
| Neighborhood: | 62cRR-highway 20 | Map ID: | 209 |
| Neighborhood CD: | 62cRRhwy20 |
Owner |
| Name: | SPRUCE, WESLEY | Owner ID: | 311740 |
| Mailing Address: | KAYLA SPRUCE 1407 WESTERN DR OAK HARBOR, WA 98277 | % Ownership: | 100.0000000000% |
| | | Exemptions: | |
Taxes and Assessment Details
Values
| (+) Improvement Homesite Value: | + | $0 | |
| (+) Improvement Non-Homesite Value: | + | $395,021 | |
| (+) Land Homesite Value: | + | $0 | |
| (+) Land Non-Homesite Value: | + | $250,000 | |
| (+) Curr Use (HS): | + | $0 | $0 |
| (+) Curr Use (NHS): | + | $0 | $0 |
| | | -------------------------- | |
| (=) Market Value: | = | $645,021 | |
| (–) Productivity Loss: | – | $0 | |
| | | -------------------------- | |
| (=) Subtotal: | = | $645,021 | |
| (+) Senior Appraised Value: | + | $0 | |
| (+) Non-Senior Appraised Value: | + | $645,021 | |
| | | -------------------------- | |
| (=) Total Appraised Value: | = | $645,021 | |
| (–) Senior Exemption Loss: | – | $0 | |
| (–) Exemption Loss: | – | $0 | |
| | | -------------------------- | |
| (=) Taxable Value: | = | $645,021 | |
Taxing Jurisdiction
| Owner: | SPRUCE, WESLEY | | |
| % Ownership: | 100.0000000000% | | |
| Total Value: | $645,021 | | |
| Tax Area: | 112 - APPRAISER-OH Schl Dist, outside OH, improved, greater than 1 acre |
| CF | Conservation Futures | 0.0316035091 | $645,021 | $645,021 | $20.38 | | |
| CEM1 | Cemetery #1 | 0.0040320932 | $645,021 | $645,021 | $2.60 | | |
| FIRE2 | Fire & Rescue Dist #2 N Whidbey GEN | 0.5475949600 | $645,021 | $645,021 | $353.21 | | |
| HOBOND | Hospital BOND | 0.1910887512 | $645,021 | $645,021 | $123.26 | | |
| HOGEN | Hospital GEN | 0.3902502903 | $645,021 | $645,021 | $251.72 | | |
| CE | County Current Expense | 0.3708482477 | $645,021 | $645,021 | $239.20 | | |
| CR | County Roads | 0.4584763726 | $645,021 | $645,021 | $295.73 | | |
| ISLANDEMS | Hospital GEN (EMS) | 0.5000000000 | $645,021 | $645,021 | $322.51 | | |
| LIB | Library Sno-Isle GEN | 0.3153421757 | $645,021 | $645,021 | $203.40 | | |
| NWHIDPRMT | P & R N Whidbey GEN | 0.2004466701 | $645,021 | $645,021 | $129.29 | | |
| SCH201MO | School 201 Enrichment | 1.8559231640 | $645,021 | $645,021 | $1,197.11 | | |
| ST | State School | 1.3035497053 | $645,021 | $645,021 | $840.82 | | |
| ST2 | State School Part 2 | 0.8169543533 | $645,021 | $645,021 | $526.95 | | |
| | Total Tax Rate: | 6.9861102925 | | | | | |
| | | | | Taxes w/Current Exemptions: | $4,506.18 | | |
| | | | | Taxes w/o Exemptions: | $4,506.18 | | |
Improvement / Building
| Improvement #1: | RESIDENTIAL | State Code: | Y | 2304.0 sqft | Value: | $281,992 |
| Bathrooms: | 2 | Bedrooms: | 5 | | Ceiling: | DRYWALL PAINTED | Exterior Wall/Cover: | VINYL | | Floor Covering: | CARPET/VINYL 80-20 | Floor Structure: | WOOD W/SUBFLOOR | | Foundation: | CONCRETE | Heating: | FHA OIL | | Interior Finish: | DRYWALL PAINT | Plumbing Fixture Cnt: | 9 | | Roof Slope: | 4" IN 12" | Roof Structure/Cover: | CJ ASPHALT |
|
| | Type | Description | Class CD | Sub Class CD | Year Built | Area |
| | BAS | BASE/MAIN FLOOR | 3 | 0 | 1950 | 1152.0 |
| | DWN | DOWNSTAIRS LIVING AREA | 3 | 0 | 1950 | 1152.0 |
| | ENP | ENCLOSED PORCH | 3 | 0 | 1950 | 120.0 |
| | OWP | OPEN WOOD PORCH W/STEPS | 3 | 0 | 1950 | 216.0 |
| | OWR | OPEN WOOD PORCH W/STEPS/ROOF | 3 | 0 | 1950 | 360.0 |
| | OP1 | OPEN PORCH SLAB | 3 | 0 | 1950 | 240.0 |
| Improvement #2: | COMMERCIAL | State Code: | Y | 2112.0 sqft | Value: | $113,029 |
| Bathrooms: | 1 | Bedrooms: | 0 | | Ceiling: | DRYWALL PAINTED | Exterior Wall/Cover: | STL/ALUM/SINGWL WD F | | Floor Covering: | CONCRETE SEALER | Floor Structure: | SLAB ON GRADE | | Foundation: | CONCRETE | Heating: | SPACE HEATERS | | Interior Finish: | SERVICE GARAGE | Plumbing Fixture Cnt: | 1 | | Roof Structure/Cover: | METAL/OPEN WOOD |   |   |
|
Sketch
Property Image
Land
| 1 | 18 | AC (02.01-03.00) | 2.3900 | 104108.40 | 0.00 | 0.00 | 1.00 | $250,000 | $0 |
Roll Value History
| 2026 | N/A | N/A | N/A | N/A | N/A |
| 2025 | $395,021 | $250,000 | $0 | $645,021 | $645,021 |
| 2024 | $404,717 | $220,000 | $0 | $624,717 | $624,717 |
| 2023 | $414,414 | $220,000 | $0 | $634,414 | $634,414 |
| 2022 | $308,572 | $160,000 | $0 | $468,572 | $468,572 |
| 2021 | $290,349 | $160,000 | $0 | $450,349 | $450,349 |
| 2020 | $283,310 | $130,000 | $0 | $413,310 | $413,310 |
| 2019 | $205,779 | $180,000 | $0 | $385,779 | $385,779 |
| 2018 | $206,453 | $170,000 | $0 | $376,453 | $376,453 |
| 2017 | $207,802 | $102,572 | $0 | $310,374 | $310,374 |
| 2016 | $225,491 | $102,572 | $0 | $328,063 | $328,063 |
| 2015 | $225,491 | $102,572 | $0 | $328,063 | $328,063 |
| 2014 | $225,491 | $102,572 | $0 | $328,063 | $328,063 |
| 2013 | $225,491 | $102,572 | $0 | $328,063 | $328,063 |
| 2012 | $225,491 | $102,572 | $0 | $328,063 | $328,063 |
| 2011 | $225,491 | $102,572 | $0 | $328,063 | $328,063 |
| 2010 | $196,157 | $102,572 | $0 | $298,729 | $298,729 |
| 2009 | $205,789 | $112,100 | $0 | $317,889 | $317,889 |
| 2008 | $210,811 | $118,000 | $0 | $328,811 | $328,811 |
| 2007 | $217,736 | $118,000 | $0 | $335,736 | $335,736 |
Deed and Sales History
| 1 | 03/25/2024 | QCD | Quit Claim Deed | BASOCO, ARIANNA | WHITE, JASON L | | | $0.00 | 59476 | 4570555 |
| 2 | 03/20/2024 | WD | Warranty Deed | WHITE, JASON L | SPRUCE, WESLEY | | | $600,000.00 | 59471 | 4570538 |
| 3 | 04/29/2009 | WD | Warranty Deed | DOWNS, DEBRA J | WHITE, JASON L | | | $275,000.00 | 91137 | 4252169 |
| 4 | 08/30/2001 | WD | Warranty Deed | DOWNS, DEBRA J | DOWNS, DEBRA J | | | $1,000.00 | 13945 | 20045287 |
| 5 | 07/01/1995 | WD | Warranty Deed | YOCUM, TIMOTHY J | DOWNS, DEBRA J | | | $105,000.00 | 52335 | 95010770 |
| 6 | 03/01/1986 | WD | Warranty Deed | GREENWELL, JERRY W | YOCUM, TIMOTHY J | | | $63,000.00 | 60747 | 86003532 |
| 7 | 10/01/1978 | OTHER | Other - Misc. Documents | CHANEY, DONALD E | GREENWELL, JERRY W | | | $49,900.00 | 85021 | 341163 |
| 8 | 01/01/1900 | OTHER | Other - Misc. Documents | Unknown | CHANEY, DONALD E | | | $0.00 | 0 | 0 |
Payout Agreement
| No payout information available.. |