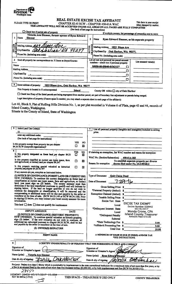
Property
Account |
| Property ID: | 348449 | Abbreviated Legal Description: | PENN CV PK LOT 4 EX E225' |
| Geographic ID: | S7730-00-00004-1 | Agent Code: | |
| Type: | Real | | |
| Tax Area: | 120 - APPRAISER-OH Schl Dist, Special Dist, improved & 1 acre or less | Land Use Code | 11 |
| Open Space: | N | DFL | N |
| Historic Property: | N | Remodel Property: | N |
| Multi-Family Redevelopment: | N | | |
| Township: | | Section: | |
| Range: | |
Location |
| Address: | 1085 SHADY LN OAK HARBOR, WA 98277 | Mapsco: | |
| Neighborhood: | Cycle 2 | Map ID: | 153 |
| Neighborhood CD: | 2 |
Owner |
| Name: | RAMIREZ, MARIA DIAZ | Owner ID: | 279286 |
| Mailing Address: | 1211 27TH COURT ANACORTES, WA 98221 | % Ownership: | 100.0000000000% |
| | | Exemptions: | |
Taxes and Assessment Details
Values
| (+) Improvement Homesite Value: | + | $0 | |
| (+) Improvement Non-Homesite Value: | + | $149,461 | |
| (+) Land Homesite Value: | + | $0 | |
| (+) Land Non-Homesite Value: | + | $210,000 | |
| (+) Curr Use (HS): | + | $0 | $0 |
| (+) Curr Use (NHS): | + | $0 | $0 |
| | | -------------------------- | |
| (=) Market Value: | = | $359,461 | |
| (–) Productivity Loss: | – | $0 | |
| | | -------------------------- | |
| (=) Subtotal: | = | $359,461 | |
| (+) Senior Appraised Value: | + | $0 | |
| (+) Non-Senior Appraised Value: | + | $359,461 | |
| | | -------------------------- | |
| (=) Total Appraised Value: | = | $359,461 | |
| (–) Senior Exemption Loss: | – | $0 | |
| (–) Exemption Loss: | – | $0 | |
| | | -------------------------- | |
| (=) Taxable Value: | = | $359,461 | |
Taxing Jurisdiction
| Owner: | RAMIREZ, MARIA DIAZ | | |
| % Ownership: | 100.0000000000% | | |
| Total Value: | $359,461 | | |
| Tax Area: | 120 - APPRAISER-OH Schl Dist, Special Dist, improved & 1 acre or less |
| CF | Conservation Futures | 0.0316035091 | $359,461 | $359,461 | $11.36 | | |
| CEM1 | Cemetery #1 | 0.0040320932 | $359,461 | $359,461 | $1.45 | | |
| FIRE2 | Fire & Rescue Dist #2 N Whidbey GEN | 0.5475949600 | $359,461 | $359,461 | $196.84 | | |
| HOBOND | Hospital BOND | 0.1910887512 | $359,461 | $359,461 | $68.69 | | |
| HOGEN | Hospital GEN | 0.3902502903 | $359,461 | $359,461 | $140.28 | | |
| CE | County Current Expense | 0.3708482477 | $359,461 | $359,461 | $133.31 | | |
| CR | County Roads | 0.4584763726 | $359,461 | $359,461 | $164.80 | | |
| ISLANDEMS | Hospital GEN (EMS) | 0.5000000000 | $359,461 | $359,461 | $179.73 | | |
| LIB | Library Sno-Isle GEN | 0.3153421757 | $359,461 | $359,461 | $113.35 | | |
| NWHIDPRMT | P & R N Whidbey GEN | 0.2004466701 | $359,461 | $359,461 | $72.05 | | |
| SCH201MO | School 201 Enrichment | 1.8559231640 | $359,461 | $359,461 | $667.13 | | |
| ST | State School | 1.3035497053 | $359,461 | $359,461 | $468.58 | | |
| ST2 | State School Part 2 | 0.8169543533 | $359,461 | $359,461 | $293.66 | | |
| | Total Tax Rate: | 6.9861102925 | | | | | |
| | | | | Taxes w/Current Exemptions: | $2,511.23 | | |
| | | | | Taxes w/o Exemptions: | $2,511.23 | | |
Improvement / Building
| Improvement #1: | RESIDENTIAL | State Code: | Y | 1008.0 sqft | Value: | $149,461 |
| Bathrooms: | 1 | Bedrooms: | 0 | | Ceiling: | DRYWALL PAINTED | Exterior Wall/Cover: | PLY/HARDBOARD T-111 | | Floor Covering: | CARPET/VINYL 80-20 | Floor Structure: | WOOD W/SUBFLOOR | | Foundation: | CONCRETE | Heating: | WALL HEAT ELECTRIC | | Interior Finish: | DRYWALL PAINT | Plumbing Fixture Cnt: | 6 | | Roof Slope: | 4" IN 12" | Roof Structure/Cover: | CJ ASPHALT |
|
| | Type | Description | Class CD | Sub Class CD | Year Built | Area |
| | BAS | BASE/MAIN FLOOR | 3 | 0 | 1988 | 1008.0 |
| | AGR | ATTACHED GARAGE | 3 | 0 | 1988 | 288.0 |
| | OWP | OPEN WOOD PORCH W/STEPS | 3 | 0 | 1988 | 192.0 |
Sketch
Property Image
Land
| 1 | 16 | AC (00.51-01.00) | 1.0800 | 47044.80 | 0.00 | 0.00 | 1.00 | $210,000 | $0 |
Roll Value History
| 2026 | N/A | N/A | N/A | N/A | N/A |
| 2025 | $149,461 | $210,000 | $0 | $359,461 | $359,461 |
| 2024 | $151,620 | $210,000 | $0 | $361,620 | $361,620 |
| 2023 | $153,778 | $220,000 | $0 | $373,778 | $373,778 |
| 2022 | $141,204 | $200,000 | $0 | $341,204 | $341,204 |
| 2021 | $124,483 | $160,000 | $0 | $284,483 | $284,483 |
| 2020 | $121,435 | $120,000 | $0 | $241,435 | $241,435 |
| 2019 | $86,325 | $150,000 | $0 | $236,325 | $236,325 |
| 2018 | $86,862 | $130,000 | $0 | $216,862 | $216,862 |
| 2017 | $87,437 | $115,000 | $0 | $202,437 | $202,437 |
| 2016 | $88,587 | $60,000 | $0 | $148,587 | $148,587 |
| 2015 | $89,737 | $60,000 | $0 | $149,737 | $149,737 |
| 2014 | $90,888 | $60,000 | $0 | $150,888 | $150,888 |
| 2013 | $92,038 | $55,000 | $0 | $147,038 | $147,038 |
| 2012 | $98,704 | $84,150 | $0 | $182,854 | $182,854 |
| 2011 | $99,876 | $99,000 | $0 | $198,876 | $198,876 |
| 2010 | $102,678 | $99,000 | $0 | $201,678 | $201,678 |
| 2009 | $107,262 | $115,000 | $0 | $222,262 | $222,262 |
| 2008 | $108,832 | $135,000 | $0 | $243,832 | $243,832 |
| 2007 | $110,484 | $96,000 | $0 | $206,484 | $206,484 |
Deed and Sales History
| 1 | 03/22/2017 | WD | Warranty Deed | JELOBKOVITCH, DIMITRI | RAMIREZ, MARIA DIAZ | | | $240,000.00 | 28734 | 4420145 |
| 2 | 07/23/2013 | WD | Warranty Deed | ESQUIVEL, ANGEL D | JELOBKOVITCH, DIMITRI | | | $145,000.00 | 12194 | 4345183 |
| 3 | 07/31/2006 | WD | Warranty Deed | EARL, DARVEL E | ESQUIVEL, ANGEL D | | | $225,000.00 | 63318 | 4177739 |
| 4 | 05/17/2004 | WD | Warranty Deed | MOELLER, AARON L | EARL, DARVEL E | | | $161,000.00 | 42090 | 4101024 |
| 5 | 03/01/1995 | WD | Warranty Deed | SHERRILL, KIRK A | MOELLER, AARON L | | | $118,000.00 | 51063 | 95005037 |
| 6 | 12/01/1991 | WD | Warranty Deed | TURIS, TIMOTHY M | SHERRILL, KIRK A | | | $83,500.00 | 14559 | 91019947 |
| 7 | 07/01/1991 | DECREE | Divorce Decree/Legal Separation | TURIS, TIMOTHY M | TURIS, TIMOTHY M | | | $0.00 | 12803 | 91011981 |
| 8 | 04/01/1988 | WD | Warranty Deed | ISLAND, PACIFIC C | TURIS, TIMOTHY M | | | $58,900.00 | 81123 | 88004265 |
| 9 | 01/01/1988 | WD | Warranty Deed | BETZ, COLONEL F | ISLAND, PACIFIC C | | | $12,000.00 | 80142 | 88000543 |
| 10 | 11/01/1986 | WD | Warranty Deed | COOK, JULIA G | BETZ, COLONEL F | | | $0.00 | 70407 | 87002578 |
| 11 | 01/01/1900 | OTHER | Other - Misc. Documents | Unknown | COOK, JULIA G | | | $0.00 | 0 | 0 |
Payout Agreement
| No payout information available.. |