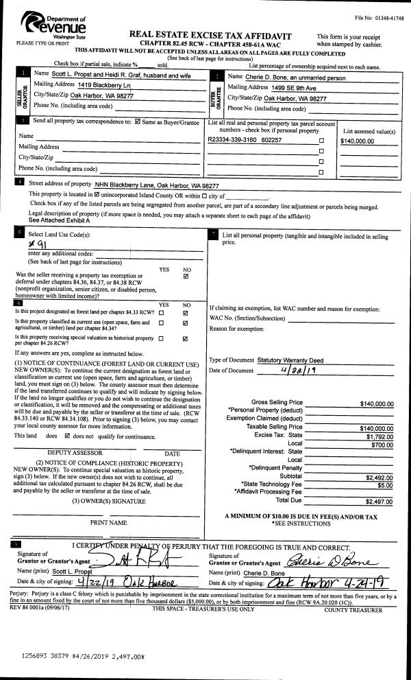
Property
Account |
| Property ID: | 34849 | Abbreviated Legal Description: | 7 - S/2 SW SE EX RD EX W408.3' & EX E500' |
| Geographic ID: | R13313-032-3280 | Agent Code: | |
| Type: | Real | | |
| Tax Area: | 112 - APPRAISER-OH Schl Dist, outside OH, improved, greater than 1 acre | Land Use Code | 11 |
| Open Space: | N | DFL | N |
| Historic Property: | N | Remodel Property: | N |
| Multi-Family Redevelopment: | N | | |
| Township: | 33 | Section: | 13 |
| Range: | R1 |
Location |
| Address: | 166 W SLEEPER RD OAK HARBOR, WA 98277 | Mapsco: | |
| Neighborhood: | Cycle 6 | Map ID: | 210 |
| Neighborhood CD: | 6 |
Owner |
| Name: | GWALTNEY, CATHERINE | Owner ID: | 299362 |
| Mailing Address: | KILE GWALTNEY 166 W SLEEPER RD OAK HARBOR, WA 98277 | % Ownership: | 100.0000000000% |
| | | Exemptions: | |
Taxes and Assessment Details
Values
| (+) Improvement Homesite Value: | + | $0 | |
| (+) Improvement Non-Homesite Value: | + | $76,260 | |
| (+) Land Homesite Value: | + | $0 | |
| (+) Land Non-Homesite Value: | + | $300,000 | |
| (+) Curr Use (HS): | + | $0 | $0 |
| (+) Curr Use (NHS): | + | $0 | $0 |
| | | -------------------------- | |
| (=) Market Value: | = | $376,260 | |
| (–) Productivity Loss: | – | $0 | |
| | | -------------------------- | |
| (=) Subtotal: | = | $376,260 | |
| (+) Senior Appraised Value: | + | $0 | |
| (+) Non-Senior Appraised Value: | + | $376,260 | |
| | | -------------------------- | |
| (=) Total Appraised Value: | = | $376,260 | |
| (–) Senior Exemption Loss: | – | $0 | |
| (–) Exemption Loss: | – | $0 | |
| | | -------------------------- | |
| (=) Taxable Value: | = | $376,260 | |
Taxing Jurisdiction
| Owner: | GWALTNEY, CATHERINE | | |
| % Ownership: | 100.0000000000% | | |
| Total Value: | $376,260 | | |
| Tax Area: | 112 - APPRAISER-OH Schl Dist, outside OH, improved, greater than 1 acre |
| CF | Conservation Futures | 0.0316035091 | $376,260 | $376,260 | $11.89 | | |
| CEM1 | Cemetery #1 | 0.0040320932 | $376,260 | $376,260 | $1.52 | | |
| FIRE2 | Fire & Rescue Dist #2 N Whidbey GEN | 0.5475949600 | $376,260 | $376,260 | $206.04 | | |
| HOBOND | Hospital BOND | 0.1910887512 | $376,260 | $376,260 | $71.90 | | |
| HOGEN | Hospital GEN | 0.3902502903 | $376,260 | $376,260 | $146.84 | | |
| CE | County Current Expense | 0.3708482477 | $376,260 | $376,260 | $139.54 | | |
| CR | County Roads | 0.4584763726 | $376,260 | $376,260 | $172.51 | | |
| ISLANDEMS | Hospital GEN (EMS) | 0.5000000000 | $376,260 | $376,260 | $188.13 | | |
| LIB | Library Sno-Isle GEN | 0.3153421757 | $376,260 | $376,260 | $118.65 | | |
| NWHIDPRMT | P & R N Whidbey GEN | 0.2004466701 | $376,260 | $376,260 | $75.42 | | |
| SCH201MO | School 201 Enrichment | 1.8559231640 | $376,260 | $376,260 | $698.31 | | |
| ST | State School | 1.3035497053 | $376,260 | $376,260 | $490.47 | | |
| ST2 | State School Part 2 | 0.8169543533 | $376,260 | $376,260 | $307.39 | | |
| | Total Tax Rate: | 6.9861102925 | | | | | |
| | | | | Taxes w/Current Exemptions: | $2,628.61 | | |
| | | | | Taxes w/o Exemptions: | $2,628.61 | | |
Improvement / Building
| Improvement #1: | MANUFACTURED HOME | State Code: | Y | 1380.0 sqft | Value: | $76,260 |
| Bathrooms: | 2 | Bedrooms: | 3 | | Ceiling: | PLASTER PAINTED | Cooling: | EVAP NO DUCT | | Exterior Wall/Cover: | VINYL | Floor Covering: | CARPET 100% | | Floor Structure: | SLAB ON GRADE | Foundation: | SLAB | | Heating: | FHA ELECTRIC | Interior Finish: | PLASTER | | Plumbing Fixture Cnt: | 1 | Roof Slope: | FLAT | | Roof Structure/Cover: | CJ ALUMINIUM HEAVY |   |   |
|
| | Type | Description | Class CD | Sub Class CD | Year Built | Area |
| | BAS | BASE/MAIN FLOOR | 3 | 0 | 1973 | 1380.0 |
| | DGR | DETACHED GARAGE | 3 | 0 | 1973 | 1296.0 |
| | OWR | OPEN WOOD PORCH W/STEPS/ROOF | 3 | 0 | 1973 | 85.0 |
Sketch
Property Image
Land
| 1 | 32 | AC (03.01-09.99) | 6.2200 | 270943.20 | 0.00 | 0.00 | 1.00 | $300,000 | $0 |
Roll Value History
| 2026 | N/A | N/A | N/A | N/A | N/A |
| 2025 | $76,260 | $300,000 | $0 | $376,260 | $376,260 |
| 2024 | $78,569 | $280,000 | $0 | $358,569 | $358,569 |
| 2023 | $80,877 | $270,000 | $0 | $350,877 | $350,877 |
| 2022 | $83,611 | $240,000 | $0 | $323,611 | $323,611 |
| 2021 | $76,010 | $175,000 | $0 | $251,010 | $251,010 |
| 2020 | $67,376 | $150,000 | $0 | $217,376 | $217,376 |
| 2019 | $56,391 | $185,000 | $0 | $241,391 | $241,391 |
| 2018 | $58,603 | $170,000 | $0 | $228,603 | $228,603 |
| 2017 | $60,814 | $150,000 | $0 | $210,814 | $210,814 |
| 2016 | $46,185 | $140,000 | $0 | $186,185 | $186,185 |
| 2015 | $46,806 | $120,000 | $0 | $166,806 | $166,806 |
| 2014 | $48,047 | $106,875 | $0 | $154,922 | $154,922 |
| 2013 | $43,779 | $106,875 | $0 | $150,654 | $150,654 |
| 2012 | $45,631 | $95,750 | $0 | $141,381 | $141,381 |
| 2011 | $46,864 | $106,300 | $0 | $153,164 | $153,164 |
| 2010 | $59,179 | $106,300 | $0 | $165,479 | $165,479 |
| 2009 | $61,221 | $106,300 | $0 | $167,521 | $167,521 |
| 2008 | $64,162 | $125,290 | $0 | $189,452 | $189,452 |
| 2007 | $65,815 | $125,290 | $0 | $191,105 | $191,105 |
Deed and Sales History
| 1 | 05/14/2021 | WD | Warranty Deed | MCLAUGHLIN IV, CARL CLESTINE | GWALTNEY, CATHERINE | | | $325,000.00 | 48236 | 4519242 |
| 2 | 03/25/2019 | WD | Warranty Deed | REED, JUSTIN | MCLAUGHLIN IV, CARL CLESTINE | | | $258,500.00 | 37995 | 4461071 |
| 3 | 09/11/2013 | WD | Warranty Deed | MASSEY, WILLIAM L | REED, JUSTIN | | | $157,000.00 | 12946 | 4348842 |
| 4 | 04/05/2012 | WD | Warranty Deed | MOORS, ALVIN R | MASSEY, WILLIAM L | | | $67,250.00 | 7327 | 4313198 |
Payout Agreement
| No payout information available.. |