Property
Account |
| Property ID: | 34947 | Abbreviated Legal Description: | 32 - PT SW SE LY NWLY OF R/W FOR STATE HWY 1-D DESC ISLAND CO CAUSE # 3350 EX ANY PT LY IN S443' OF SD SW SE |
| Geographic ID: | R13313-091-2740 | Agent Code: | |
| Type: | Real | | |
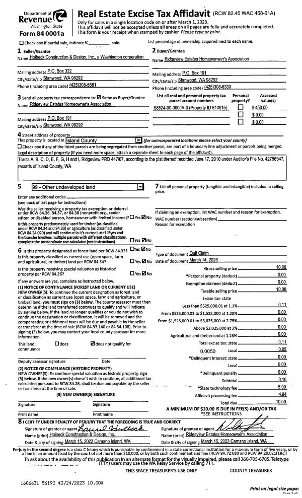
| Tax Area: | 112 - APPRAISER-OH Schl Dist, outside OH, improved, greater than 1 acre | Land Use Code | 52 |
| Open Space: | N | DFL | N |
| Historic Property: | N | Remodel Property: | N |
| Multi-Family Redevelopment: | N | | |
| Township: | 33 | Section: | 13 |
| Range: | R1 |
Location |
| Address: | | Mapsco: | |
| Neighborhood: | 62cRR-highway 20 | Map ID: | 210 |
| Neighborhood CD: | 62cRRhwy20 |
Owner |
| Name: | MILES SAND & GRAVEL COMPANY | Owner ID: | 260535 |
| Mailing Address: | 400 VALLEY AVE NE PUYALLUP, WA 98372 | % Ownership: | 100.0000000000% |
| | | Exemptions: | |
Taxes and Assessment Details
Values
| (+) Improvement Homesite Value: | + | $0 | |
| (+) Improvement Non-Homesite Value: | + | $254,043 | |
| (+) Land Homesite Value: | + | $0 | |
| (+) Land Non-Homesite Value: | + | $413,820 | |
| (+) Curr Use (HS): | + | $0 | $0 |
| (+) Curr Use (NHS): | + | $0 | $0 |
| | | -------------------------- | |
| (=) Market Value: | = | $667,863 | |
| (–) Productivity Loss: | – | $0 | |
| | | -------------------------- | |
| (=) Subtotal: | = | $667,863 | |
| (+) Senior Appraised Value: | + | $0 | |
| (+) Non-Senior Appraised Value: | + | $667,863 | |
| | | -------------------------- | |
| (=) Total Appraised Value: | = | $667,863 | |
| (–) Senior Exemption Loss: | – | $0 | |
| (–) Exemption Loss: | – | $0 | |
| | | -------------------------- | |
| (=) Taxable Value: | = | $667,863 | |
Taxing Jurisdiction
| Owner: | MILES SAND & GRAVEL COMPANY | | |
| % Ownership: | 100.0000000000% | | |
| Total Value: | $667,863 | | |
| Tax Area: | 112 - APPRAISER-OH Schl Dist, outside OH, improved, greater than 1 acre |
| CF | Conservation Futures | 0.0316035091 | $667,863 | $667,863 | $21.11 | | |
| CEM1 | Cemetery #1 | 0.0040320932 | $667,863 | $667,863 | $2.69 | | |
| FIRE2 | Fire & Rescue Dist #2 N Whidbey GEN | 0.5475949600 | $667,863 | $667,863 | $365.72 | | |
| HOBOND | Hospital BOND | 0.1910887512 | $667,863 | $667,863 | $127.62 | | |
| HOGEN | Hospital GEN | 0.3902502903 | $667,863 | $667,863 | $260.63 | | |
| CE | County Current Expense | 0.3708482477 | $667,863 | $667,863 | $247.68 | | |
| CR | County Roads | 0.4584763726 | $667,863 | $667,863 | $306.20 | | |
| ISLANDEMS | Hospital GEN (EMS) | 0.5000000000 | $667,863 | $667,863 | $333.93 | | |
| LIB | Library Sno-Isle GEN | 0.3153421757 | $667,863 | $667,863 | $210.61 | | |
| NWHIDPRMT | P & R N Whidbey GEN | 0.2004466701 | $667,863 | $667,863 | $133.87 | | |
| SCH201MO | School 201 Enrichment | 1.8559231640 | $667,863 | $667,863 | $1,239.50 | | |
| ST | State School | 1.3035497053 | $667,863 | $667,863 | $870.59 | | |
| ST2 | State School Part 2 | 0.8169543533 | $667,863 | $667,863 | $545.61 | | |
| | Total Tax Rate: | 6.9861102925 | | | | | |
| | | | | Taxes w/Current Exemptions: | $4,665.76 | | |
| | | | | Taxes w/o Exemptions: | $4,665.76 | | |
Improvement / Building
| Improvement #1: | COMMERCIAL | State Code: | Y | 1044.0 sqft | Value: | $75,432 |
| Bathrooms: | 0 | Bedrooms: | 0 | | Ceiling: | SUSPENDED | Exterior Wall/Cover: | PLYWD/WD OR ST STUDS | | Floor Covering: | VINYL TILE | Floor Structure: | SLAB ON GRADE | | Foundation: | SLAB | Heating: | WALL HEAT ELECTRIC | | Interior Finish: | OFFICE | Plumbing Fixture Cnt: | 1 | | Roof Structure/Cover: | BEAM BUILT-UP ROCK |   |   |
|
| | Type | Description | Class CD | Sub Class CD | Year Built | Area |
| | BAS | BASE/MAIN FLOOR | 3 | 0 | 1982 | 564.0 |
| | UPS | UPPER STORY | 3 | 0 | 1982 | 480.0 |
| | OP1 | OPEN PORCH SLAB | 3 | 0 | 1982 | 3390.0 |
| | UTY | STORAGE/UTILITY | 3 | 0 | 1982 | 288.0 |
| Improvement #2: | COMMERCIAL | State Code: | Y | 5764.0 sqft | Value: | $145,007 |
| Bathrooms: | 0 | Bedrooms: | 0 | | Ceiling: | (NONE) | Exterior Wall/Cover: | STL/ALUM/SINGWL WD F | | Floor Covering: | CONCRETE SEALER | Floor Structure: | CONCRETE ON GROUND | | Foundation: | SLAB | Heating: | SPACE HEATERS | | Interior Finish: | SERVICE GARAGE | Plumbing Fixture Cnt: | 1 | | Roof Structure/Cover: | METAL/OPEN WOOD |   |   |
|
| | Type | Description | Class CD | Sub Class CD | Year Built | Area |
| | BAS | BASE/MAIN FLOOR | 3 | 0 | 1983 | 3080.0 |
| | OP1 | OPEN PORCH SLAB | 3 | 0 | 1983 | 6472.0 |
| | STG | STORAGE | 3 | 0 | 1983 | 240.0 |
| | STG | STORAGE | 3 | 0 | 1983 | 2444.0 |
| Improvement #3: | RESIDENTIAL | State Code: | Y | 0.0 sqft | Value: | $33,604 |
| | Type | Description | Class CD | Sub Class CD | Year Built | Area |
| | oEQU | EQUIP SHED | 2 | 0 | 1900 | 2320.0 |
| | oUTI | UTILITY | 3 | 0 | 1900 | 384.0 |
| | OP1 | OPEN PORCH SLAB | 3 | 0 | 1900 | 12300.0 |
Sketch
Property Image
Land
| 1 | 71 | INDUSTRIAL MANUFACTURING | 9.5000 | 413820.00 | 0.00 | 0.00 | 1.00 | $413,820 | $0 |
Roll Value History
| 2026 | N/A | N/A | N/A | N/A | N/A |
| 2025 | $254,043 | $413,820 | $0 | $667,863 | $667,863 |
| 2024 | $260,360 | $413,820 | $0 | $674,180 | $674,180 |
| 2023 | $270,567 | $130,000 | $0 | $400,567 | $400,567 |
| 2022 | $244,627 | $130,000 | $0 | $374,627 | $374,627 |
| 2021 | $221,176 | $130,000 | $0 | $351,176 | $351,176 |
| 2020 | $218,680 | $130,000 | $0 | $348,680 | $348,680 |
| 2019 | $183,719 | $130,000 | $0 | $313,719 | $313,719 |
| 2018 | $184,251 | $130,000 | $0 | $314,251 | $314,251 |
| 2017 | $185,313 | $130,000 | $0 | $315,313 | $315,313 |
| 2016 | $149,343 | $130,000 | $0 | $279,343 | $279,343 |
| 2015 | $149,343 | $130,000 | $0 | $279,343 | $279,343 |
| 2014 | $149,343 | $130,000 | $0 | $279,343 | $279,343 |
| 2013 | $149,343 | $130,000 | $0 | $279,343 | $279,343 |
| 2012 | $2,652 | $84,000 | $0 | $86,652 | $86,652 |
| 2011 | $2,652 | $84,000 | $0 | $86,652 | $86,652 |
| 2010 | $4,245 | $84,000 | $0 | $88,245 | $88,245 |
| 2009 | $4,245 | $84,000 | $0 | $88,245 | $88,245 |
| 2008 | $1,765 | $86,480 | $0 | $88,245 | $88,245 |
| 2007 | $4,245 | $216,000 | $0 | $220,245 | $220,245 |
Deed and Sales History
| 1 | 12/27/2012 | WD | Warranty Deed | KRIEG CONCRETE PRODUCTS INC | MILES SAND & GRAVEL COMPANY | | | $310,087.00 | 10004 | 430404 |
|   | |
| 2 | 07/01/1993 | OTHER | Other - Misc. Documents | EVERETT, BROTHERS R | KRIEG, CONCRETE P | | | $0.00 | 65467 | 0 |
| 3 | 05/01/1990 | WD | Warranty Deed | EVERETT, BROS C | EVERETT, BROTHERS R | | | $21,000.00 | 2816 | 90009192 |
| 4 | 01/01/1983 | QCD | Quit Claim Deed | EVERETT, HAROLD R | EVERETT, BROS C | | | $0.00 | 30067 | 404626 |
| 5 | 01/01/1900 | OTHER | Other - Misc. Documents | Unknown | EVERETT, HAROLD R | | | $0.00 | 0 | 0 |
Payout Agreement
| No payout information available.. |