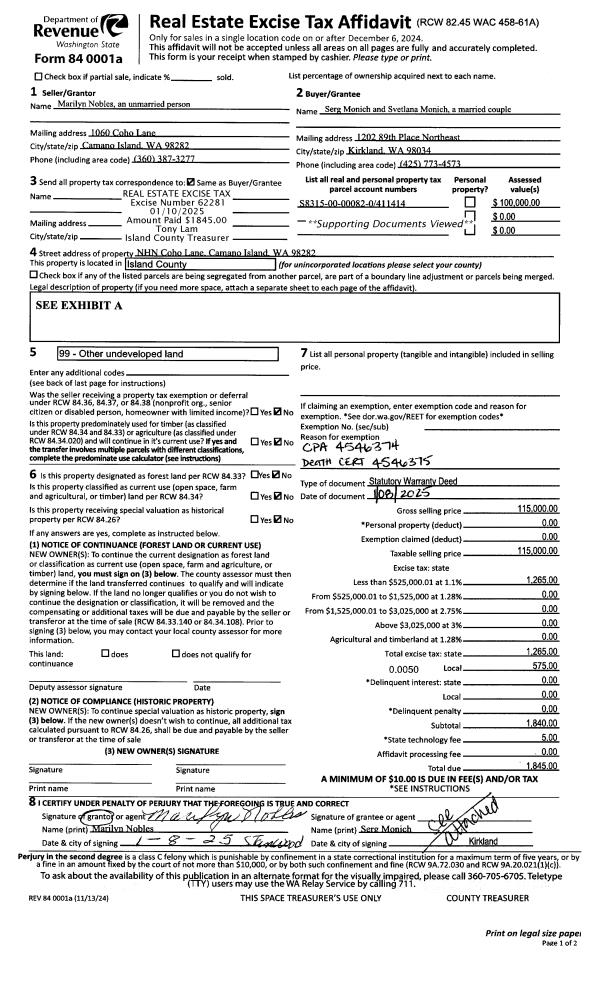
Property
Account |
| Property ID: | 349527 | Abbreviated Legal Description: | PENN CV PK 2 LOT 45 |
| Geographic ID: | S7730-02-00045-0 | Agent Code: | |
| Type: | Real | | |
| Tax Area: | 120 - APPRAISER-OH Schl Dist, Special Dist, improved & 1 acre or less | Land Use Code | 11 |
| Open Space: | N | DFL | N |
| Historic Property: | N | Remodel Property: | N |
| Multi-Family Redevelopment: | N | | |
| Township: | | Section: | |
| Range: | |
Location |
| Address: | 1115 FOREST GLEN RD OAK HARBOR, WA 98277 | Mapsco: | |
| Neighborhood: | Cycle 2 | Map ID: | 153 |
| Neighborhood CD: | 2 |
Owner |
| Name: | IVERSON, NICHOLAS JOHAN | Owner ID: | 313159 |
| Mailing Address: | THI KIM PHI NGUYEN KIEU 1115 FOREST GLEN RD OAK HARBOR, WA 98277 | % Ownership: | 100.0000000000% |
| | | Exemptions: | |
Taxes and Assessment Details
Values
| (+) Improvement Homesite Value: | + | $0 | |
| (+) Improvement Non-Homesite Value: | + | $195,980 | |
| (+) Land Homesite Value: | + | $0 | |
| (+) Land Non-Homesite Value: | + | $210,000 | |
| (+) Curr Use (HS): | + | $0 | $0 |
| (+) Curr Use (NHS): | + | $0 | $0 |
| | | -------------------------- | |
| (=) Market Value: | = | $405,980 | |
| (–) Productivity Loss: | – | $0 | |
| | | -------------------------- | |
| (=) Subtotal: | = | $405,980 | |
| (+) Senior Appraised Value: | + | $0 | |
| (+) Non-Senior Appraised Value: | + | $405,980 | |
| | | -------------------------- | |
| (=) Total Appraised Value: | = | $405,980 | |
| (–) Senior Exemption Loss: | – | $0 | |
| (–) Exemption Loss: | – | $0 | |
| | | -------------------------- | |
| (=) Taxable Value: | = | $405,980 | |
Taxing Jurisdiction
| Owner: | IVERSON, NICHOLAS JOHAN | | |
| % Ownership: | 100.0000000000% | | |
| Total Value: | $405,980 | | |
| Tax Area: | 120 - APPRAISER-OH Schl Dist, Special Dist, improved & 1 acre or less |
| CF | Conservation Futures | 0.0316035091 | $405,980 | $405,980 | $12.83 | | |
| CEM1 | Cemetery #1 | 0.0040320932 | $405,980 | $405,980 | $1.64 | | |
| FIRE2 | Fire & Rescue Dist #2 N Whidbey GEN | 0.5475949600 | $405,980 | $405,980 | $222.31 | | |
| HOBOND | Hospital BOND | 0.1910887512 | $405,980 | $405,980 | $77.58 | | |
| HOGEN | Hospital GEN | 0.3902502903 | $405,980 | $405,980 | $158.43 | | |
| CE | County Current Expense | 0.3708482477 | $405,980 | $405,980 | $150.56 | | |
| CR | County Roads | 0.4584763726 | $405,980 | $405,980 | $186.13 | | |
| ISLANDEMS | Hospital GEN (EMS) | 0.5000000000 | $405,980 | $405,980 | $202.99 | | |
| LIB | Library Sno-Isle GEN | 0.3153421757 | $405,980 | $405,980 | $128.02 | | |
| NWHIDPRMT | P & R N Whidbey GEN | 0.2004466701 | $405,980 | $405,980 | $81.38 | | |
| SCH201MO | School 201 Enrichment | 1.8559231640 | $405,980 | $405,980 | $753.47 | | |
| ST | State School | 1.3035497053 | $405,980 | $405,980 | $529.22 | | |
| ST2 | State School Part 2 | 0.8169543533 | $405,980 | $405,980 | $331.67 | | |
| | Total Tax Rate: | 6.9861102925 | | | | | |
| | | | | Taxes w/Current Exemptions: | $2,836.23 | | |
| | | | | Taxes w/o Exemptions: | $2,836.23 | | |
Improvement / Building
| Improvement #1: | RESIDENTIAL | State Code: | Y | 1144.0 sqft | Value: | $195,980 |
| Bathrooms: | 1.5 | Bedrooms: | 3 | | Ceiling: | DRYWALL PAINTED | Exterior Wall/Cover: | WOOD SIDING | | Floor Covering: | HARDWOOD/CARP 80-20 | Floor Structure: | WOOD W/SUBFLOOR | | Foundation: | CONCRETE | Heating: | BASEBOARD ELECTRIC | | Interior Finish: | DRYWALL PAINT | Plumbing Fixture Cnt: | 8 | | Roof Slope: | 5" IN 12" | Roof Structure/Cover: | CJ ASPHALT |
|
| | Type | Description | Class CD | Sub Class CD | Year Built | Area |
| | BAS | BASE/MAIN FLOOR | 3 | 0 | 1967 | 1144.0 |
| | AGR | ATTACHED GARAGE | 3 | 0 | 1967 | 312.0 |
| | OWP | OPEN WOOD PORCH W/STEPS | 3 | 0 | 1967 | 420.0 |
| | OP2 | OPEN PORCH W/STEPS | 3 | 0 | 1967 | 126.0 |
Sketch
| No sketches available for this property. |
Property Image
Land
| 1 | 15 | SQ (12001-21780) | 0.3400 | 14810.40 | 0.00 | 0.00 | 1.00 | $210,000 | $0 |
Roll Value History
| 2026 | N/A | N/A | N/A | N/A | N/A |
| 2025 | $195,980 | $210,000 | $0 | $405,980 | $405,980 |
| 2024 | $147,240 | $210,000 | $0 | $357,240 | $357,240 |
| 2023 | $149,768 | $220,000 | $0 | $369,768 | $369,768 |
| 2022 | $137,900 | $180,000 | $0 | $317,900 | $317,900 |
| 2021 | $121,909 | $140,000 | $0 | $261,909 | $261,909 |
| 2020 | $119,174 | $120,000 | $0 | $239,174 | $239,174 |
| 2019 | $84,538 | $150,000 | $0 | $234,538 | $234,538 |
| 2018 | $73,216 | $130,000 | $0 | $203,216 | $203,216 |
| 2017 | $73,889 | $115,000 | $0 | $188,889 | $188,889 |
| 2016 | $75,232 | $60,000 | $0 | $135,232 | $135,232 |
| 2015 | $76,574 | $60,000 | $0 | $136,574 | $136,574 |
| 2014 | $77,918 | $60,000 | $0 | $137,918 | $137,918 |
| 2013 | $79,262 | $55,000 | $0 | $134,262 | $134,262 |
| 2012 | $84,716 | $60,350 | $0 | $145,066 | $145,066 |
| 2011 | $86,095 | $71,000 | $0 | $157,095 | $157,095 |
| 2010 | $92,013 | $71,000 | $0 | $163,013 | $163,013 |
| 2009 | $96,228 | $90,000 | $0 | $186,228 | $186,228 |
| 2008 | $97,701 | $110,000 | $0 | $207,701 | $207,701 |
| 2007 | $97,818 | $96,000 | $0 | $193,818 | $193,818 |
Deed and Sales History
| 1 | 07/08/2024 | WD | Warranty Deed | ESTATE OF LARRY BERNARD ANDERSON | IVERSON, NICHOLAS JOHAN | | | $415,000.00 | 60641 | 4574558 |
| 2 | 10/01/1979 | WD | Warranty Deed | HAIRR, CHARLES A | ANDERSON, LARRY B | | | $45,000.00 | 95325 | 361282 |
| 3 | 01/01/1900 | OTHER | Other - Misc. Documents | Unknown | HAIRR, CHARLES A | | | $0.00 | 0 | 0 |
Payout Agreement
| 163 | Defaulted | PENN COVE WATER | | 4/14/2011 8:02:06 AM | Annually | 7 | $0 |
| 203 | Active | Annual Payments | | 4/18/2011 12:55:15 PM | Annually | 7 | $0 |