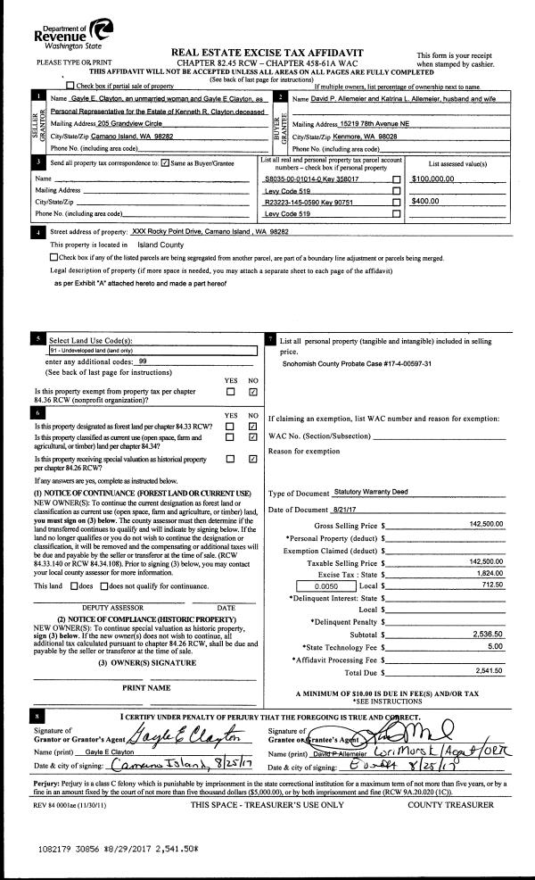
Property
Account |
| Property ID: | 349590 | Abbreviated Legal Description: | PENN CV PK 2 LOT 52 |
| Geographic ID: | S7730-02-00052-0 | Agent Code: | |
| Type: | Real | | |
| Tax Area: | 120 - APPRAISER-OH Schl Dist, Special Dist, improved & 1 acre or less | Land Use Code | 11 |
| Open Space: | N | DFL | N |
| Historic Property: | N | Remodel Property: | N |
| Multi-Family Redevelopment: | N | | |
| Township: | | Section: | |
| Range: | |
Location |
| Address: | 876 WALKER AVE OAK HARBOR, WA 98277 | Mapsco: | |
| Neighborhood: | Cycle 2 | Map ID: | 153 |
| Neighborhood CD: | 2 |
Owner |
| Name: | SPREHE, GARNET | Owner ID: | 304395 |
| Mailing Address: | DANIEL SPREHE 876 WALKER AVE OAK HARBOR, WA 98277 | % Ownership: | 100.0000000000% |
| | | Exemptions: | |
Taxes and Assessment Details
Values
| (+) Improvement Homesite Value: | + | $0 | |
| (+) Improvement Non-Homesite Value: | + | $242,913 | |
| (+) Land Homesite Value: | + | $0 | |
| (+) Land Non-Homesite Value: | + | $210,000 | |
| (+) Curr Use (HS): | + | $0 | $0 |
| (+) Curr Use (NHS): | + | $0 | $0 |
| | | -------------------------- | |
| (=) Market Value: | = | $452,913 | |
| (–) Productivity Loss: | – | $0 | |
| | | -------------------------- | |
| (=) Subtotal: | = | $452,913 | |
| (+) Senior Appraised Value: | + | $0 | |
| (+) Non-Senior Appraised Value: | + | $452,913 | |
| | | -------------------------- | |
| (=) Total Appraised Value: | = | $452,913 | |
| (–) Senior Exemption Loss: | – | $0 | |
| (–) Exemption Loss: | – | $0 | |
| | | -------------------------- | |
| (=) Taxable Value: | = | $452,913 | |
Taxing Jurisdiction
| Owner: | SPREHE, GARNET | | |
| % Ownership: | 100.0000000000% | | |
| Total Value: | $452,913 | | |
| Tax Area: | 120 - APPRAISER-OH Schl Dist, Special Dist, improved & 1 acre or less |
| CF | Conservation Futures | 0.0316035091 | $452,913 | $452,913 | $14.31 | | |
| CEM1 | Cemetery #1 | 0.0040320932 | $452,913 | $452,913 | $1.83 | | |
| FIRE2 | Fire & Rescue Dist #2 N Whidbey GEN | 0.5475949600 | $452,913 | $452,913 | $248.01 | | |
| HOBOND | Hospital BOND | 0.1910887512 | $452,913 | $452,913 | $86.55 | | |
| HOGEN | Hospital GEN | 0.3902502903 | $452,913 | $452,913 | $176.75 | | |
| CE | County Current Expense | 0.3708482477 | $452,913 | $452,913 | $167.96 | | |
| CR | County Roads | 0.4584763726 | $452,913 | $452,913 | $207.65 | | |
| ISLANDEMS | Hospital GEN (EMS) | 0.5000000000 | $452,913 | $452,913 | $226.46 | | |
| LIB | Library Sno-Isle GEN | 0.3153421757 | $452,913 | $452,913 | $142.82 | | |
| NWHIDPRMT | P & R N Whidbey GEN | 0.2004466701 | $452,913 | $452,913 | $90.78 | | |
| SCH201MO | School 201 Enrichment | 1.8559231640 | $452,913 | $452,913 | $840.57 | | |
| ST | State School | 1.3035497053 | $452,913 | $452,913 | $590.39 | | |
| ST2 | State School Part 2 | 0.8169543533 | $452,913 | $452,913 | $370.01 | | |
| | Total Tax Rate: | 6.9861102925 | | | | | |
| | | | | Taxes w/Current Exemptions: | $3,164.09 | | |
| | | | | Taxes w/o Exemptions: | $3,164.09 | | |
Improvement / Building
| Improvement #1: | RESIDENTIAL | State Code: | Y | 1527.0 sqft | Value: | $242,913 |
| Bathrooms: | 1.75 | Bedrooms: | 3 | | Ceiling: | DRY WALL SPRAYED | Exterior Wall/Cover: | WOOD SIDING | | Floor Covering: | CARPET/VINYL 80-20 | Floor Structure: | WOOD W/SUBFLOOR | | Foundation: | CONCRETE | Heating: | WALL HEAT ELECTRIC | | Interior Finish: | DRYWALL PAINT | Plumbing Fixture Cnt: | 9 | | Roof Slope: | 4" IN 12" | Roof Structure/Cover: | CJ ALUMINIUM HEAVY |
|
| | Type | Description | Class CD | Sub Class CD | Year Built | Area |
| | BAS | BASE/MAIN FLOOR | 3 | 0 | 1967 | 1527.0 |
| | OP1 | OPEN PORCH SLAB | 3 | 0 | 1967 | 171.0 |
| | OP1 | OPEN PORCH SLAB | 3 | 0 | 1967 | 443.0 |
| | AGR | ATTACHED GARAGE | 3 | 0 | 1967 | 460.0 |
Sketch
Property Image
Land
| 1 | 15 | SQ (12001-21780) | 0.3900 | 16988.40 | 0.00 | 0.00 | 1.00 | $210,000 | $0 |
Roll Value History
| 2026 | N/A | N/A | N/A | N/A | N/A |
| 2025 | $242,913 | $210,000 | $0 | $452,913 | $452,913 |
| 2024 | $246,142 | $210,000 | $0 | $456,142 | $456,142 |
| 2023 | $249,369 | $220,000 | $0 | $469,369 | $469,369 |
| 2022 | $191,138 | $180,000 | $0 | $371,138 | $371,138 |
| 2021 | $168,638 | $140,000 | $0 | $308,638 | $308,638 |
| 2020 | $164,681 | $120,000 | $0 | $284,681 | $284,681 |
| 2019 | $118,770 | $150,000 | $0 | $268,770 | $268,770 |
| 2018 | $95,167 | $130,000 | $0 | $225,167 | $225,167 |
| 2017 | $96,008 | $115,000 | $0 | $211,008 | $211,008 |
| 2016 | $97,693 | $60,000 | $0 | $157,693 | $157,693 |
| 2015 | $99,378 | $60,000 | $0 | $159,378 | $159,378 |
| 2014 | $101,061 | $60,000 | $0 | $161,061 | $161,061 |
| 2013 | $102,746 | $55,000 | $0 | $157,746 | $157,746 |
| 2012 | $106,800 | $60,350 | $0 | $167,150 | $167,150 |
| 2011 | $108,523 | $71,000 | $0 | $179,523 | $179,523 |
| 2010 | $116,409 | $71,000 | $0 | $187,409 | $187,409 |
| 2009 | $120,051 | $90,000 | $0 | $210,051 | $210,051 |
| 2008 | $121,866 | $110,000 | $0 | $231,866 | $231,866 |
| 2007 | $123,681 | $96,000 | $0 | $219,681 | $219,681 |
Deed and Sales History
| 1 | 05/20/2022 | BARGSLD | Bargain And Sale Deed | EVERGREEN MONEYSOURCE MORTGAGE COMPANY | SPREHE, GARNET | | | $540,000.00 | 53205 | 4545584 |
| 2 | 05/05/2022 | WD | Warranty Deed | RUPLE TRUSTEE, GLORIA PATRICIA | EVERGREEN MONEYSOURCE MORTGAGE COMPANY | | | $540,000.00 | 53011 | 4544770 |
| 3 | 06/08/2017 | QCD | Quit Claim Deed | RUPLE, GLORIA P | RUPLE TRUSTEE, GLORIA PATRICIA | | | $0.00 | 29728 | 4424220 |
| 4 | 07/22/2004 | WD | Warranty Deed | SMITH, MARGARET H | RUPLE, GLORIA P | | | $167,000.00 | 43882 | 4110691 |
| 5 | 12/01/1993 | QCD | Quit Claim Deed | SMITH, MARGARET H | SMITH, MARGARET H | | | $0.00 | 35004 | 93026123 |
| 6 | 11/01/1993 | WD | Warranty Deed | SCHAWANG, SANDRA E | SMITH, MARGARET H | | | $89,250.00 | 34678 | 93024407 |
| 7 | 01/01/1990 | WD | Warranty Deed | RUMSCH, BRUCE A | SCHAWANG, SANDRA E | | | $75,000.00 | 176 | 90000532 |
| 8 | 08/01/1984 | WD | Warranty Deed | ERNST, RONALD C | RUMSCH, BRUCE A | | | $64,500.00 | 42530 | 84002525 |
| 9 | 01/01/1900 | OTHER | Other - Misc. Documents | Unknown | ERNST, RONALD C | | | $0.00 | 0 | 0 |
Payout Agreement
| No payout information available.. |