Property
Account |
| Property ID: | 349741 | Abbreviated Legal Description: | PENN CV PK 2 LOT 65 |
| Geographic ID: | S7730-02-00065-0 | Agent Code: | |
| Type: | Real | | |
| Tax Area: | 120 - APPRAISER-OH Schl Dist, Special Dist, improved & 1 acre or less | Land Use Code | 11 |
| Open Space: | N | DFL | N |
| Historic Property: | N | Remodel Property: | N |
| Multi-Family Redevelopment: | N | | |
| Township: | | Section: | |
| Range: | |
Location |
| Address: | 1117 WILDWOOD DR OAK HARBOR, WA 98277 | Mapsco: | |
| Neighborhood: | Cycle 2 | Map ID: | 153 |
| Neighborhood CD: | 2 |
Owner |
| Name: | MINOR, ANGELA M | Owner ID: | 313332 |
| Mailing Address: | 18911 LISTER LN HUNTING BEACH, CA 92646 | % Ownership: | 100.0000000000% |
| | | Exemptions: | |
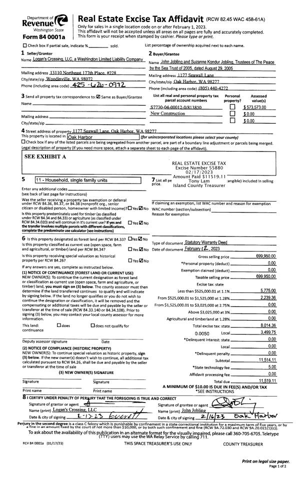
Taxes and Assessment Details
Values
| (+) Improvement Homesite Value: | + | $0 | |
| (+) Improvement Non-Homesite Value: | + | $174,893 | |
| (+) Land Homesite Value: | + | $0 | |
| (+) Land Non-Homesite Value: | + | $210,000 | |
| (+) Curr Use (HS): | + | $0 | $0 |
| (+) Curr Use (NHS): | + | $0 | $0 |
| | | -------------------------- | |
| (=) Market Value: | = | $384,893 | |
| (–) Productivity Loss: | – | $0 | |
| | | -------------------------- | |
| (=) Subtotal: | = | $384,893 | |
| (+) Senior Appraised Value: | + | $0 | |
| (+) Non-Senior Appraised Value: | + | $384,893 | |
| | | -------------------------- | |
| (=) Total Appraised Value: | = | $384,893 | |
| (–) Senior Exemption Loss: | – | $0 | |
| (–) Exemption Loss: | – | $0 | |
| | | -------------------------- | |
| (=) Taxable Value: | = | $384,893 | |
Taxing Jurisdiction
| Owner: | MINOR, ANGELA M | | |
| % Ownership: | 100.0000000000% | | |
| Total Value: | $384,893 | | |
| Tax Area: | 120 - APPRAISER-OH Schl Dist, Special Dist, improved & 1 acre or less |
| CF | Conservation Futures | 0.0316035091 | $384,893 | $384,893 | $12.16 | | |
| CEM1 | Cemetery #1 | 0.0040320932 | $384,893 | $384,893 | $1.55 | | |
| FIRE2 | Fire & Rescue Dist #2 N Whidbey GEN | 0.5475949600 | $384,893 | $384,893 | $210.77 | | |
| HOBOND | Hospital BOND | 0.1910887512 | $384,893 | $384,893 | $73.55 | | |
| HOGEN | Hospital GEN | 0.3902502903 | $384,893 | $384,893 | $150.20 | | |
| CE | County Current Expense | 0.3708482477 | $384,893 | $384,893 | $142.74 | | |
| CR | County Roads | 0.4584763726 | $384,893 | $384,893 | $176.46 | | |
| ISLANDEMS | Hospital GEN (EMS) | 0.5000000000 | $384,893 | $384,893 | $192.45 | | |
| LIB | Library Sno-Isle GEN | 0.3153421757 | $384,893 | $384,893 | $121.37 | | |
| NWHIDPRMT | P & R N Whidbey GEN | 0.2004466701 | $384,893 | $384,893 | $77.15 | | |
| SCH201MO | School 201 Enrichment | 1.8559231640 | $384,893 | $384,893 | $714.33 | | |
| ST | State School | 1.3035497053 | $384,893 | $384,893 | $501.73 | | |
| ST2 | State School Part 2 | 0.8169543533 | $384,893 | $384,893 | $314.44 | | |
| | Total Tax Rate: | 6.9861102925 | | | | | |
| | | | | Taxes w/Current Exemptions: | $2,688.90 | | |
| | | | | Taxes w/o Exemptions: | $2,688.90 | | |
Improvement / Building
| Improvement #1: | RESIDENTIAL | State Code: | Y | 1144.0 sqft | Value: | $174,893 |
| Bathrooms: | 2 | Bedrooms: | 3 | | Ceiling: | DRYWALL PAINTED | Exterior Wall/Cover: | PLY/HARDBOARD T-111 | | Floor Covering: | VINYL/HARDWOOD 20-80 | Floor Structure: | WOOD W/SUBFLOOR | | Foundation: | CONCRETE | Heating: | BASEBOARD ELECTRIC | | Interior Finish: | DRYWALL PAINT | Plumbing Fixture Cnt: | 9 | | Roof Slope: | 4" IN 12" | Roof Structure/Cover: | CJ ASPHALT |
|
| | Type | Description | Class CD | Sub Class CD | Year Built | Area |
| | BAS | BASE/MAIN FLOOR | 3 | 0 | 1967 | 1144.0 |
| | AGR | ATTACHED GARAGE | 3 | 0 | 1967 | 312.0 |
| | OWP | OPEN WOOD PORCH W/STEPS | 3 | 0 | 1967 | 697.2 |
Sketch
| No sketches available for this property. |
Property Image
Land
| 1 | 15 | SQ (12001-21780) | 0.4000 | 17424.00 | 0.00 | 0.00 | 1.00 | $210,000 | $0 |
Roll Value History
| 2026 | N/A | N/A | N/A | N/A | N/A |
| 2025 | $174,893 | $210,000 | $0 | $384,893 | $384,893 |
| 2024 | $142,810 | $210,000 | $0 | $352,810 | $352,810 |
| 2023 | $145,543 | $220,000 | $0 | $365,543 | $365,543 |
| 2022 | $134,271 | $180,000 | $0 | $314,271 | $314,271 |
| 2021 | $118,908 | $140,000 | $0 | $258,908 | $258,908 |
| 2020 | $116,330 | $120,000 | $0 | $236,330 | $236,330 |
| 2019 | $82,067 | $150,000 | $0 | $232,067 | $232,067 |
| 2018 | $75,443 | $130,000 | $0 | $205,443 | $205,443 |
| 2017 | $76,151 | $115,000 | $0 | $191,151 | $191,151 |
| 2016 | $77,572 | $60,000 | $0 | $137,572 | $137,572 |
| 2015 | $78,992 | $60,000 | $0 | $138,992 | $138,992 |
| 2014 | $80,413 | $60,000 | $0 | $140,413 | $140,413 |
| 2013 | $81,834 | $55,000 | $0 | $136,834 | $136,834 |
| 2012 | $83,910 | $60,350 | $0 | $144,260 | $144,260 |
| 2011 | $85,330 | $71,000 | $0 | $156,330 | $156,330 |
| 2010 | $93,567 | $71,000 | $0 | $164,567 | $164,567 |
| 2009 | $97,809 | $90,000 | $0 | $187,809 | $187,809 |
| 2008 | $99,291 | $110,000 | $0 | $209,291 | $209,291 |
| 2007 | $100,774 | $96,000 | $0 | $196,774 | $196,774 |
Deed and Sales History
| 1 | 08/15/2025 | WD | Warranty Deed | MINOR, ANGELA M | WILSON, JENNIFER R | | | $479,385.00 | 64580 | 4590007 |
| 2 | 08/15/2025 | QCD | Quit Claim Deed | STEBBINS, MARGARET J | MINOR, ANGELA M | | | $0.00 | 64579 | 4590006 |
| 3 | 07/26/2024 | QCD | Quit Claim Deed | MINOR, ANGELA M | MINOR, ANGELA M | | | $0.00 | 60791 | 4575246 |
| 4 | 02/16/2022 | WD | Warranty Deed | MINOR JR, GEORGE W | MINOR, ANGELA M | | | $225,500.00 | 51982 | 4539882 |
| 5 | 03/07/2002 | QCD | Quit Claim Deed | MINOR, GEORGE W | MINOR JR, GEORGE W | | | $0.00 | 20930 | 4013847 |
| 6 | 07/01/1996 | DECREE | Divorce Decree/Legal Separation | MINOR, GEORGE W | MINOR, GEORGE W | | | $0.00 | 63057 | 96014950 |
| 7 | 06/01/1983 | WD | Warranty Deed | VAUGHAN, EDGAR I | MINOR, GEORGE W | | | $59,000.00 | 31733 | 411417 |
| 8 | 05/01/1981 | OTHER | Other - Misc. Documents | SCHMIDTZ, EUGENE F | VAUGHAN, EDGAR I | | | $54,900.00 | 11556 | 383279 |
| 9 | 01/01/1900 | OTHER | Other - Misc. Documents | Unknown | SCHMIDTZ, EUGENE F | | | $0.00 | 0 | 0 |
Payout Agreement
| No payout information available.. |