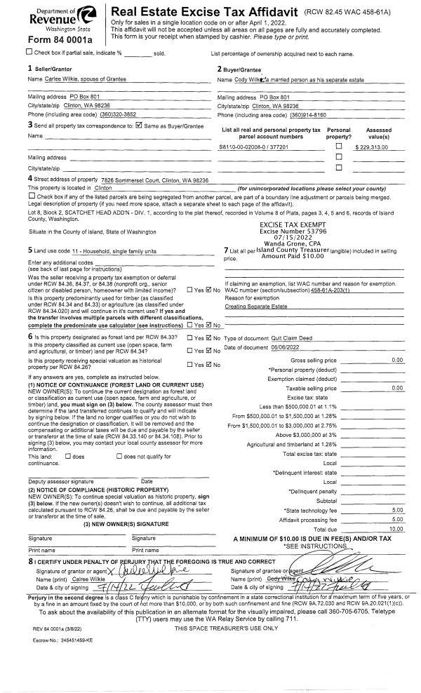
Property
Account |
| Property ID: | 350042 | Abbreviated Legal Description: | PENN CV PK 2 NLY 100' OF LOT 88 & ELY 40' OF LOT 89 |
| Geographic ID: | S7730-02-00088-1 | Agent Code: | |
| Type: | Real | | |
| Tax Area: | 120 - APPRAISER-OH Schl Dist, Special Dist, improved & 1 acre or less | Land Use Code | 11 |
| Open Space: | N | DFL | N |
| Historic Property: | N | Remodel Property: | N |
| Multi-Family Redevelopment: | N | | |
| Township: | | Section: | |
| Range: | |
Location |
| Address: | 905 BURROUGHS AVE OAK HARBOR, WA 98277 | Mapsco: | |
| Neighborhood: | Cycle 2 | Map ID: | 153 |
| Neighborhood CD: | 2 |
Owner |
| Name: | BRODT, CHRYSTA | Owner ID: | 300251 |
| Mailing Address: | 905 BURROUGHS AVE OAK HARBOR, WA 98277 | % Ownership: | 100.0000000000% |
| | | Exemptions: | |
Taxes and Assessment Details
Values
| (+) Improvement Homesite Value: | + | $0 | |
| (+) Improvement Non-Homesite Value: | + | $143,956 | |
| (+) Land Homesite Value: | + | $0 | |
| (+) Land Non-Homesite Value: | + | $210,000 | |
| (+) Curr Use (HS): | + | $0 | $0 |
| (+) Curr Use (NHS): | + | $0 | $0 |
| | | -------------------------- | |
| (=) Market Value: | = | $353,956 | |
| (–) Productivity Loss: | – | $0 | |
| | | -------------------------- | |
| (=) Subtotal: | = | $353,956 | |
| (+) Senior Appraised Value: | + | $0 | |
| (+) Non-Senior Appraised Value: | + | $353,956 | |
| | | -------------------------- | |
| (=) Total Appraised Value: | = | $353,956 | |
| (–) Senior Exemption Loss: | – | $0 | |
| (–) Exemption Loss: | – | $0 | |
| | | -------------------------- | |
| (=) Taxable Value: | = | $353,956 | |
Taxing Jurisdiction
| Owner: | BRODT, CHRYSTA | | |
| % Ownership: | 100.0000000000% | | |
| Total Value: | $353,956 | | |
| Tax Area: | 120 - APPRAISER-OH Schl Dist, Special Dist, improved & 1 acre or less |
| CF | Conservation Futures | 0.0316035091 | $353,956 | $353,956 | $11.19 | | |
| CEM1 | Cemetery #1 | 0.0040320932 | $353,956 | $353,956 | $1.43 | | |
| FIRE2 | Fire & Rescue Dist #2 N Whidbey GEN | 0.5475949600 | $353,956 | $353,956 | $193.82 | | |
| HOBOND | Hospital BOND | 0.1910887512 | $353,956 | $353,956 | $67.64 | | |
| HOGEN | Hospital GEN | 0.3902502903 | $353,956 | $353,956 | $138.13 | | |
| CE | County Current Expense | 0.3708482477 | $353,956 | $353,956 | $131.26 | | |
| CR | County Roads | 0.4584763726 | $353,956 | $353,956 | $162.28 | | |
| ISLANDEMS | Hospital GEN (EMS) | 0.5000000000 | $353,956 | $353,956 | $176.98 | | |
| LIB | Library Sno-Isle GEN | 0.3153421757 | $353,956 | $353,956 | $111.62 | | |
| NWHIDPRMT | P & R N Whidbey GEN | 0.2004466701 | $353,956 | $353,956 | $70.95 | | |
| SCH201MO | School 201 Enrichment | 1.8559231640 | $353,956 | $353,956 | $656.92 | | |
| ST | State School | 1.3035497053 | $353,956 | $353,956 | $461.40 | | |
| ST2 | State School Part 2 | 0.8169543533 | $353,956 | $353,956 | $289.17 | | |
| | Total Tax Rate: | 6.9861102925 | | | | | |
| | | | | Taxes w/Current Exemptions: | $2,472.79 | | |
| | | | | Taxes w/o Exemptions: | $2,472.79 | | |
Improvement / Building
| Improvement #1: | RESIDENTIAL | State Code: | Y | 2644.0 sqft | Value: | $143,956 |
| Bathrooms: | 3 | Bedrooms: | 6 | | Ceiling: | DRY WALL SPRAYED | Exterior Wall/Cover: | PLYWOOD/WOOD FRAME | | Floor Covering: | CARPET 100% | Floor Structure: | WOOD W/SUBFLOOR | | Foundation: | CONCRETE | Heating: | HEAT PUMP | | Interior Finish: | DRYWALL PAINT | Plumbing Fixture Cnt: | 12 | | Roof Slope: | 6" IN 12" | Roof Structure/Cover: | CJ ASPHALT |
|
| | Type | Description | Class CD | Sub Class CD | Year Built | Area |
| | BAS | BASE/MAIN FLOOR | 3 | 0 | 1968 | 2644.0 |
| | AGR | ATTACHED GARAGE | 3 | 0 | 1968 | 312.0 |
Sketch
| No sketches available for this property. |
Property Image
Land
| 1 | 15 | SQ (12001-21780) | 0.3599 | 15677.24 | 0.00 | 0.00 | 1.00 | $210,000 | $0 |
Roll Value History
| 2026 | N/A | N/A | N/A | N/A | N/A |
| 2025 | $143,956 | $210,000 | $0 | $353,956 | $353,956 |
| 2024 | $285,912 | $210,000 | $0 | $495,912 | $495,912 |
| 2023 | $290,362 | $220,000 | $0 | $510,362 | $510,362 |
| 2022 | $266,960 | $180,000 | $0 | $446,960 | $446,960 |
| 2021 | $235,654 | $140,000 | $0 | $375,654 | $375,654 |
| 2020 | $230,454 | $120,000 | $0 | $350,454 | $350,454 |
| 2019 | $178,045 | $150,000 | $0 | $328,045 | $328,045 |
| 2018 | $158,119 | $130,000 | $0 | $288,119 | $288,119 |
| 2017 | $150,436 | $115,000 | $0 | $265,436 | $265,436 |
| 2016 | $153,029 | $60,000 | $0 | $213,029 | $213,029 |
| 2015 | $155,622 | $60,000 | $0 | $215,622 | $215,622 |
| 2014 | $158,217 | $60,000 | $0 | $218,217 | $218,217 |
| 2013 | $160,811 | $55,000 | $0 | $215,811 | $215,811 |
| 2012 | $160,869 | $60,350 | $0 | $221,219 | $221,219 |
| 2011 | $163,534 | $71,000 | $0 | $234,534 | $234,534 |
| 2010 | $170,093 | $71,000 | $0 | $241,093 | $241,093 |
| 2009 | $176,799 | $91,078 | $0 | $267,877 | $267,877 |
| 2008 | $180,514 | $110,000 | $0 | $290,514 | $290,514 |
| 2007 | $180,514 | $96,000 | $0 | $276,514 | $276,514 |
Deed and Sales History
| 1 | 07/26/2021 | QCD | Quit Claim Deed | BEBEE, JASON | BRODT, CHRYSTA | | | $0.00 | 51614 | 4537609 |
| 2 | 07/13/2021 | QCD | Quit Claim Deed | BRODT, CHRYSTA | BRODT, CHRYSTA | | | $0.00 | 49209 | 4524647 |
| 3 | 06/28/2017 | WD | Warranty Deed | DWIGHT-ASHLEY TRUST | BRODT, CHRYSTA | | | $279,500.00 | 30056 | 4425559 |
| 4 | 07/26/2005 | TRUSTEED | Trustee's Deed | THE SECRETAR OF HOUSING AND UR | DWIGHT-ASHLEY TRUST, | | | $177,500.00 | 53617 | 4142289 |
| 5 | 01/31/2005 | TRUSTEED | Trustee's Deed | WACHOVIA BANK NA, | THE SECRETAR OF HOUSING AND UR | | | $0.00 | 50452 | 4124809 |
| 6 | 01/31/2005 | TRUSTEED | Trustee's Deed | SUMMERS, PHYLLIS A | WACHOVIA BANK NA, | | | $179,176.00 | 50451 | 4124808 |
| 7 | 01/28/1999 | WD | Warranty Deed | SUMMERS, PHYLLIS A | SUMMERS, PHYLLIS A | | | $200,000.00 | 90558 | 99003769 |
| 8 | 01/28/1999 | ESTSEPPROP | Establish Separate Property | KRUSE, JON E | SUMMERS, PHYLLIS A | | | $0.00 | 90557 | 99003768 |
| 9 | 09/01/1994 | WD | Warranty Deed | KRUSE, JON E | KRUSE, JON E | | | $134,500.00 | 43685 | 94019435 |
| 10 | 08/01/1994 | QCD | Quit Claim Deed | MOREY, DAVID J | KRUSE, JON E | | | $0.00 | 43686 | 94019436 |
| 11 | 10/01/1985 | WD | Warranty Deed | SWEENEY, JERRY L | MOREY, DAVID J | | | $69,900.00 | 53103 | 85012281 |
| 12 | 01/01/1900 | OTHER | Other - Misc. Documents | Unknown | SWEENEY, JERRY L | | | $0.00 | 0 | 0 |
Payout Agreement
| No payout information available.. |