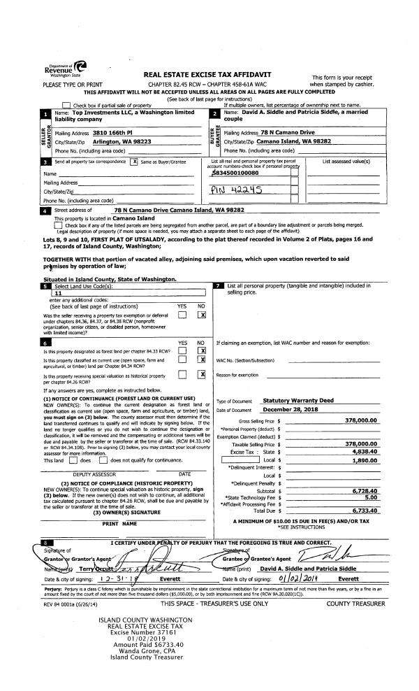
Property
Account |
| Property ID: | 350444 | Abbreviated Legal Description: | PINE TERR LOT 3 EX S98' |
| Geographic ID: | S7740-00-00003-1 | Agent Code: | |
| Type: | Real | | |
| Tax Area: | 110 - APPRAISER-OH Schl Dist, outside OH, improved & 1 acre or less | Land Use Code | 11 |
| Open Space: | N | DFL | N |
| Historic Property: | N | Remodel Property: | N |
| Multi-Family Redevelopment: | N | | |
| Township: | | Section: | |
| Range: | |
Location |
| Address: | 933 ARWIN DR OAK HARBOR, WA 98277 | Mapsco: | |
| Neighborhood: | Cycle 6 | Map ID: | 237 |
| Neighborhood CD: | 6 |
Owner |
| Name: | MCGUIGAN, RICHARD | Owner ID: | 301311 |
| Mailing Address: | ALENA MCGUIGAN 933 ARWIN DR OAK HARBOR, WA 98277 | % Ownership: | 100.0000000000% |
| | | Exemptions: | |
Taxes and Assessment Details
Values
| (+) Improvement Homesite Value: | + | $0 | |
| (+) Improvement Non-Homesite Value: | + | $208,994 | |
| (+) Land Homesite Value: | + | $0 | |
| (+) Land Non-Homesite Value: | + | $200,000 | |
| (+) Curr Use (HS): | + | $0 | $0 |
| (+) Curr Use (NHS): | + | $0 | $0 |
| | | -------------------------- | |
| (=) Market Value: | = | $408,994 | |
| (–) Productivity Loss: | – | $0 | |
| | | -------------------------- | |
| (=) Subtotal: | = | $408,994 | |
| (+) Senior Appraised Value: | + | $0 | |
| (+) Non-Senior Appraised Value: | + | $408,994 | |
| | | -------------------------- | |
| (=) Total Appraised Value: | = | $408,994 | |
| (–) Senior Exemption Loss: | – | $0 | |
| (–) Exemption Loss: | – | $0 | |
| | | -------------------------- | |
| (=) Taxable Value: | = | $408,994 | |
Taxing Jurisdiction
| Owner: | MCGUIGAN, RICHARD | | |
| % Ownership: | 100.0000000000% | | |
| Total Value: | $408,994 | | |
| Tax Area: | 110 - APPRAISER-OH Schl Dist, outside OH, improved & 1 acre or less |
| CF | Conservation Futures | 0.0316035091 | $408,994 | $408,994 | $12.93 | | |
| CEM1 | Cemetery #1 | 0.0040320932 | $408,994 | $408,994 | $1.65 | | |
| FIRE2 | Fire & Rescue Dist #2 N Whidbey GEN | 0.5475949600 | $408,994 | $408,994 | $223.96 | | |
| HOBOND | Hospital BOND | 0.1910887512 | $408,994 | $408,994 | $78.15 | | |
| HOGEN | Hospital GEN | 0.3902502903 | $408,994 | $408,994 | $159.61 | | |
| CE | County Current Expense | 0.3708482477 | $408,994 | $408,994 | $151.67 | | |
| CR | County Roads | 0.4584763726 | $408,994 | $408,994 | $187.51 | | |
| ISLANDEMS | Hospital GEN (EMS) | 0.5000000000 | $408,994 | $408,994 | $204.50 | | |
| LIB | Library Sno-Isle GEN | 0.3153421757 | $408,994 | $408,994 | $128.97 | | |
| NWHIDPRMT | P & R N Whidbey GEN | 0.2004466701 | $408,994 | $408,994 | $81.98 | | |
| SCH201MO | School 201 Enrichment | 1.8559231640 | $408,994 | $408,994 | $759.06 | | |
| ST | State School | 1.3035497053 | $408,994 | $408,994 | $533.14 | | |
| ST2 | State School Part 2 | 0.8169543533 | $408,994 | $408,994 | $334.13 | | |
| | Total Tax Rate: | 6.9861102925 | | | | | |
| | | | | Taxes w/Current Exemptions: | $2,857.26 | | |
| | | | | Taxes w/o Exemptions: | $2,857.26 | | |
Improvement / Building
| Improvement #1: | RESIDENTIAL | State Code: | Y | 1945.0 sqft | Value: | $208,994 |
| Bathrooms: | 2 | Bedrooms: | 4 | | Ceiling: | ACOUSTIC FURRED | Exterior Wall/Cover: | PLY/HARDBOARD T-111 | | Floor Covering: | CARPET/VINYL 60-40 | Floor Structure: | SLAB ON GRADE | | Foundation: | SLAB | Heating: | BASEBOARD ELECTRIC | | Interior Finish: | DRYWALL PAINT | Plumbing Fixture Cnt: | 9 | | Roof Slope: | 3" IN 12" | Roof Structure/Cover: | CJ BUILT-UP ROCK |
|
| | Type | Description | Class CD | Sub Class CD | Year Built | Area |
| | BAS | BASE/MAIN FLOOR | 3 | 0 | 1954 | 1945.0 |
| | OWP | OPEN WOOD PORCH W/STEPS | 3 | 0 | 1954 | 180.0 |
Sketch
Property Image
Land
| 1 | 15 | SQ (12001-21780) | 0.0000 | 0.00 | 0.00 | 0.00 | 1.00 | $200,000 | $0 |
Roll Value History
| 2026 | N/A | N/A | N/A | N/A | N/A |
| 2025 | $208,994 | $200,000 | $0 | $408,994 | $408,994 |
| 2024 | $217,015 | $160,000 | $0 | $377,015 | $377,015 |
| 2023 | $219,937 | $160,000 | $0 | $379,937 | $379,937 |
| 2022 | $196,513 | $160,000 | $0 | $356,513 | $356,513 |
| 2021 | $171,930 | $130,000 | $0 | $301,930 | $301,930 |
| 2020 | $167,857 | $120,000 | $0 | $287,857 | $287,857 |
| 2019 | $125,943 | $140,000 | $0 | $265,943 | $265,943 |
| 2018 | $113,307 | $120,000 | $0 | $233,307 | $233,307 |
| 2017 | $114,123 | $100,000 | $0 | $214,123 | $214,123 |
| 2016 | $82,436 | $70,000 | $0 | $152,436 | $152,436 |
| 2015 | $84,190 | $70,000 | $0 | $154,190 | $154,190 |
| 2014 | $85,944 | $65,000 | $0 | $150,944 | $150,944 |
| 2013 | $87,699 | $65,000 | $0 | $152,699 | $152,699 |
| 2012 | $89,451 | $63,750 | $0 | $153,201 | $153,201 |
| 2011 | $91,205 | $75,000 | $0 | $166,205 | $166,205 |
| 2010 | $103,099 | $75,000 | $0 | $178,099 | $178,099 |
| 2009 | $107,955 | $85,680 | $0 | $193,635 | $193,635 |
| 2008 | $107,955 | $85,680 | $0 | $193,635 | $193,635 |
| 2007 | $109,710 | $85,680 | $0 | $195,390 | $195,390 |
Deed and Sales History
| 1 | 09/23/2021 | WD | Warranty Deed | PHILIPSEN, JOSHUA | MCGUIGAN, RICHARD | | | $385,000.00 | 50182 | 4529967 |
| 2 | 11/16/2018 | WD | Warranty Deed | FRANKLIN, NANCY R | PHILIPSEN, JOSHUA | | | $265,000.00 | 36738 | 4455371 |
| 3 | 09/30/1999 | ESTSEPPROP | Establish Separate Property | FRANKLIN, NANCY R | FRANKLIN, NANCY R | | | $0.00 | 94201 | 99023078 |
| 4 | 06/01/1995 | WD | Warranty Deed | TALLMAN, J G | FRANKLIN, NANCY R | | | $96,500.00 | 51935 | 95008955 |
| 5 | 08/01/1991 | WD | Warranty Deed | MOBLEY, JOSEPH S | TALLMAN, J G | | | $44,950.00 | 12855 | 91012180 |
| 6 | 01/01/1900 | OTHER | Other - Misc. Documents | Unknown | MOBLEY, JOSEPH S | | | $0.00 | 0 | 0 |
Payout Agreement
| No payout information available.. |