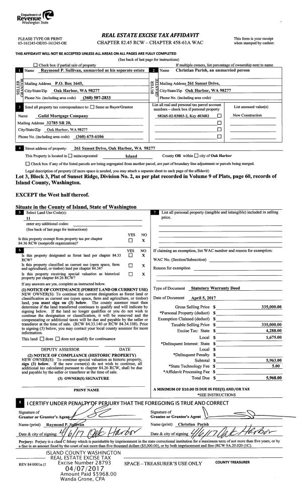
Property
Account |
| Property ID: | 350907 | Abbreviated Legal Description: | PINEWOOD LOT 7 |
| Geographic ID: | S7745-00-00007-0 | Agent Code: | |
| Type: | Real | | |
| Tax Area: | 712 - APPRAISER-S Whid Schl Dist, outside Langley, improved, greater than 1 acre | Land Use Code | 11 |
| Open Space: | N | DFL | N |
| Historic Property: | N | Remodel Property: | N |
| Multi-Family Redevelopment: | N | | |
| Township: | | Section: | |
| Range: | |
Location |
| Address: | 4792 PINEWOOD CIR LANGLEY, WA 98260 | Mapsco: | |
| Neighborhood: | Cycle 4 | Map ID: | 730 |
| Neighborhood CD: | 4 |
Owner |
| Name: | PETRY, TANNER LEVY | Owner ID: | 279646 |
| Mailing Address: | ELLEN MARIE PETRY 4792 PINEWOOD CIRCLE LANGLEY, WA 98260 | % Ownership: | 100.0000000000% |
| | | Exemptions: | |
Taxes and Assessment Details
Values
| (+) Improvement Homesite Value: | + | $0 | |
| (+) Improvement Non-Homesite Value: | + | $339,255 | |
| (+) Land Homesite Value: | + | $0 | |
| (+) Land Non-Homesite Value: | + | $250,000 | |
| (+) Curr Use (HS): | + | $0 | $0 |
| (+) Curr Use (NHS): | + | $0 | $0 |
| | | -------------------------- | |
| (=) Market Value: | = | $589,255 | |
| (–) Productivity Loss: | – | $0 | |
| | | -------------------------- | |
| (=) Subtotal: | = | $589,255 | |
| (+) Senior Appraised Value: | + | $0 | |
| (+) Non-Senior Appraised Value: | + | $589,255 | |
| | | -------------------------- | |
| (=) Total Appraised Value: | = | $589,255 | |
| (–) Senior Exemption Loss: | – | $0 | |
| (–) Exemption Loss: | – | $0 | |
| | | -------------------------- | |
| (=) Taxable Value: | = | $589,255 | |
Taxing Jurisdiction
| Owner: | PETRY, TANNER LEVY | | |
| % Ownership: | 100.0000000000% | | |
| Total Value: | $589,255 | | |
| Tax Area: | 712 - APPRAISER-S Whid Schl Dist, outside Langley, improved, greater than 1 acre |
| CF | Conservation Futures | 0.0316035091 | $589,255 | $589,255 | $18.62 | | |
| FIRE3 | Fire & Rescue Dist #3 S Whidbey GEN | 1.2004855531 | $589,255 | $589,255 | $707.39 | | |
| HOBOND | Hospital BOND | 0.1910887512 | $589,255 | $589,255 | $112.60 | | |
| HOGEN | Hospital GEN | 0.3902502903 | $589,255 | $589,255 | $229.96 | | |
| CE | County Current Expense | 0.3708482477 | $589,255 | $589,255 | $218.52 | | |
| CR | County Roads | 0.4584763726 | $589,255 | $589,255 | $270.16 | | |
| ISLANDEMS | Hospital GEN (EMS) | 0.5000000000 | $589,255 | $589,255 | $294.63 | | |
| LIB | Library Sno-Isle GEN | 0.3153421757 | $589,255 | $589,255 | $185.82 | | |
| PORTWHID | Port of S Whidbey GEN | 0.1094540357 | $589,255 | $589,255 | $64.50 | | |
| SCH206BOND | School 206 BOND | 0.3161759235 | $589,255 | $589,255 | $186.31 | | |
| SCH206MO | School 206 Enrichment | 0.4547169547 | $589,255 | $589,255 | $267.94 | | |
| ST | State School | 1.3035497053 | $589,255 | $589,255 | $768.12 | | |
| ST2 | State School Part 2 | 0.8169543533 | $589,255 | $589,255 | $481.39 | | |
| SWHIDPRBD | P & R S Whidbey BOND | 0.0152817568 | $589,255 | $589,255 | $9.00 | | |
| SWHIDPRBD2 | P & R S Whidbey BOND2 | 0.0138911264 | $589,255 | $589,255 | $8.19 | | |
| SWHIDPRMT | P & R S Whidbey GEN | 0.2053334452 | $589,255 | $589,255 | $120.99 | | |
| | Total Tax Rate: | 6.6934522006 | | | | | |
| | | | | Taxes w/Current Exemptions: | $3,944.14 | | |
| | | | | Taxes w/o Exemptions: | $3,944.14 | | |
Improvement / Building
| Improvement #1: | RESIDENTIAL | State Code: | Y | 2331.8 sqft | Value: | $339,255 |
| Bathrooms: | 2.5 | Bedrooms: | 3 | | Ceiling: | DRYWALL PAINTED | Exterior Wall/Cover: | PLY/HARDBOARD T-111 | | Floor Covering: | HARDWOOD 100% | Floor Structure: | WOOD W/SUBFLOOR | | Foundation: | PIERS/CONCRETE | Heating: | WALL HEAT ELECTRIC | | Interior Finish: | DRYWALL PAINT | Plumbing Fixture Cnt: | 13 | | Roof Slope: | 6" IN 12" | Roof Structure/Cover: | CJ ASPHALT |
|
| | Type | Description | Class CD | Sub Class CD | Year Built | Area |
| | BAS | BASE/MAIN FLOOR | 3 | 0 | 1997 | 1493.0 |
| | UB8 | BASEMENT UNFINISHED 8" | 3 | 0 | 1997 | 480.0 |
| | UPS | UPPER STORY | 3 | 0 | 1997 | 838.8 |
| | OWP | OPEN WOOD PORCH W/STEPS | 3 | 0 | 1997 | 305.5 |
| | OWP | OPEN WOOD PORCH W/STEPS | 3 | 0 | 1997 | 23.0 |
| | OWC | OPEN WOOD PORCH W/STEPS/ROOF/C | 3 | 0 | 1997 | 207.4 |
Sketch
Property Image
Land
| 1 | 18 | AC (02.01-03.00) | 0.0000 | 0.00 | 0.00 | 0.00 | 1.00 | $250,000 | $0 |
Roll Value History
| 2026 | N/A | N/A | N/A | N/A | N/A |
| 2025 | $339,255 | $250,000 | $0 | $589,255 | $589,255 |
| 2024 | $343,537 | $250,000 | $0 | $593,537 | $593,537 |
| 2023 | $347,817 | $250,000 | $0 | $597,817 | $597,817 |
| 2022 | $318,834 | $270,000 | $0 | $588,834 | $588,834 |
| 2021 | $280,617 | $210,000 | $0 | $490,617 | $490,617 |
| 2020 | $250,858 | $190,000 | $0 | $440,858 | $440,858 |
| 2019 | $191,751 | $200,000 | $0 | $391,751 | $391,751 |
| 2018 | $192,341 | $140,000 | $0 | $332,341 | $332,341 |
| 2017 | $199,682 | $140,000 | $0 | $339,682 | $339,682 |
| 2016 | $202,118 | $125,000 | $0 | $327,118 | $327,118 |
| 2015 | $204,553 | $100,000 | $0 | $304,553 | $304,553 |
| 2014 | $210,970 | $95,000 | $0 | $305,970 | $305,970 |
| 2013 | $213,513 | $95,000 | $0 | $308,513 | $308,513 |
| 2012 | $216,059 | $114,750 | $0 | $330,809 | $330,809 |
| 2011 | $218,604 | $135,000 | $0 | $353,604 | $353,604 |
| 2010 | $227,431 | $135,000 | $0 | $362,431 | $362,431 |
| 2009 | $237,222 | $155,000 | $0 | $392,222 | $392,222 |
| 2008 | $237,826 | $130,000 | $0 | $367,826 | $367,826 |
| 2007 | $240,749 | $130,000 | $0 | $370,749 | $370,749 |
Deed and Sales History
| 1 | 04/25/2017 | TRUSTEED | Trustee's Deed | FEDERAL NATIONAL MORTGAGE ASSOCIATION | PETRY, TANNER LEVY | | | $380,000.00 | 29049 | 4421490 |
| 2 | 08/25/2016 | TRUSTEED | Trustee's Deed | PARKER, RICHARD J | FEDERAL NATIONAL MORTGAGE ASSOCIATION | | | $358,395.00 | 25864 | 4406035 |
| 3 | 08/01/1996 | WD | Warranty Deed | HILLS, LEE & | PARKER, RICHARD J | | | $47,000.00 | 63163 | 96015466 |
| 4 | 02/01/1992 | WD | Warranty Deed | MCNALLY, DONALD J | HILLS, LEE & | | | $39,000.00 | 20638 | 92003133 |
| 5 | 09/01/1981 | EXECUTORD | Executor Deed | HERMAN, BARRY W | MCNALLY, DONALD J | | | $27,500.00 | 13038 | 388464 |
| 6 | 01/01/1900 | OTHER | Other - Misc. Documents | Unknown | HERMAN, BARRY W | | | $0.00 | 0 | 0 |
Payout Agreement
| No payout information available.. |