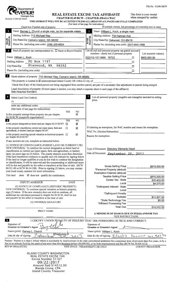
Property
Account |
| Property ID: | 351309 | Abbreviated Legal Description: | L13 BB PLEASANT VU 2 LOTS 12 & 13 BLK B & EZ ON LOT 3 BLK 23 UTSALADY |
| Geographic ID: | S7750-02-0B012-0 | Agent Code: | |
| Type: | Real | | |
| Tax Area: | 590 - APPRAISER-Stan/Cam Schl Dist, Special Dist, improved & less than 1 acre | Land Use Code | 11 |
| Open Space: | N | DFL | N |
| Historic Property: | N | Remodel Property: | N |
| Multi-Family Redevelopment: | N | | |
| Township: | | Section: | |
| Range: | |
Location |
| Address: | 245 STRAND ST CAMANO ISLAND, WA 98282 | Mapsco: | |
| Neighborhood: | North Camano | Map ID: | 963 |
| Neighborhood CD: | 06-C |
Owner |
| Name: | AILLAUD, CINDY | Owner ID: | 301286 |
| Mailing Address: | WHITNEY AILLAUD 245 STRAND ST CAMANO ISLAND, WA 98282 | % Ownership: | 100.0000000000% |
| | | Exemptions: | |
Taxes and Assessment Details
Values
| (+) Improvement Homesite Value: | + | $0 | |
| (+) Improvement Non-Homesite Value: | + | $435,311 | |
| (+) Land Homesite Value: | + | $0 | |
| (+) Land Non-Homesite Value: | + | $315,000 | |
| (+) Curr Use (HS): | + | $0 | $0 |
| (+) Curr Use (NHS): | + | $0 | $0 |
| | | -------------------------- | |
| (=) Market Value: | = | $750,311 | |
| (–) Productivity Loss: | – | $0 | |
| | | -------------------------- | |
| (=) Subtotal: | = | $750,311 | |
| (+) Senior Appraised Value: | + | $0 | |
| (+) Non-Senior Appraised Value: | + | $750,311 | |
| | | -------------------------- | |
| (=) Total Appraised Value: | = | $750,311 | |
| (–) Senior Exemption Loss: | – | $0 | |
| (–) Exemption Loss: | – | $0 | |
| | | -------------------------- | |
| (=) Taxable Value: | = | $750,311 | |
Taxing Jurisdiction
| Owner: | AILLAUD, CINDY | | |
| % Ownership: | 100.0000000000% | | |
| Total Value: | $750,311 | | |
| Tax Area: | 590 - APPRAISER-Stan/Cam Schl Dist, Special Dist, improved & less than 1 acre |
| CF | Conservation Futures | 0.0316035091 | $750,311 | $750,311 | $23.71 | | |
| EMS1 | Fire & Rescue Dist #1 Camano GEN (EMS) | 0.3677864386 | $750,311 | $750,311 | $275.95 | | |
| FIRE1 | Fire & Rescue Dist #1 Camano GEN | 1.2502910536 | $750,311 | $750,311 | $938.11 | | |
| FIRE1BOND | Fire & Rescue Dist #1 Camano BOND | 0.1570001679 | $750,311 | $750,311 | $117.80 | | |
| CE | County Current Expense | 0.3708482477 | $750,311 | $750,311 | $278.25 | | |
| CR | County Roads | 0.4584763726 | $750,311 | $750,311 | $344.00 | | |
| LCIB | Library Sno-Isle BOND (Camano Island) | 0.0396325772 | $750,311 | $750,311 | $29.74 | | |
| LIB | Library Sno-Isle GEN | 0.3153421757 | $750,311 | $750,311 | $236.60 | | |
| SCH205_401 | School 205-401 Enrichment | 1.2698420524 | $750,311 | $750,311 | $952.78 | | |
| SCH205BOND | School 205-401 BOND | 0.9396497583 | $750,311 | $750,311 | $705.03 | | |
| ST | State School | 1.3035497053 | $750,311 | $750,311 | $978.07 | | |
| ST2 | State School Part 2 | 0.8169543533 | $750,311 | $750,311 | $612.97 | | |
| | Total Tax Rate: | 7.3209764117 | | | | | |
| | | | | Taxes w/Current Exemptions: | $5,493.01 | | |
| | | | | Taxes w/o Exemptions: | $5,493.01 | | |
Improvement / Building
| Improvement #1: | RESIDENTIAL | State Code: | Y | 1861.0 sqft | Value: | $435,311 |
| Bathrooms: | 2.5 | Bedrooms: | 2 | | Ceiling: | DRYWALL PAINTED | Exterior Wall/Cover: | CEMENT FIBER | | Floor Covering: | HARDWOOD/CARP 60-40 | Floor Structure: | WOOD W/SUBFLOOR | | Foundation: | CONCRETE | Heating: | FHA GAS | | Interior Finish: | DRYWALL PAINT | Plumbing Fixture Cnt: | 15 | | Roof Slope: | 6" IN 12" | Roof Structure/Cover: | CJ ASPHALT |
|
| | Type | Description | Class CD | Sub Class CD | Year Built | Area |
| | BAS | BASE/MAIN FLOOR | 4 | 0 | 2002 | 961.0 |
| | BIG | BUILT IN GARAGE | 4 | 0 | 2002 | 600.0 |
| | UPS | UPPER STORY | 4 | 0 | 2002 | 900.0 |
| | OWP | OPEN WOOD PORCH W/STEPS | 4 | 0 | 2002 | 240.0 |
| | OWP | OPEN WOOD PORCH W/STEPS | 4 | 0 | 2002 | 214.5 |
| | OWC | OPEN WOOD PORCH W/STEPS/ROOF/C | 4 | 0 | 2002 | 247.0 |
| | OWC | OPEN WOOD PORCH W/STEPS/ROOF/C | 4 | 0 | 2002 | 60.0 |
Sketch
Property Image
Land
| 1 | 15 | SQ (12001-21780) | 0.0000 | 0.00 | 0.00 | 0.00 | 1.00 | $315,000 | $0 |
Roll Value History
| 2026 | N/A | N/A | N/A | N/A | N/A |
| 2025 | $435,311 | $315,000 | $0 | $750,311 | $750,311 |
| 2024 | $440,417 | $310,000 | $0 | $750,417 | $750,417 |
| 2023 | $445,524 | $360,000 | $0 | $805,524 | $805,524 |
| 2022 | $408,060 | $260,000 | $0 | $668,060 | $668,060 |
| 2021 | $338,742 | $200,000 | $0 | $538,742 | $538,742 |
| 2020 | $329,094 | $170,000 | $0 | $499,094 | $499,094 |
| 2019 | $238,243 | $190,000 | $0 | $428,243 | $428,243 |
| 2018 | $238,934 | $135,000 | $0 | $373,934 | $373,934 |
| 2017 | $240,309 | $100,000 | $0 | $340,309 | $340,309 |
| 2016 | $226,779 | $85,000 | $0 | $311,779 | $311,779 |
| 2015 | $229,446 | $85,000 | $0 | $314,446 | $314,446 |
| 2014 | $232,114 | $85,000 | $0 | $317,114 | $317,114 |
| 2013 | $234,782 | $85,000 | $0 | $319,782 | $319,782 |
| 2012 | $237,449 | $80,000 | $0 | $317,449 | $317,449 |
| 2011 | $240,118 | $100,000 | $0 | $340,118 | $340,118 |
| 2010 | $258,287 | $100,000 | $0 | $358,287 | $358,287 |
| 2009 | $266,383 | $125,000 | $0 | $391,383 | $391,383 |
| 2008 | $269,513 | $125,000 | $0 | $394,513 | $394,513 |
| 2007 | $275,394 | $125,000 | $0 | $400,394 | $400,394 |
Deed and Sales History
| 1 | 09/17/2021 | WD | Warranty Deed | MORRIS, ROBERT A | AILLAUD, CINDY | | | $760,000.00 | 50155 | 4529840 |
| 2 | 08/02/2017 | WD | Warranty Deed | SHAUGHNESSY, ANDRA L | MORRIS, ROBERT A | | | $375,000.00 | 30554 | 4427810 |
| 3 | 08/22/2013 | WD | Warranty Deed | NEAL, JAMES M | SHAUGHNESSY, ANDRA L | | | $310,000.00 | 12524 | 4346911 |
| 4 | 08/23/2007 | WD | Warranty Deed | MCGOUN, ROSE | NEAL, JAMES M | | | $434,900.00 | 72921 | 4210593 |
| 5 | 07/14/2004 | WD | Warranty Deed | HENDRICKSON, JOHN E | MCGOUN, ROSE | | | $312,500.00 | 43182 | 4106889 |
| 6 | 12/07/2001 | WD | Warranty Deed | NESS, LOREN D | HENDRICKSON, JOHN E | | | $65,000.00 | 14696 | 4005615 |
| 7 | 05/01/1993 | OTHER | Other - Misc. Documents | NESS, LOREN D | NESS, LOREN D | | | $0.00 | 65369 | 93009113 |
| 8 | 11/01/1992 | WD | Warranty Deed | NESS, LOREN D | NESS, LOREN D | | | $4,000.00 | 24753 | 92023408 |
| 9 | 11/01/1992 | WD | Warranty Deed | DEWEESE, WAYNE G | NESS, LOREN D | | | $0.00 | 24771 | 92023524 |
| 10 | 03/01/1984 | WD | Warranty Deed | DEWEESE, CHARLES G | DEWEESE, WAYNE G | | | $4,500.00 | 40713 | 422250 |
| 11 | 01/01/1900 | OTHER | Other - Misc. Documents | Unknown | DEWEESE, CHARLES G | | | $0.00 | 0 | 0 |
Payout Agreement
| No payout information available.. |