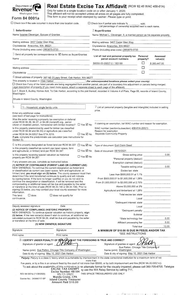
Property
Account |
| Property ID: | 351498 | Abbreviated Legal Description: | PLEASANT VU 2 LOT 18 BLK C TGW R/ACCESS ACROSS LOT 3 BLK 23 UTSALADY |
| Geographic ID: | S7750-02-0C018-0 | Agent Code: | |
| Type: | Real | | |
| Tax Area: | 590 - APPRAISER-Stan/Cam Schl Dist, Special Dist, improved & less than 1 acre | Land Use Code | 11 |
| Open Space: | N | DFL | N |
| Historic Property: | N | Remodel Property: | N |
| Multi-Family Redevelopment: | N | | |
| Township: | | Section: | |
| Range: | |
Location |
| Address: | 245 FAIRVIEW ST CAMANO ISLAND, WA 98282 | Mapsco: | |
| Neighborhood: | North Camano | Map ID: | 963 |
| Neighborhood CD: | 06-C |
Owner |
| Name: | PETERSON TTEE, LORETTA W | Owner ID: | 304123 |
| Mailing Address: | 245 FAIRVIEW ST CAMANO ISLAND, WA 98282 | % Ownership: | 100.0000000000% |
| | | Exemptions: | |
Taxes and Assessment Details
Values
| (+) Improvement Homesite Value: | + | $0 | |
| (+) Improvement Non-Homesite Value: | + | $356,720 | |
| (+) Land Homesite Value: | + | $0 | |
| (+) Land Non-Homesite Value: | + | $315,000 | |
| (+) Curr Use (HS): | + | $0 | $0 |
| (+) Curr Use (NHS): | + | $0 | $0 |
| | | -------------------------- | |
| (=) Market Value: | = | $671,720 | |
| (–) Productivity Loss: | – | $0 | |
| | | -------------------------- | |
| (=) Subtotal: | = | $671,720 | |
| (+) Senior Appraised Value: | + | $0 | |
| (+) Non-Senior Appraised Value: | + | $671,720 | |
| | | -------------------------- | |
| (=) Total Appraised Value: | = | $671,720 | |
| (–) Senior Exemption Loss: | – | $0 | |
| (–) Exemption Loss: | – | $0 | |
| | | -------------------------- | |
| (=) Taxable Value: | = | $671,720 | |
Taxing Jurisdiction
| Owner: | PETERSON TTEE, LORETTA W | | |
| % Ownership: | 100.0000000000% | | |
| Total Value: | $671,720 | | |
| Tax Area: | 590 - APPRAISER-Stan/Cam Schl Dist, Special Dist, improved & less than 1 acre |
| CF | Conservation Futures | 0.0316035091 | $671,720 | $671,720 | $21.23 | | |
| EMS1 | Fire & Rescue Dist #1 Camano GEN (EMS) | 0.3677864386 | $671,720 | $671,720 | $247.05 | | |
| FIRE1 | Fire & Rescue Dist #1 Camano GEN | 1.2502910536 | $671,720 | $671,720 | $839.85 | | |
| FIRE1BOND | Fire & Rescue Dist #1 Camano BOND | 0.1570001679 | $671,720 | $671,720 | $105.46 | | |
| CE | County Current Expense | 0.3708482477 | $671,720 | $671,720 | $249.11 | | |
| CR | County Roads | 0.4584763726 | $671,720 | $671,720 | $307.97 | | |
| LCIB | Library Sno-Isle BOND (Camano Island) | 0.0396325772 | $671,720 | $671,720 | $26.62 | | |
| LIB | Library Sno-Isle GEN | 0.3153421757 | $671,720 | $671,720 | $211.82 | | |
| SCH205_401 | School 205-401 Enrichment | 1.2698420524 | $671,720 | $671,720 | $852.98 | | |
| SCH205BOND | School 205-401 BOND | 0.9396497583 | $671,720 | $671,720 | $631.18 | | |
| ST | State School | 1.3035497053 | $671,720 | $671,720 | $875.62 | | |
| ST2 | State School Part 2 | 0.8169543533 | $671,720 | $671,720 | $548.76 | | |
| | Total Tax Rate: | 7.3209764117 | | | | | |
| | | | | Taxes w/Current Exemptions: | $4,917.65 | | |
| | | | | Taxes w/o Exemptions: | $4,917.65 | | |
Improvement / Building
| Improvement #1: | RESIDENTIAL | State Code: | Y | 1615.0 sqft | Value: | $356,720 |
| Bathrooms: | 2 | Bedrooms: | 3 | | Ceiling: | DRYWALL PAINTED | Cooling: | HEAT PUMP/CONV/V | | Exterior Wall/Cover: | PLY/HARDBOARD T-111 | Floor Covering: | CARPET/VINYL 60-40 | | Floor Structure: | WOOD W/SUBFLOOR | Foundation: | CONCRETE | | Interior Finish: | DRYWALL PAINT | Plumbing Fixture Cnt: | 11 | | Roof Slope: | 8" IN 12" | Roof Structure/Cover: | CJ ASPHALT |
|
| | Type | Description | Class CD | Sub Class CD | Year Built | Area |
| | BAS | BASE/MAIN FLOOR | 4 | 0 | 2012 | 1037.0 |
| | UPS | UPPER STORY | 4 | 0 | 2012 | 408.0 |
| | OWC | OPEN WOOD PORCH W/STEPS/ROOF/C | 4 | 0 | 2012 | 120.0 |
| | BGR | BASEMENT GARAGE | 4 | 0 | 2012 | 952.0 |
| | LOF | LOFT | 4 | 0 | 2012 | 170.0 |
Sketch
Property Image
Land
| 1 | 14 | SQ (08001-12000) | 0.0000 | 0.00 | 0.00 | 0.00 | 1.00 | $315,000 | $0 |
Roll Value History
| 2026 | N/A | N/A | N/A | N/A | N/A |
| 2025 | $356,720 | $315,000 | $0 | $671,720 | $671,720 |
| 2024 | $359,717 | $310,000 | $0 | $669,717 | $669,717 |
| 2023 | $362,914 | $360,000 | $0 | $722,914 | $722,914 |
| 2022 | $300,003 | $260,000 | $0 | $560,003 | $560,003 |
| 2021 | $260,917 | $200,000 | $0 | $460,917 | $460,917 |
| 2020 | $235,701 | $170,000 | $0 | $405,701 | $405,701 |
| 2019 | $172,288 | $190,000 | $0 | $362,288 | $362,288 |
| 2018 | $172,750 | $135,000 | $0 | $307,750 | $307,750 |
| 2017 | $173,674 | $130,000 | $0 | $303,674 | $303,674 |
| 2016 | $175,320 | $85,000 | $0 | $260,320 | $260,320 |
| 2015 | $177,164 | $65,000 | $0 | $242,164 | $242,164 |
| 2014 | $179,011 | $65,000 | $0 | $244,011 | $244,011 |
| 2013 | $180,856 | $65,000 | $0 | $245,856 | $245,856 |
| 2012 | $88,444 | $68,000 | $0 | $156,444 | $156,444 |
| 2011 | $0 | $85,000 | $0 | $85,000 | $85,000 |
| 2010 | $0 | $85,000 | $0 | $85,000 | $85,000 |
| 2009 | $0 | $100,000 | $0 | $100,000 | $100,000 |
| 2008 | $0 | $100,000 | $0 | $100,000 | $100,000 |
| 2007 | $0 | $100,000 | $0 | $100,000 | $100,000 |
Deed and Sales History
| 1 | 04/26/2022 | QCD | Quit Claim Deed | PETERSON, VINCENT L | PETERSON TTEE, LORETTA W | | | $0.00 | 53000 | 4544759 |
| 2 | 10/21/2020 | WD | Warranty Deed | VAN ZUIDEN, BENJAMIN C | PETERSON, VINCENT L | | | $601,555.00 | 45504 | 4501108 |
| 3 | 06/15/2011 | BARGSLD | Bargain And Sale Deed | WASHINGTON FEDERAL SAVINGS | VAN ZUIDEN, BENJAMIN C | | | $45,000.00 | 4712 | 4296736 |
| 4 | 02/03/2011 | TRUSTEED | Trustee's Deed | FOGARTY, JAY P | WASHINGTON FEDERAL SAVINGS | | | $87,492.00 | 3553 | 4290253 |
| 5 | 05/02/2006 | WD | Warranty Deed | GRUENBERG, ARTHUR H | FOGARTY, JAY P | | | $18,495.00 | 61971 | 4169555 |
| 6 | 06/01/1985 | WD | Warranty Deed | CANTER, WILMA | GRUENBERG, ARTHUR H | | | $4,500.00 | 51596 | 85006405 |
| 7 | 09/01/1978 | REC | Real Estate Contract | CANTER, ROLAND F | CANTER, WILMA | | | $0.00 | 58701000 | 0 |
| 8 | 01/01/1900 | OTHER | Other - Misc. Documents | Unknown | CANTER, ROLAND F | | | $0.00 | 0 | 0 |
Payout Agreement
| No payout information available.. |