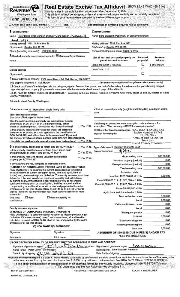
Property
Account |
| Property ID: | 351808 | Abbreviated Legal Description: | POLNELL SH LOT 7 BLK 2 |
| Geographic ID: | S7755-00-02007-0 | Agent Code: | |
| Type: | Real | | |
| Tax Area: | 110 - APPRAISER-OH Schl Dist, outside OH, improved & 1 acre or less | Land Use Code | 11 |
| Open Space: | N | DFL | N |
| Historic Property: | N | Remodel Property: | N |
| Multi-Family Redevelopment: | N | | |
| Township: | | Section: | |
| Range: | |
Location |
| Address: | 1235 ROSEMONT DR OAK HARBOR, WA 98277 | Mapsco: | |
| Neighborhood: | Cycle 6 | Map ID: | 540 |
| Neighborhood CD: | 6 |
Owner |
| Name: | ALMBERG, NELSON WESLEY | Owner ID: | 316294 |
| Mailing Address: | SHEENA BODENHAFER 1235 ROSEMONT DR OAK HARBOR, WA 98277 | % Ownership: | 100.0000000000% |
| | | Exemptions: | |
Taxes and Assessment Details
Values
| (+) Improvement Homesite Value: | + | $0 | |
| (+) Improvement Non-Homesite Value: | + | $427,711 | |
| (+) Land Homesite Value: | + | $0 | |
| (+) Land Non-Homesite Value: | + | $260,000 | |
| (+) Curr Use (HS): | + | $0 | $0 |
| (+) Curr Use (NHS): | + | $0 | $0 |
| | | -------------------------- | |
| (=) Market Value: | = | $687,711 | |
| (–) Productivity Loss: | – | $0 | |
| | | -------------------------- | |
| (=) Subtotal: | = | $687,711 | |
| (+) Senior Appraised Value: | + | $0 | |
| (+) Non-Senior Appraised Value: | + | $687,711 | |
| | | -------------------------- | |
| (=) Total Appraised Value: | = | $687,711 | |
| (–) Senior Exemption Loss: | – | $0 | |
| (–) Exemption Loss: | – | $0 | |
| | | -------------------------- | |
| (=) Taxable Value: | = | $687,711 | |
Taxing Jurisdiction
| Owner: | ALMBERG, NELSON WESLEY | | |
| % Ownership: | 100.0000000000% | | |
| Total Value: | $687,711 | | |
| Tax Area: | 110 - APPRAISER-OH Schl Dist, outside OH, improved & 1 acre or less |
| CF | Conservation Futures | 0.0316035091 | $687,711 | $687,711 | $21.73 | | |
| CEM1 | Cemetery #1 | 0.0040320932 | $687,711 | $687,711 | $2.77 | | |
| FIRE2 | Fire & Rescue Dist #2 N Whidbey GEN | 0.5475949600 | $687,711 | $687,711 | $376.59 | | |
| HOBOND | Hospital BOND | 0.1910887512 | $687,711 | $687,711 | $131.41 | | |
| HOGEN | Hospital GEN | 0.3902502903 | $687,711 | $687,711 | $268.38 | | |
| CE | County Current Expense | 0.3708482477 | $687,711 | $687,711 | $255.04 | | |
| CR | County Roads | 0.4584763726 | $687,711 | $687,711 | $315.30 | | |
| ISLANDEMS | Hospital GEN (EMS) | 0.5000000000 | $687,711 | $687,711 | $343.86 | | |
| LIB | Library Sno-Isle GEN | 0.3153421757 | $687,711 | $687,711 | $216.86 | | |
| NWHIDPRMT | P & R N Whidbey GEN | 0.2004466701 | $687,711 | $687,711 | $137.85 | | |
| SCH201MO | School 201 Enrichment | 1.8559231640 | $687,711 | $687,711 | $1,276.34 | | |
| ST | State School | 1.3035497053 | $687,711 | $687,711 | $896.47 | | |
| ST2 | State School Part 2 | 0.8169543533 | $687,711 | $687,711 | $561.83 | | |
| | Total Tax Rate: | 6.9861102925 | | | | | |
| | | | | Taxes w/Current Exemptions: | $4,804.43 | | |
| | | | | Taxes w/o Exemptions: | $4,804.43 | | |
Improvement / Building
| Improvement #1: | RESIDENTIAL | State Code: | Y | 2030.0 sqft | Value: | $427,711 |
| Bathrooms: | 3 | Bedrooms: | 3 | | Ceiling: | DRYWALL PAINTED | Exterior Wall/Cover: | CEMENT FIBER | | Floor Covering: | LAMINATE/LVP | Floor Structure: | WOOD W/SUBFLOOR | | Foundation: | CONCRETE | Heating: | HEAT PUMP | | Interior Finish: | DRYWALL PAINT | Plumbing Fixture Cnt: | 13 | | Roof Slope: | 3" IN 12" | Roof Structure/Cover: | CJ ASPHALT |
|
| | Type | Description | Class CD | Sub Class CD | Year Built | Area |
| | BAS | BASE/MAIN FLOOR | 3 | 0 | 2024 | 2030.0 |
| | AGR | ATTACHED GARAGE | 3 | 0 | 2024 | 516.0 |
| | OWP | OPEN WOOD PORCH W/STEPS | 3 | 0 | 2024 | 162.0 |
| | OP2 | OPEN PORCH W/STEPS | 3 | 0 | 2024 | 72.0 |
| | OWC | OPEN WOOD PORCH W/STEPS/ROOF/C | 3 | 0 | 2024 | 90.0 |
Sketch
| No sketches available for this property. |
Property Image
Land
| 1 | 15 | SQ (12001-21780) | 0.1400 | 6098.40 | 0.00 | 0.00 | 1.00 | $260,000 | $0 |
Roll Value History
| 2026 | N/A | N/A | N/A | N/A | N/A |
| 2025 | $427,711 | $260,000 | $0 | $687,711 | $687,711 |
| 2024 | $38,010 | $80,000 | $0 | $118,010 | $118,010 |
| 2023 | $0 | $60,000 | $0 | $60,000 | $60,000 |
| 2022 | $0 | $55,000 | $0 | $55,000 | $55,000 |
| 2021 | $0 | $50,000 | $0 | $50,000 | $50,000 |
| 2020 | $0 | $50,000 | $0 | $50,000 | $50,000 |
| 2019 | $0 | $110,000 | $0 | $110,000 | $110,000 |
| 2018 | $0 | $110,000 | $0 | $110,000 | $110,000 |
| 2017 | $0 | $65,000 | $0 | $65,000 | $65,000 |
| 2016 | $0 | $65,000 | $0 | $65,000 | $65,000 |
| 2015 | $0 | $65,000 | $0 | $65,000 | $65,000 |
| 2014 | $0 | $65,000 | $0 | $65,000 | $65,000 |
| 2013 | $0 | $65,000 | $0 | $65,000 | $65,000 |
| 2012 | $0 | $65,000 | $0 | $65,000 | $65,000 |
| 2011 | $0 | $65,000 | $0 | $65,000 | $65,000 |
| 2010 | $0 | $65,000 | $0 | $65,000 | $65,000 |
| 2009 | $0 | $65,000 | $0 | $65,000 | $65,000 |
| 2008 | $0 | $65,000 | $0 | $65,000 | $65,000 |
| 2007 | $0 | $50,000 | $0 | $50,000 | $50,000 |
Deed and Sales History
| 1 | 04/18/2025 | WD | Warranty Deed | ENCINAS CONSTRUCTION, INC. | ALMBERG, NELSON WESLEY | | | $769,000.00 | 63331 | 4585225 |
| 2 | 07/24/2023 | WD | Warranty Deed | WHITTAKER, MARY SILVA | ENCINAS CONSTRUCTION INC | | | $125,000.00 | 57445 | 4562793 |
| 3 | 06/08/2012 | BARGSLD | Bargain And Sale Deed | SILVA, RUTH P | WHITTAKER, MARY SILVA | | | $0.00 | 7931 | 4317189 |
Payout Agreement
| No payout information available.. |