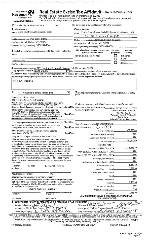
Property
Account |
| Property ID: | 352077 | Abbreviated Legal Description: | POLNELL SH LOT 22 BLK 3 & PT LOT 21 BLK 3 DESC: BG SWCR LOT 21 TPB N ALG WLN TO NWCR LOT 21 E12' ALG NLN LOT 21 S TO SWCR LOT 21 TPB |
| Geographic ID: | S7755-00-03022-0 | Agent Code: | |
| Type: | Real | | |
| Tax Area: | 110 - APPRAISER-OH Schl Dist, outside OH, improved & 1 acre or less | Land Use Code | 11 |
| Open Space: | N | DFL | N |
| Historic Property: | N | Remodel Property: | N |
| Multi-Family Redevelopment: | N | | |
| Township: | | Section: | |
| Range: | |
Location |
| Address: | 1207 NOEL GREENE DR OAK HARBOR, WA 98277 | Mapsco: | |
| Neighborhood: | Cycle 6 | Map ID: | 540 |
| Neighborhood CD: | 6 |
Owner |
| Name: | EASTMAN TRUSTEE, BRUCE | Owner ID: | 281474 |
| Mailing Address: | BRIDGET M EASTMAN TRUSTEE 1207 NOEL GREENE DR OAK HARBOR, WA 98277 | % Ownership: | 100.0000000000% |
| | | Exemptions: | |
Taxes and Assessment Details
Values
| (+) Improvement Homesite Value: | + | $0 | |
| (+) Improvement Non-Homesite Value: | + | $337,237 | |
| (+) Land Homesite Value: | + | $0 | |
| (+) Land Non-Homesite Value: | + | $280,000 | |
| (+) Curr Use (HS): | + | $0 | $0 |
| (+) Curr Use (NHS): | + | $0 | $0 |
| | | -------------------------- | |
| (=) Market Value: | = | $617,237 | |
| (–) Productivity Loss: | – | $0 | |
| | | -------------------------- | |
| (=) Subtotal: | = | $617,237 | |
| (+) Senior Appraised Value: | + | $0 | |
| (+) Non-Senior Appraised Value: | + | $617,237 | |
| | | -------------------------- | |
| (=) Total Appraised Value: | = | $617,237 | |
| (–) Senior Exemption Loss: | – | $0 | |
| (–) Exemption Loss: | – | $0 | |
| | | -------------------------- | |
| (=) Taxable Value: | = | $617,237 | |
Taxing Jurisdiction
| Owner: | EASTMAN TRUSTEE, BRUCE | | |
| % Ownership: | 100.0000000000% | | |
| Total Value: | $617,237 | | |
| Tax Area: | 110 - APPRAISER-OH Schl Dist, outside OH, improved & 1 acre or less |
| CF | Conservation Futures | 0.0316035091 | $617,237 | $617,237 | $19.51 | | |
| CEM1 | Cemetery #1 | 0.0040320932 | $617,237 | $617,237 | $2.49 | | |
| FIRE2 | Fire & Rescue Dist #2 N Whidbey GEN | 0.5475949600 | $617,237 | $617,237 | $338.00 | | |
| HOBOND | Hospital BOND | 0.1910887512 | $617,237 | $617,237 | $117.95 | | |
| HOGEN | Hospital GEN | 0.3902502903 | $617,237 | $617,237 | $240.88 | | |
| CE | County Current Expense | 0.3708482477 | $617,237 | $617,237 | $228.90 | | |
| CR | County Roads | 0.4584763726 | $617,237 | $617,237 | $282.99 | | |
| ISLANDEMS | Hospital GEN (EMS) | 0.5000000000 | $617,237 | $617,237 | $308.62 | | |
| LIB | Library Sno-Isle GEN | 0.3153421757 | $617,237 | $617,237 | $194.64 | | |
| NWHIDPRMT | P & R N Whidbey GEN | 0.2004466701 | $617,237 | $617,237 | $123.72 | | |
| SCH201MO | School 201 Enrichment | 1.8559231640 | $617,237 | $617,237 | $1,145.54 | | |
| ST | State School | 1.3035497053 | $617,237 | $617,237 | $804.60 | | |
| ST2 | State School Part 2 | 0.8169543533 | $617,237 | $617,237 | $504.25 | | |
| | Total Tax Rate: | 6.9861102925 | | | | | |
| | | | | Taxes w/Current Exemptions: | $4,312.09 | | |
| | | | | Taxes w/o Exemptions: | $4,312.09 | | |
Improvement / Building
| Improvement #1: | RESIDENTIAL | State Code: | Y | 1628.0 sqft | Value: | $337,237 |
| Bathrooms: | 2 | Bedrooms: | 3 | | Ceiling: | DRYWALL PAINTED | Cooling: | HEAT PUMP/CONV/V | | Exterior Wall/Cover: | WOOD SIDING | Floor Covering: | HARDWOOD/CARP 60-40 | | Floor Structure: | WOOD W/SUBFLOOR | Foundation: | CONCRETE | | Interior Finish: | DRYWALL PAINT | Plumbing Fixture Cnt: | 12 | | Roof Slope: | 5" IN 12" | Roof Structure/Cover: | CJ ASPHALT |
|
| | Type | Description | Class CD | Sub Class CD | Year Built | Area |
| | BAS | BASE/MAIN FLOOR | 3 | 0 | 1982 | 1628.0 |
| | AGR | ATTACHED GARAGE | 3 | 0 | 1982 | 484.0 |
| | UTY | STORAGE/UTILITY | 3 | 0 | 1982 | 220.0 |
| | OWP | OPEN WOOD PORCH W/STEPS | 3 | 0 | 1982 | 804.0 |
Sketch
Property Image
Land
| 1 | 15 | SQ (12001-21780) | 0.0000 | 0.00 | 0.00 | 0.00 | 1.00 | $280,000 | $0 |
Roll Value History
| 2026 | N/A | N/A | N/A | N/A | N/A |
| 2025 | $337,237 | $280,000 | $0 | $617,237 | $617,237 |
| 2024 | $341,546 | $260,000 | $0 | $601,546 | $601,546 |
| 2023 | $345,857 | $260,000 | $0 | $605,857 | $605,857 |
| 2022 | $299,498 | $220,000 | $0 | $519,498 | $519,498 |
| 2021 | $263,768 | $160,000 | $0 | $423,768 | $423,768 |
| 2020 | $256,804 | $140,000 | $0 | $396,804 | $396,804 |
| 2019 | $186,074 | $190,000 | $0 | $376,074 | $376,074 |
| 2018 | $186,645 | $165,000 | $0 | $351,645 | $351,645 |
| 2017 | $176,340 | $150,000 | $0 | $326,340 | $326,340 |
| 2016 | $152,741 | $140,000 | $0 | $292,741 | $292,741 |
| 2015 | $154,988 | $140,000 | $0 | $294,988 | $294,988 |
| 2014 | $157,235 | $125,000 | $0 | $282,235 | $282,235 |
| 2013 | $159,479 | $112,000 | $0 | $271,479 | $271,479 |
| 2012 | $161,726 | $122,400 | $0 | $284,126 | $284,126 |
| 2011 | $163,972 | $136,000 | $0 | $299,972 | $299,972 |
| 2010 | $175,769 | $136,000 | $0 | $311,769 | $311,769 |
| 2009 | $181,019 | $200,000 | $0 | $381,019 | $381,019 |
| 2008 | $180,700 | $200,000 | $0 | $380,700 | $380,700 |
| 2007 | $176,149 | $206,783 | $0 | $382,932 | $382,932 |
Deed and Sales History
| 1 | 08/07/2017 | WD | Warranty Deed | KOLVAS, DIANE M | EASTMAN TRUSTEE, BRUCE | | | $400,000.00 | 30681 | 4428363 |
| 2 | 03/21/2013 | CPADC | Comm Prop Agmnt & Death Cert | KOLVAS, ANGELO M / DIANE M | KOLVAS, DIANE M | | | | 82655 | 4335083 |
| 3 | 04/01/1993 | WD | Warranty Deed | RILEY, BERNARD T | KOLVAS, ANGELO M | | | $184,900.00 | 31262 | 93006684 |
| 4 | 03/01/1993 | QCD | Quit Claim Deed | RILEY, BERNARD T | RILEY, BERNARD T | | | $0.00 | 31016 | 93005357 |
| 5 | 03/01/1993 | QCD | Quit Claim Deed | RILEY, BERNARD T | RILEY, BERNARD T | | | $0.00 | 31015 | 93005356 |
| 6 | 03/01/1993 | QCD | Quit Claim Deed | RILEY, BERNARD T | RILEY, BERNARD T | | | $0.00 | 31014 | 93005355 |
| 7 | 11/01/1990 | WD | Warranty Deed | RILEY, BERNARD T | RILEY, BERNARD T | | | $0.00 | 6373 | 90022133 |
| 8 | 09/01/1990 | WD | Warranty Deed | RILEY, BERNARD T | RILEY, BERNARD T | | | $0.00 | 5609 | 90018738 |
| 9 | 04/01/1981 | CD | DNU - Correction Deed | RILEY, BERNARD T | RILEY, BERNARD T | | | $1.00 | 11614 | 383482 |
| 10 | 01/01/1900 | OTHER | Other - Misc. Documents | Unknown | RILEY, BERNARD T | | | $0.00 | 0 | 0 |
Payout Agreement
| No payout information available.. |