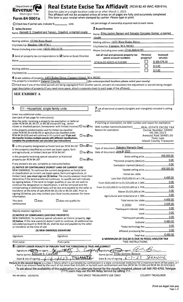
Property
Account |
| Property ID: | 352086 | Abbreviated Legal Description: | POLNELL SH LOT 1 BLK 4 |
| Geographic ID: | S7755-00-04001-0 | Agent Code: | |
| Type: | Real | | |
| Tax Area: | 110 - APPRAISER-OH Schl Dist, outside OH, improved & 1 acre or less | Land Use Code | 11 |
| Open Space: | N | DFL | N |
| Historic Property: | N | Remodel Property: | N |
| Multi-Family Redevelopment: | N | | |
| Township: | | Section: | |
| Range: | |
Location |
| Address: | 1204 NOEL GREENE DR OAK HARBOR, WA 98277 | Mapsco: | |
| Neighborhood: | Cycle 6 | Map ID: | 540 |
| Neighborhood CD: | 6 |
Owner |
| Name: | ENGLANT ET AL, CANDIS L | Owner ID: | 306025 |
| Mailing Address: | C/O STEVEN ELM 3855 154TH ST W ROSEMOUNT, MN 55068 | % Ownership: | 100.0000000000% |
| | | Exemptions: | |
Taxes and Assessment Details
Values
| (+) Improvement Homesite Value: | + | $0 | |
| (+) Improvement Non-Homesite Value: | + | $458,155 | |
| (+) Land Homesite Value: | + | $0 | |
| (+) Land Non-Homesite Value: | + | $280,000 | |
| (+) Curr Use (HS): | + | $0 | $0 |
| (+) Curr Use (NHS): | + | $0 | $0 |
| | | -------------------------- | |
| (=) Market Value: | = | $738,155 | |
| (–) Productivity Loss: | – | $0 | |
| | | -------------------------- | |
| (=) Subtotal: | = | $738,155 | |
| (+) Senior Appraised Value: | + | $0 | |
| (+) Non-Senior Appraised Value: | + | $738,155 | |
| | | -------------------------- | |
| (=) Total Appraised Value: | = | $738,155 | |
| (–) Senior Exemption Loss: | – | $0 | |
| (–) Exemption Loss: | – | $0 | |
| | | -------------------------- | |
| (=) Taxable Value: | = | $738,155 | |
Taxing Jurisdiction
| Owner: | ENGLANT ET AL, CANDIS L | | |
| % Ownership: | 100.0000000000% | | |
| Total Value: | $738,155 | | |
| Tax Area: | 110 - APPRAISER-OH Schl Dist, outside OH, improved & 1 acre or less |
| CF | Conservation Futures | 0.0316035091 | $738,155 | $738,155 | $23.33 | | |
| CEM1 | Cemetery #1 | 0.0040320932 | $738,155 | $738,155 | $2.98 | | |
| FIRE2 | Fire & Rescue Dist #2 N Whidbey GEN | 0.5475949600 | $738,155 | $738,155 | $404.21 | | |
| HOBOND | Hospital BOND | 0.1910887512 | $738,155 | $738,155 | $141.05 | | |
| HOGEN | Hospital GEN | 0.3902502903 | $738,155 | $738,155 | $288.07 | | |
| CE | County Current Expense | 0.3708482477 | $738,155 | $738,155 | $273.74 | | |
| CR | County Roads | 0.4584763726 | $738,155 | $738,155 | $338.43 | | |
| ISLANDEMS | Hospital GEN (EMS) | 0.5000000000 | $738,155 | $738,155 | $369.08 | | |
| LIB | Library Sno-Isle GEN | 0.3153421757 | $738,155 | $738,155 | $232.77 | | |
| NWHIDPRMT | P & R N Whidbey GEN | 0.2004466701 | $738,155 | $738,155 | $147.96 | | |
| SCH201MO | School 201 Enrichment | 1.8559231640 | $738,155 | $738,155 | $1,369.96 | | |
| ST | State School | 1.3035497053 | $738,155 | $738,155 | $962.22 | | |
| ST2 | State School Part 2 | 0.8169543533 | $738,155 | $738,155 | $603.04 | | |
| | Total Tax Rate: | 6.9861102925 | | | | | |
| | | | | Taxes w/Current Exemptions: | $5,156.84 | | |
| | | | | Taxes w/o Exemptions: | $5,156.84 | | |
Improvement / Building
| Improvement #1: | RESIDENTIAL | State Code: | Y | 2932.0 sqft | Value: | $458,155 |
| Bathrooms: | 3 | Bedrooms: | 3 | | Ceiling: | DRYWALL PAINTED | Exterior Wall/Cover: | WOOD SIDING | | Floor Covering: | HARDWOOD/CARP 80-20 | Floor Structure: | WOOD W/SUBFLOOR | | Foundation: | CONCRETE | Heating: | FHA GAS | | Interior Finish: | DRYWALL PAINT | Plumbing Fixture Cnt: | 13 | | Roof Slope: | 4" IN 12" | Roof Structure/Cover: | BEAM WOOD SHAKES |
|
| | Type | Description | Class CD | Sub Class CD | Year Built | Area |
| | BAS | BASE/MAIN FLOOR | 4 | 0 | 1987 | 1876.0 |
| | UB8 | BASEMENT UNFINISHED 8" | 4 | 0 | 1987 | 418.0 |
| | OP2 | OPEN PORCH W/STEPS | 4 | 0 | 1987 | 24.0 |
| | AGR | ATTACHED GARAGE | 4 | 0 | 1987 | 528.0 |
| | OWP | OPEN WOOD PORCH W/STEPS | 4 | 0 | 1987 | 586.0 |
| | OWP | OPEN WOOD PORCH W/STEPS | 4 | 0 | 1987 | 42.0 |
| | DWN | DOWNSTAIRS LIVING AREA | 4 | 0 | 1987 | 1056.0 |
Sketch
Property Image
Land
| 1 | 15 | SQ (12001-21780) | 0.0000 | 0.00 | 0.00 | 0.00 | 1.00 | $280,000 | $0 |
Roll Value History
| 2026 | N/A | N/A | N/A | N/A | N/A |
| 2025 | $458,155 | $280,000 | $0 | $738,155 | $738,155 |
| 2024 | $464,584 | $260,000 | $0 | $724,584 | $724,584 |
| 2023 | $471,016 | $260,000 | $0 | $731,016 | $731,016 |
| 2022 | $397,289 | $220,000 | $0 | $617,289 | $617,289 |
| 2021 | $350,529 | $160,000 | $0 | $510,529 | $510,529 |
| 2020 | $343,055 | $140,000 | $0 | $483,055 | $483,055 |
| 2019 | $267,346 | $190,000 | $0 | $457,346 | $457,346 |
| 2018 | $268,285 | $165,000 | $0 | $433,285 | $433,285 |
| 2017 | $270,160 | $150,000 | $0 | $420,160 | $420,160 |
| 2016 | $220,618 | $140,000 | $0 | $360,618 | $360,618 |
| 2015 | $223,769 | $140,000 | $0 | $363,769 | $363,769 |
| 2014 | $226,921 | $125,000 | $0 | $351,921 | $351,921 |
| 2013 | $230,073 | $112,000 | $0 | $342,073 | $342,073 |
| 2012 | $233,225 | $122,400 | $0 | $355,625 | $355,625 |
| 2011 | $236,377 | $136,000 | $0 | $372,377 | $372,377 |
| 2010 | $248,984 | $136,000 | $0 | $384,984 | $384,984 |
| 2009 | $259,761 | $200,000 | $0 | $459,761 | $459,761 |
| 2008 | $262,959 | $200,000 | $0 | $462,959 | $462,959 |
| 2007 | $256,386 | $209,771 | $0 | $466,157 | $466,157 |
Deed and Sales History
| 1 | 04/14/2022 | TOD | Transfer On Death Deed | ELM, WILLIDA M | ENGLANT ET AL, CANDIS L | | | $0.00 | 54556 | 4543457 |
| 2 | 04/24/2008 | OTHER | Other - Misc. Documents | ELM, JOE L | ELM, WILLIDA M | | | $0.00 | 80706 | 0 |
| 3 | 06/01/1987 | QCD | Quit Claim Deed | KOETJE, GORDON | ELM, JOE L | | | $0.00 | 62403 | 87008525 |
| 4 | 10/01/1986 | QCD | Quit Claim Deed | ELM, JOE L | KOETJE, GORDON | | | $0.00 | 63255 | 86014640 |
| 5 | 05/01/1986 | WD | Warranty Deed | ROBERTS, ROBERT | ELM, JOE L | | | $32,000.00 | 61226 | 86005706 |
| 6 | 10/01/1985 | WD | Warranty Deed | THOMAS, PATRICIA H | ROBERTS, ROBERT | | | $10,000.00 | 53165 | 85012518 |
| 7 | 04/01/1980 | CD | DNU - Correction Deed | THOMAS, WILLIAM E | THOMAS, PATRICIA H | | | $0.00 | 1376 | 367984 |
| 8 | 01/01/1900 | OTHER | Other - Misc. Documents | THOMAS, PATRICIA H | THOMAS, WILLIAM E | | | $0.00 | 0 | 0 |
| 9 | 01/01/1900 | OTHER | Other - Misc. Documents | Unknown | THOMAS, PATRICIA H | | | $0.00 | 58715 | 0 |
Payout Agreement
| No payout information available.. |