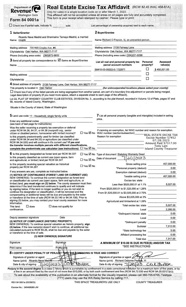
Property
Account |
| Property ID: | 352157 | Abbreviated Legal Description: | POLNELL SH LOT 8 BLK 4 |
| Geographic ID: | S7755-00-04008-0 | Agent Code: | |
| Type: | Real | | |
| Tax Area: | 110 - APPRAISER-OH Schl Dist, outside OH, improved & 1 acre or less | Land Use Code | 11 |
| Open Space: | N | DFL | N |
| Historic Property: | N | Remodel Property: | N |
| Multi-Family Redevelopment: | N | | |
| Township: | | Section: | |
| Range: | |
Location |
| Address: | 1252 NOEL GREENE DR OAK HARBOR, WA 98277 | Mapsco: | |
| Neighborhood: | Cycle 6 | Map ID: | 540 |
| Neighborhood CD: | 6 |
Owner |
| Name: | HOLZBAUR, PAUL B. | Owner ID: | 262511 |
| Mailing Address: | ELODIA R HOLZBAUR PO BOX 2906 OAK HARBOR, WA 98277 | % Ownership: | 100.0000000000% |
| | | Exemptions: | |
Taxes and Assessment Details
Values
| (+) Improvement Homesite Value: | + | $0 | |
| (+) Improvement Non-Homesite Value: | + | $530,176 | |
| (+) Land Homesite Value: | + | $0 | |
| (+) Land Non-Homesite Value: | + | $260,000 | |
| (+) Curr Use (HS): | + | $0 | $0 |
| (+) Curr Use (NHS): | + | $0 | $0 |
| | | -------------------------- | |
| (=) Market Value: | = | $790,176 | |
| (–) Productivity Loss: | – | $0 | |
| | | -------------------------- | |
| (=) Subtotal: | = | $790,176 | |
| (+) Senior Appraised Value: | + | $0 | |
| (+) Non-Senior Appraised Value: | + | $790,176 | |
| | | -------------------------- | |
| (=) Total Appraised Value: | = | $790,176 | |
| (–) Senior Exemption Loss: | – | $0 | |
| (–) Exemption Loss: | – | $0 | |
| | | -------------------------- | |
| (=) Taxable Value: | = | $790,176 | |
Taxing Jurisdiction
| Owner: | HOLZBAUR, PAUL B. | | |
| % Ownership: | 100.0000000000% | | |
| Total Value: | $790,176 | | |
| Tax Area: | 110 - APPRAISER-OH Schl Dist, outside OH, improved & 1 acre or less |
| CF | Conservation Futures | 0.0316035091 | $790,176 | $790,176 | $24.97 | | |
| CEM1 | Cemetery #1 | 0.0040320932 | $790,176 | $790,176 | $3.19 | | |
| FIRE2 | Fire & Rescue Dist #2 N Whidbey GEN | 0.5475949600 | $790,176 | $790,176 | $432.70 | | |
| HOBOND | Hospital BOND | 0.1910887512 | $790,176 | $790,176 | $150.99 | | |
| HOGEN | Hospital GEN | 0.3902502903 | $790,176 | $790,176 | $308.37 | | |
| CE | County Current Expense | 0.3708482477 | $790,176 | $790,176 | $293.04 | | |
| CR | County Roads | 0.4584763726 | $790,176 | $790,176 | $362.28 | | |
| ISLANDEMS | Hospital GEN (EMS) | 0.5000000000 | $790,176 | $790,176 | $395.09 | | |
| LIB | Library Sno-Isle GEN | 0.3153421757 | $790,176 | $790,176 | $249.18 | | |
| NWHIDPRMT | P & R N Whidbey GEN | 0.2004466701 | $790,176 | $790,176 | $158.39 | | |
| SCH201MO | School 201 Enrichment | 1.8559231640 | $790,176 | $790,176 | $1,466.51 | | |
| ST | State School | 1.3035497053 | $790,176 | $790,176 | $1,030.03 | | |
| ST2 | State School Part 2 | 0.8169543533 | $790,176 | $790,176 | $645.54 | | |
| | Total Tax Rate: | 6.9861102925 | | | | | |
| | | | | Taxes w/Current Exemptions: | $5,520.28 | | |
| | | | | Taxes w/o Exemptions: | $5,520.28 | | |
Improvement / Building
| Improvement #1: | RESIDENTIAL | State Code: | Y | 2971.3 sqft | Value: | $530,176 |
| Bathrooms: | 2.5 | Bedrooms: | 3 | | Ceiling: | DRYWALL PAINTED | Cooling: | FHA AND AC | | Exterior Wall/Cover: | CEMENT FIBER | Floor Covering: | HARDWOOD/CARP 60-40 | | Floor Structure: | WOOD W/SUBFLOOR | Foundation: | CONCRETE | | Interior Finish: | DRYWALL PAINT | Plumbing Fixture Cnt: | 12 | | Roof Slope: | 6" IN 12" | Roof Structure/Cover: | CJ ASPHALT |
|
| | Type | Description | Class CD | Sub Class CD | Year Built | Area |
| | BAS | BASE/MAIN FLOOR | 4 | 0 | 2005 | 1634.1 |
| | OP4 | OPEN PORCH W/CEILING-ROOF | 4 | 0 | 2005 | 66.8 |
| | AGR | ATTACHED GARAGE | 4 | 0 | 2005 | 556.4 |
| | OWC | OPEN WOOD PORCH W/STEPS/ROOF/C | 4 | 0 | 2005 | 81.7 |
| | DWN | DOWNSTAIRS LIVING AREA | 4 | 0 | 2005 | 1337.2 |
| | OWP | OPEN WOOD PORCH W/STEPS | 3 | 0 | 2005 | 441.2 |
Sketch
Property Image
Land
| 1 | 15 | SQ (12001-21780) | 0.0000 | 0.00 | 0.00 | 0.00 | 1.00 | $260,000 | $0 |
Roll Value History
| 2026 | N/A | N/A | N/A | N/A | N/A |
| 2025 | $530,176 | $260,000 | $0 | $790,176 | $790,176 |
| 2024 | $528,130 | $260,000 | $0 | $788,130 | $788,130 |
| 2023 | $534,253 | $240,000 | $0 | $774,253 | $774,253 |
| 2022 | $464,300 | $220,000 | $0 | $684,300 | $684,300 |
| 2021 | $407,909 | $160,000 | $0 | $567,909 | $567,909 |
| 2020 | $398,173 | $140,000 | $0 | $538,173 | $538,173 |
| 2019 | $313,986 | $190,000 | $0 | $503,986 | $503,986 |
| 2018 | $314,874 | $165,000 | $0 | $479,874 | $479,874 |
| 2017 | $316,629 | $150,000 | $0 | $466,629 | $466,629 |
| 2016 | $312,062 | $125,000 | $0 | $437,062 | $437,062 |
| 2015 | $315,607 | $125,000 | $0 | $440,607 | $440,607 |
| 2014 | $319,154 | $125,000 | $0 | $444,154 | $444,154 |
| 2013 | $322,700 | $112,000 | $0 | $434,700 | $434,700 |
| 2012 | $326,246 | $122,400 | $0 | $448,646 | $448,646 |
| 2011 | $329,792 | $136,000 | $0 | $465,792 | $465,792 |
| 2010 | $341,495 | $136,000 | $0 | $477,495 | $477,495 |
| 2009 | $352,178 | $170,000 | $0 | $522,178 | $522,178 |
| 2008 | $355,990 | $170,000 | $0 | $525,990 | $525,990 |
| 2007 | $328,469 | $201,319 | $0 | $529,788 | $529,788 |
Deed and Sales History
| 1 | 05/28/2013 | WD | Warranty Deed | MONTMENY, TRACY A | HOLZBAUR, PAUL B. | | | $452,000.00 | 11513 | 4341217 |
| 2 | 06/18/2012 | MARRCERT | DNU - Marriage Certificate | WOLFE, TRACY A | MONTMENY, TRACY A | | | | 82472 | |
| 3 | 08/23/2004 | WD | Warranty Deed | KOETJE, EDWARD L | WOLFE, TRACY A | | | $34,995.00 | 44100 | 4111672 |
| 4 | 01/01/1995 | PRD | Personal Representatives Deed | KOETJE, GEORGE R | KOETJE, EDWARD L | | | $0.00 | 50164 | 95000850 |
| 5 | 11/01/1989 | PRD | Personal Representatives Deed | KOETJE, NEIL H | KOETJE, GEORGE R | | | $0.00 | 475 | 90001499 |
| 6 | 01/01/1900 | OTHER | Other - Misc. Documents | Unknown | KOETJE, NEIL H | | | $0.00 | 0 | 0 |
Payout Agreement
| No payout information available.. |