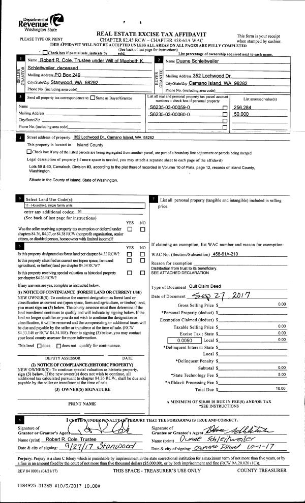
Property
Account |
| Property ID: | 352326 | Abbreviated Legal Description: | POLNELL SH LOT 25 BLK 4 |
| Geographic ID: | S7755-00-04025-0 | Agent Code: | |
| Type: | Real | | |
| Tax Area: | 110 - APPRAISER-OH Schl Dist, outside OH, improved & 1 acre or less | Land Use Code | 11 |
| Open Space: | N | DFL | N |
| Historic Property: | N | Remodel Property: | N |
| Multi-Family Redevelopment: | N | | |
| Township: | | Section: | |
| Range: | |
Location |
| Address: | 1273 POLNELL SHORES DR OAK HARBOR, WA 98277 | Mapsco: | |
| Neighborhood: | Cycle 6 | Map ID: | 540 |
| Neighborhood CD: | 6 |
Owner |
| Name: | JONES, TRUE G | Owner ID: | 282497 |
| Mailing Address: | 7661 SABLE CREEK DR CORP CHRISTI, TX 78414-2185 | % Ownership: | 100.0000000000% |
| | | Exemptions: | |
Taxes and Assessment Details
Values
| (+) Improvement Homesite Value: | + | $0 | |
| (+) Improvement Non-Homesite Value: | + | $297,954 | |
| (+) Land Homesite Value: | + | $0 | |
| (+) Land Non-Homesite Value: | + | $260,000 | |
| (+) Curr Use (HS): | + | $0 | $0 |
| (+) Curr Use (NHS): | + | $0 | $0 |
| | | -------------------------- | |
| (=) Market Value: | = | $557,954 | |
| (–) Productivity Loss: | – | $0 | |
| | | -------------------------- | |
| (=) Subtotal: | = | $557,954 | |
| (+) Senior Appraised Value: | + | $0 | |
| (+) Non-Senior Appraised Value: | + | $557,954 | |
| | | -------------------------- | |
| (=) Total Appraised Value: | = | $557,954 | |
| (–) Senior Exemption Loss: | – | $0 | |
| (–) Exemption Loss: | – | $0 | |
| | | -------------------------- | |
| (=) Taxable Value: | = | $557,954 | |
Taxing Jurisdiction
| Owner: | JONES, TRUE G | | |
| % Ownership: | 100.0000000000% | | |
| Total Value: | $557,954 | | |
| Tax Area: | 110 - APPRAISER-OH Schl Dist, outside OH, improved & 1 acre or less |
| CF | Conservation Futures | 0.0316035091 | $557,954 | $557,954 | $17.63 | | |
| CEM1 | Cemetery #1 | 0.0040320932 | $557,954 | $557,954 | $2.25 | | |
| FIRE2 | Fire & Rescue Dist #2 N Whidbey GEN | 0.5475949600 | $557,954 | $557,954 | $305.53 | | |
| HOBOND | Hospital BOND | 0.1910887512 | $557,954 | $557,954 | $106.62 | | |
| HOGEN | Hospital GEN | 0.3902502903 | $557,954 | $557,954 | $217.74 | | |
| CE | County Current Expense | 0.3708482477 | $557,954 | $557,954 | $206.92 | | |
| CR | County Roads | 0.4584763726 | $557,954 | $557,954 | $255.81 | | |
| ISLANDEMS | Hospital GEN (EMS) | 0.5000000000 | $557,954 | $557,954 | $278.98 | | |
| LIB | Library Sno-Isle GEN | 0.3153421757 | $557,954 | $557,954 | $175.95 | | |
| NWHIDPRMT | P & R N Whidbey GEN | 0.2004466701 | $557,954 | $557,954 | $111.84 | | |
| SCH201MO | School 201 Enrichment | 1.8559231640 | $557,954 | $557,954 | $1,035.52 | | |
| ST | State School | 1.3035497053 | $557,954 | $557,954 | $727.32 | | |
| ST2 | State School Part 2 | 0.8169543533 | $557,954 | $557,954 | $455.82 | | |
| | Total Tax Rate: | 6.9861102925 | | | | | |
| | | | | Taxes w/Current Exemptions: | $3,897.93 | | |
| | | | | Taxes w/o Exemptions: | $3,897.93 | | |
Improvement / Building
| Improvement #1: | RESIDENTIAL | State Code: | Y | 1648.3 sqft | Value: | $297,954 |
| Bathrooms: | 2 | Bedrooms: | 2 | | Ceiling: | BEAM PAINTED | Exterior Wall/Cover: | CEMENT FIBER | | Floor Covering: | CARPET/VINYL 20-80 | Floor Structure: | WOOD W/SUBFLOOR | | Foundation: | CONCRETE | Heating: | FHA GAS | | Interior Finish: | DRYWALL PAINT | Plumbing Fixture Cnt: | 9 | | Roof Slope: | 8" IN 12" | Roof Structure/Cover: | BEAM ASPHALT |
|
| | Type | Description | Class CD | Sub Class CD | Year Built | Area |
| | BAS | BASE/MAIN FLOOR | 3 | 0 | 1999 | 1016.3 |
| | DWN | DOWNSTAIRS LIVING AREA | 3 | 0 | 1999 | 632.0 |
| | BIG | BUILT IN GARAGE | 3 | 0 | 1999 | 320.0 |
| | OWP | OPEN WOOD PORCH W/STEPS | 3 | 0 | 1999 | 623.9 |
| | UTY | STORAGE/UTILITY | 3 | 0 | 1999 | 192.0 |
Sketch
Property Image
Land
| 1 | 15 | SQ (12001-21780) | 0.0000 | 0.00 | 0.00 | 0.00 | 1.00 | $260,000 | $0 |
Roll Value History
| 2026 | N/A | N/A | N/A | N/A | N/A |
| 2025 | $297,954 | $260,000 | $0 | $557,954 | $557,954 |
| 2024 | $296,254 | $260,000 | $0 | $556,254 | $556,254 |
| 2023 | $299,770 | $240,000 | $0 | $539,770 | $539,770 |
| 2022 | $258,028 | $220,000 | $0 | $478,028 | $478,028 |
| 2021 | $227,061 | $160,000 | $0 | $387,061 | $387,061 |
| 2020 | $221,378 | $140,000 | $0 | $361,378 | $361,378 |
| 2019 | $162,707 | $190,000 | $0 | $352,707 | $352,707 |
| 2018 | $163,179 | $165,000 | $0 | $328,179 | $328,179 |
| 2017 | $164,122 | $150,000 | $0 | $314,122 | $314,122 |
| 2016 | $166,009 | $125,000 | $0 | $291,009 | $291,009 |
| 2015 | $167,895 | $125,000 | $0 | $292,895 | $292,895 |
| 2014 | $142,908 | $70,000 | $0 | $212,908 | $212,908 |
| 2013 | $144,609 | $70,000 | $0 | $214,609 | $214,609 |
| 2012 | $146,311 | $77,400 | $0 | $223,711 | $223,711 |
| 2011 | $148,012 | $86,000 | $0 | $234,012 | $234,012 |
| 2010 | $147,765 | $86,000 | $0 | $233,765 | $233,765 |
| 2009 | $154,005 | $170,000 | $0 | $324,005 | $324,005 |
| 2008 | $155,721 | $170,000 | $0 | $325,721 | $325,721 |
| 2007 | $137,518 | $189,906 | $0 | $327,424 | $327,424 |
Deed and Sales History
| 1 | 10/17/2017 | WD | Warranty Deed | CARR, RANDLE T | JONES, TRUE G | | | $325,000.00 | 31568 | 4432399 |
| 2 | 07/18/2014 | WD | Warranty Deed | MARTIN, BRUCE J | CARR, RANDLE T | | | $289,000.00 | 16122 | 4362780 |
| 3 | 12/29/2010 | WD | Warranty Deed | MCCABE, DONNA K | MARTIN, BRUCE J | | | $284,700.00 | 3279 | 4287493 |
| 4 | 11/16/2001 | WD | Warranty Deed | WINGE, RANDOLPH L | MCCABE, DONNA K | | | $179,850.00 | 14491 | 4003876 |
| 5 | 01/25/1999 | WD | Warranty Deed | ENCINAS, JOHN C | WINGE, RANDOLPH L | | | $148,988.00 | 90335 | 99002216 |
| 6 | 08/18/1998 | WD | Warranty Deed | ENCINAS, JOHN C | ENCINAS, JOHN C | | | $30,000.00 | 83316 | 98017324 |
| 7 | 07/20/1998 | ESTSEPPROP | Establish Separate Property | MONTGOMERY, MAXINE M | ENCINAS, JOHN C | | | $0.00 | 83317 | 98017327 |
| 8 | 06/01/1994 | OTHER | Other - Misc. Documents | MONTGOMERY, JUDD | MONTGOMERY, MAXINE M | | | $0.00 | 65944 | 0 |
| 9 | 01/01/1900 | OTHER | Other - Misc. Documents | Unknown | ENCINAS, JOHN C | | | $0.00 | 83316 | 98017324 |
| 10 | 01/01/1900 | OTHER | Other - Misc. Documents | ENCINAS, JOHN C | ENCINAS, JOHN C | | | $0.00 | 83317 | 98017327 |
| 11 | 01/01/1900 | OTHER | Other - Misc. Documents | ENCINAS, JOHN C | MONTGOMERY, JUDD | | | $0.00 | 0 | 0 |
Payout Agreement
| No payout information available.. |