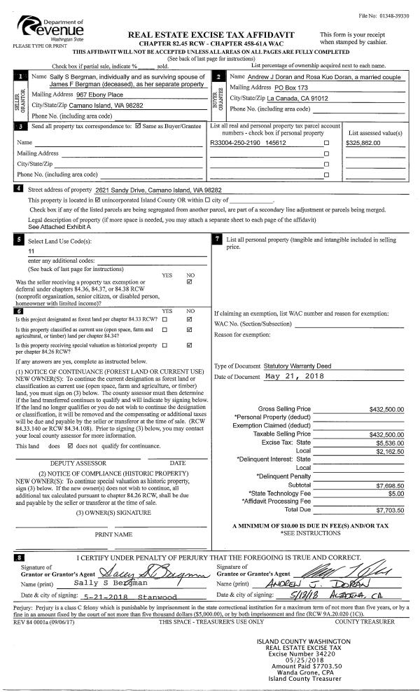
Property
Account |
| Property ID: | 352807 | Abbreviated Legal Description: | PONDILLA EST LOT 9 BLK 1 |
| Geographic ID: | S7760-00-01009-0 | Agent Code: | |
| Type: | Real | | |
| Tax Area: | 330 - APPRAISER-Cpvl Schl Dist, Special Dist, improved & less than 1 acre | Land Use Code | 11 |
| Open Space: | N | DFL | N |
| Historic Property: | N | Remodel Property: | N |
| Multi-Family Redevelopment: | N | | |
| Township: | | Section: | |
| Range: | |
Location |
| Address: | 547 SEASIDE DR COUPEVILLE, WA 98239 | Mapsco: | |
| Neighborhood: | Cycle 2 | Map ID: | 7 |
| Neighborhood CD: | 2 |
Owner |
| Name: | KELLER, BRIAN J | Owner ID: | 296253 |
| Mailing Address: | MELANIE E DERRICK 547 SEASIDE DR COUPEVILLE, WA 98239 | % Ownership: | 100.0000000000% |
| | | Exemptions: | |
Taxes and Assessment Details
Values
| (+) Improvement Homesite Value: | + | $0 | |
| (+) Improvement Non-Homesite Value: | + | $510,567 | |
| (+) Land Homesite Value: | + | $0 | |
| (+) Land Non-Homesite Value: | + | $300,000 | |
| (+) Curr Use (HS): | + | $0 | $0 |
| (+) Curr Use (NHS): | + | $0 | $0 |
| | | -------------------------- | |
| (=) Market Value: | = | $810,567 | |
| (–) Productivity Loss: | – | $0 | |
| | | -------------------------- | |
| (=) Subtotal: | = | $810,567 | |
| (+) Senior Appraised Value: | + | $0 | |
| (+) Non-Senior Appraised Value: | + | $810,567 | |
| | | -------------------------- | |
| (=) Total Appraised Value: | = | $810,567 | |
| (–) Senior Exemption Loss: | – | $0 | |
| (–) Exemption Loss: | – | $0 | |
| | | -------------------------- | |
| (=) Taxable Value: | = | $810,567 | |
Taxing Jurisdiction
| Owner: | KELLER, BRIAN J | | |
| % Ownership: | 100.0000000000% | | |
| Total Value: | $810,567 | | |
| Tax Area: | 330 - APPRAISER-Cpvl Schl Dist, Special Dist, improved & less than 1 acre |
| CF | Conservation Futures | 0.0316035091 | $810,567 | $810,567 | $25.62 | | |
| CEM2 | Cemetery #2 | 0.0095056933 | $810,567 | $810,567 | $7.71 | | |
| FIRE2 | Fire & Rescue Dist #2 N Whidbey GEN | 0.5475949600 | $810,567 | $810,567 | $443.86 | | |
| HOBOND | Hospital BOND | 0.1910887512 | $810,567 | $810,567 | $154.89 | | |
| HOGEN | Hospital GEN | 0.3902502903 | $810,567 | $810,567 | $316.32 | | |
| CE | County Current Expense | 0.3708482477 | $810,567 | $810,567 | $300.60 | | |
| CR | County Roads | 0.4584763726 | $810,567 | $810,567 | $371.63 | | |
| ISLANDEMS | Hospital GEN (EMS) | 0.5000000000 | $810,567 | $810,567 | $405.28 | | |
| LIB | Library Sno-Isle GEN | 0.3153421757 | $810,567 | $810,567 | $255.61 | | |
| LIBCAP | Library Sno-Isle BOND (Cap Fac Imp Area) | 0.0543427938 | $810,567 | $810,567 | $44.05 | | |
| POCOUP | Port of Coupeville GEN | 0.1093371703 | $810,567 | $810,567 | $88.63 | | |
| POCOUPIDD | Port of Coupeville IDD | 0.3409740022 | $810,567 | $810,567 | $276.38 | | |
| COUPSDTECH | School 204 CP (TECH) | 0.7545480007 | $810,567 | $810,567 | $611.61 | | |
| SCH204MO | School 204 Enrichment | 0.6716186034 | $810,567 | $810,567 | $544.39 | | |
| ST | State School | 1.3035497053 | $810,567 | $810,567 | $1,056.61 | | |
| ST2 | State School Part 2 | 0.8169543533 | $810,567 | $810,567 | $662.20 | | |
| | Total Tax Rate: | 6.8660346289 | | | | | |
| | | | | Taxes w/Current Exemptions: | $5,565.39 | | |
| | | | | Taxes w/o Exemptions: | $5,565.39 | | |
Improvement / Building
| Improvement #1: | RESIDENTIAL | State Code: | Y | 2334.0 sqft | Value: | $510,567 |
| Bathrooms: | 2.5 | Bedrooms: | 2 | | Ceiling: | DRYWALL PAINTED | Cooling: | HEAT PUMP/CONV/V | | Exterior Wall/Cover: | CEMENT FIBER | Floor Covering: | HARDWOOD/CARP 20-80 | | Floor Structure: | WOOD W/SUBFLOOR | Foundation: | CONCRETE | | Interior Finish: | DRYWALL PAINT | Plumbing Fixture Cnt: | 13 | | Roof Slope: | 6" IN 12" | Roof Structure/Cover: | CJ ASPHALT |
|
| | Type | Description | Class CD | Sub Class CD | Year Built | Area |
| | BAS | BASE/MAIN FLOOR | 4 | 0 | 1996 | 1758.0 |
| | AGR | ATTACHED GARAGE | 4 | 0 | 1996 | 564.0 |
| | OWP | OPEN WOOD PORCH W/STEPS | 4 | 0 | 1996 | 182.5 |
| | OWC | OPEN WOOD PORCH W/STEPS/ROOF/C | 4 | 0 | 1996 | 727.5 |
| | DWN | DOWNSTAIRS LIVING AREA | 4 | 0 | 1996 | 576.0 |
Sketch
Property Image
Land
| 1 | 14 | SQ (08001-12000) | 0.2789 | 12148.88 | 0.00 | 0.00 | 1.00 | $300,000 | $0 |
Roll Value History
| 2026 | N/A | N/A | N/A | N/A | N/A |
| 2025 | $510,567 | $300,000 | $0 | $810,567 | $810,567 |
| 2024 | $516,419 | $300,000 | $0 | $816,419 | $816,419 |
| 2023 | $515,870 | $300,000 | $0 | $815,870 | $815,870 |
| 2022 | $471,049 | $300,000 | $0 | $771,049 | $771,049 |
| 2021 | $413,234 | $280,000 | $0 | $693,234 | $693,234 |
| 2020 | $386,440 | $260,000 | $0 | $646,440 | $646,440 |
| 2019 | $289,322 | $280,000 | $0 | $569,322 | $569,322 |
| 2018 | $210,564 | $250,000 | $0 | $460,564 | $460,564 |
| 2017 | $211,767 | $195,000 | $0 | $406,767 | $406,767 |
| 2016 | $214,350 | $180,000 | $0 | $394,350 | $394,350 |
| 2015 | $216,932 | $150,000 | $0 | $366,932 | $366,932 |
| 2014 | $219,515 | $150,000 | $0 | $369,515 | $369,515 |
| 2013 | $222,098 | $122,400 | $0 | $344,498 | $344,498 |
| 2012 | $222,446 | $122,400 | $0 | $344,846 | $344,846 |
| 2011 | $225,085 | $144,000 | $0 | $369,085 | $369,085 |
| 2010 | $233,789 | $144,000 | $0 | $377,789 | $377,789 |
| 2009 | $243,862 | $189,000 | $0 | $432,862 | $432,862 |
| 2008 | $246,937 | $189,000 | $0 | $435,937 | $435,937 |
| 2007 | $249,971 | $160,000 | $0 | $409,971 | $409,971 |
Deed and Sales History
| 1 | 09/23/2020 | WD | Warranty Deed | BORROWS, JOHN | KELLER, BRIAN J | | | $760,000.00 | 44916 | 4497603 |
| 2 | 08/20/2018 | WD | Warranty Deed | HALBERT, DALE A | BORROWS, JOHN | | | $659,000.00 | 35668 | 4450794 |
| 3 | 05/19/2000 | WD | Warranty Deed | EARNHART, LINDA J | HALBERT, DALE A | | | $330,000.00 | 1823 | 20008889 |
| 4 | 05/04/2000 | ESTSEPPROP | Establish Separate Property | EARNHART, HOWARD M | EARNHART, LINDA J | | | $0.00 | 1822 | 20008888 |
| 5 | 12/01/1993 | WD | Warranty Deed | SSI, PROPERTIES I | EARNHART, HOWARD M | | | $41,984.00 | 35159 | 93026822 |
| 6 | 01/01/1993 | WD | Warranty Deed | LORENTSON, ROBERT L | SSI, PROPERTIES I | | | $40,516.00 | 30367 | 93001820 |
| 7 | 04/01/1988 | WD | Warranty Deed | LOWE, HOWARD R | LORENTSON, ROBERT L | | | $25,000.00 | 81125 | 88004269 |
| 8 | 04/01/1987 | DECREE | Divorce Decree/Legal Separation | LOWE, HOWARD R | LOWE, HOWARD R | | | $0.00 | 71033 | 87005224 |
| 9 | 02/01/1987 | QCD | Quit Claim Deed | TIDELAND, INVESTMENTS | LOWE, HOWARD R | | | $0.00 | 70508 | 87003070 |
| 10 | 07/01/1980 | EXECUTORD | Executor Deed | HAWN, JERE R | TIDELAND, INVESTMENTS | | | $26,000.00 | 2262 | 370744 |
| 11 | 01/01/1900 | OTHER | Other - Misc. Documents | Unknown | HAWN, JERE R | | | $0.00 | 0 | 0 |
Payout Agreement
| No payout information available.. |