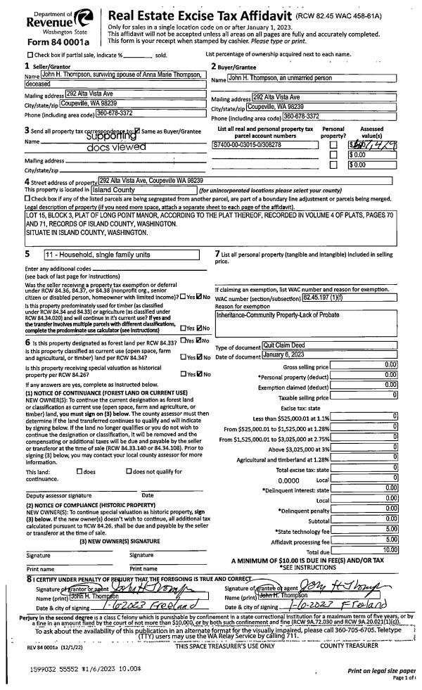
Property
Account |
| Property ID: | 35287 | Abbreviated Legal Description: | 11 - GL 5 LY S OF LN 1640'S OF NLN SEC 13 EX RDS EX S660' OF W990' |
| Geographic ID: | R13313-341-1140 | Agent Code: | |
| Type: | Real | | |
| Tax Area: | 119 - APPRAISER-OH Schl Dist, outside OH, vacant & 50 acres or less | Land Use Code | 83 |
| Open Space: | Y | DFL | N |
| Historic Property: | N | Remodel Property: | N |
| Multi-Family Redevelopment: | N | | |
| Township: | 33 | Section: | 13 |
| Range: | R1 |
Location |
| Address: | | Mapsco: | |
| Neighborhood: | Cycle 6 | Map ID: | 211 |
| Neighborhood CD: | 6 |
Owner |
| Name: | YANG, TROY | Owner ID: | 311473 |
| Mailing Address: | 12816 SOUTHEAST 75TH COURT NEWCASTLE, WA 98056 | % Ownership: | 100.0000000000% |
| | | Exemptions: | |
Taxes and Assessment Details
Values
| (+) Improvement Homesite Value: | + | $0 | |
| (+) Improvement Non-Homesite Value: | + | $0 | |
| (+) Land Homesite Value: | + | $0 | |
| (+) Land Non-Homesite Value: | + | $0 | |
| (+) Curr Use (HS): | + | $0 | $0 |
| (+) Curr Use (NHS): | + | $240,000 | $8,574 |
| | | -------------------------- | |
| (=) Market Value: | = | $240,000 | |
| (–) Productivity Loss: | – | $231,426 | |
| | | -------------------------- | |
| (=) Subtotal: | = | $8,574 | |
| (+) Senior Appraised Value: | + | $0 | |
| (+) Non-Senior Appraised Value: | + | $8,574 | |
| | | -------------------------- | |
| (=) Total Appraised Value: | = | $8,574 | |
| (–) Senior Exemption Loss: | – | $0 | |
| (–) Exemption Loss: | – | $0 | |
| | | -------------------------- | |
| (=) Taxable Value: | = | $8,574 | |
Taxing Jurisdiction
| Owner: | YANG, TROY | | |
| % Ownership: | 100.0000000000% | | |
| Total Value: | $240,000 | | |
| Tax Area: | 119 - APPRAISER-OH Schl Dist, outside OH, vacant & 50 acres or less |
| CF | Conservation Futures | 0.0316035091 | $8,574 | $8,574 | $0.27 | | |
| CEM1 | Cemetery #1 | 0.0040320932 | $8,574 | $8,574 | $0.03 | | |
| HOBOND | Hospital BOND | 0.1910887512 | $8,574 | $8,574 | $1.64 | | |
| HOGEN | Hospital GEN | 0.3902502903 | $8,574 | $8,574 | $3.35 | | |
| CE | County Current Expense | 0.3708482477 | $8,574 | $8,574 | $3.18 | | |
| CR | County Roads | 0.4584763726 | $8,574 | $8,574 | $3.93 | | |
| ISLANDEMS | Hospital GEN (EMS) | 0.5000000000 | $8,574 | $8,574 | $4.29 | | |
| LIB | Library Sno-Isle GEN | 0.3153421757 | $8,574 | $8,574 | $2.70 | | |
| NWHIDPRMT | P & R N Whidbey GEN | 0.2004466701 | $8,574 | $8,574 | $1.72 | | |
| SCH201MO | School 201 Enrichment | 1.8559231640 | $8,574 | $8,574 | $15.91 | | |
| ST | State School | 1.3035497053 | $8,574 | $8,574 | $11.18 | | |
| ST2 | State School Part 2 | 0.8169543533 | $8,574 | $8,574 | $7.00 | | |
| | Total Tax Rate: | 6.4385153325 | | | | | |
| | | | | Taxes w/Current Exemptions: | $55.20 | | |
| | | | | Taxes w/o Exemptions: | $55.20 | | |
Improvement / Building
Sketch
| No sketches available for this property. |
Property Image
Land
| 1 | 35 | AC (10.00-30.99) | 11.6500 | 507474.00 | 0.00 | 0.00 | 1.00 | $240,000 | $8,574 |
Roll Value History
| 2026 | N/A | N/A | N/A | N/A | N/A |
| 2025 | $0 | $240,000 | $8,574 | $8,574 | $8,574 |
| 2024 | $0 | $220,000 | $8,574 | $8,574 | $8,574 |
| 2023 | $0 | $220,000 | $8,574 | $8,574 | $8,574 |
| 2022 | $0 | $220,000 | $8,574 | $8,574 | $8,574 |
| 2021 | $0 | $160,000 | $8,574 | $8,574 | $8,574 |
| 2020 | $0 | $160,000 | $8,574 | $8,574 | $8,574 |
| 2019 | $0 | $160,000 | $8,574 | $8,574 | $8,574 |
| 2018 | $0 | $160,000 | $8,574 | $8,574 | $8,574 |
| 2017 | $0 | $150,000 | $8,574 | $8,574 | $8,574 |
| 2016 | $0 | $150,000 | $8,574 | $8,574 | $8,574 |
| 2015 | $0 | $150,000 | $8,574 | $8,574 | $8,574 |
| 2014 | $0 | $128,733 | $8,574 | $8,574 | $8,574 |
| 2013 | $0 | $128,733 | $8,574 | $8,574 | $8,574 |
| 2012 | $0 | $128,733 | $8,574 | $8,574 | $8,574 |
| 2011 | $0 | $151,450 | $8,574 | $8,574 | $8,574 |
| 2010 | $0 | $151,450 | $8,574 | $8,574 | $8,574 |
| 2009 | $0 | $233,000 | $8,574 | $8,574 | $8,574 |
| 2008 | $0 | $233,000 | $8,574 | $8,574 | $8,574 |
| 2007 | $0 | $116,500 | $8,574 | $8,574 | $8,574 |
Deed and Sales History
| 1 | 02/20/2024 | PRD | Personal Representatives Deed | ANDERSON, VIVIAN | YANG, TROY | | | $120,000.00 | 59247 | 4569596 |
| 2 | 02/01/2011 | | | ANDERSON, DEAN G | ANDERSON, VIVIAN | | | | 81953 | |
Payout Agreement
| 585 | Defaulted | MONTHLY PAYMENT PLAN | | 10/25/2016 11:32:05 AM | Monthly | 24 | $0 |
| 586 | Defaulted | MONTHLY PAYMENT PLAN | | 10/26/2016 10:51:33 AM | Monthly | 24 | $0 |
| 587 | Defaulted | MONTHLY PAYMENT PLAN | | 10/26/2016 11:29:18 AM | Monthly | 24 | $0 |