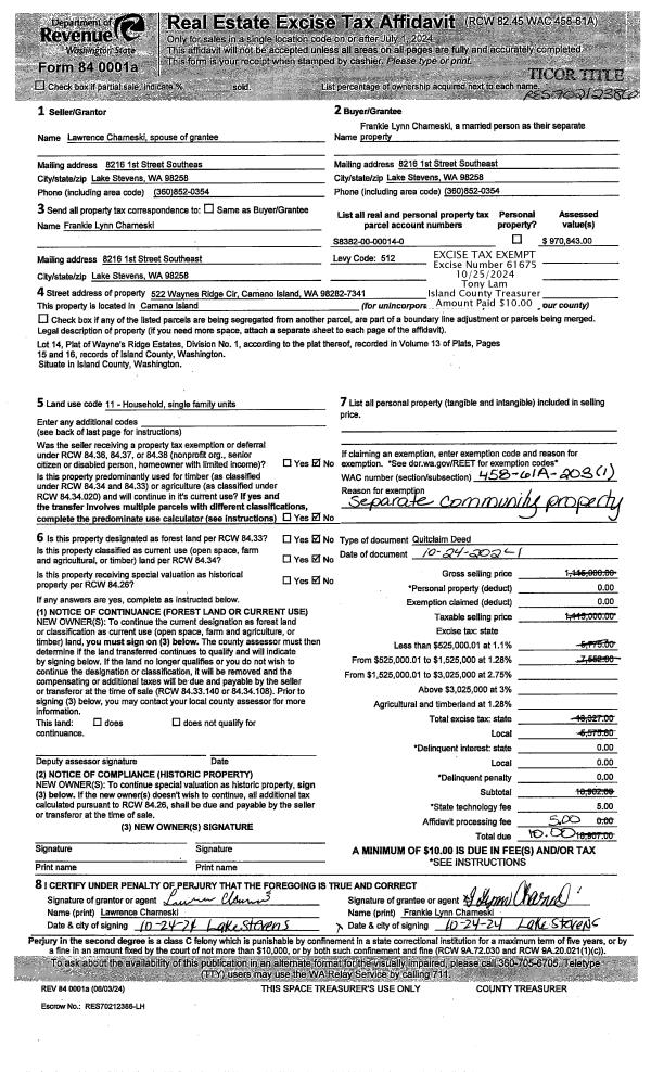
Property
Account |
| Property ID: | 352905 | Abbreviated Legal Description: | PONDILLA EST LOT 1 BLK 3 |
| Geographic ID: | S7760-00-03001-0 | Agent Code: | |
| Type: | Real | | |
| Tax Area: | 330 - APPRAISER-Cpvl Schl Dist, Special Dist, improved & less than 1 acre | Land Use Code | 11 |
| Open Space: | N | DFL | N |
| Historic Property: | N | Remodel Property: | N |
| Multi-Family Redevelopment: | N | | |
| Township: | | Section: | |
| Range: | |
Location |
| Address: | 550 SEASIDE DR COUPEVILLE, WA 98239 | Mapsco: | |
| Neighborhood: | Cycle 2 | Map ID: | 7 |
| Neighborhood CD: | 2 |
Owner |
| Name: | CHARLES PETER COSMOS LIVING TRUST | Owner ID: | 316185 |
| Mailing Address: | 550 SEASIDE DR COUPEVILLE, WA 98239 | % Ownership: | 100.0000000000% |
| | | Exemptions: | |
Taxes and Assessment Details
Values
| (+) Improvement Homesite Value: | + | $0 | |
| (+) Improvement Non-Homesite Value: | + | $349,181 | |
| (+) Land Homesite Value: | + | $0 | |
| (+) Land Non-Homesite Value: | + | $300,000 | |
| (+) Curr Use (HS): | + | $0 | $0 |
| (+) Curr Use (NHS): | + | $0 | $0 |
| | | -------------------------- | |
| (=) Market Value: | = | $649,181 | |
| (–) Productivity Loss: | – | $0 | |
| | | -------------------------- | |
| (=) Subtotal: | = | $649,181 | |
| (+) Senior Appraised Value: | + | $0 | |
| (+) Non-Senior Appraised Value: | + | $649,181 | |
| | | -------------------------- | |
| (=) Total Appraised Value: | = | $649,181 | |
| (–) Senior Exemption Loss: | – | $0 | |
| (–) Exemption Loss: | – | $0 | |
| | | -------------------------- | |
| (=) Taxable Value: | = | $649,181 | |
Taxing Jurisdiction
| Owner: | CHARLES PETER COSMOS LIVING TRUST | | |
| % Ownership: | 100.0000000000% | | |
| Total Value: | $649,181 | | |
| Tax Area: | 330 - APPRAISER-Cpvl Schl Dist, Special Dist, improved & less than 1 acre |
| CF | Conservation Futures | 0.0316035091 | $649,181 | $649,181 | $20.52 | | |
| CEM2 | Cemetery #2 | 0.0095056933 | $649,181 | $649,181 | $6.17 | | |
| FIRE2 | Fire & Rescue Dist #2 N Whidbey GEN | 0.5475949600 | $649,181 | $649,181 | $355.49 | | |
| HOBOND | Hospital BOND | 0.1910887512 | $649,181 | $649,181 | $124.05 | | |
| HOGEN | Hospital GEN | 0.3902502903 | $649,181 | $649,181 | $253.34 | | |
| CE | County Current Expense | 0.3708482477 | $649,181 | $649,181 | $240.75 | | |
| CR | County Roads | 0.4584763726 | $649,181 | $649,181 | $297.63 | | |
| ISLANDEMS | Hospital GEN (EMS) | 0.5000000000 | $649,181 | $649,181 | $324.59 | | |
| LIB | Library Sno-Isle GEN | 0.3153421757 | $649,181 | $649,181 | $204.71 | | |
| LIBCAP | Library Sno-Isle BOND (Cap Fac Imp Area) | 0.0543427938 | $649,181 | $649,181 | $35.28 | | |
| POCOUP | Port of Coupeville GEN | 0.1093371703 | $649,181 | $649,181 | $70.98 | | |
| POCOUPIDD | Port of Coupeville IDD | 0.3409740022 | $649,181 | $649,181 | $221.35 | | |
| COUPSDTECH | School 204 CP (TECH) | 0.7545480007 | $649,181 | $649,181 | $489.84 | | |
| SCH204MO | School 204 Enrichment | 0.6716186034 | $649,181 | $649,181 | $436.00 | | |
| ST | State School | 1.3035497053 | $649,181 | $649,181 | $846.24 | | |
| ST2 | State School Part 2 | 0.8169543533 | $649,181 | $649,181 | $530.35 | | |
| | Total Tax Rate: | 6.8660346289 | | | | | |
| | | | | Taxes w/Current Exemptions: | $4,457.29 | | |
| | | | | Taxes w/o Exemptions: | $4,457.29 | | |
Improvement / Building
| Improvement #1: | RESIDENTIAL | State Code: | Y | 1876.1 sqft | Value: | $349,181 |
| Bathrooms: | 1.5 | Bedrooms: | 2 | | Ceiling: | DRYWALL PAINTED | Cooling: | HEAT PUMP/CONV/V | | Exterior Wall/Cover: | WOOD SIDING | Floor Covering: | CARPET/VINYL 80-20 | | Floor Structure: | WOOD W/SUBFLOOR | Foundation: | CONCRETE | | Interior Finish: | DRYWALL PAINT | Plumbing Fixture Cnt: | 9 | | Roof Slope: | 4" IN 12" | Roof Structure/Cover: | STEEL TERNE |
|
| | Type | Description | Class CD | Sub Class CD | Year Built | Area |
| | BAS | BASE/MAIN FLOOR | 4 | 0 | 1980 | 1876.1 |
| | AGR | ATTACHED GARAGE | 4 | 0 | 1980 | 312.2 |
| | OWP | OPEN WOOD PORCH W/STEPS | 4 | 0 | 1980 | 360.0 |
| | OWR | OPEN WOOD PORCH W/STEPS/ROOF | 4 | 0 | 1980 | 66.0 |
Sketch
Property Image
Land
| 1 | 14 | SQ (08001-12000) | 0.2039 | 8881.88 | 0.00 | 0.00 | 1.00 | $300,000 | $0 |
Roll Value History
| 2026 | N/A | N/A | N/A | N/A | N/A |
| 2025 | $349,181 | $300,000 | $0 | $649,181 | $649,181 |
| 2024 | $354,082 | $300,000 | $0 | $654,082 | $654,082 |
| 2023 | $358,983 | $300,000 | $0 | $658,983 | $658,983 |
| 2022 | $329,498 | $300,000 | $0 | $629,498 | $629,498 |
| 2021 | $290,381 | $280,000 | $0 | $570,381 | $570,381 |
| 2020 | $283,756 | $240,000 | $0 | $523,756 | $523,756 |
| 2019 | $211,873 | $280,000 | $0 | $491,873 | $491,873 |
| 2018 | $169,842 | $250,000 | $0 | $419,842 | $419,842 |
| 2017 | $171,066 | $165,000 | $0 | $336,066 | $336,066 |
| 2016 | $173,546 | $150,000 | $0 | $323,546 | $323,546 |
| 2015 | $176,025 | $150,000 | $0 | $326,025 | $326,025 |
| 2014 | $178,504 | $150,000 | $0 | $328,504 | $328,504 |
| 2013 | $180,983 | $113,220 | $0 | $294,203 | $294,203 |
| 2012 | $183,506 | $113,220 | $0 | $296,726 | $296,726 |
| 2011 | $186,140 | $133,200 | $0 | $319,340 | $319,340 |
| 2010 | $198,160 | $133,200 | $0 | $331,360 | $331,360 |
| 2009 | $207,090 | $153,000 | $0 | $360,090 | $360,090 |
| 2008 | $208,269 | $153,000 | $0 | $361,269 | $361,269 |
| 2007 | $211,210 | $112,000 | $0 | $323,210 | $323,210 |
Deed and Sales History
| 1 | 04/09/2025 | WD | Warranty Deed | COSMOS, CHARLES P | CHARLES PETER COSMOS LIVING TRUST | | | $0.00 | 63207 | 4584806 |
| 2 | 02/01/1986 | WD | Warranty Deed | ELLIOTT, JOAN G | COSMOS, CHARLES P | | | $135,000.00 | 60337 | 86001679 |
| 3 | 09/01/1983 | OTHER | Other - Misc. Documents | DEDRICK, JOAN G | ELLIOTT, JOAN G | | | $0.00 | 60246 | 0 |
| 4 | 05/01/1980 | TRUSTEED | Trustee's Deed | SHEPHERD, C M | DEDRICK, JOAN G | | | $32,500.00 | 1665 | 368820 |
| 5 | 01/01/1900 | OTHER | Other - Misc. Documents | Unknown | SHEPHERD, C M | | | $0.00 | 0 | 0 |
Payout Agreement
| No payout information available.. |