Property
Account |
| Property ID: | 352950 | Abbreviated Legal Description: | PONDILLA EST LOT 6 BLK 3 |
| Geographic ID: | S7760-00-03006-0 | Agent Code: | |
| Type: | Real | | |
| Tax Area: | 330 - APPRAISER-Cpvl Schl Dist, Special Dist, improved & less than 1 acre | Land Use Code | 11 |
| Open Space: | N | DFL | N |
| Historic Property: | N | Remodel Property: | N |
| Multi-Family Redevelopment: | N | | |
| Township: | | Section: | |
| Range: | |
Location |
| Address: | 575 FORT EBEY RD COUPEVILLE, WA 98239 | Mapsco: | |
| Neighborhood: | Cycle 2 | Map ID: | 7 |
| Neighborhood CD: | 2 |
Owner |
| Name: | MCHARNESS TTEE, WILLIAM S | Owner ID: | 301920 |
| Mailing Address: | PATRICIA S MCHARNESS TTEE PO BOX 1261 COUPEVILLE, WA 98239 | % Ownership: | 100.0000000000% |
| | | Exemptions: | |
Taxes and Assessment Details
Values
| (+) Improvement Homesite Value: | + | $0 | |
| (+) Improvement Non-Homesite Value: | + | $313,015 | |
| (+) Land Homesite Value: | + | $0 | |
| (+) Land Non-Homesite Value: | + | $300,000 | |
| (+) Curr Use (HS): | + | $0 | $0 |
| (+) Curr Use (NHS): | + | $0 | $0 |
| | | -------------------------- | |
| (=) Market Value: | = | $613,015 | |
| (–) Productivity Loss: | – | $0 | |
| | | -------------------------- | |
| (=) Subtotal: | = | $613,015 | |
| (+) Senior Appraised Value: | + | $0 | |
| (+) Non-Senior Appraised Value: | + | $613,015 | |
| | | -------------------------- | |
| (=) Total Appraised Value: | = | $613,015 | |
| (–) Senior Exemption Loss: | – | $0 | |
| (–) Exemption Loss: | – | $0 | |
| | | -------------------------- | |
| (=) Taxable Value: | = | $613,015 | |
Taxing Jurisdiction
| Owner: | MCHARNESS TTEE, WILLIAM S | | |
| % Ownership: | 100.0000000000% | | |
| Total Value: | $613,015 | | |
| Tax Area: | 330 - APPRAISER-Cpvl Schl Dist, Special Dist, improved & less than 1 acre |
| CF | Conservation Futures | 0.0316035091 | $613,015 | $613,015 | $19.37 | | |
| CEM2 | Cemetery #2 | 0.0095056933 | $613,015 | $613,015 | $5.83 | | |
| FIRE2 | Fire & Rescue Dist #2 N Whidbey GEN | 0.5475949600 | $613,015 | $613,015 | $335.68 | | |
| HOBOND | Hospital BOND | 0.1910887512 | $613,015 | $613,015 | $117.14 | | |
| HOGEN | Hospital GEN | 0.3902502903 | $613,015 | $613,015 | $239.23 | | |
| CE | County Current Expense | 0.3708482477 | $613,015 | $613,015 | $227.34 | | |
| CR | County Roads | 0.4584763726 | $613,015 | $613,015 | $281.05 | | |
| ISLANDEMS | Hospital GEN (EMS) | 0.5000000000 | $613,015 | $613,015 | $306.51 | | |
| LIB | Library Sno-Isle GEN | 0.3153421757 | $613,015 | $613,015 | $193.31 | | |
| LIBCAP | Library Sno-Isle BOND (Cap Fac Imp Area) | 0.0543427938 | $613,015 | $613,015 | $33.31 | | |
| POCOUP | Port of Coupeville GEN | 0.1093371703 | $613,015 | $613,015 | $67.03 | | |
| POCOUPIDD | Port of Coupeville IDD | 0.3409740022 | $613,015 | $613,015 | $209.02 | | |
| COUPSDTECH | School 204 CP (TECH) | 0.7545480007 | $613,015 | $613,015 | $462.55 | | |
| SCH204MO | School 204 Enrichment | 0.6716186034 | $613,015 | $613,015 | $411.71 | | |
| ST | State School | 1.3035497053 | $613,015 | $613,015 | $799.10 | | |
| ST2 | State School Part 2 | 0.8169543533 | $613,015 | $613,015 | $500.81 | | |
| | Total Tax Rate: | 6.8660346289 | | | | | |
| | | | | Taxes w/Current Exemptions: | $4,208.99 | | |
| | | | | Taxes w/o Exemptions: | $4,208.99 | | |
Improvement / Building
| Improvement #1: | RESIDENTIAL | State Code: | Y | 1820.0 sqft | Value: | $313,015 |
| Bathrooms: | 2 | Bedrooms: | 2 | | Ceiling: | DRY WALL SPRAYED | Cooling: | HEAT PUMP/CONV/V | | Exterior Wall/Cover: | WOOD SIDING | Floor Covering: | HARDWOOD/CARP 20-80 | | Floor Structure: | WOOD W/SUBFLOOR | Foundation: | CONCRETE | | Interior Finish: | DRYWALL PAINT | Plumbing Fixture Cnt: | 12 | | Roof Slope: | 4" IN 12" | Roof Structure/Cover: | CJ ASPHALT |
|
| | Type | Description | Class CD | Sub Class CD | Year Built | Area |
| | BAS | BASE/MAIN FLOOR | 3 | 0 | 1978 | 1820.0 |
| | OP3 | OPEN PORCH W/ROOF | 3 | 0 | 1978 | 24.0 |
| | DGR | DETACHED GARAGE | 3 | 0 | 1978 | 528.0 |
| | OP1 | OPEN PORCH SLAB | 3 | 0 | 1978 | 252.0 |
| | OWP | OPEN WOOD PORCH W/STEPS | 3 | 0 | 1978 | 102.0 |
Sketch
Property Image
Land
| 1 | 14 | SQ (08001-12000) | 0.1819 | 7923.56 | 0.00 | 0.00 | 1.00 | $300,000 | $0 |
Roll Value History
| 2026 | N/A | N/A | N/A | N/A | N/A |
| 2025 | $313,015 | $300,000 | $0 | $613,015 | $613,015 |
| 2024 | $308,854 | $300,000 | $0 | $608,854 | $608,854 |
| 2023 | $313,015 | $300,000 | $0 | $613,015 | $613,015 |
| 2022 | $287,199 | $300,000 | $0 | $587,199 | $587,199 |
| 2021 | $253,018 | $280,000 | $0 | $533,018 | $533,018 |
| 2020 | $246,612 | $220,000 | $0 | $466,612 | $466,612 |
| 2019 | $182,649 | $240,000 | $0 | $422,649 | $422,649 |
| 2018 | $134,564 | $200,000 | $0 | $334,564 | $334,564 |
| 2017 | $135,590 | $165,000 | $0 | $300,590 | $300,590 |
| 2016 | $137,646 | $150,000 | $0 | $287,646 | $287,646 |
| 2015 | $139,699 | $150,000 | $0 | $289,699 | $289,699 |
| 2014 | $141,754 | $150,000 | $0 | $291,754 | $291,754 |
| 2013 | $143,810 | $113,220 | $0 | $257,030 | $257,030 |
| 2012 | $145,994 | $113,220 | $0 | $259,214 | $259,214 |
| 2011 | $148,148 | $133,200 | $0 | $281,348 | $281,348 |
| 2010 | $158,236 | $133,200 | $0 | $291,436 | $291,436 |
| 2009 | $165,214 | $153,000 | $0 | $318,214 | $318,214 |
| 2008 | $167,454 | $153,000 | $0 | $320,454 | $320,454 |
| 2007 | $169,706 | $112,000 | $0 | $281,706 | $281,706 |
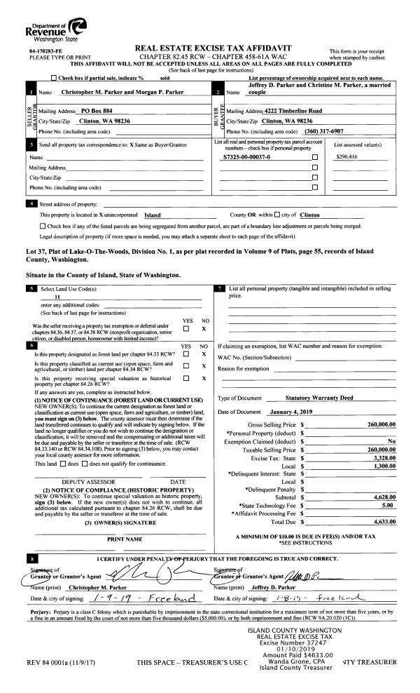
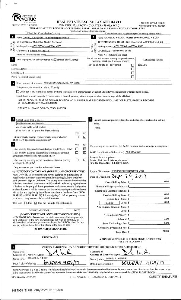
Deed and Sales History
| 1 | 07/30/2021 | WD | Warranty Deed | WILLIAM S MCHARNESS & | MCHARNESS TTEE, WILLIAM S | | | $0.00 | 50837 | 4533592 |
| 2 | 10/12/2018 | WD | Warranty Deed | MCHARNESS, WILLIAM S | WILLIAM S MCHARNESS & | | | $0.00 | 36320 | 4453556 |
| 3 | 08/25/2017 | WD | Warranty Deed | TITTLE, LORAYNE D | MCHARNESS, WILLIAM S | | | $350,000.00 | 31141 | 4430439 |
| 4 | 11/27/1999 | WD | Warranty Deed | JEFFERDS, PETER | TITTLE, LORAYNE D | | | $218,000.00 | 94879 | 99027300 |
| 5 | 06/16/1999 | WD | Warranty Deed | DURNA, GORDON A | JEFFERDS, PETER | | | $183,900.00 | 92397 | 99014592 |
| 6 | 03/01/1982 | TRUSTEED | Trustee's Deed | LARWOOD, WILLIAM W | DURNA, GORDON A | | | $121,500.00 | 20544 | 393861 |
| 7 | 01/01/1900 | OTHER | Other - Misc. Documents | Unknown | LARWOOD, WILLIAM W | | | $0.00 | 0 | 0 |
Payout Agreement
| No payout information available.. |