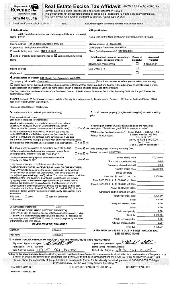
Property
Account |
| Property ID: | 352978 | Abbreviated Legal Description: | PONDILLA EST LOT 8 BLK 3 |
| Geographic ID: | S7760-00-03008-0 | Agent Code: | |
| Type: | Real | | |
| Tax Area: | 330 - APPRAISER-Cpvl Schl Dist, Special Dist, improved & less than 1 acre | Land Use Code | 11 |
| Open Space: | N | DFL | N |
| Historic Property: | N | Remodel Property: | N |
| Multi-Family Redevelopment: | N | | |
| Township: | | Section: | |
| Range: | |
Location |
| Address: | 561 FORT EBEY RD COUPEVILLE, WA 98239 | Mapsco: | |
| Neighborhood: | Cycle 2 | Map ID: | 7 |
| Neighborhood CD: | 2 |
Owner |
| Name: | BECKSTROM, GARY WILLIAM | Owner ID: | 285443 |
| Mailing Address: | MELANIE ALISON BECKSTROM 561 N FORT EBEY RD COUPEVILLE, WA 98239 | % Ownership: | 100.0000000000% |
| | | Exemptions: | |
Taxes and Assessment Details
Values
| (+) Improvement Homesite Value: | + | $0 | |
| (+) Improvement Non-Homesite Value: | + | $474,910 | |
| (+) Land Homesite Value: | + | $0 | |
| (+) Land Non-Homesite Value: | + | $300,000 | |
| (+) Curr Use (HS): | + | $0 | $0 |
| (+) Curr Use (NHS): | + | $0 | $0 |
| | | -------------------------- | |
| (=) Market Value: | = | $774,910 | |
| (–) Productivity Loss: | – | $0 | |
| | | -------------------------- | |
| (=) Subtotal: | = | $774,910 | |
| (+) Senior Appraised Value: | + | $0 | |
| (+) Non-Senior Appraised Value: | + | $774,910 | |
| | | -------------------------- | |
| (=) Total Appraised Value: | = | $774,910 | |
| (–) Senior Exemption Loss: | – | $0 | |
| (–) Exemption Loss: | – | $0 | |
| | | -------------------------- | |
| (=) Taxable Value: | = | $774,910 | |
Taxing Jurisdiction
| Owner: | BECKSTROM, GARY WILLIAM | | |
| % Ownership: | 100.0000000000% | | |
| Total Value: | $774,910 | | |
| Tax Area: | 330 - APPRAISER-Cpvl Schl Dist, Special Dist, improved & less than 1 acre |
| CF | Conservation Futures | 0.0316035091 | $774,910 | $774,910 | $24.49 | | |
| CEM2 | Cemetery #2 | 0.0095056933 | $774,910 | $774,910 | $7.37 | | |
| FIRE2 | Fire & Rescue Dist #2 N Whidbey GEN | 0.5475949600 | $774,910 | $774,910 | $424.34 | | |
| HOBOND | Hospital BOND | 0.1910887512 | $774,910 | $774,910 | $148.08 | | |
| HOGEN | Hospital GEN | 0.3902502903 | $774,910 | $774,910 | $302.41 | | |
| CE | County Current Expense | 0.3708482477 | $774,910 | $774,910 | $287.37 | | |
| CR | County Roads | 0.4584763726 | $774,910 | $774,910 | $355.28 | | |
| ISLANDEMS | Hospital GEN (EMS) | 0.5000000000 | $774,910 | $774,910 | $387.46 | | |
| LIB | Library Sno-Isle GEN | 0.3153421757 | $774,910 | $774,910 | $244.36 | | |
| LIBCAP | Library Sno-Isle BOND (Cap Fac Imp Area) | 0.0543427938 | $774,910 | $774,910 | $42.11 | | |
| POCOUP | Port of Coupeville GEN | 0.1093371703 | $774,910 | $774,910 | $84.73 | | |
| POCOUPIDD | Port of Coupeville IDD | 0.3409740022 | $774,910 | $774,910 | $264.22 | | |
| COUPSDTECH | School 204 CP (TECH) | 0.7545480007 | $774,910 | $774,910 | $584.71 | | |
| SCH204MO | School 204 Enrichment | 0.6716186034 | $774,910 | $774,910 | $520.44 | | |
| ST | State School | 1.3035497053 | $774,910 | $774,910 | $1,010.13 | | |
| ST2 | State School Part 2 | 0.8169543533 | $774,910 | $774,910 | $633.07 | | |
| | Total Tax Rate: | 6.8660346289 | | | | | |
| | | | | Taxes w/Current Exemptions: | $5,320.57 | | |
| | | | | Taxes w/o Exemptions: | $5,320.57 | | |
Improvement / Building
| Improvement #1: | RESIDENTIAL | State Code: | Y | 1945.7 sqft | Value: | $474,910 |
| Bathrooms: | 3 | Bedrooms: | 3 | | Ceiling: | DRYWALL PAINTED | Exterior Wall/Cover: | PLY/HARDBOARD T-111 | | Floor Covering: | HARDWOOD/CARP 60-40 | Floor Structure: | WOOD W/SUBFLOOR | | Foundation: | CONCRETE | Heating: | FHA GAS | | Interior Finish: | DRYWALL PAINT | Plumbing Fixture Cnt: | 11 | | Roof Slope: | 6" IN 12" | Roof Structure/Cover: | CJ ASPHALT |
|
| | Type | Description | Class CD | Sub Class CD | Year Built | Area |
| | BAS | BASE/MAIN FLOOR | 4 | 0 | 1995 | 1307.2 |
| | BIG | BUILT IN GARAGE | 4 | 0 | 1995 | 567.0 |
| | OWP | OPEN WOOD PORCH W/STEPS | 4 | 0 | 1995 | 376.8 |
| | OWP | OPEN WOOD PORCH W/STEPS | 4 | 0 | 1995 | 108.6 |
| | DWN | DOWNSTAIRS LIVING AREA | 4 | 0 | 1995 | 638.5 |
Sketch
Property Image
Land
| 1 | 13 | SQ (06001-08000) | 0.2016 | 8781.70 | 0.00 | 0.00 | 1.00 | $300,000 | $0 |
Roll Value History
| 2026 | N/A | N/A | N/A | N/A | N/A |
| 2025 | $474,910 | $300,000 | $0 | $774,910 | $774,910 |
| 2024 | $455,914 | $300,000 | $0 | $755,914 | $755,914 |
| 2023 | $463,245 | $300,000 | $0 | $763,245 | $763,245 |
| 2022 | $422,696 | $300,000 | $0 | $722,696 | $722,696 |
| 2021 | $370,584 | $280,000 | $0 | $650,584 | $650,584 |
| 2020 | $359,755 | $220,000 | $0 | $579,755 | $579,755 |
| 2019 | $272,486 | $240,000 | $0 | $512,486 | $512,486 |
| 2018 | $261,759 | $200,000 | $0 | $461,759 | $461,759 |
| 2017 | $263,188 | $165,000 | $0 | $428,188 | $428,188 |
| 2016 | $188,319 | $150,000 | $0 | $338,319 | $338,319 |
| 2015 | $190,535 | $150,000 | $0 | $340,535 | $340,535 |
| 2014 | $192,750 | $150,000 | $0 | $342,750 | $342,750 |
| 2013 | $194,965 | $113,220 | $0 | $308,185 | $308,185 |
| 2012 | $199,544 | $113,220 | $0 | $312,764 | $312,764 |
| 2011 | $201,833 | $133,200 | $0 | $335,033 | $335,033 |
| 2010 | $212,808 | $133,200 | $0 | $346,008 | $346,008 |
| 2009 | $221,986 | $153,000 | $0 | $374,986 | $374,986 |
| 2008 | $224,746 | $153,000 | $0 | $377,746 | $377,746 |
| 2007 | $225,160 | $112,000 | $0 | $337,160 | $337,160 |
Deed and Sales History
| 1 | 06/08/2018 | WD | Warranty Deed | DONAHUE, KELLIE | BECKSTROM, GARY WILLIAM | | | $475,000.00 | 34530 | 4446186 |
| 2 | 05/25/2016 | WD | Warranty Deed | DE LEEUWE, MARC | DONAHUE, KELLIE | | | $454,000.00 | 24877 | 4401664 |
| 3 | 10/24/2006 | WD | Warranty Deed | MILNES, PETER A | DE LEEUWE, MARC | | | $374,461.00 | 64729 | 4186043 |
| 4 | 04/23/2004 | WD | Warranty Deed | DURSO, HALINA | MILNES, PETER A | | | $283,110.00 | 41819 | 4099235 |
| 5 | 08/18/2000 | WD | Warranty Deed | HELGERSON, KURT A | DURSO, HALINA | | | $205,000.00 | 3172 | 20014864 |
| 6 | 09/01/1995 | WD | Warranty Deed | KELLY, CHRIS E | HELGERSON, KURT A | | | $158,000.00 | 53377 | 95015596 |
| 7 | 04/01/1995 | WD | Warranty Deed | FOTTRELL, JOHN F | KELLY, CHRIS E | | | $32,000.00 | 51264 | 95005946 |
| 8 | 06/01/1981 | REC | Real Estate Contract | SHEPHERD, C M | FOTTRELL, JOHN F | | | $17,857.00 | 11887 | 384512 |
| 9 | 01/01/1900 | OTHER | Other - Misc. Documents | Unknown | SHEPHERD, C M | | | $0.00 | 0 | 0 |
Payout Agreement
| No payout information available.. |