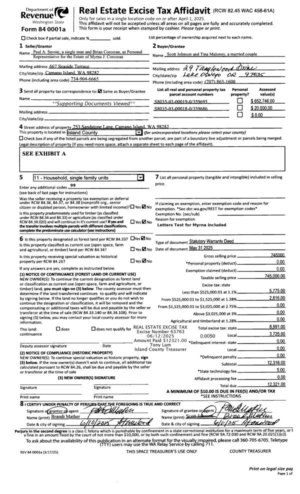
Property
Account |
| Property ID: | 352987 | Abbreviated Legal Description: | PONDILLA EST LOT 9 BLK 3 |
| Geographic ID: | S7760-00-03009-0 | Agent Code: | |
| Type: | Real | | |
| Tax Area: | 330 - APPRAISER-Cpvl Schl Dist, Special Dist, improved & less than 1 acre | Land Use Code | 11 |
| Open Space: | N | DFL | N |
| Historic Property: | N | Remodel Property: | N |
| Multi-Family Redevelopment: | N | | |
| Township: | | Section: | |
| Range: | |
Location |
| Address: | 557 FORT EBEY RD COUPEVILLE, WA 98239 | Mapsco: | |
| Neighborhood: | Cycle 2 | Map ID: | 7 |
| Neighborhood CD: | 2 |
Owner |
| Name: | EPP, JESSE | Owner ID: | 284108 |
| Mailing Address: | AMY EPP 557 FORT EBEY RD COUPEVILLE, WA 98239 | % Ownership: | 100.0000000000% |
| | | Exemptions: | |
Taxes and Assessment Details
Values
| (+) Improvement Homesite Value: | + | $0 | |
| (+) Improvement Non-Homesite Value: | + | $565,655 | |
| (+) Land Homesite Value: | + | $0 | |
| (+) Land Non-Homesite Value: | + | $280,000 | |
| (+) Curr Use (HS): | + | $0 | $0 |
| (+) Curr Use (NHS): | + | $0 | $0 |
| | | -------------------------- | |
| (=) Market Value: | = | $845,655 | |
| (–) Productivity Loss: | – | $0 | |
| | | -------------------------- | |
| (=) Subtotal: | = | $845,655 | |
| (+) Senior Appraised Value: | + | $0 | |
| (+) Non-Senior Appraised Value: | + | $845,655 | |
| | | -------------------------- | |
| (=) Total Appraised Value: | = | $845,655 | |
| (–) Senior Exemption Loss: | – | $0 | |
| (–) Exemption Loss: | – | $0 | |
| | | -------------------------- | |
| (=) Taxable Value: | = | $845,655 | |
Taxing Jurisdiction
| Owner: | EPP, JESSE | | |
| % Ownership: | 100.0000000000% | | |
| Total Value: | $845,655 | | |
| Tax Area: | 330 - APPRAISER-Cpvl Schl Dist, Special Dist, improved & less than 1 acre |
| CF | Conservation Futures | 0.0316035091 | $845,655 | $845,655 | $26.73 | | |
| CEM2 | Cemetery #2 | 0.0095056933 | $845,655 | $845,655 | $8.04 | | |
| FIRE2 | Fire & Rescue Dist #2 N Whidbey GEN | 0.5475949600 | $845,655 | $845,655 | $463.08 | | |
| HOBOND | Hospital BOND | 0.1910887512 | $845,655 | $845,655 | $161.60 | | |
| HOGEN | Hospital GEN | 0.3902502903 | $845,655 | $845,655 | $330.02 | | |
| CE | County Current Expense | 0.3708482477 | $845,655 | $845,655 | $313.61 | | |
| CR | County Roads | 0.4584763726 | $845,655 | $845,655 | $387.71 | | |
| ISLANDEMS | Hospital GEN (EMS) | 0.5000000000 | $845,655 | $845,655 | $422.83 | | |
| LIB | Library Sno-Isle GEN | 0.3153421757 | $845,655 | $845,655 | $266.67 | | |
| LIBCAP | Library Sno-Isle BOND (Cap Fac Imp Area) | 0.0543427938 | $845,655 | $845,655 | $45.96 | | |
| POCOUP | Port of Coupeville GEN | 0.1093371703 | $845,655 | $845,655 | $92.46 | | |
| POCOUPIDD | Port of Coupeville IDD | 0.3409740022 | $845,655 | $845,655 | $288.35 | | |
| COUPSDTECH | School 204 CP (TECH) | 0.7545480007 | $845,655 | $845,655 | $638.09 | | |
| SCH204MO | School 204 Enrichment | 0.6716186034 | $845,655 | $845,655 | $567.96 | | |
| ST | State School | 1.3035497053 | $845,655 | $845,655 | $1,102.35 | | |
| ST2 | State School Part 2 | 0.8169543533 | $845,655 | $845,655 | $690.86 | | |
| | Total Tax Rate: | 6.8660346289 | | | | | |
| | | | | Taxes w/Current Exemptions: | $5,806.32 | | |
| | | | | Taxes w/o Exemptions: | $5,806.32 | | |
Improvement / Building
| Improvement #1: | RESIDENTIAL | State Code: | Y | 3346.5 sqft | Value: | $565,655 |
| Bathrooms: | 3.5 | Bedrooms: | 3 | | Ceiling: | DRYWALL PAINTED | Cooling: | HEAT PUMP/CONV/V | | Exterior Wall/Cover: | CEMENT FIBER | Floor Covering: | CARPET/VINYL 60-40 | | Floor Structure: | WOOD W/SUBFLOOR | Foundation: | CONCRETE | | Interior Finish: | DRYWALL PAINT | Plumbing Fixture Cnt: | 16 | | Roof Slope: | 4" IN 12" | Roof Structure/Cover: | CJ ASPHALT |
|
| | Type | Description | Class CD | Sub Class CD | Year Built | Area |
| | BAS | BASE/MAIN FLOOR | 4 | 0 | 2016 | 1789.5 |
| | UPS | UPPER STORY | 4 | 0 | 2016 | 1235.0 |
| | AGR | ATTACHED GARAGE | 4 | 0 | 2016 | 665.0 |
| | LOF | LOFT | 4 | 0 | 2016 | 322.0 |
Sketch
Property Image
Land
| 1 | 14 | SQ (08001-12000) | 0.2138 | 9313.13 | 0.00 | 0.00 | 1.00 | $280,000 | $0 |
Roll Value History
| 2026 | N/A | N/A | N/A | N/A | N/A |
| 2025 | $565,655 | $280,000 | $0 | $845,655 | $845,655 |
| 2024 | $543,385 | $280,000 | $0 | $823,385 | $823,385 |
| 2023 | $547,838 | $280,000 | $0 | $827,838 | $827,838 |
| 2022 | $500,111 | $280,000 | $0 | $780,111 | $780,111 |
| 2021 | $438,410 | $260,000 | $0 | $698,410 | $698,410 |
| 2020 | $425,923 | $220,000 | $0 | $645,923 | $645,923 |
| 2019 | $341,502 | $240,000 | $0 | $581,502 | $581,502 |
| 2018 | $342,379 | $200,000 | $0 | $542,379 | $542,379 |
| 2017 | $344,136 | $165,000 | $0 | $509,136 | $509,136 |
| 2016 | $0 | $40,000 | $0 | $40,000 | $40,000 |
| 2015 | $0 | $40,000 | $0 | $40,000 | $40,000 |
| 2014 | $0 | $36,000 | $0 | $36,000 | $36,000 |
| 2013 | $0 | $36,000 | $0 | $36,000 | $36,000 |
| 2012 | $0 | $36,000 | $0 | $36,000 | $36,000 |
| 2011 | $0 | $36,000 | $0 | $36,000 | $36,000 |
| 2010 | $0 | $36,000 | $0 | $36,000 | $36,000 |
| 2009 | $0 | $36,000 | $0 | $36,000 | $36,000 |
| 2008 | $0 | $36,000 | $0 | $36,000 | $36,000 |
| 2007 | $0 | $35,000 | $0 | $35,000 | $35,000 |
Deed and Sales History
| 1 | 03/01/2018 | WD | Warranty Deed | CHASE, ANDREW B | EPP, JESSE | | | $540,000.00 | 33145 | 4440133 |
| 2 | 10/14/2015 | WD | Warranty Deed | FOTTRELL, JOHN F | CHASE, ANDREW B | | | $30,000.00 | 21801 | 4387903 |
| 3 | 06/01/1981 | REC | Real Estate Contract | SHEPHERD, C M | FOTTRELL, JOHN F | | | $17,143.00 | 11887 | 384512 |
| 4 | 01/01/1900 | OTHER | Other - Misc. Documents | Unknown | SHEPHERD, C M | | | $0.00 | 0 | 0 |
Payout Agreement
| No payout information available.. |