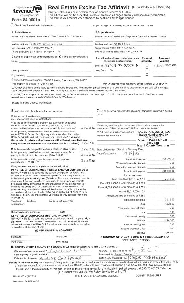
Property
Account |
| Property ID: | 3533 | Abbreviated Legal Description: | 2 - IN GL5: BG SECR NW NE N680' M/L TO RD S78*W1845' S30*W373.5' M/L TO SLN GL5 E1810' M/L TPB EX: BG SECR NW NE W1650' N315' M/L TO SLN ST HWY ELY ALG RD TO ELN NW NE S TPB |
| Geographic ID: | R13103-410-2190 | Agent Code: | |
| Type: | Real | | |
| Tax Area: | 312 - APPRAISER-Cpvl Schl Dist, outside Cpvl, improved, greater than 1 acre | Land Use Code | 11 |
| Open Space: | N | DFL | N |
| Historic Property: | N | Remodel Property: | N |
| Multi-Family Redevelopment: | N | | |
| Township: | 31 | Section: | 03 |
| Range: | R1 |
Location |
| Address: | 1045 HENRY LOOP COUPEVILLE, WA 98239 | Mapsco: | |
| Neighborhood: | Cycle 2 | Map ID: | 27 |
| Neighborhood CD: | 2 |
Owner |
| Name: | LEWIS, A WAYNE | Owner ID: | 260327 |
| Mailing Address: | MICHELE LEWIS 1045 HENRY LOOP COUPEVILLE, WA 98239 | % Ownership: | 100.0000000000% |
| | | Exemptions: | |
Taxes and Assessment Details
Values
| (+) Improvement Homesite Value: | + | $0 | |
| (+) Improvement Non-Homesite Value: | + | $328,741 | |
| (+) Land Homesite Value: | + | $0 | |
| (+) Land Non-Homesite Value: | + | $289,000 | |
| (+) Curr Use (HS): | + | $0 | $0 |
| (+) Curr Use (NHS): | + | $0 | $0 |
| | | -------------------------- | |
| (=) Market Value: | = | $617,741 | |
| (–) Productivity Loss: | – | $0 | |
| | | -------------------------- | |
| (=) Subtotal: | = | $617,741 | |
| (+) Senior Appraised Value: | + | $0 | |
| (+) Non-Senior Appraised Value: | + | $617,741 | |
| | | -------------------------- | |
| (=) Total Appraised Value: | = | $617,741 | |
| (–) Senior Exemption Loss: | – | $0 | |
| (–) Exemption Loss: | – | $0 | |
| | | -------------------------- | |
| (=) Taxable Value: | = | $617,741 | |
Taxing Jurisdiction
| Owner: | LEWIS, A WAYNE | | |
| % Ownership: | 100.0000000000% | | |
| Total Value: | $617,741 | | |
| Tax Area: | 312 - APPRAISER-Cpvl Schl Dist, outside Cpvl, improved, greater than 1 acre |
| CF | Conservation Futures | 0.0316035091 | $617,741 | $617,741 | $19.52 | | |
| CEM2 | Cemetery #2 | 0.0095056933 | $617,741 | $617,741 | $5.87 | | |
| FIRE5 | Fire & Rescue Dist #5 C Whidbey GEN | 1.2008080668 | $617,741 | $617,741 | $741.79 | | |
| FIRE5BOND | Fire & Rescue Dist #5 C Whidbey BOND | 0.1400090713 | $617,741 | $617,741 | $86.49 | | |
| HOBOND | Hospital BOND | 0.1910887512 | $617,741 | $617,741 | $118.04 | | |
| HOGEN | Hospital GEN | 0.3902502903 | $617,741 | $617,741 | $241.07 | | |
| CE | County Current Expense | 0.3708482477 | $617,741 | $617,741 | $229.09 | | |
| CR | County Roads | 0.4584763726 | $617,741 | $617,741 | $283.22 | | |
| ISLANDEMS | Hospital GEN (EMS) | 0.5000000000 | $617,741 | $617,741 | $308.87 | | |
| LIB | Library Sno-Isle GEN | 0.3153421757 | $617,741 | $617,741 | $194.80 | | |
| LIBCAP | Library Sno-Isle BOND (Cap Fac Imp Area) | 0.0543427938 | $617,741 | $617,741 | $33.57 | | |
| POCOUP | Port of Coupeville GEN | 0.1093371703 | $617,741 | $617,741 | $67.54 | | |
| POCOUPIDD | Port of Coupeville IDD | 0.3409740022 | $617,741 | $617,741 | $210.63 | | |
| COUPSDTECH | School 204 CP (TECH) | 0.7545480007 | $617,741 | $617,741 | $466.12 | | |
| SCH204MO | School 204 Enrichment | 0.6716186034 | $617,741 | $617,741 | $414.89 | | |
| ST | State School | 1.3035497053 | $617,741 | $617,741 | $805.26 | | |
| ST2 | State School Part 2 | 0.8169543533 | $617,741 | $617,741 | $504.67 | | |
| | Total Tax Rate: | 7.6592568070 | | | | | |
| | | | | Taxes w/Current Exemptions: | $4,731.44 | | |
| | | | | Taxes w/o Exemptions: | $4,731.44 | | |
Improvement / Building
| Improvement #1: | RESIDENTIAL | State Code: | Y | 1688.0 sqft | Value: | $328,741 |
| Bathrooms: | 2 | Bedrooms: | 3 | | Ceiling: | DRYWALL PAINTED | Exterior Wall/Cover: | WOOD SIDING | | Floor Covering: | CARPET/VINYL 80-20 | Floor Structure: | WOOD W/SUBFLOOR | | Foundation: | CONCRETE BLOCKS | Heating: | FHA OIL | | Interior Finish: | DRYWALL PAINT | Plumbing Fixture Cnt: | 9 | | Roof Slope: | 6" IN 12" | Roof Structure/Cover: | CJ ASPHALT |
|
| | Type | Description | Class CD | Sub Class CD | Year Built | Area |
| | BAS | BASE/MAIN FLOOR | 3 | 0 | 1920 | 1688.0 |
| | UB6 | BASEMENT UNFINISHED 6" | 3 | 0 | 1920 | 480.0 |
| | OP2 | OPEN PORCH W/STEPS | 3 | 0 | 1920 | 56.0 |
| | UTY | STORAGE/UTILITY | 3 | 0 | 1920 | 432.0 |
| | ENP | ENCLOSED PORCH | 3 | 0 | 1920 | 160.0 |
| | UTY | STORAGE/UTILITY | 3 | 0 | 1920 | 1280.0 |
| | OWP | OPEN WOOD PORCH W/STEPS | 3 | 0 | 1920 | 80.0 |
Sketch
Property Image
Land
| 1 | HS | HOMESITE | 1.0000 | 43560.00 | 0.00 | 0.00 | 1.00 | $270,000 | $0 |
| 2 | 91 | UNDEVELOPED LAND-METES AND BOUNDS | 0.9500 | 41382.00 | 0.00 | 0.00 | 1.00 | $19,000 | $0 |
Roll Value History
| 2026 | N/A | N/A | N/A | N/A | N/A |
| 2025 | $328,741 | $289,000 | $0 | $617,741 | $617,741 |
| 2024 | $319,884 | $280,000 | $0 | $599,884 | $599,884 |
| 2023 | $324,313 | $290,000 | $0 | $614,313 | $614,313 |
| 2022 | $297,670 | $280,000 | $0 | $577,670 | $577,670 |
| 2021 | $262,345 | $180,000 | $0 | $442,345 | $442,345 |
| 2020 | $256,144 | $170,000 | $0 | $426,144 | $426,144 |
| 2019 | $188,538 | $210,000 | $0 | $398,538 | $398,538 |
| 2018 | $121,342 | $190,000 | $0 | $311,342 | $311,342 |
| 2017 | $122,259 | $180,000 | $0 | $302,259 | $302,259 |
| 2016 | $124,093 | $140,000 | $0 | $264,093 | $264,093 |
| 2015 | $125,924 | $114,750 | $0 | $240,674 | $240,674 |
| 2014 | $127,758 | $114,750 | $0 | $242,508 | $242,508 |
| 2013 | $129,589 | $114,750 | $0 | $244,339 | $244,339 |
| 2012 | $76,557 | $114,750 | $0 | $191,307 | $191,307 |
| 2011 | $78,393 | $135,000 | $0 | $213,393 | $213,393 |
| 2010 | $92,686 | $135,000 | $0 | $227,686 | $227,686 |
| 2009 | $97,095 | $150,000 | $0 | $247,095 | $247,095 |
| 2008 | $99,161 | $124,000 | $0 | $223,161 | $223,161 |
| 2007 | $101,447 | $124,000 | $0 | $225,447 | $225,447 |
Deed and Sales History
| 1 | 12/17/2012 | CCOMPROP | Create Community Property | LEWIS, A WAYNE | LEWIS, A WAYNE | | | $0.00 | 9853 | 4329716 |
| 2 | 01/13/2007 | OTHER | Other - Misc. Documents | LEWIS, A WAYNE | LEWIS, A WAYNE | | | $0.00 | 81338 | 0 |
| 3 | 06/23/1998 | WD | Warranty Deed | LINGO, CHARLES A | LEWIS, A WAYNE | | | $130,000.00 | 82577 | 98013346 |
| 4 | 09/01/1992 | WD | Warranty Deed | JONES, VIVIAN R | LINGO, CHARLES A | | | $100,000.00 | 23766 | 92018224 |
| 5 | 02/01/1992 | OTHER | Other - Misc. Documents | JONES, ROBERT L | JONES, VIVIAN R | | | $0.00 | 64690 | 92002572 |
| 6 | 12/01/1988 | WD | Warranty Deed | SMITH, BRUCE T | JONES, ROBERT L | | | $70,000.00 | 84170 | 88015593 |
| 7 | 09/01/1978 | OTHER | Other - Misc. Documents | LEWIS, A W | SMITH, BRUCE T | | | $57,500.00 | 84599 | 339942 |
| 8 | 01/01/1900 | OTHER | Other - Misc. Documents | Unknown | LEWIS, A W | | | $0.00 | 82577 | 98013346 |
Payout Agreement
| No payout information available.. |