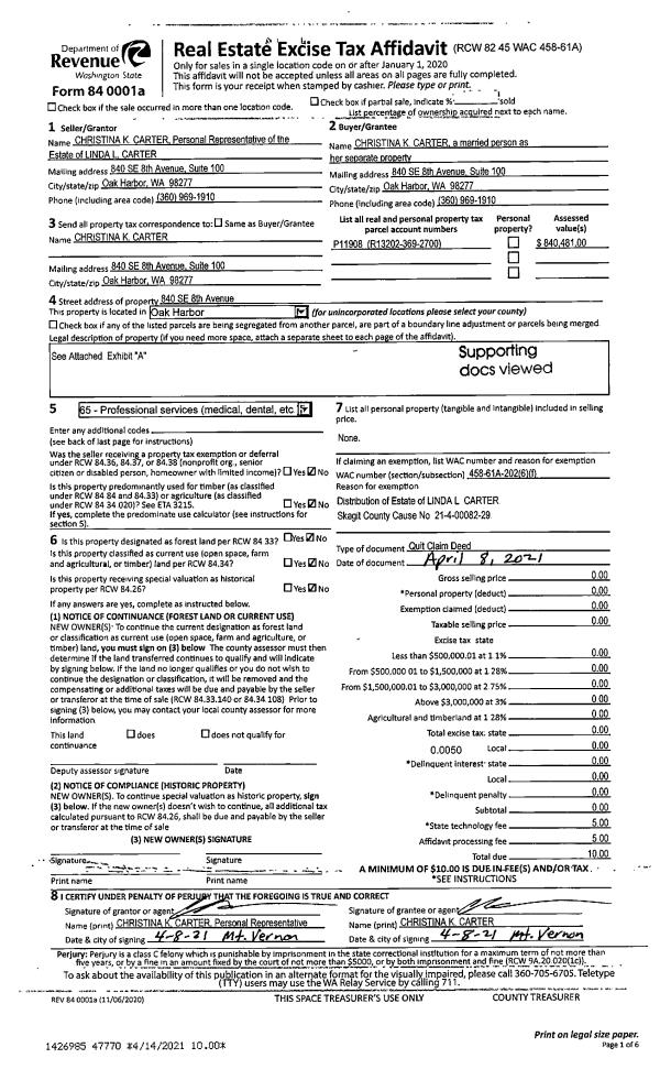
Property
Account |
| Property ID: | 353655 | Abbreviated Legal Description: | POSS SHORES LOTS 7 & 18 BLK 2 |
| Geographic ID: | S7770-00-02007-0 | Agent Code: | |
| Type: | Real | | |
| Tax Area: | 710 - APPRAISER-S Whid Schl Dist, outside Langley, improved & 1 acre or less | Land Use Code | 11 |
| Open Space: | N | DFL | N |
| Historic Property: | N | Remodel Property: | N |
| Multi-Family Redevelopment: | N | | |
| Township: | | Section: | |
| Range: | |
Location |
| Address: | 8323 SUNSET VISTA LN CLINTON, WA 98236 | Mapsco: | |
| Neighborhood: | Cycle 4 | Map ID: | 708 |
| Neighborhood CD: | 4 |
Owner |
| Name: | BASS TRUSTEE, JERALD ERNEST | Owner ID: | 271901 |
| Mailing Address: | JEAN YVONNE BASS TRUSTEE 8323 SUNSET VISTA LN CLINTON, WA 98236-8925 | % Ownership: | 100.0000000000% |
| | | Exemptions: | |
Taxes and Assessment Details
Values
| (+) Improvement Homesite Value: | + | $0 | |
| (+) Improvement Non-Homesite Value: | + | $510,022 | |
| (+) Land Homesite Value: | + | $0 | |
| (+) Land Non-Homesite Value: | + | $410,000 | |
| (+) Curr Use (HS): | + | $0 | $0 |
| (+) Curr Use (NHS): | + | $0 | $0 |
| | | -------------------------- | |
| (=) Market Value: | = | $920,022 | |
| (–) Productivity Loss: | – | $0 | |
| | | -------------------------- | |
| (=) Subtotal: | = | $920,022 | |
| (+) Senior Appraised Value: | + | $0 | |
| (+) Non-Senior Appraised Value: | + | $920,022 | |
| | | -------------------------- | |
| (=) Total Appraised Value: | = | $920,022 | |
| (–) Senior Exemption Loss: | – | $0 | |
| (–) Exemption Loss: | – | $0 | |
| | | -------------------------- | |
| (=) Taxable Value: | = | $920,022 | |
Taxing Jurisdiction
| Owner: | BASS TRUSTEE, JERALD ERNEST | | |
| % Ownership: | 100.0000000000% | | |
| Total Value: | $920,022 | | |
| Tax Area: | 710 - APPRAISER-S Whid Schl Dist, outside Langley, improved & 1 acre or less |
| CF | Conservation Futures | 0.0316035091 | $920,022 | $920,022 | $29.08 | | |
| FIRE3 | Fire & Rescue Dist #3 S Whidbey GEN | 1.2004855531 | $920,022 | $920,022 | $1,104.47 | | |
| HOBOND | Hospital BOND | 0.1910887512 | $920,022 | $920,022 | $175.81 | | |
| HOGEN | Hospital GEN | 0.3902502903 | $920,022 | $920,022 | $359.04 | | |
| CE | County Current Expense | 0.3708482477 | $920,022 | $920,022 | $341.19 | | |
| CR | County Roads | 0.4584763726 | $920,022 | $920,022 | $421.81 | | |
| ISLANDEMS | Hospital GEN (EMS) | 0.5000000000 | $920,022 | $920,022 | $460.01 | | |
| LIB | Library Sno-Isle GEN | 0.3153421757 | $920,022 | $920,022 | $290.12 | | |
| PORTWHID | Port of S Whidbey GEN | 0.1094540357 | $920,022 | $920,022 | $100.70 | | |
| SCH206BOND | School 206 BOND | 0.3161759235 | $920,022 | $920,022 | $290.89 | | |
| SCH206MO | School 206 Enrichment | 0.4547169547 | $920,022 | $920,022 | $418.35 | | |
| ST | State School | 1.3035497053 | $920,022 | $920,022 | $1,199.29 | | |
| ST2 | State School Part 2 | 0.8169543533 | $920,022 | $920,022 | $751.62 | | |
| SWHIDPRBD | P & R S Whidbey BOND | 0.0152817568 | $920,022 | $920,022 | $14.06 | | |
| SWHIDPRBD2 | P & R S Whidbey BOND2 | 0.0138911264 | $920,022 | $920,022 | $12.78 | | |
| SWHIDPRMT | P & R S Whidbey GEN | 0.2053334452 | $920,022 | $920,022 | $188.91 | | |
| | Total Tax Rate: | 6.6934522006 | | | | | |
| | | | | Taxes w/Current Exemptions: | $6,158.13 | | |
| | | | | Taxes w/o Exemptions: | $6,158.13 | | |
Improvement / Building
| Improvement #1: | RESIDENTIAL | State Code: | Y | 2829.6 sqft | Value: | $510,022 |
| Bathrooms: | 2.5 | Bedrooms: | 3 | | Ceiling: | DRY WALL SPRAYED | Cooling: | HEAT PUMP/CONV/V | | Exterior Wall/Cover: | CEMENT FIBER | Floor Covering: | HARDWOOD/CARP 60-40 | | Floor Structure: | SLAB ON GRADE | Foundation: | SLAB | | Interior Finish: | DRYWALL PAINT | Plumbing Fixture Cnt: | 13 | | Roof Slope: | 5" IN 12" | Roof Structure/Cover: | CJ ALUMINIUM HEAVY |
|
| | Type | Description | Class CD | Sub Class CD | Year Built | Area |
| | BAS | BASE/MAIN FLOOR | 4 | 0 | 2017 | 1633.0 |
| | AGR | ATTACHED GARAGE | 4 | 0 | 2017 | 373.2 |
| | DWN | DOWNSTAIRS LIVING AREA | 4 | 0 | 2017 | 1196.6 |
| | OWC | OPEN WOOD PORCH W/STEPS/ROOF/C | 4 | 0 | 2017 | 391.8 |
| | OP4 | OPEN PORCH W/CEILING-ROOF | 4 | 0 | 2017 | 391.8 |
Sketch
| No sketches available for this property. |
Property Image
Land
| 1 | 15 | SQ (12001-21780) | 0.3600 | 15681.60 | 0.00 | 0.00 | 1.00 | $410,000 | $0 |
Roll Value History
| 2026 | N/A | N/A | N/A | N/A | N/A |
| 2025 | $510,022 | $410,000 | $0 | $920,022 | $920,022 |
| 2024 | $519,277 | $400,000 | $0 | $919,277 | $919,277 |
| 2023 | $523,498 | $380,000 | $0 | $903,498 | $903,498 |
| 2022 | $477,859 | $360,000 | $0 | $837,859 | $837,859 |
| 2021 | $418,844 | $320,000 | $0 | $738,844 | $738,844 |
| 2020 | $267,059 | $260,000 | $0 | $527,059 | $527,059 |
| 2019 | $212,406 | $300,000 | $0 | $512,406 | $512,406 |
| 2018 | $212,946 | $240,000 | $0 | $452,946 | $452,946 |
| 2017 | $113,967 | $230,000 | $0 | $343,967 | $343,967 |
| 2016 | $0 | $125,000 | $0 | $125,000 | $125,000 |
| 2015 | $0 | $125,000 | $0 | $125,000 | $125,000 |
| 2014 | $0 | $112,000 | $0 | $112,000 | $112,000 |
| 2013 | $0 | $112,000 | $0 | $112,000 | $112,000 |
| 2012 | $0 | $112,000 | $0 | $112,000 | $112,000 |
| 2011 | $0 | $60,000 | $0 | $60,000 | $60,000 |
| 2010 | $0 | $60,000 | $0 | $60,000 | $60,000 |
| 2009 | $0 | $18,750 | $0 | $18,750 | $18,750 |
| 2008 | $0 | $12,000 | $0 | $12,000 | $12,000 |
| 2007 | $0 | $12,000 | $0 | $12,000 | $12,000 |
Deed and Sales History
| 1 | 07/21/2015 | TRUSTEED | Trustee's Deed | BASS, JERALD E | BASS TRUSTEE, JERALD ERNEST | | | $0.00 | 21087 | 4384815 |
| 2 | 09/09/2008 | WD | Warranty Deed | NICHOLS, BRENDAN JOHN | BASS, JERALD E | | | $145,000.00 | 82448 | 4236731 |
| 3 | 12/19/2006 | WD | Warranty Deed | SCHUPP, MATHEW | NICHOLS, BRENDAN JOHN | | | $40,000.00 | 65299 | 4189824 |
| 4 | 03/08/2005 | WD | Warranty Deed | TRIBOU, ROBERT E | SCHUPP, MATHEW | | | $17,500.00 | 50954 | 4128025 |
| 5 | 03/01/1990 | QCD | Quit Claim Deed | TRIBOU, BEATRICE | TRIBOU, ROBERT E | | | $0.00 | 1889 | 90006044 |
| 6 | 01/01/1900 | OTHER | Other - Misc. Documents | Unknown | TRIBOU, BEATRICE | | | $0.00 | 0 | 0 |
Payout Agreement
| No payout information available.. |