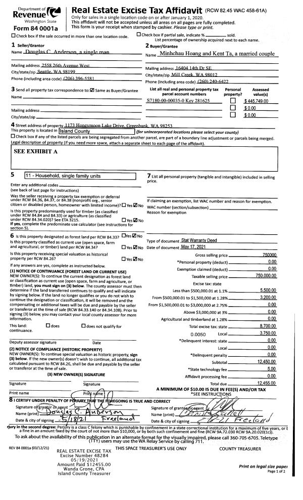
Property
Account |
| Property ID: | 353664 | Abbreviated Legal Description: | POSS SHORES LOT 8 BLK 2 |
| Geographic ID: | S7770-00-02008-0 | Agent Code: | |
| Type: | Real | | |
| Tax Area: | 710 - APPRAISER-S Whid Schl Dist, outside Langley, improved & 1 acre or less | Land Use Code | 11 |
| Open Space: | N | DFL | N |
| Historic Property: | N | Remodel Property: | N |
| Multi-Family Redevelopment: | N | | |
| Township: | | Section: | |
| Range: | |
Location |
| Address: | 8312 SUNSET HILL DR CLINTON, WA 98236 | Mapsco: | |
| Neighborhood: | Cycle 4 | Map ID: | 708 |
| Neighborhood CD: | 4 |
Owner |
| Name: | PITTIS, DENNIS | Owner ID: | 99604 |
| Mailing Address: | JULIE N PITTIS 8312 SUNSET HILL DR CLINTON, WA 98236-8933 | % Ownership: | 100.0000000000% |
| | | Exemptions: | |
Taxes and Assessment Details
Values
| (+) Improvement Homesite Value: | + | $0 | |
| (+) Improvement Non-Homesite Value: | + | $445,378 | |
| (+) Land Homesite Value: | + | $0 | |
| (+) Land Non-Homesite Value: | + | $380,000 | |
| (+) Curr Use (HS): | + | $0 | $0 |
| (+) Curr Use (NHS): | + | $0 | $0 |
| | | -------------------------- | |
| (=) Market Value: | = | $825,378 | |
| (–) Productivity Loss: | – | $0 | |
| | | -------------------------- | |
| (=) Subtotal: | = | $825,378 | |
| (+) Senior Appraised Value: | + | $0 | |
| (+) Non-Senior Appraised Value: | + | $825,378 | |
| | | -------------------------- | |
| (=) Total Appraised Value: | = | $825,378 | |
| (–) Senior Exemption Loss: | – | $0 | |
| (–) Exemption Loss: | – | $0 | |
| | | -------------------------- | |
| (=) Taxable Value: | = | $825,378 | |
Taxing Jurisdiction
| Owner: | PITTIS, DENNIS | | |
| % Ownership: | 100.0000000000% | | |
| Total Value: | $825,378 | | |
| Tax Area: | 710 - APPRAISER-S Whid Schl Dist, outside Langley, improved & 1 acre or less |
| CF | Conservation Futures | 0.0316035091 | $825,378 | $825,378 | $26.08 | | |
| FIRE3 | Fire & Rescue Dist #3 S Whidbey GEN | 1.2004855531 | $825,378 | $825,378 | $990.85 | | |
| HOBOND | Hospital BOND | 0.1910887512 | $825,378 | $825,378 | $157.72 | | |
| HOGEN | Hospital GEN | 0.3902502903 | $825,378 | $825,378 | $322.10 | | |
| CE | County Current Expense | 0.3708482477 | $825,378 | $825,378 | $306.09 | | |
| CR | County Roads | 0.4584763726 | $825,378 | $825,378 | $378.42 | | |
| ISLANDEMS | Hospital GEN (EMS) | 0.5000000000 | $825,378 | $825,378 | $412.69 | | |
| LIB | Library Sno-Isle GEN | 0.3153421757 | $825,378 | $825,378 | $260.28 | | |
| PORTWHID | Port of S Whidbey GEN | 0.1094540357 | $825,378 | $825,378 | $90.34 | | |
| SCH206BOND | School 206 BOND | 0.3161759235 | $825,378 | $825,378 | $260.96 | | |
| SCH206MO | School 206 Enrichment | 0.4547169547 | $825,378 | $825,378 | $375.31 | | |
| ST | State School | 1.3035497053 | $825,378 | $825,378 | $1,075.92 | | |
| ST2 | State School Part 2 | 0.8169543533 | $825,378 | $825,378 | $674.30 | | |
| SWHIDPRBD | P & R S Whidbey BOND | 0.0152817568 | $825,378 | $825,378 | $12.61 | | |
| SWHIDPRBD2 | P & R S Whidbey BOND2 | 0.0138911264 | $825,378 | $825,378 | $11.47 | | |
| SWHIDPRMT | P & R S Whidbey GEN | 0.2053334452 | $825,378 | $825,378 | $169.48 | | |
| | Total Tax Rate: | 6.6934522006 | | | | | |
| | | | | Taxes w/Current Exemptions: | $5,524.62 | | |
| | | | | Taxes w/o Exemptions: | $5,524.62 | | |
Improvement / Building
| Improvement #1: | RESIDENTIAL | State Code: | Y | 2387.1 sqft | Value: | $445,378 |
| Bathrooms: | 3 | Bedrooms: | 1 | | Ceiling: | BEAM PAINTED | Exterior Wall/Cover: | CEMENT FIBER | | Floor Covering: | HARDWOOD/CARP 60-40 | Floor Structure: | WOOD W/SUBFLOOR | | Foundation: | CONCRETE | Heating: | FHA GAS | | Interior Finish: | DRYWALL PAINT | Plumbing Fixture Cnt: | 13 | | Roof Slope: | 3" IN 12" | Roof Structure/Cover: | BEAM ALUMINUM HEAVY |
|
| | Type | Description | Class CD | Sub Class CD | Year Built | Area |
| | BAS | BASE/MAIN FLOOR | 4 | 0 | 1997 | 1448.6 |
| | OP3 | OPEN PORCH W/ROOF | 4 | 0 | 1997 | 232.0 |
| | AGR | ATTACHED GARAGE | 4 | 0 | 1997 | 528.0 |
| | BIG | BUILT IN GARAGE | 4 | 0 | 1997 | 334.7 |
| | DWN | DOWNSTAIRS LIVING AREA | 4 | 0 | 1997 | 938.5 |
| | OWP | OPEN WOOD PORCH W/STEPS | 4 | 0 | 1997 | 228.4 |
| | OWR | OPEN WOOD PORCH W/STEPS/ROOF | 4 | 0 | 1997 | 72.0 |
Sketch
| No sketches available for this property. |
Property Image
Land
| 1 | 13 | SQ (06001-08000) | 0.0000 | 0.00 | 0.00 | 0.00 | 1.00 | $380,000 | $0 |
Roll Value History
| 2026 | N/A | N/A | N/A | N/A | N/A |
| 2025 | $445,378 | $380,000 | $0 | $825,378 | $825,378 |
| 2024 | $444,268 | $360,000 | $0 | $804,268 | $804,268 |
| 2023 | $449,873 | $360,000 | $0 | $809,873 | $809,873 |
| 2022 | $412,453 | $340,000 | $0 | $752,453 | $752,453 |
| 2021 | $363,066 | $300,000 | $0 | $663,066 | $663,066 |
| 2020 | $302,005 | $260,000 | $0 | $562,005 | $562,005 |
| 2019 | $234,577 | $300,000 | $0 | $534,577 | $534,577 |
| 2018 | $235,302 | $240,000 | $0 | $475,302 | $475,302 |
| 2017 | $231,797 | $230,000 | $0 | $461,797 | $461,797 |
| 2016 | $234,634 | $200,000 | $0 | $434,634 | $434,634 |
| 2015 | $237,471 | $140,000 | $0 | $377,471 | $377,471 |
| 2014 | $232,534 | $85,000 | $0 | $317,534 | $317,534 |
| 2013 | $236,448 | $85,000 | $0 | $321,448 | $321,448 |
| 2012 | $239,261 | $129,200 | $0 | $368,461 | $368,461 |
| 2011 | $242,073 | $152,000 | $0 | $394,073 | $394,073 |
| 2010 | $143,771 | $152,000 | $0 | $295,771 | $295,771 |
| 2009 | $151,384 | $190,000 | $0 | $341,384 | $341,384 |
| 2008 | $139,648 | $250,000 | $0 | $389,648 | $389,648 |
| 2007 | $196,382 | $196,382 | $0 | $392,763 | $392,763 |
Deed and Sales History
| 1 | 06/01/1994 | WD | Warranty Deed | O'NEIL, ELAINE G | PITTIS, DENNIS & | | | $53,950.00 | 42455 | 94013682 |
| 2 | 01/01/1900 | OTHER | Other - Misc. Documents | Unknown | O'NEIL, ELAINE G | | | $0.00 | 0 | 0 |
Payout Agreement
| No payout information available.. |