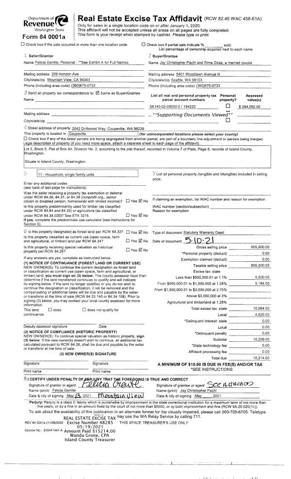
Property
Account |
| Property ID: | 353682 | Abbreviated Legal Description: | POSS SHORES LOT 10 BLK 2 |
| Geographic ID: | S7770-00-02010-0 | Agent Code: | |
| Type: | Real | | |
| Tax Area: | 710 - APPRAISER-S Whid Schl Dist, outside Langley, improved & 1 acre or less | Land Use Code | 11 |
| Open Space: | N | DFL | N |
| Historic Property: | N | Remodel Property: | N |
| Multi-Family Redevelopment: | N | | |
| Township: | | Section: | |
| Range: | |
Location |
| Address: | 8324 SUNSET HILL DR CLINTON, WA 98236 | Mapsco: | |
| Neighborhood: | Cycle 4 | Map ID: | 708 |
| Neighborhood CD: | 4 |
Owner |
| Name: | WRIGHTSON, IAN J | Owner ID: | 254620 |
| Mailing Address: | JOANNE H WRIGHTSON 18110 NW MONTREUX DR ISSAQUAH, WA 98027 | % Ownership: | 100.0000000000% |
| | | Exemptions: | |
Taxes and Assessment Details
Values
| (+) Improvement Homesite Value: | + | $0 | |
| (+) Improvement Non-Homesite Value: | + | $377,412 | |
| (+) Land Homesite Value: | + | $0 | |
| (+) Land Non-Homesite Value: | + | $380,000 | |
| (+) Curr Use (HS): | + | $0 | $0 |
| (+) Curr Use (NHS): | + | $0 | $0 |
| | | -------------------------- | |
| (=) Market Value: | = | $757,412 | |
| (–) Productivity Loss: | – | $0 | |
| | | -------------------------- | |
| (=) Subtotal: | = | $757,412 | |
| (+) Senior Appraised Value: | + | $0 | |
| (+) Non-Senior Appraised Value: | + | $757,412 | |
| | | -------------------------- | |
| (=) Total Appraised Value: | = | $757,412 | |
| (–) Senior Exemption Loss: | – | $0 | |
| (–) Exemption Loss: | – | $0 | |
| | | -------------------------- | |
| (=) Taxable Value: | = | $757,412 | |
Taxing Jurisdiction
| Owner: | WRIGHTSON, IAN J | | |
| % Ownership: | 100.0000000000% | | |
| Total Value: | $757,412 | | |
| Tax Area: | 710 - APPRAISER-S Whid Schl Dist, outside Langley, improved & 1 acre or less |
| CF | Conservation Futures | 0.0316035091 | $757,412 | $757,412 | $23.94 | | |
| FIRE3 | Fire & Rescue Dist #3 S Whidbey GEN | 1.2004855531 | $757,412 | $757,412 | $909.26 | | |
| HOBOND | Hospital BOND | 0.1910887512 | $757,412 | $757,412 | $144.73 | | |
| HOGEN | Hospital GEN | 0.3902502903 | $757,412 | $757,412 | $295.58 | | |
| CE | County Current Expense | 0.3708482477 | $757,412 | $757,412 | $280.88 | | |
| CR | County Roads | 0.4584763726 | $757,412 | $757,412 | $347.26 | | |
| ISLANDEMS | Hospital GEN (EMS) | 0.5000000000 | $757,412 | $757,412 | $378.71 | | |
| LIB | Library Sno-Isle GEN | 0.3153421757 | $757,412 | $757,412 | $238.84 | | |
| PORTWHID | Port of S Whidbey GEN | 0.1094540357 | $757,412 | $757,412 | $82.90 | | |
| SCH206BOND | School 206 BOND | 0.3161759235 | $757,412 | $757,412 | $239.48 | | |
| SCH206MO | School 206 Enrichment | 0.4547169547 | $757,412 | $757,412 | $344.41 | | |
| ST | State School | 1.3035497053 | $757,412 | $757,412 | $987.32 | | |
| ST2 | State School Part 2 | 0.8169543533 | $757,412 | $757,412 | $618.77 | | |
| SWHIDPRBD | P & R S Whidbey BOND | 0.0152817568 | $757,412 | $757,412 | $11.57 | | |
| SWHIDPRBD2 | P & R S Whidbey BOND2 | 0.0138911264 | $757,412 | $757,412 | $10.52 | | |
| SWHIDPRMT | P & R S Whidbey GEN | 0.2053334452 | $757,412 | $757,412 | $155.52 | | |
| | Total Tax Rate: | 6.6934522006 | | | | | |
| | | | | Taxes w/Current Exemptions: | $5,069.69 | | |
| | | | | Taxes w/o Exemptions: | $5,069.69 | | |
Improvement / Building
| Improvement #1: | RESIDENTIAL | State Code: | Y | 2706.0 sqft | Value: | $377,412 |
| Bathrooms: | 2.5 | Bedrooms: | 1 | | Ceiling: | DRYWALL PAINTED | Exterior Wall/Cover: | CEMENT FIBER | | Floor Covering: | CERAMIC TILE/CPT 40-60 | Floor Structure: | WOOD W/SUBFLOOR | | Foundation: | CONCRETE | Heating: | RADIANT FLOOR | | Interior Finish: | DRYWALL PAINT | Plumbing Fixture Cnt: | 11 | | Roof Slope: | 3" IN 12" | Roof Structure/Cover: | CJ ASPHALT |
|
| | Type | Description | Class CD | Sub Class CD | Year Built | Area |
| | BAS | BASE/MAIN FLOOR | 3 | 0 | 1993 | 1403.0 |
| | OP4 | OPEN PORCH W/CEILING-ROOF | 3 | 0 | 1993 | 48.0 |
| | AGR | ATTACHED GARAGE | 3 | 0 | 1993 | 440.0 |
| | OWP | OPEN WOOD PORCH W/STEPS | 3 | 0 | 1993 | 163.0 |
| | OWC | OPEN WOOD PORCH W/STEPS/ROOF/C | 3 | 0 | 1993 | 252.0 |
| | DWN | DOWNSTAIRS LIVING AREA | 3 | 0 | 1993 | 1303.0 |
Sketch
| No sketches available for this property. |
Property Image
Land
| 1 | 14 | SQ (08001-12000) | 0.0000 | 0.00 | 0.00 | 0.00 | 1.00 | $380,000 | $0 |
Roll Value History
| 2026 | N/A | N/A | N/A | N/A | N/A |
| 2025 | $377,412 | $380,000 | $0 | $757,412 | $757,412 |
| 2024 | $382,173 | $360,000 | $0 | $742,173 | $742,173 |
| 2023 | $386,938 | $360,000 | $0 | $746,938 | $746,938 |
| 2022 | $354,685 | $340,000 | $0 | $694,685 | $694,685 |
| 2021 | $312,185 | $300,000 | $0 | $612,185 | $612,185 |
| 2020 | $276,209 | $260,000 | $0 | $536,209 | $536,209 |
| 2019 | $218,828 | $300,000 | $0 | $518,828 | $518,828 |
| 2018 | $219,528 | $240,000 | $0 | $459,528 | $459,528 |
| 2017 | $220,928 | $230,000 | $0 | $450,928 | $450,928 |
| 2016 | $223,723 | $200,000 | $0 | $423,723 | $423,723 |
| 2015 | $226,520 | $140,000 | $0 | $366,520 | $366,520 |
| 2014 | $223,941 | $136,000 | $0 | $359,941 | $359,941 |
| 2013 | $226,777 | $136,000 | $0 | $362,777 | $362,777 |
| 2012 | $229,612 | $136,000 | $0 | $365,612 | $365,612 |
| 2011 | $232,446 | $160,000 | $0 | $392,446 | $392,446 |
| 2010 | $241,063 | $160,000 | $0 | $401,063 | $401,063 |
| 2009 | $251,419 | $200,000 | $0 | $451,419 | $451,419 |
| 2008 | $256,580 | $228,000 | $0 | $484,580 | $484,580 |
| 2007 | $259,609 | $250,000 | $0 | $509,609 | $509,609 |
Deed and Sales History
| 1 | 06/14/2011 | WD | Warranty Deed | FEDERAL NATIONAL MORTGAGE ASSOCIATION | WRIGHTSON, IAN J | | | $325,000.00 | 4680 | 4296623 |
| 2 | 06/25/2010 | TRUSTEED | Trustee's Deed | SHIELDS, KYNETTE S | FEDERAL NATIONAL MORTGAGE ASSO | | | $434,816.00 | 1720 | 4276945 |
| 3 | 06/28/2004 | WD | Warranty Deed | RANDLES, TERRY E | SHIELDS, KYNETTE S | | | $420,000.00 | 42842 | 4105106 |
| 4 | 11/01/1990 | WD | Warranty Deed | MORTENSEN, EINER | RANDLES, TERRY E | | | $35,000.00 | 6219 | 90021305 |
| 5 | 11/01/1989 | WD | Warranty Deed | MORTENSEN, EINER | MORTENSEN, EINER | | | $27,500.00 | 95311 | 89017076 |
| 6 | 11/01/1989 | QCD | Quit Claim Deed | LINDENBERGER, MANFRED | MORTENSEN, EINER | | | $0.00 | 95585 | 89017832 |
| 7 | 01/01/1900 | OTHER | Other - Misc. Documents | Unknown | LINDENBERGER, MANFRED | | | $0.00 | 0 | 0 |
Payout Agreement
| No payout information available.. |