Property
Account |
| Property ID: | 353806 | Abbreviated Legal Description: | POSS SHORES LOTS 21 & 22 BLK 2 |
| Geographic ID: | S7770-00-02022-0 | Agent Code: | |
| Type: | Real | | |
| Tax Area: | 710 - APPRAISER-S Whid Schl Dist, outside Langley, improved & 1 acre or less | Land Use Code | 11 |
| Open Space: | N | DFL | N |
| Historic Property: | N | Remodel Property: | N |
| Multi-Family Redevelopment: | N | | |
| Township: | | Section: | |
| Range: | |
Location |
| Address: | 8314 SUNSET VISTA LN CLINTON, WA 98236 | Mapsco: | |
| Neighborhood: | Cycle 4 | Map ID: | 708 |
| Neighborhood CD: | 4 |
Owner |
| Name: | MILLER, BRIAN W | Owner ID: | 291217 |
| Mailing Address: | SUSAN A MILLER 8314 SUNSET VISTA LN CLINTON, WA 98236 | % Ownership: | 100.0000000000% |
| | | Exemptions: | |
Taxes and Assessment Details
Values
| (+) Improvement Homesite Value: | + | $0 | |
| (+) Improvement Non-Homesite Value: | + | $571,812 | |
| (+) Land Homesite Value: | + | $0 | |
| (+) Land Non-Homesite Value: | + | $390,000 | |
| (+) Curr Use (HS): | + | $0 | $0 |
| (+) Curr Use (NHS): | + | $0 | $0 |
| | | -------------------------- | |
| (=) Market Value: | = | $961,812 | |
| (–) Productivity Loss: | – | $0 | |
| | | -------------------------- | |
| (=) Subtotal: | = | $961,812 | |
| (+) Senior Appraised Value: | + | $0 | |
| (+) Non-Senior Appraised Value: | + | $961,812 | |
| | | -------------------------- | |
| (=) Total Appraised Value: | = | $961,812 | |
| (–) Senior Exemption Loss: | – | $0 | |
| (–) Exemption Loss: | – | $0 | |
| | | -------------------------- | |
| (=) Taxable Value: | = | $961,812 | |
Taxing Jurisdiction
| Owner: | MILLER, BRIAN W | | |
| % Ownership: | 100.0000000000% | | |
| Total Value: | $961,812 | | |
| Tax Area: | 710 - APPRAISER-S Whid Schl Dist, outside Langley, improved & 1 acre or less |
| CF | Conservation Futures | 0.0316035091 | $961,812 | $961,812 | $30.40 | | |
| FIRE3 | Fire & Rescue Dist #3 S Whidbey GEN | 1.2004855531 | $961,812 | $961,812 | $1,154.64 | | |
| HOBOND | Hospital BOND | 0.1910887512 | $961,812 | $961,812 | $183.79 | | |
| HOGEN | Hospital GEN | 0.3902502903 | $961,812 | $961,812 | $375.35 | | |
| CE | County Current Expense | 0.3708482477 | $961,812 | $961,812 | $356.69 | | |
| CR | County Roads | 0.4584763726 | $961,812 | $961,812 | $440.97 | | |
| ISLANDEMS | Hospital GEN (EMS) | 0.5000000000 | $961,812 | $961,812 | $480.91 | | |
| LIB | Library Sno-Isle GEN | 0.3153421757 | $961,812 | $961,812 | $303.30 | | |
| PORTWHID | Port of S Whidbey GEN | 0.1094540357 | $961,812 | $961,812 | $105.27 | | |
| SCH206BOND | School 206 BOND | 0.3161759235 | $961,812 | $961,812 | $304.10 | | |
| SCH206MO | School 206 Enrichment | 0.4547169547 | $961,812 | $961,812 | $437.35 | | |
| ST | State School | 1.3035497053 | $961,812 | $961,812 | $1,253.77 | | |
| ST2 | State School Part 2 | 0.8169543533 | $961,812 | $961,812 | $785.76 | | |
| SWHIDPRBD | P & R S Whidbey BOND | 0.0152817568 | $961,812 | $961,812 | $14.70 | | |
| SWHIDPRBD2 | P & R S Whidbey BOND2 | 0.0138911264 | $961,812 | $961,812 | $13.36 | | |
| SWHIDPRMT | P & R S Whidbey GEN | 0.2053334452 | $961,812 | $961,812 | $197.49 | | |
| | Total Tax Rate: | 6.6934522006 | | | | | |
| | | | | Taxes w/Current Exemptions: | $6,437.85 | | |
| | | | | Taxes w/o Exemptions: | $6,437.85 | | |
Improvement / Building
| Improvement #1: | RESIDENTIAL | State Code: | Y | 3620.0 sqft | Value: | $571,812 |
| Bathrooms: | 3 | Bedrooms: | 4 | | Ceiling: | DRY WALL SPRAYED | Cooling: | HEAT PUMP/CONV/V | | Exterior Wall/Cover: | WOOD SIDING | Floor Covering: | HARDWOOD/CARP 20-80 | | Floor Structure: | WOOD W/SUBFLOOR | Foundation: | CONCRETE | | Interior Finish: | DRYWALL PAINT | Plumbing Fixture Cnt: | 14 | | Roof Slope: | 4" IN 12" | Roof Structure/Cover: | CJ CONCRETE TILE |
|
| | Type | Description | Class CD | Sub Class CD | Year Built | Area |
| | BAS | BASE/MAIN FLOOR | 4 | 0 | 1982 | 2095.0 |
| | OP1 | OPEN PORCH SLAB | 4 | 0 | 1982 | 695.0 |
| | AGR | ATTACHED GARAGE | 4 | 0 | 1982 | 980.0 |
| | BGR | BASEMENT GARAGE | 4 | 0 | 1982 | 578.0 |
| | OWP | OPEN WOOD PORCH W/STEPS | 4 | 0 | 1982 | 306.3 |
| | OWP | OPEN WOOD PORCH W/STEPS | 4 | 0 | 1982 | 1158.0 |
| | OWC | OPEN WOOD PORCH W/STEPS/ROOF/C | 4 | 0 | 1982 | 231.0 |
| | OWR | OPEN WOOD PORCH W/STEPS/ROOF | 4 | 0 | 1982 | 42.0 |
| | DWN | DOWNSTAIRS LIVING AREA | 4 | 0 | 1982 | 1525.0 |
Sketch
| No sketches available for this property. |
Property Image
Land
| 1 | 15 | SQ (12001-21780) | 0.0000 | 0.00 | 0.00 | 0.00 | 1.00 | $390,000 | $0 |
Roll Value History
| 2026 | N/A | N/A | N/A | N/A | N/A |
| 2025 | $571,812 | $390,000 | $0 | $961,812 | $961,812 |
| 2024 | $579,410 | $380,000 | $0 | $959,410 | $959,410 |
| 2023 | $587,010 | $360,000 | $0 | $947,010 | $947,010 |
| 2022 | $538,398 | $340,000 | $0 | $878,398 | $878,398 |
| 2021 | $474,178 | $300,000 | $0 | $774,178 | $774,178 |
| 2020 | $430,796 | $280,000 | $0 | $710,796 | $710,796 |
| 2019 | $314,993 | $300,000 | $0 | $614,993 | $614,993 |
| 2018 | $316,041 | $240,000 | $0 | $556,041 | $556,041 |
| 2017 | $314,528 | $230,000 | $0 | $544,528 | $544,528 |
| 2016 | $318,665 | $200,000 | $0 | $518,665 | $518,665 |
| 2015 | $322,806 | $140,000 | $0 | $462,806 | $462,806 |
| 2014 | $315,591 | $85,000 | $0 | $400,591 | $400,591 |
| 2013 | $320,216 | $85,000 | $0 | $405,216 | $405,216 |
| 2012 | $324,843 | $129,200 | $0 | $454,043 | $454,043 |
| 2011 | $329,469 | $152,000 | $0 | $481,469 | $481,469 |
| 2010 | $349,885 | $152,000 | $0 | $501,885 | $501,885 |
| 2009 | $365,130 | $190,000 | $0 | $555,130 | $555,130 |
| 2008 | $380,528 | $250,000 | $0 | $630,528 | $630,528 |
| 2007 | $385,345 | $250,000 | $0 | $635,345 | $635,345 |
Deed and Sales History
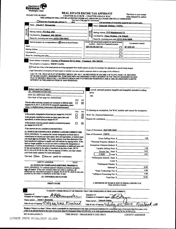
| 1 | 07/16/2019 | WD | Warranty Deed | MCGINTY, ROBERT E | MILLER, BRIAN W | | | $765,050.00 | 39715 | 4468656 |
| 2 | 09/01/1983 | EZ | Easement | MCGINTY, ROBERT E | MCGINTY, ROBERT E | | | $0.00 | 60269 | 386057 |
| 3 | 07/01/1979 | CD | DNU - Correction Deed | MCGINTY, ROBERT E | MCGINTY, ROBERT E | | | $6,600.00 | 93848 | 0 |
| 4 | 01/01/1900 | OTHER | Other - Misc. Documents | Unknown | MCGINTY, ROBERT E | | | $0.00 | 0 | 0 |
Payout Agreement
| No payout information available.. |